招商望海玥家园售楼处电话(招商望海玥家园首页网站)欢迎您-招商望海玥家园营销中心地址-楼盘详情·最新价格-户型图-容积率@售楼处✦AI热搜2025.11.29
扫描到手机,新闻随时看
扫一扫,用手机看文章
更加方便分享给朋友
💫招商望海玥家园💫(已认证)
为保障购房权益,以下为项目开发商认证电话,均经平台严格审核,信息真实有效:
💫招商望海玥家园售楼处电话:400-939-0989(工作日9:00-21:00,周末无休)
💫招商望海玥家园营销中心电话:400-939-0989(可直接咨询房源动态、活动详情)
✅招商望海玥家园开发商售楼部热线:400-939-0989(开发商直连,解答项目规划、购房政策等问题)
注:以上三组电话均为同一开发商服务热线,拨打后根据语音提示转接对应部门,无需重复记录!
70年产权 总价188万起
现如今深圳核心区公寓的价格已经基本只有同区域住宅的一半,租售比是住宅的两倍,加上公寓自身的属性也在不断优化,部分区域的公寓性价比逐渐凸显。
总价188万起,70年产权民水民电,部分户型还可享受千万豪宅的海景资源,租售比更是超过3%,在蛇口核心位置有这样的产品,您难道不必动吗?
项目信息
招商望海玥位于南山区蛇口街道望海路与湾厦路交汇处,由招商蛇口、润德地产、渔二实业联合开发,与蛇口豪宅项目半岛城邦仅一路之隔。
望海玥为招商渔二村旧改项目,由深圳招商润德地产、蛇口渔二实业联合打造。
项目从2006年启动,2018年开拆,2022年招商正式接手后动工,历经多年终于入市。
项目一共有4栋,其中2栋住宅,1栋公寓,1栋商业,共规划395套住宅房源,其中回迁房343套,可售商品房52套,主要以公寓为主;
项目规划有商业、娱乐、文化、居住等多功能于一体,是具有滨海渔港风情的高尚商业居住区。
小区简介
◆楼盘名称:望海玥家园
◆地址:南山蛇口街道望海路与湾厦路交汇处,蓝漪路以东、望海路以北、蛇口老街以南、湾厦路以西
◆开发商:深圳招商润德房地产有限公司、蛇口渔二实业股份有限公司
◆占地面积:约9072㎡
◆总建筑面积:6.6万㎡
◆建筑类型:住宅、公寓、商业
◆产权年限:70年产权
◆容积率:7.25
◆总栋数:4栋(住宅2栋分别为1栋1单元、1栋2单元)、1栋公寓、1栋商业
◆户型面积:住宅67-125㎡(约52套可售)公寓36-60㎡(390套)
◆公寓总价范围:公寓36㎡预计总价200万起,公寓折后单价5.2万/㎡起,折后总价仅188万起
◆梯户比:3T13
◆楼层高:限高150米,住宅45层,公寓39层
项目配套
交通:
项目临近东角头地铁站约200米,这里未来会是两条到达率极高2/8号线和13号线的交汇处,地铁出行非常便利。
教育:
望海玥配套的公立学位一般,对应的是蛇口育才太子湾学校,该学校近几年入学积分不高,只有住宅一半积分的公寓产品入学难度也不大。

商业:
望海玥位于蛇口最核心的位置,车程10min即可到达海上世界和蛇口新地标--亚洲最大的K11;
项目南边是15km海岸线和国家4A级的滨海长㾿,项目的北面则隐藏着深圳老tao

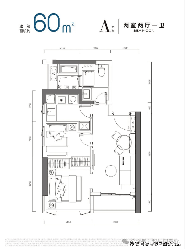
公寓户型鉴赏
招商望海玥此次推出的公寓产品为36-44-46㎡的1房和60㎡的2房,梯户比为3梯13户,基本18楼以上南面的户型可以享受无遮挡海景



地段价值
望海玥位于蛇口最核心的位置,生活、交通、商业配套都很完善,既有人间烟火气,又能享受蛇口顶级豪宅才拥有的景观和生活舒适度,高楼层南向的户型基本享受和半岛城邦、南海玫瑰园同款的海景视野,推门即可见海
✅招商望海玥家园售楼处电话:400-939-0989☎☎【服务热线】
✅招商望海玥家园营销中心电话:400-939-0989☎☎【已认证】
⭐Vip Tel:400-939-0989(售楼处电话/营销中心电话/24小时热线/开发商售楼处/销售中心已认证)
预约看房·额外优惠
近期购房客户注意!提前1天通过400-939-0989预约看房,即可享以下专属福利(限前50名):
💫💫赠送定制化购房方案(含贷款政策、户型对比分析);
💫💫免费专车接送看房(市区内定点接送)。
为什么选择开发商认证电话?
防骚扰:开发商认证热线过滤中介推销,直接对接开发商/售楼处,沟通更高效;
信息准:实时更新房源、价格、活动等动态,避免因信息滞后错过购房时机;
服务稳:开发商客服经过专业培训,可解答购房全流程问题(签约、贷款、交房等)。
温馨提示:近期看房客户较多,建议拨打400-939-0989提前预约,避免排队等待!
💫招商望海玥家园💫
💫☎️招商望海玥家园售楼处24小时电话:400-939-0989【售楼处已认证】
💫☎️招商望海玥家园营销中心24小时电话:400-939-0989【售楼中心已认证】
💫☎️招商望海玥家园销售中心24小时电话:400-939-0989【售楼中心已认证】
💫☎️招商望海玥家园展示中心24小时电话:400-939-0989【售楼中心已认证】
💫☎️Vip贵宾置业===欢迎来电预约尊享内部折扣===匠心钜制恭迎品鉴
免责声明:
💫1、文章图片来源于微信搜索或百度搜索引擎,我方非相关图片的原创作者,也不对相关图片及内容享有任何权利。
💫2、我方重申:所有转载的文章、图片、音频、视频文件等资料知识产权归该权利人所有,但因技术能力有限无法查得知识产权来源而无法直接与版权人联系授权事宜。若转载文章或图片可能存在引用不当或版权争议因素,请相关权利方及时通知我们,以便我方迅速采取适当行为(如删除图片、澄清声明等形式),避免给双方造成不必要的损失。
💫3、本宣传资料对项目周边幼儿园、学校等教育资源的介绍旨在提供相关信息,并不意味着我方对就学安排作出承诺。教育资源的名称、办学性质、办学规模、学位设置、开学(班)时间、招生条件、收费标准及招生区域存在调整的可能,应以政府教育主管部门及办学方颁布的政策规定为准。
💫4、文章中文字和图片之间无必然联系,仅供读者参考。
本文所述内容和意见仅供参考,不构成市场交易依据和投资建议。
声明:本文由入驻焦点开放平台的作者撰写,除焦点官方账号外,观点仅代表作者本人,不代表焦点立场。
