京基璟誉府(售楼处)首页网站-京基璟誉府营销中心-京基璟誉府欢迎您-楼盘详情-最新价格-户型图-容积率@售楼处

新余楼市发布 2025-06-01 16:19:10
用手机看
扫描到手机,新闻随时看

扫一扫,用手机看文章
更加方便分享给朋友

京基璟誉府售楼处电话:400-8328-772售楼中心,楼盘项目全面介绍,本电话为开发商提供线上售楼电话,楼盘项目全面介绍(包含楼盘简介,房价,价格,楼盘地址,户型图,交通规划,备案价,项目配套,楼盘详情,售…

深圳【京基璟誉府】

京基璟誉府营销中心电话:400-8328-772【营销中心】

房价特价信息丨在售户型图丨项目介绍丨周边配套丨预约看房热线电话

京基璟誉府售楼处电话: 400-8328-772售楼中心,楼盘项目全面介绍,本电话为开发商提供线上售楼电话,楼盘项目全面介绍(包含楼盘简介,房价,价格,楼盘地址,户型图,交通规划,备案价,项目配套,楼盘详情,售楼处电话,最新消息,最新详情,周边配套,最新进展等详情)

京基璟誉府售楼处直销—匠心钜制恭迎品鉴!

【温馨提示:看房请提前预约,错开高峰,谢谢配合】

项目基本信息

开发商:深圳市京基房地产股份有限公司

建筑面积:约84万㎡

可售套数:489套约

主力户型:70-180㎡

交楼标准:精装

封顶时间:预计2024年9月

车位数:2015个

梯户比:3T4、3T5

物业费:5.9元/㎡·月

物业公司:深圳市京基物业管理有限公司

总占地面积约2.76万㎡,总建筑面积约40.3万㎡,计容建筑面积约31.3万㎡,容积率11.35,绿化率40.01%,共由3栋5座60F超高层住宅+1栋办公楼组成,其中1栋A1/A2座/1栋B1/B2座/1栋C座住宅60F,3栋办公楼62F,2栋是一所18班制幼儿园。

总规划1624户,其中商品房有489套,3梯4户/3梯5户设计,回迁房1135套,地下5层,规划停车位2015个。

将推出1栋A1座、1栋B1座/B2座、1栋C座,共489套房源

面积段:50㎡的1房1厅,70-85㎡的2房1厅,95-105㎡的3房2卫,120-150-180㎡的4房2卫户型

计划在2025年底前带精装交房。

开发商背景

【30载京基巨著 缔造罗湖封面】

中心地标缔造者——京基集团,国家房地产开发一级资质企业,中国驰名商标,铸就京基100、京基水贝城市广场等城市地标,造就诸多高端、大型综合体、资源豪宅等经典项目。京基30载,于罗湖城芯再造誉领湖山巨著。

生态配套

【独屹贵胄之地 山水大城终藏】

项目坐落于淘金山贵胄之地,私享38万m²原生山脉及300万m²浩瀚东湖头排景观,承袭豪宅基因,一面近揽山水宁静,一面执掌城央繁华,缔造新时代奢居典范。

【一湖三山五公园 24H鲜养生活】

紧邻一湖三山五公园,傲据60.5平方公里深圳水库保护区一线,深港唯此6000万㎡生态恒产。直面深圳最高峰梧桐山,淘金山、围岭山簇拥,下楼即达东湖公园、咫尺翠湖文体公园(罗湖最大的社区公园)、淘金山绿道、围岭公园、布心山公园、东晓儿童友好公园等,畅享24H生态鲜氧。

小区园林

近1万㎡景观园林,以6重园林景观(主人口、归家礼庭、揽翠花径、阳光沐台、欢畅泳池、童趣乐园)营造体验感丰富的全龄段公共活动空间。

交通配套

4快速:毗邻东湖路、太白路、东晓路等城市主干道,0距离丹平快速,快速接驳坂银通道,清平高速,东部过境高速,瞬达全城;

3口岸:15分钟车程覆盖罗湖、文锦渡口岸,30分钟车程达莲塘口岸,高效通行深港,畅享双城生活;

2高铁:深圳站、罗湖北站(在建中,计划2028年通车运营);

2地铁:距离5号线布心站约600m,距离5/7号线太安站约700m,快速换乘1/2/9号线。

商业配套

项目自带约2万㎡商业,周边5大商圈环伺

约1km范围:约6万㎡喜荟城、12万㎡天河城双购物中心;

约2km范围:约10万㎡京基KKTIME、6万㎡IBC MALL、12万㎡华润万象汇等商圈。

教育配套

项目自带1所4800㎡的18班幼儿园,紧邻翠园东晓教育集团旗下东晓小学、布心小学、布心中学等老牌省一级名校,十大优校环伺,家门口一站式名校教育,启序菁英未来。

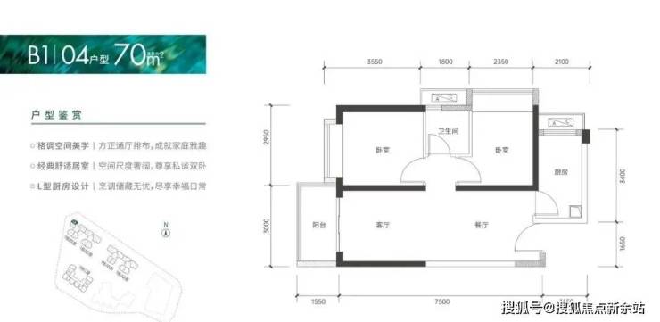
户型鉴赏

深圳【京基璟誉府】

京基璟誉府营销中心电话:400-8328-772【营销中心】

房价特价信息丨在售户型图丨项目介绍丨周边配套丨预约看房热线电话

京基璟誉府售楼处电话: 400-8328-772售楼中心,楼盘项目全面介绍,本电话为开发商提供线上售楼电话,楼盘项目全面介绍(包含楼盘简介,房价,价格,楼盘地址,户型图,交通规划,备案价,项目配套,楼盘详情,售楼处电话,最新消息,最新详情,周边配套,最新进展等详情)

京基璟誉府售楼处直销—匠心钜制恭迎品鉴!

【温馨提示:看房请提前预约,错开高峰,谢谢配合】免责声明:本文如无意中侵犯了某方的知识产权告知即删,部分内容图片可能来源于网络,无法核实其真实出处,如涉及侵权请联系本网站删除!!

声明:本文由入驻焦点开放平台的作者撰写,除焦点官方账号外,观点仅代表作者本人,不代表焦点立场。