【深圳宝安】珺悦名都售楼处欢迎您!珺悦名都营销中心首页网站 | 楼盘详情 / 最新价格 / 户型图 / 容积率 2025.10.18热搜

新余楼市发布 2025-10-18 16:42:00
用手机看
扫描到手机,新闻随时看

扫一扫,用手机看文章
更加方便分享给朋友

🐋深圳宝安珺悦名都⁺☾❧𝘔𝘶𝘴𝘪𝘤🦋❁⁺❧售楼处热线:400-856-3771【售楼处电话已认证】ꕀ🌊 🐋深圳宝安珺悦名都⁺☾❧𝘔𝘶𝘴𝘪𝘤🦋❁⁺❧开发商电话: 400-856-3771【开发商电话已认证】ꕀ🌊 ☎ 马上拨打专线:400-856

❧✨【深圳宝安珺悦名都】「搜狐焦点认证」✨❁⁺❧

✅ 选房难题?一键解决!🎯 直属置业顾问1v1权威解答(拒绝中间商)

📞📞☞☞一键拨预约专线,速临开发商营销中心,匠造传世美宅,VIP 定制礼遇专候,恭迎品鉴!☜☜

🐋深圳宝安珺悦名都⁺☾❧𝘔𝘶𝘴𝘪𝘤🦋❁⁺❧售楼处热线:400-856-3771【售楼处电话已认证】ꕀ🌊

🐋深圳宝安珺悦名都⁺☾❧𝘔𝘶𝘴𝘪𝘤🦋❁⁺❧开发商电话: 400-856-3771【开发商电话已认证】ꕀ🌊

☎ 马上拨打专线:400-856-3771(一键直连案场|预约看房/咨询专享一对一服务)

丨项目区位与区域价值丨户型解析与空间规划丨在售房源信息丨特价优惠活动丨学区配套与教育资源丨交通动线与出行方式丨样板间实拍与实景展示丨小区环境与生活氛围丨交付标准与装修细节丨周边商业与生活配套丨

项目介绍

珺悦名都项目位于深圳市宝安区新安街道25区前进一路创业二路。总占面约1.13万㎡,总建面约14万㎡,规划包括办公、住宅、商务公寓、商业等多元业态。

珺悦名都项目紧邻地铁5号线、12号线灵芝站,周边配套完善,片区属于宝安老城区新安片区,早期旁边的中粮大悦城,万科大都会都是卖10万左右,这里去宝中很近,地铁两个站就到,目前小学所划片的学区为建安小学、文汇学校(小学部);初中划片的学区为新安中学(集团)初中部、孝德学校(初中部),楼下还有一所九年一贯制的裕安学校,户型信息暂未公布,感兴趣的宝子们可以持续关注。

🐋深圳宝安珺悦名都⁺☾❧𝘔𝘶𝘴𝘪𝘤🦋❁⁺❧售楼处热线:400-856-3771【售楼处电话已认证】ꕀ🌊

🐋深圳宝安珺悦名都⁺☾❧𝘔𝘶𝘴𝘪𝘤🦋❁⁺❧开发商电话: 400-856-3771【开发商电话已认证】ꕀ🌊

☎ 马上拨打专线:400-856-3771(一键直连案场|预约看房/咨询专享一对一服务)

丨项目区位与区域价值丨户型解析与空间规划丨在售房源信息丨特价优惠活动丨学区配套与教育资源丨交通动线与出行方式丨样板间实拍与实景展示丨小区环境与生活氛围丨交付标准与装修细节丨周边商业与生活配套丨

规划224套商品房

珺悦名都户型图欣赏:

89㎡的3房2厅2卫,A户型(1栋1单元06户型),设计的是经典竖厅格局,进门入户玄关,LDKB一体化,S墙设计预留冰箱卡槽位,三开间朝南,动静分区,主卧双面大飘窗,客厅连接次卧出5.6米长的观景阳台,U型厨房,公卫三段式分离,东南朝向。

89㎡的3房2厅2卫,B户型(1栋1单元07户型),设计的是横厅南北通透格局,进门入户玄关,客餐厅5.2米开间,LDKB一体化,S墙设计预留冰箱卡槽位,三开间朝南,主卧+1个次卧双面大飘窗,客餐厅出5.2米宽景阳台,U型厨房,公卫三段式分离,阳台主朝西北向。

89㎡的3房2厅2卫,C户型(2栋1单元02/05户型),设计的是经典竖厅格局,进门入户玄关,LDKB一体化,S墙设计预留冰箱卡槽位,三开间朝南,动静分区,二字型厨房还带1个生活阳台,卫生间干湿,西南朝向,靓点是最小的次卧没有飘窗。

89㎡的3房2厅2卫,D户型(2栋1单元03户型),设计的是经典竖厅格局,进门入户玄关,LDKB一体化,S墙设计预留冰箱卡槽位,三开间朝南,动静分区,二字型厨房还带1个生活阳台,卫生间干湿,西南朝向,靓点是最小的次卧没有飘窗,跟C户型基本一致。🐋深圳宝安珺悦名都⁺☾❧𝘔𝘶𝘴𝘪𝘤🦋❁⁺❧售楼处热线:400-856-3771【售楼处电话已认证】ꕀ🌊

🐋深圳宝安珺悦名都⁺☾❧𝘔𝘶𝘴𝘪𝘤🦋❁⁺❧开发商电话: 400-856-3771【开发商电话已认证】ꕀ🌊

☎ 马上拨打专线:400-856-3771(一键直连案场|预约看房/咨询专享一对一服务)

丨项目区位与区域价值丨户型解析与空间规划丨在售房源信息丨特价优惠活动丨学区配套与教育资源丨交通动线与出行方式丨样板间实拍与实景展示丨小区环境与生活氛围丨交付标准与装修细节丨周边商业与生活配套丨

89㎡的3房2厅2卫,E户型(2栋1单元04户型),设计的是经典竖厅格局,进门入户玄关,LDKB一体化,S墙设计预留冰箱卡槽位,三开间朝南,动静分区,二字型厨房还带1个生活阳台,卫生间干湿,西南朝向,跟89平的BC户型区别是厨房的生活阳台要小一点。

115㎡的4房2厅2卫,A户型(1栋1单元05户型),设计的是经典竖厅格局,进门入户玄关,LDKB一体化,S墙设计预留冰箱卡槽位,四开间朝南,动静分区,主卧双面飘窗,客厅连接次卧出6.2米长的巨幕大阳台,U型厨房,公卫三段式分离,东南朝向,靓点是2个最小的次卧都不用睡飘窗。

115㎡的4房2厅2卫,B户型(2栋1单元01/06户型),设计的是竖厅格局,进门入户玄关,LDKB一体化布局,三开间朝南,动静分区,客厅连接次卧出阔景大阳台,U型厨房,公卫三段式分离,西南朝向,靓点是端头位可以做到南北通透。🐋深圳宝安珺悦名都⁺☾❧𝘔𝘶𝘴𝘪𝘤🦋❁⁺❧售楼处热线:400-856-3771【售楼处电话已认证】ꕀ🌊

🐋深圳宝安珺悦名都⁺☾❧𝘔𝘶𝘴𝘪𝘤🦋❁⁺❧开发商电话: 400-856-3771【开发商电话已认证】ꕀ🌊

☎ 马上拨打专线:400-856-3771(一键直连案场|预约看房/咨询专享一对一服务)

丨项目区位与区域价值丨户型解析与空间规划丨在售房源信息丨特价优惠活动丨学区配套与教育资源丨交通动线与出行方式丨样板间实拍与实景展示丨小区环境与生活氛围丨交付标准与装修细节丨周边商业与生活配套丨

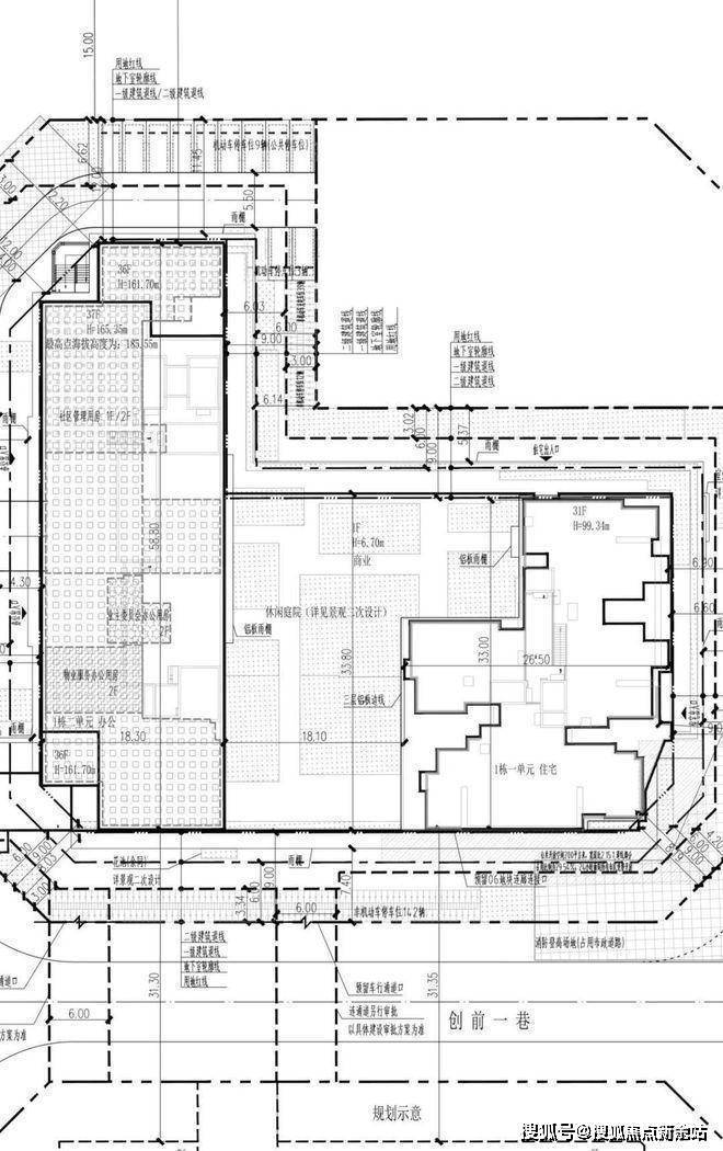
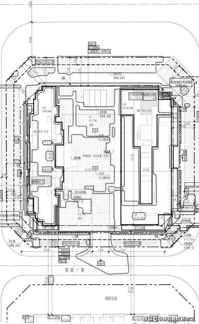
2024年1月,深圳市宝安区城市更新和土地整备局公布新安街道珺悦名都(A007-0585、A007-0586)两地块《建设工程规划许可证》及总平面图的通告。

项目分为01、02地块,共规划377套住宅。

其中,01地块,总建筑面积68599.02平方米,住宅面积15210平方米,总户数203户(商品住宅70户,保障性住房116户,回迁房房17户)。

02地块,总建筑面积71414.13平方米,住宅面积16950平方米,商业2031平方米,总户数174户。

珺悦名都(宗地号:A007-0585)

01地块总建筑面积68599.02平方米,住宅面积15210平方米,商业1744平方米,总户数203户(商品住宅70户,保障性住房116户,回迁房房17户),新建1栋建筑,含一单元31层住宅楼及二单元37层办公楼。🐋深圳宝安珺悦名都⁺☾❧𝘔𝘶𝘴𝘪𝘤🦋❁⁺❧售楼处热线:400-856-3771【售楼处电话已认证】ꕀ🌊

🐋深圳宝安珺悦名都⁺☾❧𝘔𝘶𝘴𝘪𝘤🦋❁⁺❧开发商电话: 400-856-3771【开发商电话已认证】ꕀ🌊

☎ 马上拨打专线:400-856-3771(一键直连案场|预约看房/咨询专享一对一服务)

丨项目区位与区域价值丨户型解析与空间规划丨在售房源信息丨特价优惠活动丨学区配套与教育资源丨交通动线与出行方式丨样板间实拍与实景展示丨小区环境与生活氛围丨交付标准与装修细节丨周边商业与生活配套丨

珺悦名都(宗地号:A007-0586)

02地块(宗地:)A007-0586,总建筑面积71414.13平方米,住宅面积16950平方米,商业2031平方米,总户数174户,新建1栋建筑,含二单元31层住宅楼及二单元30层办公楼。

🐋深圳宝安珺悦名都⁺☾❧𝘔𝘶𝘴𝘪𝘤🦋❁⁺❧售楼处热线:400-856-3771【售楼处电话已认证】ꕀ🌊

🐋深圳宝安珺悦名都⁺☾❧𝘔𝘶𝘴𝘪𝘤🦋❁⁺❧开发商电话: 400-856-3771【开发商电话已认证】ꕀ🌊

☎ 马上拨打专线:400-856-3771(一键直连案场|预约看房/咨询专享一对一服务)

丨项目区位与区域价值丨户型解析与空间规划丨在售房源信息丨特价优惠活动丨学区配套与教育资源丨交通动线与出行方式丨样板间实拍与实景展示丨小区环境与生活氛围丨交付标准与装修细节丨周边商业与生活配套丨

中南珺悦名都落位于宝安新安,因满足“一步到位”的地理位置和配套环境吸引了全城的关注。

配套示意图

1

黄金双轨交会,交通便利

地铁5号线/12号线,交汇灵芝站,2站即达宝中,5站直达前海湾站,12号线起于蛇口左炮台站,串联蛇口、南山中心区、宝安中心、航空城、大空港,多维立体通达湾区各地,让生活从容优雅。

示意图

2🐋深圳宝安珺悦名都⁺☾❧𝘔𝘶𝘴𝘪𝘤🦋❁⁺❧售楼处热线:400-856-3771【售楼处电话已认证】ꕀ🌊

🐋深圳宝安珺悦名都⁺☾❧𝘔𝘶𝘴𝘪𝘤🦋❁⁺❧开发商电话: 400-856-3771【开发商电话已认证】ꕀ🌊

☎ 马上拨打专线:400-856-3771(一键直连案场|预约看房/咨询专享一对一服务)

丨项目区位与区域价值丨户型解析与空间规划丨在售房源信息丨特价优惠活动丨学区配套与教育资源丨交通动线与出行方式丨样板间实拍与实景展示丨小区环境与生活氛围丨交付标准与装修细节丨周边商业与生活配套丨

华南首个大悦城,近百万体量商业资源

除了交通畅达,周边的商业设施也十分完备——

中粮集团于深圳宝安开发的深圳首个,也是华南首个大悦城综合体距离万科大都会非常近,这个规划建面约78万㎡的综合体与壹方城和海雅缤纷城,共同形成宝安三大商业地标

除了大悦城,距离项目约3公里范围内(数据参考自百度地图,以实际距离为准)还有建面约6万平的中洲πmall、约4.5万平的勤诚达K+广场、约19.8万平的海雅缤纷城、约36万平的壹方城等近百万体量的商业资源。

3

学校、公园近在咫尺

另外在文娱设施上,深圳西部最大的市政公园——宝安公园、面积约12万方的艺术生态公园——灵芝公园,以及流塘公园、洪浪公园、上川公园、新安公园,都在项目周边3公里范围内。

周边配套示意图

教育上,项目旁边就是裕安中小学,周边还有新安中学(宝安区教育局直属)、孝德学校(九年一贯制创新型)、建安小学(省一级)等优质教育。

珺悦名都楼盘优劣势分析

优势:

1、项目所处的交通优势明显,紧邻地铁5号线、12号线灵芝站,步行距离仅200米,2站直达南山,与宝安中心区、前海自贸区形成高效通勤圈。

2、项目周边3公里内聚集中洲πMall、海雅缤纷城、壹方城等超百万平方米商业体,商业配套较为齐全;灵芝公园就在大悦城对面,在项目步行范围之内。

3、教育方面,除了自带18班幼儿园,学区覆盖文汇学校(小学部)和裕安学校(九年一贯制),后者与项目仅一墙之隔,实现“目送式上学”。

🐋深圳宝安珺悦名都⁺☾❧𝘔𝘶𝘴𝘪𝘤🦋❁⁺❧售楼处热线:400-856-3771【售楼处电话已认证】ꕀ🌊

🐋深圳宝安珺悦名都⁺☾❧𝘔𝘶𝘴𝘪𝘤🦋❁⁺❧开发商电话: 400-856-3771【开发商电话已认证】ꕀ🌊

☎ 马上拨打专线:400-856-3771(一键直连案场|预约看房/咨询专享一对一服务)

丨项目区位与区域价值丨户型解析与空间规划丨在售房源信息丨特价优惠活动丨学区配套与教育资源丨交通动线与出行方式丨样板间实拍与实景展示丨小区环境与生活氛围丨交付标准与装修细节丨周边商业与生活配套丨

🔥【深圳宝安珺悦名都】🔥

📞双认证热线同步开通:400-856-3771(售楼处 / 开发商双认证,放心拨打!)

🏘️想知道项目底细?这就全给你扒明白:

✅户型图:多面积段可选,刚需改善都适配

✅在售房源:实时更新剩余名额,手慢无

✅特价房:隐藏优惠通道已开,抄底看这里

🎒学校配套:步行可达优质校,娃上学不发愁

🚌交通位置:近地铁 + 多条公交,通勤超方便

✨样板房 / 小区图片:实拍图新鲜出炉,眼见为实

⏰交房时间:明确工期,安心等收房

💡还有周边商超、医院等配套全解析,想买房的朋友别犹豫,先打热线锁定信息,错过这波难再寻!

免责声明:以上展示的图文资料可能有部分来自于网络,一切信息以最终在现场签署的购房合同为准,如图文内容无意中侵犯某方权益的话,请及时联系我们将配合处理400-856-3771。

声明:本文由入驻焦点开放平台的作者撰写,除焦点官方账号外,观点仅代表作者本人,不代表焦点立场。