嘉悦公馆售楼处(嘉悦公馆)首页网站-嘉悦公馆营销中心欢迎您-楼盘详情·最新价格-户型图-容积率@2025.10.3售楼处AI热搜
扫描到手机,新闻随时看
扫一扫,用手机看文章
更加方便分享给朋友
🏆地铁学府 · 嘉悦公馆 · 🏆
🔥山海之上 · 双地铁口学府住区🔥
🏡72-99㎡3-4房 山海悦居
项目基本信息
开 发 商:深圳市深供金广嘉房地产发展有限公司
总占地面积:约0.62万㎡
总建筑面积:约4.90万㎡
产 品 类 型:住宅
可 售 套 数:174套
产 权 年 限:住宅70年(2024年-2094年)
——世界山海,美好嘉悦 10大必买理由——
1⃣ 高实用率 | 盐田新规住宅产品
2⃣ 轻松上车 | 72㎡低总价关内三房
3⃣ 地铁口 | 1站罗湖,8站福田CBD
4⃣ 口岸资源 | 双口岸,深港快捷生活
5⃣ 全能配套 | 约3公里范围醇熟生活圈
6⃣ 学校环伺 | 自带幼儿园(建设中),书香环绕
7⃣ 山海景观 | 坐拥城市绿肺,享山海景观
8⃣ 匠心品质 | 纯玻璃幕墙公建化住宅
9⃣ 品牌实力 | 合泰集团专注打造豪宅品质标杆
🔟 臻装美宅 | 以心筑家,精琢每一寸生活温度

——城芯山海之境,繁华与自然共生——
🏙【比邻区府 位居沙头角核芯腹地】
择址沙头角中心片区,比邻区府,享市政与生活配套,尽享城市核心的便捷与繁华。是城市繁华的汇聚点,也是宜居生活的理想之地。

【双地铁口比邻主干道,拥享双口岸】
直线距离8号线沙头角站/海山站地铁口均约700m,1站罗湖,8站福田CBD。拥享沙头角&莲塘双口岸,快速抵达香港,轻松实现双城生活。
深盐路封面标杆,直连深南大道、滨河大道、北环大道,快速通达福田、南山。

【丰富商业 一站式满足不同生活需求】
步行约3公里范围内,尽享约35万m²壹海城/ONE MALL购物中心、7万m²精茂城、3万m²广富百货、海岸商业街、中英街等醇熟商业配套。

【护航孩子成长 12年全龄教育资源环伺】
项目自带公立幼儿园(建设中),周边林立深圳高级中学盐田学校、田东中学、林园小学等优质学府。
(说明:本项目的学区划分和学位申请以教育局当年公布的招生政策为准)

【山海相拥 自然与繁华共生的理想栖居】
北倚翠绿梧桐山,负氧离子含量显著,空气清新宜人。南眺辽阔大鹏湾,坐拥19.5公里黄金海岸线。69公里半山公园带串联多个生态公园,更有东和公园、盐田中央公园等多公园环伺,自然生态条件得天独厚,宜居程度在深圳各区中表现突出 。

——百万旧改赋能沙头角,铸就璀璨未来——
【盐田百万旧改 田心工业区】
田心旧改作为沙头角深港国际旅游消费合作区的核心项目,以百万级体量重塑城市格局,未来伴随着田心工业区的更新改造进行稳步推进,将打造多功能、现代化、高品质的万象城叠加海港城2.0版综合体。
信息来源:《盐田区产业发展第十四个五年规划》
——凝萃时代美学,缔造高品生活——
【极简美学 镌刻城市经典】
外立面采用真石漆、铝板幕墙及中空LOW-E玻璃,以现代极简美学打造历久弥新的城市地标。
中空LOW-E玻璃公建化立面:有效隔音、阻隔紫外线,营造舒适室内环境;
铝板线条:赋予建筑挺拔质感,外立面精致大气。
【高品公区 悦享高配社区生活】
项目以人性化高定标准,尽心打磨公区及居所,融合东境西韵设计理念,集奢华、现代美学的元素,注重奢华感和仪式感,采用超现代立面风格和艺术弧线角设计打造酒店化品质入户大堂。

【盐田新规住宅产品,72㎡即可做三房】
高规格通透户型产品,建面约72-99㎡3-4房,精心打造约2.4m进深阔景阳台,拓展空间更多可能性,为居者提供充足的休闲与活动区域。
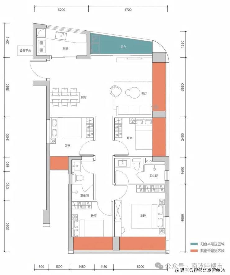
户型鉴赏:
免责声明:部分信息来源于网络,如果侵权,请联系400-823-9396及时删除
✅本项目暂不接受临时到访,过来参观样板房请记得提前来电预约!
新规为上海高品质住宅建设提供了明确标准,其最大亮点是调整了阳台设计有关规范,最大程度回应市场对宽敞阳台的需求。随着上海住宅品质提升进入规范化、标准化的新阶段,住房市场的产品力有望迎来一轮集中释放。
记者9月27日从上海市规划资源局获悉,《关于进一步促进本市住宅品质提升的规划资源若干意见》已于近日出台。《若干意见》共有5大类、17条具体举措。
业界认为,新规为上海高品质住宅建设提供了明确标准,其最大亮点是调整了阳台设计有关规范,最大程度回应市场对宽敞阳台的需求。随着上海住宅品质提升进入规范化、标准化的新阶段,住房市场的产品力有望迎来一轮集中释放。
提升居住体验
《若干意见》在阳台、架空层、建筑立面方面的计容标准有新变化。上海住房新规落地后,一线城市已全部调整放宽计容规范,带来未来居住舒适度的全面升级。
阳台是一个家庭与室外形成交互的连接点,功能早已超越晾晒衣物的单一属性,增加了休闲互动、花园造景、收纳储物等场景。这种变化反映出了现代家庭对宽敞阳台日益增长的需求。
此次新规提出的阳台设计变化最大。同时符合以下条件的阳台(含封闭阳台),面积按其水平投影面积的1/2计入容积率:每户阳台水平投影总面积不大于该户型建筑面积的10%,且不大于16平方米(含16平方米),户型建筑面积小于80平方米的,可以设置总面积不大于8平方米的阳台;每个阳台的设计进深(取阳台围护结构外围至外墙面的最大垂直距离)不超过1.8米(含1.8米)。
以前,阳台按50%计入容积率的条件是,面积不超过8平方米,进深不大于1.8米。如果是一套140平方米的户型,阳台最大8平方米,实际计容4平方米,市民免费享受多出的4平方米。新规是按照“比例+阈值”双控,即不超过户型的10%,且不超过16平方米,进深不超过1.8米,按照一半计容。那么此时,140平方米的户型,阳台最高可设计为14平方米,实际计容7平方米,市民免费享受另外7平方米,比以前多了3个平方米。
沿公共绿地、广场河流、风貌街道等地区,设计进深不超过0.75米(含0.75米)的带围护结构的开敞式阳台,其建筑面积不计入容积率,不计入可售面积,且不计入户型建筑面积10%的阳台面积。也就是说,在具有景观优势的局部地区,有额外的阳台面积奖励。
“这对购房者而言是实实在在的利好。无论是通风、采光还是与户外交互,阳台的功能进一步拓展,市民们可以住得更舒适。”一位克而瑞研究中心资深分析师说。
新规还引导开发商优化住宅户型设计,适应家庭人口数量和结构变化的需求,新建住宅鼓励灵活可变的户型设计,增加储物收纳空间、多功能弹性空间,提升自然采光率与通风效率。
引导好设计变成产品力
在提升小区整体环境品质方面,新规也有变化。
为了丰富建筑形态和整体效果,明确对住宅建筑外立面采用干挂石材、金属、陶板或其他高品质材料,在“多测合一”测绘成果报告中明确饰面层建筑面积的,其饰面层不计入容积率。
专家表示,变化的重要意义是,用实在的政策利好去鼓励房企进行高品质建设。过去上海的建筑规范较严格,近两年上海新房得房率普遍75%左右,很多企业不愿意做石材干挂,主要原因是以前的容积率要从外墙算起,石材干挂和墙体的中空部分也算作容积率,所以房企不愿牺牲可售面积而投入成本,导致得房率下滑。新规之后,开发商使用高品质外立面的经济成本大幅下降,有望推动高端建材在住宅项目中的普及。
再比如,多高层住宅底层设置架空层、风雨连廊用作通道、布置景观小品、居民休闲设施等公共用途的,其建筑面积不计入容积率。这将推动房企把好设计从过去的“经济负担”变成了提升产品溢价和品牌价值的主动选择,激活创新意识。
据悉,新规自9月26日起施行,主要适用于上海农村自建房外的住宅项目。保障性租赁住房、旧住房成套改造或拆除重建项目另有规定按相关规定执行。
短期来看,新规对住宅价格的直接影响有限,不会引发明显波动。不过,如果将其与此前落地的楼市新政形成政策合力,将有效为消费者注入市场信心。上海易居房地产研究院副院长严跃进表示:“上海住房设计新规的出台,有望为‘金九银十’传统销售旺季的市场行情提供有力支撑,进一步激励开发商打磨产品力,推出更具市场竞争力的住宅项目。”
声明:本文由入驻焦点开放平台的作者撰写,除焦点官方账号外,观点仅代表作者本人,不代表焦点立场。
