中建白云之星(售楼处)首页网站- 中建白云之星营销中心- 中建白云之星欢迎您-楼盘详情-最新价格-户型图-容积率@售楼处2025/7/31
扫描到手机,新闻随时看
扫一扫,用手机看文章
更加方便分享给朋友
「中建白云之星」营销中心热线:400-8328-772「售楼处24h在线」
中建白云之星售楼处电话:400-8328-772☎【营销中心电话】
✅本项目暂不接受临时到访,过来参观样板房请记得提前来电预约!
✅为您安排楼盘现场销售全程接待并讲解,给您更贴心的看房体验!
若有中介报价过低,请及时与售楼中心核对真假,避免上当!开发商热线400-8328-772【☎☎首页已认证】
在售户型图丨项目介绍丨最新房源丨周边配套丨详细解答〢
◆开发商营销中心诚挚邀请,一键预约,尊享内部独家折扣!匠心独运的精品项目,恭候您的品鉴与选择。
【项目位置】设计之都·黄边公园旁
【开发商】中建三局✖白云开发
【计容面积】约85万㎡
【总建筑面积】约112万㎡
左学校右公园 近14号线二期彭边(建设中)、鹤南(建设中)地铁双站
白云主轴位置近享多维配套 中建三局匠心智造 白云主轴上打造封面之作
一、实力品牌|中国建筑排头兵 实力铸就城市智慧恒产
中国建筑|中建三局:全球最大的投资集团之一——中建集团旗下最具竞争力的优秀排头兵。
参建50余座300米以上超高楼及8座摩天大楼,缔造“深圳速度”和“中国速度”建筑新奇迹。
累计荣获15项国家科技进步奖,300余项鲁班(国优)奖。(文字来源:中建三局官网,信息采集时间为2025年1月)
中建之星:首进广州,匠造高端人居范本
中建之星作为中建三局城市投资运营有限公司重点开发的高端产品系,深度融入京津冀、粤港澳大湾区及长三角等国家战略区域,打造新一代产城融合品牌——“中建之星”地标级城市综合体。
始终立足城市优质版块,匠造城市高端人居典范。
2025年时代开篇,中建之星系作品首进广州,落子白云,致敬白云高端改善客群,打造迭代跃级的超级大城范本!
二、核芯地段|白云主轴设计之都 千亿级投资产业集群
白云主轴向北发展,未来十年发展看设计之都
【五大产业】建筑、工业、时尚、芯片、文化创意
【九大项目】设计殿堂、云谷公园、红点广场等
【大师云集】中国工程院院士何境堂院士,国际著名服装设计师计文波已入驻。
视频来源网络,侵删
三、超强规划 | 城市更新,焕新板块活力
黄边城市更新项目改造范围共39.11公顷(数据来源:广州市规划和自然资源局白云区分局,信息采集时间为2025年1月),位于设计之都核芯地带。
通过成片连片更新改造,将协同设计之都一期城市风貌、公共空间,集聚产业用地布局。
通过高标准配置学校、市政设施、绿地及产业配套等公共服务设施整体提升片区人居生活配套及环境。
建设广州设计之都前沿设计、创意乐活的创新应用示范区。(信息来源:广州市人民政府门户网站,信息采集时间为2025年1月)
四、共享广州设计之都 总规划面积约2平方公里先行城市
【互联先行】与世界互联 盛集一城繁华
交通 | 四横四纵交通路网,便利通达大湾区
地铁2号线:距黄边站(运营中)直线距离约800m,3站白云新城,直达江南西,广州南。1站换乘嘉⽲望岗(地铁2/3/14号线交汇)。
地铁14号线二期:近彭边(建设中)直线距离约300米、鹤南(建设中)直线距离约800米,直达火车站,预计2025年开通(信息采集时间为2025年1月,最终开通日期以广州地铁等相关部门公布为准)。
商业 | 商业综合体荟萃,尽享大城烟火
直线距离约600m直达时光汇(8万㎡商业综合体);
直线距离3km内更有云门NEW PARK、金铂广场、白云汇、安华汇集中式商业中心,近享吃喝玩乐购一站式繁华生活。
医疗 | 近两大综合医院,时刻为健康护航
直线距离5km内囊括两家综合医院,分别是广州医科大学附属市八医院,南方医院白云分院。
为业主和家人健康时刻保驾护航。
【人文先行】引进九年一贯制名校,家门口优教
项目内部规划配建一所九班幼儿园,西侧即华中师范大学白云学校。
2024年10月18日,白云区政府与华中师范大学签订战略合作协议。
双方共同打造华中师范大学白云学校,这所学校是华中师范大学在广州地区正式签约的首个基础教育阶段学校,选址正是在设计之都板块!(信息来源:广州市白云区政府官网,信息采集时间为2025年1月,最终以教育局当年入学政策为准)
华中师大附中实绩可查,师资力量尤为引人注目(信息采集时间为2025年1月,最终以教育局当年入学政策为准)。
【自然先行】四大公园环绕 风景常驻身边
项目紧邻黄边艺术公园,未来将与黄边文化公园、活力运动公园、云谷生态公园四大主题公园相串联,形成自然与人文共生的活力空间。
黄边艺术公园(建设中):阳光草坪(占地面积约4000㎡)、营造露营、野餐自然生活场景;游龙景墙、彩虹桥、艺术卡座,丰盈漫步休闲之旅;
黄边文化公园(规划中):举办各类民俗活动、周末市集、艺术展览等活动
活力运动公园(规划中):配置乒乓球、羽毛球、篮球等运动场所,重拾运动乐趣;
云谷生态公园(规划中):休闲漫步、健康跑步、亲子游乐、老友下棋等美好生活在此延伸。
【艺术先行】三大艺术设计 成就艺术审美日常
中国美院教授宋建明大师色彩艺术设计,让美与生活融为一体。家门口的莫奈艺术世界,一幅画一个场景,真切把莫奈的美看到眼里。
莫奈艺术灵感高定会所,雅致辉映的旋转楼梯、花岛庭院和花园泳池,把游艺莫奈真境变成日常。
【智慧先行】多维智慧配置 全方位智能守护
新城建标准:智慧城市管理服务、智能化市政基础设施、智慧社区与智慧园区、绿色低碳,CIM+全场景智慧统筹给生活隐形智能守护;
智能化建造标准:智慧工地系统、智能装备集控系统、绿色低碳系统等,为社区全生命周期生产和管理提供智能支撑。
户型设计 | 阶梯式的产品级配
首开地块:项目8#地块
首开楼栋:1栋、2栋
首开户型:建筑面积约128㎡ -173㎡
3梯4户设计。其中3栋是两梯两户大平层,建面约226平,是设计之都最大的户型。

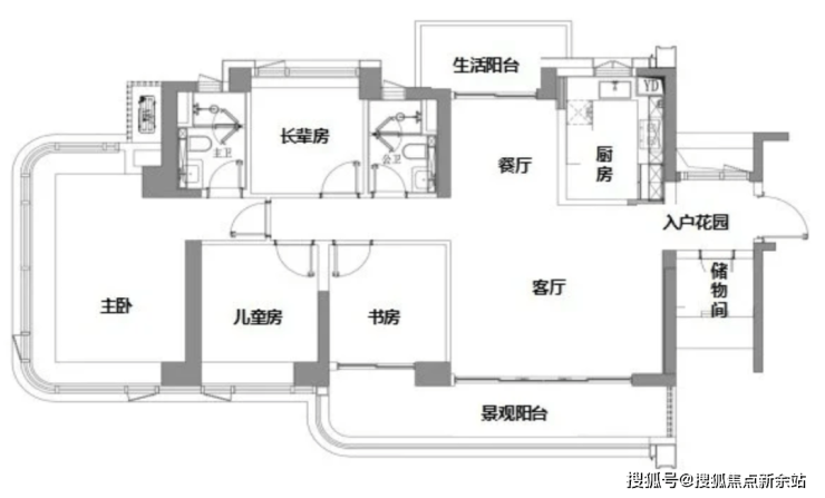
128㎡四房两卫:宽幕观景大宅,户型方正,布局合理。客厅连接景观阳台,采光通风良好,可享受宽幅视野。卧室设计舒适,长辈房、儿童房、书房一应俱全,满足家庭多样化需求。

143㎡四房两卫:空间更加阔绰,生活阳台与景观阳台相呼应,增加了空间的通透感。主卧套房设计,配备独立卫生间和储物间,保障主人的私密性和舒适性。

173㎡四房两厅两卫:三代同堂的理想之选,户型设计充分考虑家庭成员的需求。宽敞的客厅、独立的书房,以及多个卧室,让一家人既能享受欢聚时光,又能拥有各自的独立空间。

「中建白云之星」营销中心热线:400-8328-772「售楼处24h在线」
中建白云之星售楼处电话:400-8328-772☎【营销中心电话】
✅本项目暂不接受临时到访,过来参观样板房请记得提前来电预约!
✅为您安排楼盘现场销售全程接待并讲解,给您更贴心的看房体验!
若有中介报价过低,请及时与售楼中心核对真假,避免上当!开发商热线400-8328-772【☎☎首页已认证】
在售户型图丨项目介绍丨最新房源丨周边配套丨详细解答〢
◆开发商营销中心诚挚邀请,一键预约,尊享内部独家折扣!匠心独运的精品项目,恭候您的品鉴与选择。
免责声明:本文如无意中侵犯了某方的知识产权告知即删,部分内容图片可能来源于网络,无法核实其真实出处,如涉及侵权请联系本网站删除!!
声明:本文由入驻焦点开放平台的作者撰写,除焦点官方账号外,观点仅代表作者本人,不代表焦点立场。
