深圳星河盛境楼盘详情_最新房价_售楼处电话_户型图_配套_地址
扫描到手机,新闻随时看
扫一扫,用手机看文章
更加方便分享给朋友
深圳【星河盛境】销售中心电话:400-873-0112(中介勿扰)
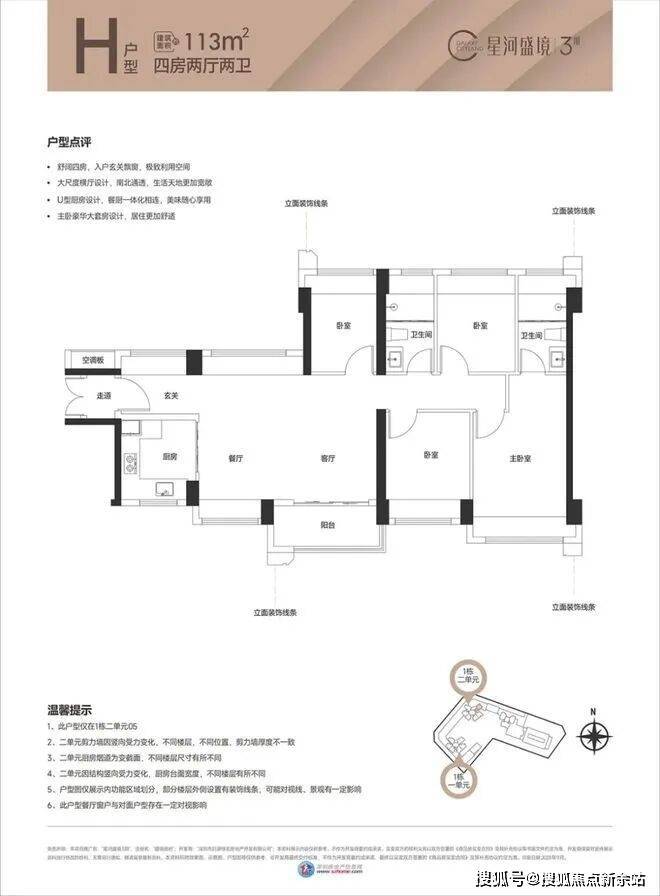
楼盘最新价格,户型图,地址,电话,样板房,周边配套,项目介绍
温馨提示:绝不收取任何费用,请提前1小时预约看房,以免带来不好的看房体验
——————————————————————————
星河·盛境三期,以约54万平方米的宏大规模,精心规划集住宅、商业、公寓、办公等多业态于一体的城市综合体,旨在打造一座融合现代生活美学与高端居住品质的新地标。项目承袭星河品牌匠心独运的建筑理念,旨在为都市精英量身定制理想人居典范,引领区域生活品质升级,成就城市新名片。
交通配套:3号线∣永湖站,2站大运,8站罗湖。
14号线∣坳背站,1站大运,5站罗湖,6站福田。
21号线(规划中)∣坳背站,4 站坂田,8 站南山。
城际快线速达全城:大运站可换乘33 号线(规划中),未来7站可达机场东,快速通往西部。
五纵四横多维路网
五纵∣水官高速(约800米)、龙岗大道、红棉路、沈海高速、龙翔大道。
四横∣安红路、南坪快速、广达路、惠盐路。
商业配套
「星河盛境」家门口有超13万㎡商业(星河盛境约4.4万㎡,卓弘星辰约3.6万㎡(在建)、星河智荟约2万㎡、名居山河里约3万㎡(在建))。
深圳【星河盛境】销售中心电话:400-873-0112(中介勿扰)
5公里内有星河COCOPark、龙岗山姆会员店、SKY MALL、天光城等知名商业体环伺,尽揽都市繁华便利。
教育配套
星河盛境3期家门口规划有1所小学,1所九年制公办学校。
另外根据龙岗区教育局最新的学区划分,小学学区划分在保安学校小学部,初中学区划分在保安学校初中部,园山实验学校;
还值得一提的是香港中文大学附属时进学校(待建),信义外国语学校(待建,该校是龙岗教育局与深圳外国语学校合作共建),后期看这2所学校会不会划进学区范围内。
医疗配套
三院:龙岗区第三人民医院、深圳龙翔医院、北京中医药大学深圳医院(园山院区),优质医疗资源配备,家人健康更安心。
文体配套
两体:大与文体中心,园山文体中心(在建),体验不一样的都市生活。
四馆:大运体育馆、三馆一城等休闲健身游乐设施。
生态配套
五园:园山风景区、桐基山郊野公园、横岗人民公园、大运公园,公众高尔夫球园场
项目基本信息
【项目名称】星河盛境3期
【开发商】深圳市巨源恒名房地产开发有限公司
【物业公司】深圳星河智善生活股份有限公司
【物业类型】住宅、商业、办公、公寓
【产品面积】约83-113㎡3-4房
【占地面积】约3.7万㎡
【建筑面积】约26万㎡
【梯户比】3梯6户
【产权年限】70年
◆ 开发商营销中心诚挚邀请,为您安全和隐私保驾护航,一键预约,尊享内部折扣!匠心独运的精品项目,恭候您的品鉴与选择。 过来参观样板房烦请记得提前来电预约!安排楼盘现场销售全程接待并讲解,给您更贴心的看房体验!
关于本项目最新动态信息,如:在售房源价格,热门户型面积,限时特惠活动,等等,未推售楼栋分布,整体销售情况,临近地铁线路及出入口方位,区域发展蓝图,楼盘核心亮点与待完善细节以及教育资源配套情况等等均可拨打售楼处热线咨询,我们将为您对接专属资深置业顾问进行细致讲解!
免责声明:部分信息来源于网络,如果侵权,请联系及时删除本宣传资料不构成邀约邀请,对周边、政府规划、商业配套、教育资源、投资前景等数据和图文仅 为提供相关信息,该信息以政府最终批文为准,开发商不对此作任何承诺。买卖双方的权利义务以双方签订的买卖合同约定及附件、实际交付为准,本公司保留对宣传资料修改的权利,敬请留意最新资料。联系号码400-873-0112。
声明:本文由入驻焦点开放平台的作者撰写,除焦点官方账号外,观点仅代表作者本人,不代表焦点立场。
