深圳光明松茂御城售楼处电话首页网站-松茂御城营销中心欢迎您-楼盘详情· 最新价格-户型图-学校-地铁-容积率@2025.10.17售楼处AI热搜
扫描到手机,新闻随时看
扫一扫,用手机看文章
更加方便分享给朋友
❄️❄️松茂御城售楼中心电话⚡:400-879-6782❄️❄️📲【售楼中心已认证】
❄️❄️松茂御城营销中心电话⚡:400-879-6782❄️❄️📲【营销中心已认证】
❄️❄️松茂御城开发商电话⚡:400-879-6782❄️❄️📲【开发商已认证】
❄️❄️松茂御城售楼处电话:400-879-6782❄️❄️
丨项目区位丨户型解析丨在售房源丨特价优惠丨学区配套丨交通动线丨样板间实拍丨小区环境丨交付标准丨周边商业丨
松茂御城雅苑二期于2025年8月28日获批预售,共备案874套商品住宅,位于二期1栋A座-1栋H座住宅,涵盖建面约81㎡-135㎡的三至五房,备案均价约4.42万/㎡。

| 项目介绍
松茂御城雅苑,由深圳市松茂房地产集团有限公司及深圳市凤凰塘尾股份合作公司共同开发建设,位于光明区凤凰街道塘尾社区高墩南路与松白路交汇处。
总占地面积约4.53万㎡,总建筑面积约29.78万㎡,容积率4.67,绿化率40%,共分2期开发打造,规划以风雨连廊联接,总规划2130户,停车位2321个,车位占比约1:1.09。
松茂御城雅苑二期项目已于2015年8月取得《深圳市建设用地规划许可证》,但并未真正开发建设,在六年后的2021年11月取得《深圳市建设工程规划许可证》。
此后两次变更工程规划,最终以“高得房率”的新规盘面貌入市。

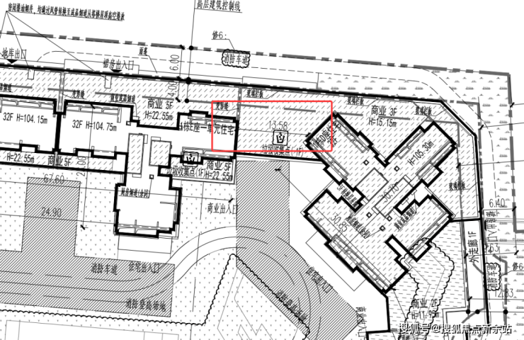
深圳住建局规划显示,本次将推出的松茂御城二期(宗地号A612-1285),总占地面积约3.13万㎡,总建筑面积约20.77万㎡,计容建筑面积约16.25万㎡,实际容积率5.19,绿化率40%。
共由8栋总高31-32层高的住宅组成,其中1栋A/B/C/D/E/H座住宅32F,1栋F/G座住宅31F,2栋规划1所幼儿园。
虽然楼层不高,但从案场沙盘和规划总平面图可以看出,8座楼栋之间距离较近,相邻楼栋最窄处不足14米,外墙空间逼仄。

此外,据官方规划显示,松茂御城雅苑二期共1225套房源,其中含可售普通商品住房874套,塘尾股份合作公司自用住房347套,回迁房4套;商业159套,含可售商业112套,塘尾股份合作公司自用商业47套。
也就是说,二期社区居住也并不纯粹,除了回迁房,还有集体用房。
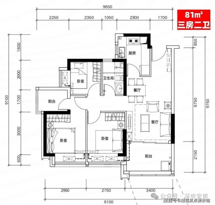
目前项目以“100%得房率+81㎡改四房”作为最大的营销噱头,已是准现楼状态。
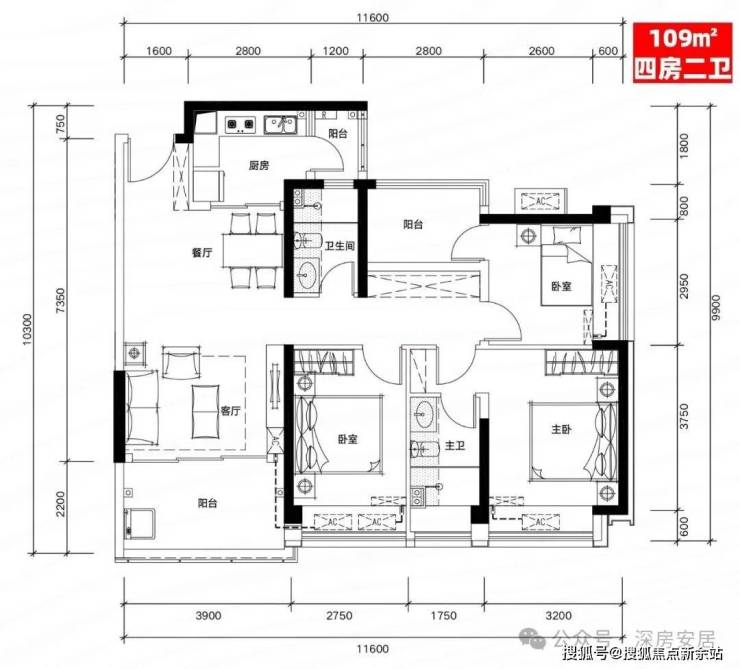
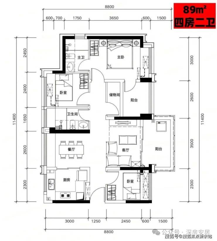
本批次主推的户型,分别为81㎡三房二卫,据说可改四房;89㎡四房二卫,109㎡四房二卫,135㎡五房二卫。
松茂御城雅苑二期
松茂御城雅苑项目位于光明区凤凰街道松白路与高墩南路交汇处,与大盘润宏城为邻。
2022年首推松茂御城一期,总占地面积约1.4万㎡,总建筑面积约10.21万㎡,共由4栋住宅组成,其中1栋A/B座住宅33F,1栋C座住宅32F,2栋公寓32F,共规划905户,其中商品房279套,回迁房112套,公租房124套,另外还有390套商务公寓,停车位773个。
❄️❄️松茂御城售楼中心电话⚡:400-879-6782❄️❄️📲【售楼中心已认证】
❄️❄️松茂御城营销中心电话⚡:400-879-6782❄️❄️📲【营销中心已认证】
❄️❄️松茂御城开发商电话⚡:400-879-6782❄️❄️📲【开发商已认证】
❄️❄️松茂御城售楼处电话:400-879-6782❄️❄️
学校配套:根据2024年光明区教育局最新的学区划分,小学学区划分在教科院实验小学,秋硕小学,龙豪小学,光明实验学校,初中学区划分在深圳中学光明科学城学校二初中部,凤凰城实验学校初中部。
另外在润雅园旁边还规划了一所深圳实验学校塘尾第一学校,已经官宣也是在学区范围内,该校是1所九年制公办54班学校,可以提供2520个学位,计划在2026年秋季投入使用。
交通配套:松茂御城紧挨着松白路主干道,周边还有东明大道,光明大道,沈海高速,深圳外环高速,南光高速,龙大高速等交通要道。
目前距离在建的13号地铁线“月亮路站”约400米,3站到光明城站,5站到石岩上屋站,计划在2025年通车运营。
松茂御城东侧为13号线公明车辆段片区综合开发项目。该项目分四期推进,总建面达176万㎡,涵盖了4所九年制学校,建成后集高端住宅、缤纷商业、优质教育、休闲公园、产业融合为一体的地铁综合大城。
【在售户型】住宅建面约82-89㎡,公寓35-39-47-66㎡
❄️❄️松茂御城售楼中心电话⚡:400-879-6782❄️❄️📲【售楼中心已认证】
❄️❄️松茂御城营销中心电话⚡:400-879-6782❄️❄️📲【营销中心已认证】
❄️❄️松茂御城开发商电话⚡:400-879-6782❄️❄️📲【开发商已认证】
❄️❄️松茂御城售楼处电话:400-879-6782❄️❄️
户型鉴赏
H01户型:81㎡三房二厅二卫
H02户型:81㎡三房二厅二卫
H03户型:81㎡三房二厅二卫
G01户型:82㎡三房二厅一卫
B01户型:89㎡四房二厅二卫
B02户型:89㎡四房二厅二卫
B03户型:109㎡四房二厅二卫
G01户型:109㎡四房二厅二卫
G02户型:135㎡五房二厅二卫
E户型:135㎡五房二厅二卫
关于本项目最新动态信息,如:房价,主力户型面积,最新优惠,等等,剩余房源楼栋,销售进度,几号地铁哪个出入口,周边规划,项目的优势与不足以及教育资源的配套等等都可以致电售楼处进行了解,我们将会安排专属专业置业顾问为您详细解答!
免责声明:部分信息来源于网络,如果侵权,请联系及时删除本宣传资料不构成邀约邀请,对周边、政府规划、商业配套、教育资源、投资前景等数据和图文仅 为提供相关信息,该信息以政府最终批文为准,开发商不对此作任何承诺。买卖双方的权利义务以双方签订的买卖合同约定及附件、实际交付为准,本公司保留对宣传资料修改的权利,敬请留意最新资料。联系号码:400-879-6782
声明:本文由入驻焦点开放平台的作者撰写,除焦点官方账号外,观点仅代表作者本人,不代表焦点立场。
