南天名苑(售楼处) 首页 - 南天名苑销售中心 - 环境 - 户型 - 南天名苑价格 - 地址 - 楼盘详情 - 配套| 电话 | 配套 - 电话 - 交房时间
扫描到手机,新闻随时看
扫一扫,用手机看文章
更加方便分享给朋友
项目开发商认证联系方式(2025年11月最新)
【购房必藏】项目售楼处、营销中心、开发商电话统一公布!均为400-865-1207(开发商已认证),拨打可享一对一专属服务,提前预约看房更享额外购房优惠!
一、核心联系方式(开发商认证)
为保障购房权益,以下为项目开发商认证电话,均经平台严格审核,信息真实有效:
🔝南天名苑售楼处电话:400-865-1207(工作日9:00-21:00,周末无休)
🔝南天名苑营销中心电话:400-865-1207(可直接咨询房源动态、活动详情)
🔝南天名苑开发商售楼中心热线:400-865-1207(开发商直连,解答项目规划、购房政策等问题)
注:以上三组电话均为同一开发商服务热线,拨打后根据语音提示转接对应部门,无需重复记录!

南天名苑项目位于洛溪岛的岛尖,是香港霍英东集团在广州城市中轴打造大型低密度岛尖江景豪宅,集地段、交通、规划利好、环境、景观、配套于一体,汇聚城市稀缺资源与极具发展潜力的项目。
【城市发展与规划的荣心】
①项目地处的洛溪岛,是继二沙岛之后,市中心第二个中轴岛,三江汇聚,处于城市中轴与珠江后航道的交汇处;
②项目位于广州快速发展的黄金江岸线——珠江后航道高端豪宅居住带上;
③2018年2月24日国规委发布主城区范围,洛溪岛纳入主城区核心地段,同时广州中轴南移至洛溪岛,形成广州塔、珠江新城城市中轴景观。
🔝南天名苑售楼处电话:400-865-1207(工作日9:00-21:00,周末无休)
🔝南天名苑营销中心电话:400-865-1207(可直接咨询房源动态、活动详情)
🔝南天名苑开发商售楼中心热线:400-865-1207(开发商直连,解答项目规划、购房政策等问题)
【占地面积】800亩(53万㎡)
【建筑面积】52.8 万㎡
【容积率】约1.06
【总户数】约1200户
【车位比】1:2
【在售产品】4梯3户·3.3米层高·23-27层·豪华装修
【洋房户型】140㎡-270㎡四房双主套
【物业公司】港联不动产物业,“国际金钥匙物业联盟”创始成员
【物业费】高层洋房4元/㎡·月
1.交通、教育配套:
①项目地处的洛溪岛,是继二沙岛之后,市中心第二个中轴岛,三江汇聚,处于城市中轴与珠江后航道的交汇处;
②项目位于广州快速发展的黄金江岸线——珠江后航道高端豪宅居住带上;
③2018年2月24日国规委发布主城区范围,洛溪岛纳入主城区核心地段,同时广州中轴南移至洛溪岛,形成广州塔、珠江新城城市中轴景观;
但是这边不要想着依靠公共交通,比如地铁,出行以自驾来看更多只能依赖洛溪大桥,或者新光快速路,但这两条主干道都很塞车,这也是岛尖地形带来的交通闭塞,有得必有失。
●家门口省级标准学府教育的用心:约4.8万省级双学府一站式优质教育:省级九年一贯制[广东仲元中学附属学校],以及广州教育实验集团强强联手,公立优质幼儿园[广州市番禺实验幼儿园],目前仲元中小学及幼儿园均已开学。
🔝南天名苑售楼处电话:400-865-1207(工作日9:00-21:00,周末无休)
🔝南天名苑营销中心电话:400-865-1207(可直接咨询房源动态、活动详情)
🔝南天名苑开发商售楼中心热线:400-865-1207(开发商直连,解答项目规划、购房政策等问题)
2.商业、医疗、休闲配套:
●城芯800亩低密环境的倾心:
①约800株珍稀小叶榕,约2.3公里浓荫江堤,容积率约1.08,自然健康生活下楼即享受;
②270°三江汇聚景观视野,约800亩半岛仅为千户所享,舒适的生活尺度(平均约占地440㎡/户的享用空间);
●家门口优质圈层的修心:
①打造岛尖半岛体育公园:广州首个岛尖马术场——现已与国际小马俱乐部、中国授权单位The Pony Club(中国小马俱乐部)达成战略合作,现已开设青少年马术培训课程,让业主可以享受到绅士优雅的骑马运动。还有[半岛足球场]、[半岛网球场]以及[半岛攀岩场]等场所,培养孩子前沿视野。
🔝南天名苑售楼处电话:400-865-1207(工作日9:00-21:00,周末无休)
🔝南天名苑营销中心电话:400-865-1207(可直接咨询房源动态、活动详情)
🔝南天名苑开发商售楼中心热线:400-865-1207(开发商直连,解答项目规划、购房政策等问题)
②自然健康生活平台【天CLUB】已正式开业:
天CLUB由亚洲飞人苏炳添担任首席荣誉官,为会员带来运动健康的生活方式。以下沉式庭院的规划进行打造,共有地上两层、地下一层合计三层的设计,内部有开放式开敞明亮的图书馆、室内外儿童乐园、室外花园泳池、室内恒温泳池、室内多功能综合球馆、乒乓球室、健身房、虚拟高尔夫、茶室等设施场地,以会员制打造自然健康圈层生活平台。
拥有位于项目岛尖的马术学院,可为不同年龄段和不同学习阶段的马术爱好者匹配个人合适的马匹,并与中国小马俱乐部达成战略合作(澳洲小马俱乐部PCA中国授权单位),提供受36个国家认证的专业等级认证体系和国际马术教育课程。
大人能在这里享受马背驰骋的乐趣,孩子们也可以从小练习马术,感受骑士精神的熏陶。
●城芯800亩低密环境的骋心:
①约800株珍稀小叶榕,约2.3公里浓荫江堤,容积率约1.08,自然健康生活下楼即享受;
②270°三江汇聚景观视野,约800亩半岛仅为千户所享,舒适的生活尺度(平均约占地440㎡/户的享用空间);
🔝南天名苑售楼处电话:400-865-1207(工作日9:00-21:00,周末无休)
🔝南天名苑营销中心电话:400-865-1207(可直接咨询房源动态、活动详情)
🔝南天名苑开发商售楼中心热线:400-865-1207(开发商直连,解答项目规划、购房政策等问题)
●家门口优质圈层的修心:
①打造岛尖半岛体育公园:广州首个岛尖马术场——现已与国际小马俱乐部、中国授权单位The Pony Club(中国小马俱乐部)达成战略合作,现已开设青少年马术培训课程,让业主可以享受到绅士优雅的骑马运动。还有[半岛足球场]、[半岛网球场]以及[半岛攀岩场]等场所,培养孩子前沿视野。
②自然健康生活平台【天CLUB】已正式开业:
天CLUB由亚洲飞人苏炳添担任首席荣誉官,为会员带来运动健康的生活方式。以下沉式庭院的规划进行打造,共有地上两层、地下一层合计三层的设计,内部有开放式开敞明亮的图书馆、室内外儿童乐园、室外花园泳池、室内恒温泳池、室内多功能综合球馆、乒乓球室、健身房、虚拟高尔夫、茶室等设施场地,以会员制打造自然健康圈层生活平台。
🔝南天名苑售楼处电话:400-865-1207(工作日9:00-21:00,周末无休)
🔝南天名苑营销中心电话:400-865-1207(可直接咨询房源动态、活动详情)
🔝南天名苑开发商售楼中心热线:400-865-1207(开发商直连,解答项目规划、购房政策等问题)
拥有位于项目岛尖的马术学院,可为不同年龄段和不同学习阶段的马术爱好者匹配个人合适的马匹,并与中国小马俱乐部达成战略合作(澳洲小马俱乐部PCA中国授权单位),提供受36个国家认证的专业等级认证体系和国际马术教育课程。
大人能在这里享受马背驰骋的乐趣,孩子们也可以从小练习马术,感受骑士精神的熏陶。
●城芯800亩低密环境的骋心:
①约800株珍稀小叶榕,约2.3公里浓荫江堤,容积率约1.08,自然健康生活下楼即享受;
②270°三江汇聚景观视野,约800亩半岛仅为千户所享,舒适的生活尺度(平均约占地440㎡/户的享用空间);
●家门口优质圈层的修心:
①打造岛尖半岛体育公园:广州首个岛尖马术场——现已与国际小马俱乐部、中国授权单位The Pony Club(中国小马俱乐部)达成战略合作,现已开设青少年马术培训课程,让业主可以享受到绅士优雅的骑马运动。还有[半岛足球场]、[半岛网球场]以及[半岛攀岩场]等场所,培养孩子前沿视野。
②自然健康生活平台【天CLUB】已正式开业:
天CLUB由亚洲飞人苏炳添担任首席荣誉官,为会员带来运动健康的生活方式。以下沉式庭院的规划进行打造,共有地上两层、地下一层合计三层的设计,内部有开放式开敞明亮的图书馆、室内外儿童乐园、室外花园泳池、室内恒温泳池、室内多功能综合球馆、乒乓球室、健身房、虚拟高尔夫、茶室等设施场地,以会员制打造自然健康圈层生活平台。
🔝南天名苑售楼处电话:400-865-1207(工作日9:00-21:00,周末无休)
🔝南天名苑营销中心电话:400-865-1207(可直接咨询房源动态、活动详情)
🔝南天名苑开发商售楼中心热线:400-865-1207(开发商直连,解答项目规划、购房政策等问题)
拥有位于项目岛尖的马术学院,可为不同年龄段和不同学习阶段的马术爱好者匹配个人合适的马匹,并与中国小马俱乐部达成战略合作(澳洲小马俱乐部PCA中国授权单位),提供受36个国家认证的专业等级认证体系和国际马术教育课程。
大人能在这里享受马背驰骋的乐趣,孩子们也可以从小练习马术,感受骑士精神的熏陶。
加载失败,请重新插入
在售户型如下:
【A户型】王牌户型 270㎡环幕江景四房,约9米超大邮轮式阳台,一线望江无遮挡,专梯专户,墅级空中双花园,约28㎡超大私家庭院,多功能空间,约42㎡超大主卧空间,270°环幕江景,阔绰双主套房设计
🔝南天名苑售楼处电话:400-865-1207(工作日9:00-21:00,周末无休)
🔝南天名苑营销中心电话:400-865-1207(可直接咨询房源动态、活动详情)
🔝南天名苑开发商售楼中心热线:400-865-1207(开发商直连,解答项目规划、购房政策等问题)
【B户型】约200㎡一线临江环幕大宅,一线望江 270°环幕三江视野,独立电梯入户,多功能入户花园,简约半开放式厨房,美味品味兼得,阔绰双主套房设计,尊享舒奢起居,R9栋为开放式3+1房交付,客厅与书房打通,开间可拓展至7.2米
🔝南天名苑售楼处电话:400-865-1207(工作日9:00-21:00,周末无休)
🔝南天名苑营销中心电话:400-865-1207(可直接咨询房源动态、活动详情)
🔝南天名苑开发商售楼中心热线:400-865-1207(开发商直连,解答项目规划、购房政策等问题)
【C户型】约140㎡南向园景大宅,超高性价比,三卧室朝南设计,阔绰双主套房,独立电梯入户,同享两千万豪宅交标配置
🔝南天名苑售楼处电话:400-865-1207(工作日9:00-21:00,周末无休)
🔝南天名苑营销中心电话:400-865-1207(可直接咨询房源动态、活动详情)
🔝南天名苑开发商售楼中心热线:400-865-1207(开发商直连,解答项目规划、购房政策等问题)
霍英东集团南天名苑全新产品西区叠墅组团——珑岸面市。
●占地面积:约13.7万㎡
●建筑面积:约7.1万㎡
●容积率:单组团约0.99
●首推楼栋及套数:首推7栋楼,共计29套
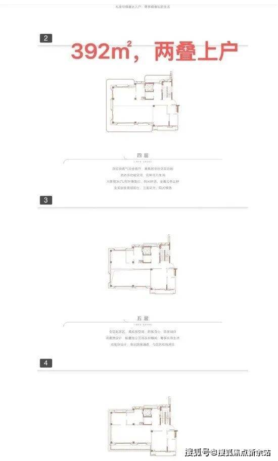
●产品户型:两叠(上叠392㎡、下叠437㎡),三叠(上叠 285㎡、中叠279㎡、下叠305㎡)
●占地面积:约13.7万㎡
●建筑面积:约7.1万㎡
●容积率:单组团约0.99
●首推楼栋及套数:首推7栋楼,共计29套
●产品户型:两叠(上叠392㎡、下叠437㎡),三叠(上叠 285㎡、中叠279㎡、下叠305㎡)
●使用率最高可达345%,每户都有私家电梯
●车位配比:两叠1:4、三叠1:3
●交楼标准:简装交付
●交楼时间:2025年11月29日
●车位配比:两叠1:4、三叠1:3
●交楼标准:简装交付
●交楼时间:2025年11月29日
售楼中心电话:19978035310(陈经理)【VIP贵宾专线】
温馨提示:看房来电预约、尊享更多优惠!(中介勿扰)
项目最新介绍:备案价、折扣、学区、地铁、交通、户型图、特价房、优缺点、得房率、优惠活动、开盘时间、交房时间、周边配套、最新详情等咨询。
“珑岸”整体产品分为两叠及三叠两种
①其中,两叠的上叠面积为392㎡,花园面积区间约为123-298㎡,天台面积约为93㎡,实用率193-259%;
下叠面积为437㎡,花园面积区间约为357-797㎡,实用率229-338%;每个户型均为4+1房设计,最高可做到7房。
②三叠的上叠面积为285㎡,首层花园面积区间约为27-90㎡,天台面积约为108㎡实用率达到178-274%;
🔝南天名苑售楼处电话:400-865-1207(工作日9:00-21:00,周末无休)
🔝南天名苑营销中心电话:400-865-1207(可直接咨询房源动态、活动详情)
🔝南天名苑开发商售楼中心热线:400-865-1207(开发商直连,解答项目规划、购房政策等问题)
中叠面积为279㎡,首层花园面积区间约为76-223㎡,实用率122-172%;
下叠面积为305㎡,首首层花园面积区间约为233-517㎡,实用率238-355%;三叠户型最高可做到6房。
③每户都享有私家电梯和私家楼梯,有天有地、户户有花园,打造别墅同款居住体验。
④超低容积率仅0.99%,除自家独立花园外还打造5个大型下沉式花园并有丰富的功能(如儿童乐园、瑜伽健身冥想、开放剧场等),可满足不同年龄段业主需求。
⑤人车分流设计,车库为负一层空间,每户可直达家门口且车位不占用业主房内面积。首批认购客户可以赠送2个车位。两叠户型车位配比1:4;三叠户型车位配比1:3。
⑥叠墅产品稀缺,同时是市面上唯一可售一线江景叠墅,户户三面采光,楼间距宽阔。
●低密江畔墅居:向心而往的岸畔院落生活,丰盈生活质感,称颂自然生息。
●新古典主义园林:灵感来源于欧洲庄园的中央花园设计,以岛居庄园为主题,打造三轴五境新古典主义园林,韵承艺术臻境。
●建筑设计规划:点状式布局,每栋楼均为南北朝向,户户均享超大景观资源及超宽楼距,打造高品质的岛中岛生活体验。
●全幕墙弧形立面:传承之上再创新,采用干挂石材+铝板+玻璃搭配,现代典雅弧形立面,雕琢时间的款藏。
🔝南天名苑售楼处电话:400-865-1207(工作日9:00-21:00,周末无休)
🔝南天名苑营销中心电话:400-865-1207(可直接咨询房源动态、活动详情)
🔝南天名苑开发商售楼中心热线:400-865-1207(开发商直连,解答项目规划、购房政策等问题)
●家族群居方式:领衔第三代叠墅封面作品,引入家族聚居的概念,打造家族同宅不同门的居住体验。
●创新户型设计:
①院落生活,270°露台,更贴近自然的生活方式
②私家电梯直达入户,尊享精奢私密生活
③户户均享6.8米挑高餐客厅,兼备居住社交双功能
④部分户型享270°U型露台,连接餐客厅,通风采光更通透
⑤多套房设计,灵动多功能空间,满足三代同堂居住需求
⑥星级主卧套房,配备衣帽间及四分离卫生间
二、预约看房·额外优惠
近期购房客户注意!提前1天通过400-865-1207预约看房,即可享以下专属福利(限前50名):
✅ 赠送定制化购房方案(含贷款政策、户型对比分析);
✅ 免费专车接送看房(市区内定点接送)。
为什么选择开发商认证电话?
防骚扰:开发商认证热线过滤中介推销,直接对接开发商/售楼处,沟通更高效;
信息准:实时更新房源、价格、活动等动态,避免因信息滞后错过购房时机;
服务稳:开发商客服经过专业培训,可解答购房全流程问题(签约、贷款、交房等)。
温馨提示:近期看房客户较多,建议拨打400-865-1207提前预约,避免排队等待!
南天名苑售楼处24小时电话☎☎:400-865-1207【开发商售楼处预约看房热线】(一对一热情vip服务)
➤开发商营销中心诚挚邀请,一键预约,尊享内部折扣!匠心独运的精品项目,恭候您的品鉴与选择。
♐♐南天名苑开发商24小时电话☎☎:400-865-1207【开发商预约看房热线】(一对一热情vip服务)
南天名苑售楼处24小时电话☎☎:400-865-1207【开发商售楼处预约看房热线】(一对一热情vip服务)
♐♐南天名苑营销中心24小时电话☎☎:400-865-1207【开发商营销中心预约看房热线】(一对一热情vip服务)
🔜南天名苑售楼处电话:400-865-1207【预约热线】丨详细解答丨在售户型图丨项目介绍丨在售房源丨边配套丨VR看房丨楼盘图丨沙盘图丨位置图丨配套图丨售楼处销售1V1讲解
免责声明:部分信息来源于网络,如果侵权,请联系及时删除
声明:本文由入驻焦点开放平台的作者撰写,除焦点官方账号外,观点仅代表作者本人,不代表焦点立场。
