「鸿荣源珈誉玖玺」售楼处丨「鸿荣源珈誉玖玺」首页网站-价格-电话-地铁-2025规划图-最新消息-楼盘详情-户型图-预约接待@鸿荣源珈誉玖玺营销中心
扫描到手机,新闻随时看
扫一扫,用手机看文章
更加方便分享给朋友
鸿荣源珈誉玖玺营销中心售楼处24小时电话:400-835-2501(中介勿扰)现场详细解答丨项目介绍丨户型图丨在售房源丨特价房丨学校丨交通位置丨样板房丨小区图片丨交房时间丨周边配套丨鸿荣源珈誉玖玺丨中国深圳(罗湖-南山-宝安-龙华-龙岗-福田-盐田)
宝安鸿荣源.珈誉玖玺
基础信息:
开发商:深圳市鸿荣源控股集团有限公司
物业:深圳市鸿荣源物业服务有限公司
占地面积:约4.79万平方米,园林面积约2.9万平
建筑面积:约40.5万平方米
总栋数:10栋(即将首推248套6栋和12栋124/137/169/199平)
总楼层:44--48层
层高:6栋楼王层高3.15米
总户数:2479户
车位:2831个
产品类型:(住宅)
梯户比:6栋两梯两户,12栋三梯五户
产权:70年(2022年5月至2092年5月)
状态:已开实体样板房(10月13号正式开盘)
户型面积:124/137/169/199平(四房)
备案价格(均价6.2万)
124平备案价709--731万,单价5.7--5.9万;
137平备案价798--822万,单价5.7--5.9万;
169平备案价1009--1050万,单价5.9--6.2万;
199平备案价1222--1271万,单价6.1--6.3万;
折扣价格:(10月13日开盘当天93折)
124平折后661--682万,单价5.36--5.53万;
137平折后744--766万,单价5.4--5.57万;
169平折后940--979万,单价5.58--5.8万;
199平折后1139--1184万,单价5.72--5.94万。
交楼:预计2026年精装
卖点:近地铁,大社区,约50万平商业综合体
注:需要看房了解可联系后台预约。
最新消息:位于深圳市宝安区沙井【珈誉玖玺】推出248套6栋和12栋124/137/169/199平四房户型,目前样板房已拍摄,有兴趣可联系后台,项目户型图和样板房视频放在文章底部。
开盘折扣:0.99(冻资)0.99(开盘)0.99(7天准签约)0.96(团购优惠)【+额外优惠请联系小编】
鸿荣源珈誉玖玺营销中心售楼处24小时电话:400-835-2501(中介勿扰)现场详细解答丨项目介绍丨户型图丨在售房源丨特价房丨学校丨交通位置丨样板房丨小区图片丨交房时间丨周边配套丨鸿荣源珈誉玖玺丨中国深圳(罗湖-南山-宝安-龙华-龙岗-福田-盐田)
【“玖”系瑧品 湾区全能生活大城封笔钜著】
约248万㎡人居全能生活大城,稀缺人居,私藏大平层,湾区圈层进阶首选!
基本信息:
【占地面积】:约4.79万㎡
【园林面积】:约2.9万㎡
【户型产品】:约124-199㎡臻奢4房
【装修情况】:带装修交付
【产权年限】:70年(2022.5-2092.5)
【项目地址】:深圳·宝安大道和凤塘大道交汇(11号线塘尾站)
【玖仰·圈层舒居】:建面约124-199㎡臻奢4房,稀缺大平层
【玖遇·围合式艺术大园林】
约2.9万㎡舒居艺术大园林
🌿围合式布局,最大楼间距约161米
源于西班牙著名画家《记忆的永恒》为灵感的超现实主义花园,打造多重梦境空间
【玖奢·品质生活—6栋】
纯板楼设计,二梯二户,外立面部分采用铝板,尽显品质;
入户大堂采用大理石地面及花纹石材墙面;
奢阔3.15m层高,体验归家礼序,尽享圈层人生
【玖享·全龄双泳池 礼遇归家礼仪轴线】
配备全龄子母双泳池、亲子乐园、交流花园,构建全龄活动功能配套,主出入口列阵式礼仪轴线,体现归家仪式感,品质尊崇感
区域价值【玖核·世界湾区国家战略加持 主导中心价值】
沙井不仅位于粤港澳大湾区发展轴心,更是国家重大战略所在地,前海扩容受益者。是深圳市空港新城的主要辐射和服务区,也是广深科技走廊的关键节点。随着大航空新城的建设,拥有海、陆、空、轨4维立体交通网络的沙井,将成为深圳西部的中心城区。
交通配套【玖畅·地铁直连 通达全城】
下楼即达地铁:直连地铁11号线,畅享都市便捷生活
地铁:家门口即11号线塘尾站,6站宝中、7站前海、9站后海、11站车公庙,便捷通达南山、福田核心片区
距离地铁口更近,更享便捷速达生活
商业配套【玖繁·百亿商业 咫尺繁华 】
下楼即享商业:百亿超级商圈,定鼎西部新中心
鸿荣源斥资打造又一湾区城市级购物中心
约50万㎡“湾区壹方”、约10万㎡“熊出没”主题华强广场
宝安首家山姆会员店、海岸城20万㎡商业,缤纷商业集聚
共筑百亿超级商圈,定义湾区城市商业新模式,定鼎西部新中心
教育配套
高质学府资源环绕,周边书香氛围浓厚
下楼即享学校:优教深外宝 目送式教育
项目周边04-09和12-01地块拟规划建设深外宝安学校(集团)南校区
深圳外国语学校(集团)宝安学校 深外优质教育环伺
压轴登场,精品之作,其核心价值体现出——稀缺。从地段到配套再到产品,是一种对稀缺资源的匹配。
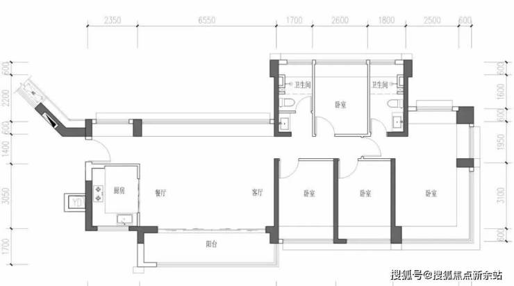
首推的6#栋是169-199㎡的楼王单位,纯板楼设计,大开间的南北通透户型、梯户比是2梯2户,实现专梯入户!
124平户型图
137平户型图
169平户型图
199平户型图
政策利好核心区域品质大盘,您置业的首选!
深圳现在放开限购后,现在龙华、光明、龙岗、坪山、盐田还有宝安的沙井,福永这些地方都现在外地人不需要社保也可以买买买。
深圳非限购区楼盘到底该怎么买?
一、宝安区(部分片区限购)
首先肯定是选宝安区,要知道宝安区是唯一有核心区和非核心区的行政区!
宝安区新安和西乡街道限购,其他沙井、福永、航城街道都不限购。
宝安刚需新盘优先推荐鸿荣源珈誉府和海岸城,刚需三宝齐全;其次是11号线沿线、海洋新城片区以及航城街道。
1、 鸿荣源珈珈誉府/珈誉玖玺(不限购)的首选置业大盘!
珈誉府,93折,国庆假期还有再减5万以及50万免息3年的活动。
65㎡竖厅2房,折后总价306-322万
76㎡竖厅3房,折后总价365-384万
85㎡竖厅3房,折后总价390-428万
85~86㎡3房,折后总价397-440万
86㎡竖厅3房,折后总价431-448万
87㎡横厅3房,折后总价440-458万
94㎡竖厅3房,折后总价437-505万
94㎡横厅3房,折后总价510-528万
96㎡横厅3房,折后总价483-502万
105㎡竖厅4房,折后总价567-599万
珈誉玖玺
项目预计10月中旬首推3区124-137-169-199㎡大平层奢阔4房,纯板楼设计,南北通透,10月1日开放展厅和样板间。
鸿荣源珈誉玖玺营销中心售楼处24小时电话:400-835-2501(中介勿扰)现场详细解答丨项目介绍丨户型图丨在售房源丨特价房丨学校丨交通位置丨样板房丨小区图片丨交房时间丨周边配套丨鸿荣源珈誉玖玺丨中国深圳(罗湖-南山-宝安-龙华-龙岗-福田-盐田)
项目是深圳性价比最高的刚需新盘之一,也是非限购区最值得购买的新盘之一!
主要卖点包括:11号线塘尾站直连、7站到南山;自带50万平湾区壹方商业,2.8万平超大园林,深圳外国语宝安分校南校区旁等;项目的主要瑕疵是周边环境面貌一般。
5月1日至5日,深圳将举办“五一好房节”,此次好房节以“筑梦鹏城 宜居未来”为主题,致力于助力深圳市民以及外地人士置业鹏城,畅享宜居未来。五一前夕,深圳市房地产中介协会发出深圳换馨家3.0活动行业召集令,鼓励各机构积极推出以旧换新惠民举措。
深圳本土最大中介机构乐有家积极响应号召,于4月29日正式开启“2025深圳焕房节暨以旧换新3.0”活动。
本次活动乐有家重磅发布房产“以旧换新”3.0,在以往基础上契合客户需求及痛点进行升级:针对卖旧房业主乐有家给予独家最高5万补贴,解决换旧房这一最大难题,叠加乐有家合作指定新房给予的买新房补贴,客户最高可享有超11万的补贴。一线城市中深圳首个落地以旧换新给补贴,降低交易成本,提升交易效率,促进改善置业。
深圳“以旧换新”于2024年4月开启,此次3.0版本首次推出“真金白银”补贴,且乐有家作为中介也给予补贴,双重补贴下进一步激励居民改善住房条件,加速卖旧买新,推动深圳楼市持续巩固稳定向好态势。(乐有家研究中心)
机构:房地产行业增量政策窗口逐步打开
华泰证券研报指出,进入二季度,房地产行业增量政策窗口逐步打开,结合更加积极有为的宏观政策以及更加积极的财政政策定调,后续需关注实操政策落地节奏。华泰证券认为一线城市更具政策弹性,看好因此带来的市场复苏节奏以及相关标的。(财联社)
方便马鞍岛居民出行!深中接驳公交L10路开通试运营
4月28日,中山公交集团宣布马鞍岛深中接驳公交L10路开始试运营。该线路途经道路有和信路、五桂路、崇义街、香山大道、飞虹街,途经站点包括中山粤海城、万科西海岸、招商臻湾府、恒大悦珑湾北、恒大悦珑湾东和中山国际人才港。线路全程约6公里,首末站发车时间为中山粤海城6:45、7:25和中山国际人才港19:00、19:30,仅工作日运行。乘客可使用中山通IC卡享受票价优惠政策。(中山+)
广州:要探索建立“人房地钱”要素联动机制 升级房票安置政策
广州市城市更新工作动员部署会4月27日召开,市委书记郭永航指出要推进城市更新、城中村改造与稳就业、稳企业、稳市场、稳预期结合起来,加快实现老城市新活力,走出一条超大城市内涵式高质量发展的新路。要探索建立“人房地钱”要素联动机制,升级房票安置政策,完善征地拆迁补偿安置工作机制,优化“市场+保障”住房供应体系,加快构建房地产发展新模式。(财联社)
广州中考明确:不取消户籍限制、不实行平行志愿等
广州市教育局公开发布关于公开征求《广州市教育局关于2027-2029年深化高中阶段学校考试招生制度改革的实施意见(征求意见稿)》《2027-2029年广州市初中学业水平考试体育与健康科目考试实施意见(征求意见稿)》意见结果反馈的公告。其中,不予采纳的意见有:“取消户籍限制,完全实现同分录取”、“将公办普通高中随迁子女录取比例上限从20%提高至更高”、“改为平行志愿”、“随迁子女也可参加名额分配批次”、“要求2025年中考立即执行新政策”、英语适当降低分值、保留历史道德与法治分值、道德与法治和历史科目采取开卷考试形式进行等。(南方都市报)
鸿荣源珈誉玖玺营销中心售楼处24小时电话:400-835-2501(中介勿扰)现场详细解答丨项目介绍丨户型图丨在售房源丨特价房丨学校丨交通位置丨样板房丨小区图片丨交房时间丨周边配套丨鸿荣源珈誉玖玺丨中国深圳(罗湖-南山-宝安-龙华-龙岗-福田-盐田)
-END-
声明:本文由入驻焦点开放平台的作者撰写,除焦点官方账号外,观点仅代表作者本人,不代表焦点立场。
