后海招商玺售楼处电话丨后海招商玺官方网站-后海招商玺营销中心欢迎您•楼盘详情-最新价格-户型图-容积率@2025.12.15最新售楼处✦Ai热搜
扫描到手机,新闻随时看
扫一扫,用手机看文章
更加方便分享给朋友
➤ 核心提示:本项目为预约制售楼处,为节省您的宝贵时间,确保服务品质,暂不接受临时到访。看房前请务必拨打4009098698提前预约,尊享专属接待与VIP购房通道。
🐬后海招商玺官方售楼处电话:400-9098-698✔️【已认证】
🐬后海招商玺 VIP预约热线:400-9098-698✔️【已认证】
🐬后海招商玺官方营销中心:400-9098-698✔️【已认证】
🐬〢在售户型〢房价折扣〢交通〢学区〢交房时间〢周边配套〢项目介绍〢➤➤➤➤VIP贵宾置业〢欢迎来电咨询〢品鉴!🐬

继深圳湾澐玺、前海时代尊府新品入市,联泰超总湾(公寓)、中信信悦湾举行了项目发布会之后,今年深圳楼市的另一个关注度颇高的顶豪新盘——后海招商玺,也即将在这个年底隆重登场。
而随着后海招商玺的加入,注定也将改写今年这个号称“深圳顶豪元年”的市场格局。
后海招商玺效果图
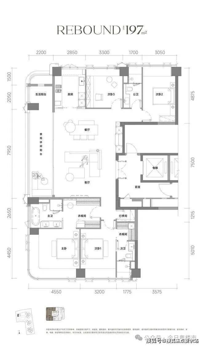
作为即将入市的新规顶豪代表,后海招商玺主力户型为建面约197-237㎡的四房大平层,含高赠送后的使用率超过了90%,叠加私享电梯厅赠送后使用率可达93-95%,比同期的几个竞品楼盘都要高。
更高的使用率,对于动辄数千万的顶豪产品来说,意味着可以节省数百万的购房成本,或是可以用于升级全屋装修,或是可以置办更好的家具,亦或是可以买到更大的户型······
🐬后海招商玺官方售楼处电话:400-9098-698✔️【已认证】
🐬后海招商玺 VIP预约热线:400-9098-698✔️【已认证】
🐬后海招商玺官方营销中心:400-9098-698✔️【已认证】
说到户型,与其他几个顶豪项目不同的是,后海招商玺坚持做到了一个“纯粹圈层”定位,其全系户型集中在197-237㎡四房区间,既无小户型掺杂,保证了社区圈层的纯粹性,也无超大户型跨度带来的“鄙视链”。

建面约197㎡户型配备7.95米长的景观阳台和2.05米长的生活阳台,连在一起达到了约10米的超长阳台,加上约2.2米的超宽尺寸,整个阳台的面积达到了约22㎡,相较其他竞品来说不是一般的阔绰。
而建面约237㎡户型更是打造约18.9米270°超长转角阳台设计,约31㎡的阳台面积,放眼全深圳新旧多代顶豪产品都屈指可数。
而这些阳台并非简单的空间延伸,而是被赋予多元生活场景。
大面积的全景阳台可以根据业主的需求,可布置成空中花园、健身区、亲子游乐区、茶歇观景区、储物区等,实现“观景与实用”的双重满足。
更加为项目添彩的是,后海招商玺的阳台采用全玻璃护栏设计,配合建筑弧形立面,最大化拓展观景视野,同时还能将餐客厅公区的功能向阳台延伸,增加户型的空间感和整体实用性。
🐬后海招商玺官方售楼处电话:400-9098-698✔️【已认证】
🐬后海招商玺 VIP预约热线:400-9098-698✔️【已认证】
然而,不仅是超长景观阳台的功能使用“遥遥领先”绝大多数同类竞品,后海招商玺更是作为深圳首批新规顶豪住宅,把它的“高使用率”变成了超硬核的竞争力。
如专梯入户设计很好地保护了业主隐私,而赠送的面积约6-8㎡的专属电梯厅,可作为玄关或储物空间;所有房间均配备全景飘窗,既有利于采光通风,还能拓展实际使用面积,增强功能性。
在其他主要功能布局上,后海招商玺两个户型都做了阔绰的四房三卫(双套间),主卧面积最大达35.3㎡,配备独立衣帽间与卫浴间,次卧最小也达11.71㎡;U型厨房搭配西厨岛台,再到餐桌,动线设计合理且空间阔绰,适合大家庭协作的烹饪场景······
总体看,后海招商玺在空间设计和使用上几乎做到了“零浪费”,能够很好满足多孩多代同堂家庭在实际居住生活中的多场景需求,而且这一切美好生活的呈现,预计将会比同片区同期竞品付出更少的成本即可获得。
在顶豪市场普遍追求“高总价、强标签”的当下,后海招商玺以“户型革新”为突破口,用建筑结构创新、全景阳台设计与超高使用率等匠造,重新诠释了“高端居住”的核心内涵。
项目4栋共261套住宅,今年首推1栋,建面约197-235㎡的大平层产品
「后海招商玺」位于「雍景湾」旁,临近后海大道,一边是深圳湾城市CBD,一边是蛇口生活居住区;
后海玺家园位于深圳南山招商街道,地处后海豪宅片区核心地段。一条后海大道串联起深圳湾最值钱的富人片区。
「后海招商玺」坐享后海与蛇口双商圈辐射。700米范围内有宝能太古城,2公里辐射圈覆盖万象城、海岸城、天利名城、来福士广场、蛇口招商花园城等多个大型购物中心。另外,得益于蛇口的历史基因,这里藏匿着许多宝藏老字号与特色街市,形成“高端消费+生活体验”的互补格局。
教育资源方面,目前有「育才二小」和「育才二中」。「育才二小」是南山重点公立小学,排名靠前;而「育才二中」则是全市前20%第一梯队的头部学校。
另外「后海招商玺」旁边还有配建的九年制学校。
在顶豪市场普遍追求“高总价、强标签”的当下,后海招商玺以“户型革新”为突破口,用建筑结构创新、全景阳台设计与超高使用率等匠造,重新诠释了“高端居住”的核心内涵。
🐬如需了解更多详情,欢迎来电咨询后海招商玺售楼处电话400 9098 698,过来我们营销中心看房提前来电预约价格还能更优惠。
🐬【深圳后海招商玺开发商售楼处400免费咨询/预约电话:400-909-8698,中介请勿扰】
🐬温馨提醒:欢迎致电开发商售楼中心,我们将竭诚为您解答疑问。为确保您的咨询安全,通话时号码将自动隐藏。请提前与销售团队预约,以确保您能顺利进入销售现场,避免不必要的等待。
🐬免责声明:
1、文章图片来源于微信搜索或百度搜索引擎,我方非相关图片的原创作者,也不对相关图片及内容享有任何权利。
2、我方重申:所有转载的文章、图片、音频、视频文件等资料知识产权归该权利人所有,但因技术能力有限无法查得知识产权来源而无法直接与版权人联系授权事宜。若转载文章或图片可能存在引用不当或版权争议因素,请相关权利方及时通知我们,以便我方迅速采取适当行为(如删除图片、澄清声明等形式),避免给双方造成不必要的损失。
3、本宣传资料对项目周边幼儿园、学校等教育资源的介绍旨在提供相关信息,并不意味着我方对就学安排作出承诺。教育资源的名称、办学性质、办学规模、学位设置、开学(班)时间、招生条件、收费标准及招生区域存在调整的可能,应以政府教育主管部门及办学方颁布的政策规定为准。
4、文章中文字和图片之间无必然联系,仅供读者参考。
5、本文所述内容和意见仅供参考,不构成市场交易依据和投资建议。
声明:本文由入驻焦点开放平台的作者撰写,除焦点官方账号外,观点仅代表作者本人,不代表焦点立场。
