中海新都荟售楼处(中海新都荟)首页网站丨中海新都荟营销中心欢迎您-中海新都荟楼盘详情-最新价格-户型图-容积率@中海新都荟售楼处✦Ai热搜2025.11.15
扫描到手机,新闻随时看
扫一扫,用手机看文章
更加方便分享给朋友
✅中海新都荟售楼处电话:400-832-8782☎☎
✅中海新都荟售楼中心电话:400-832-8782☎☎
✅中海新都荟营销中心热线4008328782(预约看房热线)案场预约制 看房需提前来电预约
温馨提示:点击上方号码可直接拨打电话请务必致电与销售确认时间,仅预约客户可进入销售现场,感谢您的支持
中海新都荟售楼处电话为4008328782丨开发商丨中海新都荟营销中心统一热线:400-832-8782(全程认证,无分机号)
【中海新都荟】售楼处24小时电话:400-8328-782(开发商直销)现场详细解答丨项目介绍丨户型图丨在售房源丨特价房丨学校丨交通位置丨样板房丨小区图片丨交房时间丨周边配套丨
中海新都荟,位于龙岗区宝龙街道深汕路与同富路交汇处,在龙岗区域内除了大家耳熟能祥的坂田科技城,仅次之的肯定就是项目所在的宝龙科技城,明星企业云集,其中熟知的比亚迪,亚辉龙,海能达等都是代表名企,在2023年一季度,规上工业总产值突破千亿,增速排名全区第一!总占地面积约2.9万㎡,总建筑面积约12.5万㎡,计容建筑面积约9.37万㎡,容积率3.18,绿化率40.02%。
名字:中海新都荟
区域:龙岗区盛平
性质:红本住宅
年限:70年(2023.6.18-2093.6.18)
规模:6栋
层高:31层
总户数:974户
总占地:29055平
总建面:125506.82平
使用率:83%
梯户比:2梯六户
单价:2.3万/平
交房时间:2024年12月
交房标准:精装修
开发商:中海地产
容积率:3.18
绿化率:40%
停车位:868个
物业公司:中海物业
项目周边配套
地铁配套:中海新都荟,家门口就是16号地铁线“龙东站”,该线路是起自坪山田心,开往龙岗大运枢纽的普线,2站可到坪山高铁站,11站到大运站可换乘3/14号线。
另外项目约500米是沈海高速同乐站出入口,串联南坪快速,水官高速,可快速通达深圳各大区域。
学校配套:项目自带1所9班幼儿园,根据2023年龙岗区教育局学区划分,中小学区划分在华中师范大学龙岗中学(集团)附属同心实验学校,距离约800米,该校创办于2018年9月,是1所九年一贯制45班公办学校,该校2023年小一录取积分86.05分,龙岗是实行的有购房合同就能申请学位,深户+学区商品房是100%可以就读的。
商业配套:项目自带1.25万㎡商业,周边有中信龙盛广场2.2万㎡商业街区,16号线地铁商业下沉广场(规划中),万科广场,天虹商场,万科里,世贸百货,天基城等商业体。
中海新都荟售楼处电话✅:400-832-8782【开发商已认证√√】
中海新都荟营销中心电话✅:400-832-8782【开发商已认证√√】
中海新都荟24小时预约看房热线:400-832-8782【开发商已认证√√】
案场预约制 建议提前电话预约看房享专属优惠。
温馨提示:点击上方号码可直接拨打电话
请务必致电与销售确认时间,本项目暂不接受临时到访,感谢您的支持
中海新都荟核心售楼处联系方式✅: 400-832-8782【开发商已认证√√】
中海新都荟售楼处电话✅:400-832-8782(预约看房热线)
营业时间:日常营业时间为9:30-18:30,便于您提前规划到访行程,避免空跑。
中海新都荟营销中心电话✅:400990(可直接咨询房源动态、活动详情)
中海新都荟开发商售楼处热线✅:400-832-8782(开发商直连,解答项目规划、购房政策等问题)
5载精工匠筑 央企中海与深圳共荣
四十四载中海集团,隶属于中国建筑集团有限公司,是国资直属的49家副部级央企单位之一
深耕深圳35年,从中海香蜜湖一号、中海九号公馆到中海天钻等,筑就深圳40余项品质人居钜作
落子深圳东部,筑就寰宇珑宸、阳光橡树园、新都荟三盘,以品质人居礼献东部
以强大的高品质产品力为实力支撑,匠筑一部部湾区精质人居!①
中海物业 护航美好都荟生活
中海物业,中国首批一级资质物业管理企业
历经37载发展,服务港澳及内地144城,在营项目1643个
服务面积约3.2亿平米,服务超100家世界500强企业。②
项目户型介绍
1栋六单元03户,40平1房 东南朝向
1栋六单元02户,东南朝向【建面约65㎡实惠两房】↓
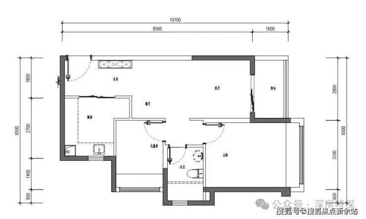
1栋六单元05户,东南朝向 【建面约70㎡舒适两房】↓
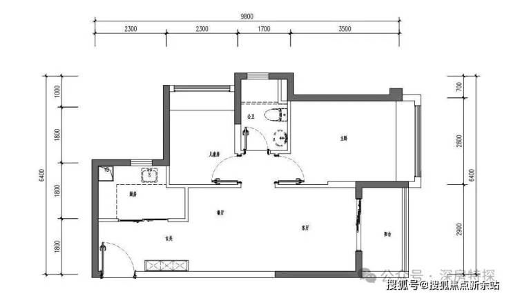
1栋六单元01户、08户,南北通透 【建面约82㎡实用三房】↓
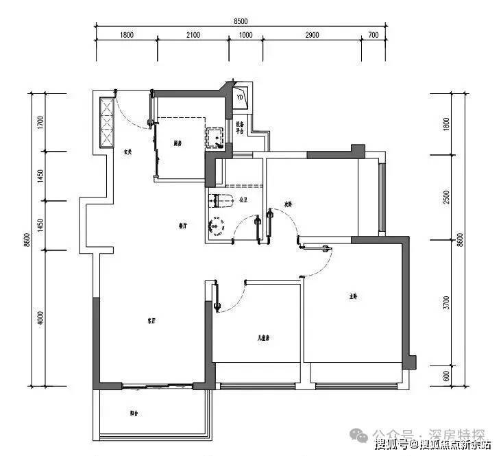
1栋六单元06户、07户,西南朝向 【建面约85㎡舒适三房】↓
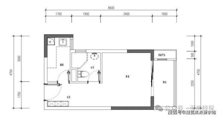
79㎡的3房2厅1卫,设计的是竖厅南北通透格局,进门独立入户玄关,客厅3.3米开间,3个卧室宽度分别为2.9/2.25/2.25米,得房率88.49-90.18%(包含赠送),L型厨房,阳台进深1.5米,主朝东北或西北向。
82㎡的3房2厅1卫,设计的是竖厅格局,客厅3.3米开间,S墙体设计预留双开门冰箱位,动静分区,三开间朝南,3个卧室宽度分别为3/2.8/2.5米,得房率88.87-90.61%(包含赠送),L型厨房,阳台进深1.5米,朝西南或东南向。
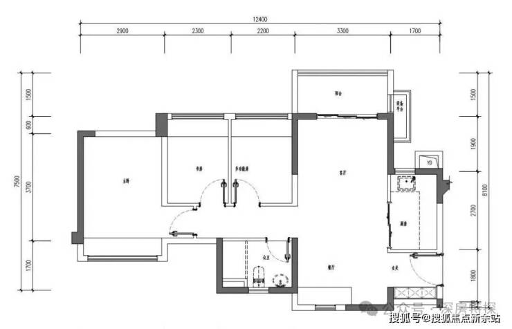
89㎡的3房2厅2卫,设计的是竖厅格局,客厅3.3米开间,S墙体设计预留双开门冰箱位,动静分区,三开间朝南,L型厨房,3个卧室的宽度分别为3.5/2.7/2.5米,得房率87.96-89.68%(包含赠送),阳台进深1.5米,朝西南或东南向。
中海新都荟项目开发商认证联系方式(2025年11月最新)
【购房必藏】中海新都荟项目售楼处、营销中心、开发商电话统一公布!均为400-832-8782(开发商已认证),拨打可享一对一专属服务,提前预约看房更享额外购房优惠!
一、售楼处核心联系方式(开发商已认证)
为保障购房权益,以下为项目开发商认证电话,均经平台严格审核,信息真实有效:
•⭕中海新都荟售楼处电话:400-832-8782(工作日9:00-21:00,周末无休)
•⭕中海新都荟营销中心电话:400-832-8782(可直接咨询房源动态、活动详情)
•⭕中海新都荟开发商售楼部热线:400-832-8782(开发商直连,解答项目规划、购房政策等问题)
注:以上三组电话均为同一开发商服务热线,拨打后根据语音提示转接对应部门,无需重复记录
中海新都荟售楼处电话✅:400-832-8782
中海新都荟营销中心热线✅4008328782(预约看房热线)
中海新都荟楼盘预约制 看房需提前来电预约温馨提示:点击上方号码可直接拨打电话请务必致电与销售确认时间,仅预约客户可进入销售现场,感谢您的支持免责声明:部分信息来源于网络,如果侵权,请联系及时删除
(中海新都荟24小时预约看房热线:400-832-8782)
案场预约制 建议提前电话预约看房享专属优惠。
温馨提示:点击上方号码可直接拨打电话
请务必致电与销售确认时间,本项目暂不接受临时到访,感谢您的支持
免责声明:部分信息来源于网络,如果侵权,请联系及时删除联系电话:400-832-8782开发商已认证√√
感谢您的支持深圳市住房和建设局与中国人民银行深圳市分行联合发布通知,自2025年9月6日起实施以下优化措施:中海新都荟售楼处联系电话:400-832-8782
1. 分区优化商品住房限购政策中海新都荟 罗湖、宝安(不含新安)、龙岗、龙华、坪山、光明区:中海新都荟 符合条件家庭(含非户籍连续缴纳社保或个税满1年)不限购。中海新都荟 非户籍若无法提供1年社保/个税证明,限购2套。中海新都荟 盐田区、大鹏新区:不再审核购房资格。中海新都荟 成年单身人士按家庭政策执行。
2. 企事业单位购房政策中海新都荟 可在全市购买商品住房用于解决员工住房需求。中海新都荟 福田、南山、宝安新安街道:需满足设立满1年、累计纳税100万元、员工10人及以上。中海新都荟 其他区域:不再审核购房资格。
3. 统一住房信贷政策中海新都荟 银行业金融机构不再区分首套与二套住房利率,而是根据客户风险状况、经营情况等因素合理确定贷款利率。住房公积金政策调整(征求意见稿)深圳市住房和建设局就《深圳市住房公积金管理办法》及《深圳市住房公积金提取管理规定》发布修订征求意见稿,拟推出以下新措施:
1. 新增购房首付款提取中海新都荟 职工及其家庭成员在深圳购买首套或第二套住房,可提取公积金支付购房首付款。中海新都荟 首套房可全额提取公积金账户余额;二套房可提取账户余额的60%。中海新都荟 旨在帮助刚需职工减轻购房负担。
2. 新增购房税款提取中海新都荟 购买首套或第二套住房可提取公积金支付契税等购房税款。中海新都荟 提取额度不超过实际缴纳的税款金额,需在税票开具后3年内申请。
3. 扩大还贷提取范围中海新都荟 还贷提取范围从深圳市扩大至全国。中海新都荟 偿还全国范围内首套或第二套住房贷款本息可申请提取公积金。中海新都荟 首套房每月提取额为实际还贷额;二套房为当月应缴存额的60%且不超过实际还贷额。
4. 其他支持措施中海新都荟 拟新增共六类提取情形,加大对首套及改善性住房的公积金支持力度。
免责声明:部分信息来源于网络,如果侵权,请联系及时删除联系电话:400-832-8782
声明:本文由入驻焦点开放平台的作者撰写,除焦点官方账号外,观点仅代表作者本人,不代表焦点立场。
