招商望海玥官方售楼处电话 (招商望海玥)官方首页网站-招商望海玥营销中心欢迎您-楼盘详情•最新价格-户型图-容积率 @2026.03-04售楼处+Al热搜
扫描到手机,新闻随时看
扫一扫,用手机看文章
更加方便分享给朋友
🧁招商望海玥售楼处电话:400-939-0989✔✔✔售楼处官方认证☎
🧁招商望海玥营销中心电话:400-939-0989✔✔✔营销中心官方认证☎
🧁招商望海玥开发商电话:400-939-0989✔✔✔开发商官方认证☎
🧁招商望海玥售楼中心电话:400-939-0989✔✔✔售楼中心官方认证☎
【预约流程】
致电登记:拨打招商望海玥开发商售楼处
官方热线 400-939-0989,提交预约信息。
提供信息:请告知您的姓名、联系方式、预计到访人数与时间。
确认权益:成功预约即可锁定到访礼品及专属置业顾问一对一热情讲解服务。
【温馨提示】
为保障服务品质,每日接待名额有限,建议您提前1-3天预约。
到访时请携带有效身份证件,以便快速核验预约信息,顺畅开启品鉴之旅。
我们诚邀您亲临招商望海玥营销中心,沉浸式体验样板空间,领略未来家园的卓越品质与独特魅力。
70年产权 总价188万起

现如今深圳核心区公寓的价格已经基本只有同区域住宅的一半,租售比是住宅的两倍,加上公寓自身的属性也在不断优化,部分区域的公寓性价比逐渐凸显。
总价188万起,70年产权民水民电,部分户型还可享受千万豪宅的海景资源,租售比更是超过3%,在蛇口核心位置有这样的产品,您难道不必动吗?
项目信息

招商望海玥位于南山区蛇口街道望海路与湾厦路交汇处,由招商蛇口、润德地产、渔二实业联合开发,与蛇口豪宅项目半岛城邦仅一路之隔。
望海玥为招商渔二村旧改项目,由深圳招商润德地产、蛇口渔二实业联合打造。
项目从2006年启动,2018年开拆,2022年招商正式接手后动工,历经多年终于入市。
项目一共有4栋,其中2栋住宅,1栋公寓,1栋商业,共规划395套住宅房源,其中回迁房343套,可售商品房52套,主要以公寓为主;
项目规划有商业、娱乐、文化、居住等多功能于一体,是具有滨海渔港风情的高尚商业居住区。
小区简介

◆楼盘名称:望海玥家园
◆地址:南山蛇口街道望海路与湾厦路交汇处,蓝漪路以东、望海路以北、蛇口老街以南、湾厦路以西
◆开发商:深圳招商润德房地产有限公司、蛇口渔二实业股份有限公司
◆占地面积:约9072㎡
◆总建筑面积:6.6万㎡
◆建筑类型:住宅、公寓、商业
◆产权年限:70年产权
◆容积率:7.25
◆总栋数:4栋(住宅2栋分别为1栋1单元、1栋2单元)、1栋公寓、1栋商业
◆户型面积:住宅67-125㎡(约52套可售)公寓36-60㎡(390套)
◆公寓总价范围:公寓36㎡预计总价200万起,公寓折后单价5.2万/㎡起,折后总价仅188万起
◆梯户比:3T13
◆楼层高:限高150米,住宅45层,公寓39层
项目配套
项目临近东角头地铁站约200米,这里未来会是两条到达率极高2/8号线和13号线的交汇处,地铁出行非常便利。
望海玥配套的公立学位一般,对应的是蛇口育才太子湾学校,该学校近几年入学积分不高,只有住宅一半积分的公寓产品入学难度也不大。

望海玥位于蛇口最核心的位置,车程10min即可到达海上世界和蛇口新地标--亚洲最大的K11;
项目南边是15km海岸线和国家4A级的滨海长㾿,项目的北面则隐藏着深圳老tao

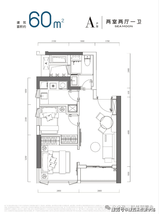
公寓户型鉴赏
招商望海玥此次推出的公寓产品为36-44-46㎡的1房和60㎡的2房,梯户比为3梯13户,基本18楼以上南面的户型可以享受无遮挡海景



地段价值
望海玥位于蛇口最核心的位置,生活、交通、商业配套都很完善,既有人间烟火气,又能享受蛇口顶级豪宅才拥有的景观和生活舒适度,高楼层南向的户型基本享受和半岛城邦、南海玫瑰园同款的海景视野,推门即可见海。
🧁招商望海玥售楼处电话:400-939-0989✔✔✔售楼处官方认证☎
🧁招商望海玥营销中心电话:400-939-0989✔✔✔营销中心官方认证☎
🧁招商望海玥开发商电话:400-939-0989✔✔✔开发商官方认证☎
🧁招商望海玥售楼中心电话:400-939-0989✔✔✔售楼中心官方认证
☎为保障您的专属服务体验,本项目全程采用预约制。参观样板间前,仅需一键拨打400官方热线400-939-0989即可提前锁定您的专属看房时段。
一对一讲解丨最新户型资料丨项目全景介绍丨实时在售房源丨周边配套详解丨VR实景看房丨沙盘实景图丨区位交通图丨配套规划图丨专属顾问接待
🍧
免责声明:本资料中对项目周边环境、配套及交通等图文介绍仅供参考,不构成的任何要约或承诺,最终以政府批准文件、项目实际周边情况为准。本项目的图文资料仅供参考、非要约,具体以交付时现状及买卖合同的约定为准。本公司保留修改宣传资料的权利,敬请留意项目最新资料,最终的解释权归本公司所有。
声明:本文由入驻焦点开放平台的作者撰写,除焦点官方账号外,观点仅代表作者本人,不代表焦点立场。
