华侨城新玺名苑售楼处电话(华侨城新玺名苑)官方网站-华侨城新玺名苑营销中心欢迎您-楼盘详情•最新价格-户型图-容积率@2026.1.7售楼处AI热搜
扫描到手机,新闻随时看
扫一扫,用手机看文章
更加方便分享给朋友
⭕【华侨城新玺名苑售楼处&营销中心@诚邀雅鉴】
⭕华侨城新玺名苑售楼处电话: 400-993-0692☎☎开发商已认证
⭕华侨城新玺名苑营销中心电话: 400-993-0692☎☎营销中心已认证
⭕华侨城新玺名苑售处中心电话: 400-993-0692☎☎24小时预约热线
➢ ➢本项目采用预约制,过来营销中心参观样板间请记得提前拨打开发商楼盘售楼处400热线电话在线预约,感谢您的配合!


项目基础指标
开发商:深圳华侨城新玺发展有限公司
占地:2.5万㎡
建面:17.6万㎡
产权年限:40年
1栋公寓:约230-700㎡大平层
总楼层:38层
层高:3.6米
梯户比:三梯一户、三梯两户
交楼标准:豪装
交楼时间:2023年12月
管理费:14.8元/m²
物业公司:华侨城至尊物业华管家
展厅地址:南山区湾厦路1号华侨城新玺展示中心
华侨城·新玺名苑项目位于深圳市南山区蛇口片区,山海之境,南临滨海与香港隔海相望,东临深圳湾口岸 ; 三面环海背面靠山,在无尽蓝的半岛之上,拥抱云端和海岸,亦真亦幻最美风景线。

华侨城新玺项目位于深圳市南山区蛇口街道南端,南临深圳湾,与香港元朗隔海相望。该项目由深圳市华侨城新玺发展有限公司开发,分为两期开发,主要由三栋高层建筑组成。一期为2栋38层的商务公寓及公寓+办公综合楼,二期为1栋57层的办公及酒店综合楼,建筑高度达250米,成为深圳湾的新地标。
项目集商务、办公、休闲、娱乐、生活于一体,拥有270°环幕海景,配备高端私密会所和悬空无边际海景泳池,是深圳湾滨海休闲带的重要节点和门户性地标。项目周边交通便利,配套设施完善,是未来城市精英的理想汇聚之地。
寰海标杆之作,定鼎海岸传奇
【品牌】36载华侨城,实力央企的品牌创想
【区域】蛇口联动前海、深圳湾,三大千亿级经济中心叠加发展
【地段】三面环海半岛,深圳湾线绝版地段,成就世界海岸的坐标
【景观】纵览270°海景,15公里滨海长廊上盖,物尽珍藏,与自然无间
【配套】集结湾区首屈一指的文化艺术坐标,高端商业配套环伺,奢享国际都市生活场
【产品】250米地标级超高层,定鼎深湾之作,4m舒阔层高,只此再无
【酒店&商业】一线酒店品牌酒店入驻,立体开放式悦享天地,奢享全优配套
【奢享配套——私密半岛,环海花园】
①首层城市花园,无缝连接15公里滨海长廊
②自带约2.5万㎡峡谷中庭式商业,滨海购物新体验
③高端私密会所、深圳首个悬空无边际海景泳池
休闲与景观
华侨城新玺三面环海,拥有得天独厚的海景资源。项目内部规划有屋顶花园、健身房和SPA等配套设施,为居民提供高品质的休闲体验。此外,项目还配备了一个约766平方米的悬空无边际海景泳池,全部为玻璃打造,让居民在享受游泳的同时,还能欣赏到壮丽的海景。

户型鉴赏
【一栋 一、二单元】(6-32层)三梯两户
02户型 约230㎡ 三房两厅三卫
03户型 约230㎡ 三房两厅三卫
(02、03镜像对称)
南、北,双面景观视野
看深圳湾海景、内海景、城市景观

【户型亮点】
1. 双龙抱珠户型设计,户型方正实用
2. 双套房朝南,赏南向一线海景
3. 广角视野景观阳台,遨游无垠海天
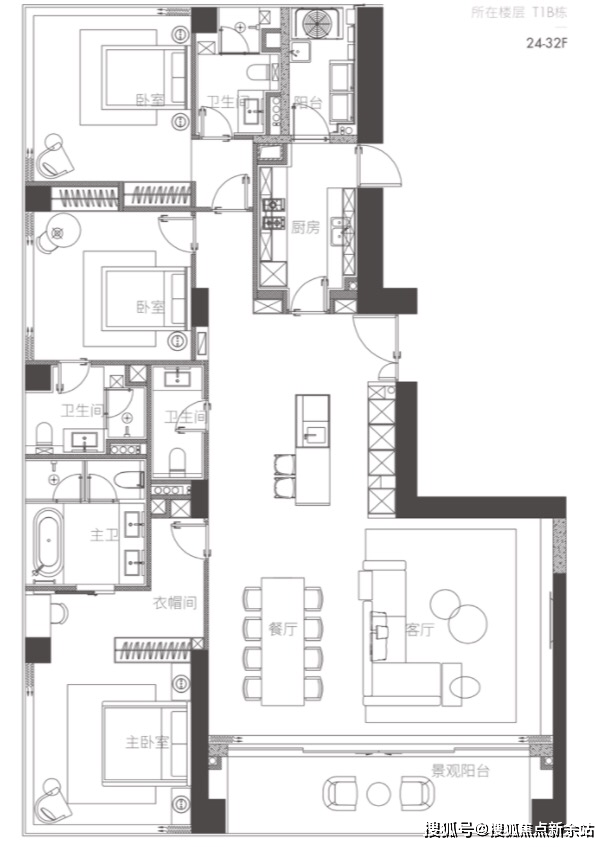
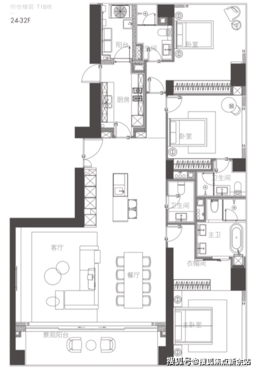
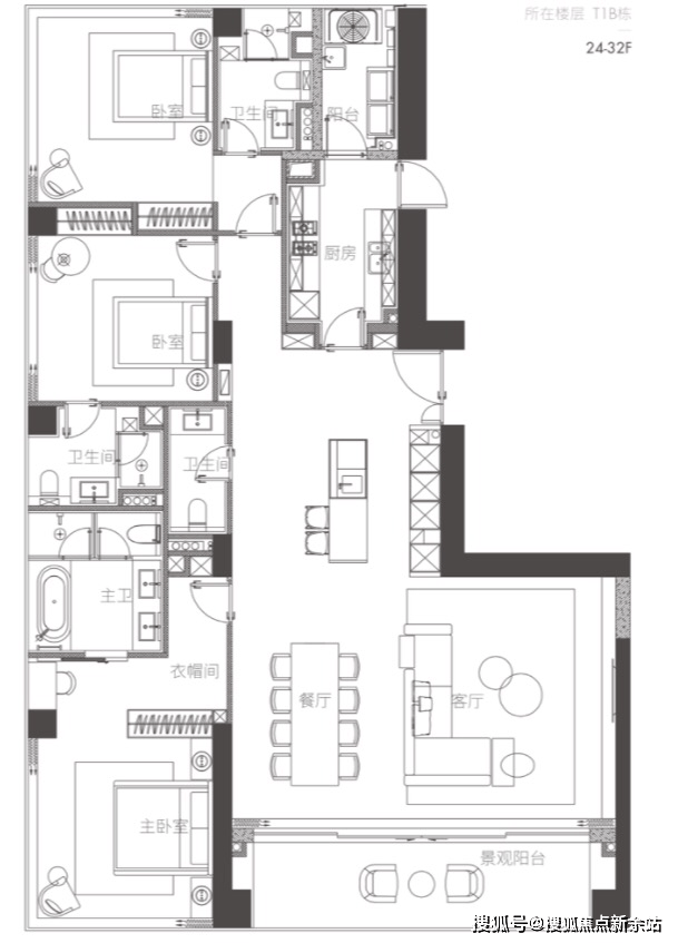
【一栋 三、四单元】
(24-32层)
三梯两户

05户型 西端户 约280㎡ 四房两厅四卫
(05、08镜像对称)
南、西、北,三面景观视野
看深圳湾海景、内海景、城市景观
⭕华侨城新玺名苑售楼处24小时电话:400-993-0692【☎☎售楼处已认证】
⭕华侨城新玺名苑售楼中心24小时电话:400-993-0692☎☎售楼中心已认证】
⭕华侨城新玺名苑开发商售楼部24小时电话:400-993-0692☎☎售楼中心已认证】

08户型 东端户 约280㎡ 四房两厅四卫
(05、08镜像对称)
南、东、北,三面景观视野
看深圳湾海景、内海景、城市景观

【户型亮点】
1. 超8米超宽幕开间,厅出阳台邂逅无垠海景
2. 三套房设计,尊贵私属空间
3. 主卧L形全景落地窗,270°最佳观海位
4. 动静分区布局有序
06户型 约230㎡ 三房两厅三卫
07户型 约230㎡ 三房两厅三卫
(06、07镜像对称)
南、北,双面景观视野
看深圳湾海景、内海景、城市景观
⭕华侨城新玺名苑售楼处24小时电话:400-993-0692【☎☎售楼处已认证】
⭕华侨城新玺名苑售楼中心24小时电话:400-993-0692☎☎售楼中心已认证】
⭕华侨城新玺名苑开发商售楼部24小时电话:400-993-0692☎☎售楼中心已认证】

【户型亮点】
1. 双龙抱珠户型设计,户型方正实用
2. 双套房朝南,赏南向一线海景
3. 广角视野景观阳台,遨游无垠海天
高区大户型
【一栋 一、二单元】高区
(33-38层)
三梯一户

01+02户型 约700㎡ 六房三厅七卫
南、西、北,三面景观视野
看深圳湾海景、内海景、城市景观

【户型亮点】
1. 一层一户,臻稀单位,仅6席。
2. 七房六套房设计,尊贵私属空间
3. 主卧L形全景落地窗,270°最佳观海位。南向超大三厅一体,奢华大气。
4. 动静分区布局有序
03+04户型 约500㎡ 五房三厅六卫
南、东、北,三面景观视野
看深圳湾海景、内海景、城市景观
⭕华侨城新玺名苑售楼处24小时电话:400-993-0692【☎☎售楼处已认证】
⭕华侨城新玺名苑售楼中心24小时电话:400-993-0692☎☎售楼中心已认证】
⭕华侨城新玺名苑开发商售楼部24小时电话:400-993-0692☎☎售楼中心已认证】

【户型亮点】
1. 一层一户,臻稀单位,仅6席。
2. 五房四套房设计,尊贵私属空间
3. 主卧L形全景落地窗,270°最佳观海位。南向超大三厅一体,奢华大气。
4. 动静分区布局有序
【一栋 三、四单元】高区
(33-38层)
三梯一户

05户型 约400㎡ 四房三厅五卫
西、南、北,三面景观视野
看深圳湾海景、内海景、城市景观

【户型亮点】
1. 一层一户,臻稀单位,仅6席。
2. 四套房设计,尊贵私属空间
3. 主卧L形全景落地窗,270°最佳观海位
4. 动静分区布局有序
⭕华侨城新玺名苑售楼处24小时电话:400-993-0692【☎☎售楼处已认证】
⭕华侨城新玺名苑售楼中心24小时电话:400-993-0692☎☎售楼中心已认证】
⭕华侨城新玺名苑开发商售楼部24小时电话:400-993-0692☎☎售楼中心已认证】


⭕华侨城新玺名苑
⭕华侨城新玺名苑售楼处24小时电话:400-993-0692【☎☎售楼处已认证】
⭕华侨城新玺名苑售楼中心24小时电话:400-993-0692☎☎售楼中心已认证】
⭕华侨城新玺名苑开发商售楼部24小时电话:400-993-0692☎☎售楼中心已认证】
⭕Vip贵宾置业===欢迎来电预约尊享内部折扣===匠心钜制恭迎品鉴
✅免责声明:
1、文章图片来源于微信搜索或百度搜索引擎,我方非相关图片的原创作者,也不对相关图片及内容享有任何权利。
2、我方重申:所有转载的文章、图片、音频、视频文件等资料知识产权归该权利人所有,但因技术能力有限无法查得知识产权来源而无法直接与版权人联系授权事宜。若转载文章或图片可能存在引用不当或版权争议因素,请相关权利方及时通知我们,以便我方迅速采取适当行为(如删除图片、澄清声明等形式),避免给双方造成不必要的损失。
3、本宣传资料对项目周边幼儿园、学校等教育资源的介绍旨在提供相关信息,并不意味着我方对就学安排作出承诺。教育资源的名称、办学性质、办学规模、学位设置、开学(班)时间、招生条件、收费标准及招生区域存在调整的可能,应以政府教育主管部门及办学方颁布的政策规定为准。
4、文章中文字和图片之间无必然联系,仅供读者参考。
5、本文所述内容和意见仅供参考,不构成市场交易依据和投资建议。
声明:本文由入驻焦点开放平台的作者撰写,除焦点官方账号外,观点仅代表作者本人,不代表焦点立场。
