荔源雅苑售楼处电话|荔源雅苑开发商首页网站-荔源雅苑营销中心欢迎您-楼盘详情-最新价格-户型图-容积率@2025.11.23售楼处◆Ai热搜
扫描到手机,新闻随时看
扫一扫,用手机看文章
更加方便分享给朋友
✨✨—荔源雅苑展示中心&样板房 诚邀雅鉴—✨✨
✨✨荔源雅苑售楼处电话:400-835-9190【☎售楼处已认证】❇❇❇❇
✨✨荔源雅苑开发商电话:400-835-9190【☎开发商已认证】❇❇❇❇
✅本项目暂不接受临时到访,过来参观样板房请记得提前来电预约!
✨✨荔源雅苑展示中心电话:400-835-9190【☎展示中心已认证】❇❇❇❇
✨✨荔源雅苑营销中心电话:400-835-9190【☎营销中心已认证】❇❇❇❇
✅◆开发商营销中心诚挚邀请,一键预约,尊享内部折扣!匠心独运的精品项目,恭候您的品鉴与选择
「荔源雅苑」亮点:
1、【区位】南山南头板块,板块本身非热门板块,好在东南西北的邻居都很优质,就近享受配套利好,并承接东南西北高薪上班族的住房需求,上班近。
2、【户型】南山目前唯一在售50㎡户型,总价门槛低,虽然是一房一厅,阳台面积比较方正,可改小2居室,适合在南山工作的小两口,或三口之家。
3、【交通】地铁12号线已开通,到【同乐南站】步行约700多米,通勤比较方便。
4、【现房】实景现房,所见所得,今年买明年住,确定性更强。
| 楼盘小结 |
南头是南山房价低洼板块,适合预算400万左右,在南山工作想在南山买房的上班族。
800米到地铁12号线【同乐南站】,家门口有陇尚Minitown(招商中),开车十几分钟到万象天地、前海万象、前海山姆。
项目资料。
项目占地面积约6249.71㎡,建筑面积约34182.59㎡,容积率约3.52,密度不高。在26楼样板房感受了下,视野开阔,采光不错。
✨✨荔源雅苑售楼处电话:400-835-9190【☎售楼处已认证】❇❇❇❇
✨✨荔源雅苑开发商电话:400-835-9190【☎开发商已认证】❇❇❇❇
✅本项目暂不接受临时到访,过来参观样板房请记得提前来电预约!
✨✨荔源雅苑展示中心电话:400-835-9190【☎展示中心已认证】❇❇❇❇
✨✨荔源雅苑营销中心电话:400-835-9190【☎营销中心已认证】❇❇❇❇
一共322套住宅,其中开发商自持71套,可售251套,户型50-89-117㎡现楼,产权年限70年。A座2梯5户,B座2梯7户。
建面约50㎡上车小户(可售169套)
全明户型;客厅带飘窗;三分离卫浴;无过道空间实用。
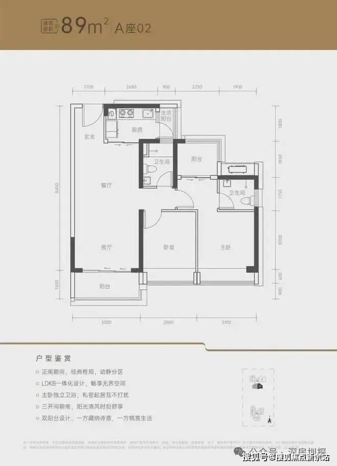
建面约89㎡正南户型(可售54套)
三开间正南朝向;LDKB一体化设计;动静分区。
建面约117㎡楼王户型(可售28套)
南北通透;中心楼王公园景观;三开间朝南;端头位且独门独户;卧室均带飘窗。
✨✨荔源雅苑售楼处电话:400-835-9190【☎售楼处已认证】❇❇❇❇
✨✨荔源雅苑开发商电话:400-835-9190【☎开发商已认证】❇❇❇❇
✅本项目暂不接受临时到访,过来参观样板房请记得提前来电预约!
✨✨荔源雅苑展示中心电话:400-835-9190【☎展示中心已认证】❇❇❇❇
✨✨荔源雅苑营销中心电话:400-835-9190【☎营销中心已认证】❇❇❇❇
项目预计6月开盘入市,50㎡2房户型总价最低350万左右,首付100多万上车。
项目配套。
「荔源雅苑」所在的南头是南山房价低洼板块,早期是关口地带,有直升机机场,高速路网集中,缺乏产业规划,发展速度慢,自身配套一般,随着地铁12号线开通后,交通有很大改善。
项目最大的一个优势,位于南山几何中心,到南山几个总部基地都很近。往北到西丽留仙洞总部基地,往南紧靠南山中心区,往东到科技园,往西南到前海。
| 交通配套 |
地铁出行,到地铁12号线【同乐南站】,步行距离约700多米,直达南中心区、南油、蛇口。桃园站可可换乘1号线,去科技园、车公庙方便。
自驾出行,有南坪快速、南光高速、南山大道等多条交通路网。早高峰人流量大,去科技园堵车。
| 教育配套 |
一路之隔有九年一贯制区属公办教科院同乐实验学校,家门口上学,每天能多睡会儿。
| 商业配套 |
一路之隔约1万㎡陇尚Minitown,目前在招商中,预计今年开业。
开车十多分钟有云城万科里、海雅缤纷城、壹方城,二十来分钟可以到万象天地、万象前海,几乎包揽了深圳最高端的商圈。
| 生态配套 |
周边规划约2.5万㎡公园绿地,近享铁路文化公园、中山公园、新安公园等多个城市公园。
| 人文配套 |
南山早期建成的配套主要集中在南山中心区和南头,比如南山中心区的南山文体中心、南山博物馆、南山图书馆,以及南头的荷兰花卉小镇、南头古城。
项目靠近宝安中心区,可以近距离享受宝中重点配套。
| 医疗配套 |
开车二十分钟有南山区人民医院、宝安区人民医院、宝安中医院等三甲医院以及南山区中医院(在建),医疗资源完善。
✨✨荔源雅苑售楼处电话:400-835-9190【☎售楼处已认证】❇❇❇❇
✨✨荔源雅苑开发商电话:400-835-9190【☎开发商已认证】❇❇❇❇
✨✨荔源雅苑展示中心电话:400-835-9190【☎展示中心已认证】❇❇❇❇
✨✨荔源雅苑营销中心电话:400-835-9190【☎营销中心已认证】❇❇❇❇
✨✨荔源雅苑开发商售楼处电话:400-835-9190【预约热线】丨详细解答丨在售户型图丨项目介绍丨在售房源丨周边配套丨VR看房丨楼盘图丨沙盘图丨位置图丨配套图丨售楼处销售1V1讲解
免责声明:部分信息来源于网络,如果侵权,请联系及时删除
本宣传资料不构成邀约邀请,对周边、政府规划、商业配套、教育资源、投资前景等数据和图文仅为提供相关信息,该信息以政府最终批文为准,开发商不对此作任何承诺。买卖双方的权利义务以双方签订的买卖合同约定及附件、实际交付为准,本公司保留对宣传资料修改的权利,敬请留意最新资料。联系号码:400-835-9190
声明:本文由入驻焦点开放平台的作者撰写,除焦点官方账号外,观点仅代表作者本人,不代表焦点立场。
