岗宏翰林汇(岗宏翰林汇售楼处)首页网站-岗宏翰林汇销售中心(营销中心)售楼处电话-电话地址-价格-户型-小区环境-楼盘详情-交房时间-周边配套
扫描到手机,新闻随时看
扫一扫,用手机看文章
更加方便分享给朋友
岗宏翰林汇项目售楼处认证联系方式(2025年10月最新)
注意事项:不同来源显示多个联系电话,建议优先拨打400-992-6631(出现次数最多)。号码被描述为售楼处认证”
重要提醒
🐲1,预约制要求
因近期看房客户较多,项目采取预约制,需提前拨打400-992-6631进行线上预约,避免临时到访无法接待。
🐲2,实地考察建议
若选择线下看房,可导航至岗宏翰林汇营销中心。需注意:非预约客户可能被安保拦截,建议提前通过售楼处电话400-992-6631确认行程。
🐲岗宏翰林汇售楼处电话:400-992-6631(工作日9:00-21:00,周末无休)
🐲岗宏翰林汇营销中心电话:400-992-6631(可直接咨询房源动态、活动详情)
🐲岗宏翰林汇开发商电话:400-992-6631(开发商直连,解答项目规划、购房政策等问题)

岗宏翰林汇,由岗宏集团打造,总占地面积约2.79万㎡,总建筑面积约33.6万㎡,共分2期开发,一期备案名(岗宏翰林华府),二期备案名(翰华广场),共5栋8个单元组成,住宅总高32-50层,总规划1641户,停车位1691个,车位占比1:1.03。
【项目名称】岗宏翰林汇
【占地面积】约2.79万㎡
【建筑面积】约47万㎡
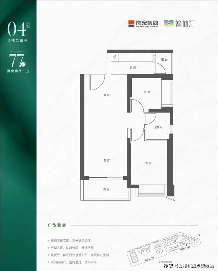
【推售产品】建面约73-131㎡2-4房
【交付标准】带装修
【交房时间】待定
【产权年限】70年
【房产性质】住宅
【总套数】一期总住宅套数1641套,首推01-02地块535套
【楼层高】32-46层
【车位比】1691个,车位占比1:1.03
【容积率】5.84,
【绿化率】40%
【梯户比】3T5、2T5
【管理费】4.2块/平
【开发商】深圳市鼎宏投资发展有限公司
【物业公司】深圳市岗宏城商物业服务有限公司
【项目地址】位于龙岗区平湖街道平湖大街与湖岭路交汇处
一期岗宏翰林华府,总占地面积约1.2万㎡,总建筑面积约10.63万㎡,计容建筑面积约7.42万㎡,容积率5.84,绿化率40%,共由4栋32-46层高的住宅组成,其中2栋1单元住宅46F,2栋2单元住宅46F,2栋3单元安居型商品房32F,2栋4单元住宅32F1,1栋是1所12班制的幼儿园。
总规划780户,其中商品房535户,安居型商品房245户,2栋1/2单元是3梯5户,2栋3/4单元是2梯5户设计。
二期翰华广场,总占地面积约1.6万㎡,总建筑面积约23万㎡,计容建筑面积约18.05万㎡,容积率10.69,绿化率30%,共由3栋50F高的住宅+1栋办公楼组成,其中1栋1单元办公楼32F,1栋2/3/4单元住宅50F。
总规划861户,配建有公交首末站。
交通配套
3大地铁:咫尺17号线(规划中)鹅公岭站,无缝换乘10号线、18号线(规划中),贯通深圳各区,优享便捷出行。
4大高速:紧邻丹平快速,全程少红绿灯,接驳沈海、水官、清平三高速,高效率往返罗湖、福田中心区,事业生活两不误。
生活配套
平湖实验学校区域排名第一,龙岗第九;以及园岭学校(建设中),家门口双九年一贯制学校、自带12班幼儿园,家门口享受12年无忧教育。
平湖实验学校:2014年创办,共有教学班36个,荣获2022年中考录取分数平湖第一,曾获“全国教育科学‘十二五’规划教育部规划课题先进实验学校”、“广东省安全文明校园”、“深圳市年度美育典范学校”等荣誉称号;园岭学校:规划36班九年一贯制学校;小区自带幼儿园:12班。
项目自带约5万㎡集萃商业Mall,打造成为集娱乐、文化、科技、美食、购物于一体的全新商业地标,举步即享万象生活。
近享融湖广场、万达广场、奥特莱斯等大型旗舰商业,“平湖老街”、“华南城”、“鹅公岭社区”三大商圈环伺,满足一站式购物需求。
【27载岗宏 十余年平湖深耕 】
♦27年耕耘深圳,岗宏集团10余载布局龙岗平湖,与片区发展共成长。在平湖,坚守品质初心,以时光匠铸融湖中心城,成就平湖盛景格局。
♦继融湖中心城之后,岗宏步履不停,于丹平快速之上,再为平湖造一座大城——岗宏翰林汇,携手融湖中心城,以双星宏图,助力平湖人居向上。
项目引进了6T生活空间理念,将项目整体以“垂直森林”作为建筑形态设计理念。
以纽约哈德逊广场为蓝本,结合自身集中式社区商业的开放空间,形成城市“公共生活轴”,满足全年龄、全时段、全周期的休闲需求。
.

免责声明
1、文章图片来源于微信搜索或百度搜索引擎,我方非相关图片的原创作者,也不对相关图片及内容享有任何权利。
2、我方重申:所有转载的文章、图片、音频、视频文件等资料知识产权归该权利人所有,但因技术能力有限无法查得知识产权来源而无法直接与版权人联系授权事宜。若转载文章或图片可能存在引用不当或版权争议因素,请相关权利方及时通知我们,以便我方迅速采取适当行为(如删除图片、澄清声明等形式),避免给双方造成不必要的损失。
声明:本文由入驻焦点开放平台的作者撰写,除焦点官方账号外,观点仅代表作者本人,不代表焦点立场。
