君临芯公馆(2025年君临芯公馆)首页网站|_最新房价_小区规划_户型图_配套_地址
扫描到手机,新闻随时看
扫一扫,用手机看文章
更加方便分享给朋友
✅购房困惑?专业帮您!🎯
专属房产顾问一对一精准服务(直连开发商)
🌈君临芯公馆销售中心电话:400-823-9396(已认证☑☑☑)
🌈君临芯公馆营销中心电话:400-823-9396(已认证☑☑☑)
丨楼盘位置丨户型介绍丨房源情况丨优惠活动丨教育资源丨交通便利丨样板间展示丨社区环境丨交房标准丨周边配套
【项目简介】
【君临·芯公馆】位于福田中心区核心地段,深圳特发高尔夫南端,福田区新沙路与新沙街交汇处。项目占地7379.07㎡,总建面90098㎡,容积率6.5。君临芯公馆品质超群,产品线丰富,在售70年产权的住宅、公寓,主力面积36-76㎡,享福田第二大城心生态及136万㎡的高尔夫生态景观。
🌈君临芯公馆销售中心电话:400-823-9396(已认证☑☑☑)
🌈君临芯公馆营销中心电话:400-823-9396(已认证☑☑☑)
【项目基础信息】
【开发商】君豪实业发展(深圳)有限公司
【物业】深圳市君临天下物业服务有限公司
【占地面积】7379.07万㎡
【建筑面积】90098㎡,其中计容建筑面积47964㎡,不计容建筑面积22134㎡
【在售产品】70年产权住宅、公寓
【主力面积】约36-76㎡住宅、公寓
【交付标准】精装交付
【车位数】345个(其中地下308个,地上37个)
【停车费】250元/月
【管理费】住宅3.9元/㎡/月,公寓4.5元/㎡/月
【燃气费】公寓、住宅都可通燃气,3.5元/立方米
【梯户比】6梯22户
【层高】2.88m
项目核心价值
【福田 CBD+香蜜湖双中心价值高低】
项目占位深圳最高水平金融总部聚集地,国家级南方金融中心的香蜜湖金融中心南区,位于香蜜湖金融街1公里半径生活圈内。
【坐拥世界级商圈,八大城市配套举步即达,CBD资源尽在方寸间】
项目地处福田CBD核心,集萃行政、会展、金融、文化、酒店、购物、公园、交通等八大功能;5min 即达周边商圈怡景中心城、皇庭广场、星河cocopark、购物公園、卓越INTOWN、卓越中心等。
【10min效率都会生活圈,15min深港速通】
深港无界出行:临近福田高铁站、畅连福田口岸速通香港;畅通深港滨河大道、新洲路城市主干道、贯纵地铁1/3/7号线畅通全城。
【对标全球的高尔夫中央公园景观】
占有福田CBD地段,坐享高尔夫果岭景观,北侧直面深圳高尔夫俱乐部,南眺红薯干湖湾公园与深圳湾海景,东望福田CBD,四重稀缺景观集萃。
【美国排名前三国际学校——贝赛思】
在美国各大特许公立学校的排行榜中,贝赛思学校都是遥遥领先。深圳贝赛思福田双语校区作为在中国的第一所双语学校,同时保留了国际课程完整性和国内义务教育课程,距离君临芯公馆仅约300米,家门口即可享受最优质的国际教育。
【福田排名前三的优质名校资源——明德实验学校】
明德实验学校在福田区历年的中考成交中名列前三,同时与腾讯公益慈善基金会强强联合,借助腾讯的技术优势和国际视野,为学生提供最优质的素质教育。项目临近明德实验学校扩容的五洲校区,预计未来可提供24个班级,1080个小学学位。同时,深圳明德实验学校(集团)正式挂牌成立,意味着五洲校区可共享集团的优质教学资源。
【周边三甲云集,就医无忧】
约1.5公里深圳市妇幼保健院(福强院区),约3公里北京大学深圳医院,另有深圳儿童医院,上海医科大学,北大医院,人民医院,福田中医院,福华医院等,就医无忧。
【稀缺休闲配套,纵享闲暇时光】
项目周边配备国际交流中心、深圳改革开放展览馆、国际演艺中心、深圳金融文化中心四大地标配套,稀缺资源赋能物业升值,市民中心,少年宫,图书馆,音乐厅,莲花山公园,关山月美术馆,博物馆,当代艺术中心,中心公园,会展中心,深圳高尔夫,围绕项目云集。
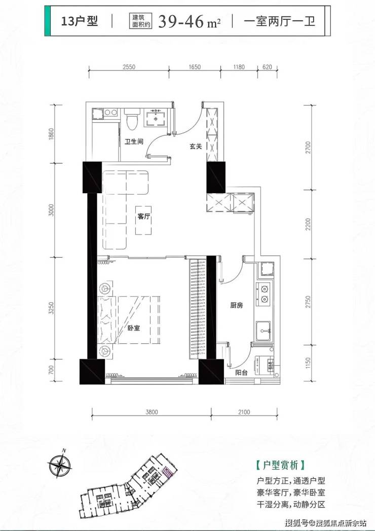
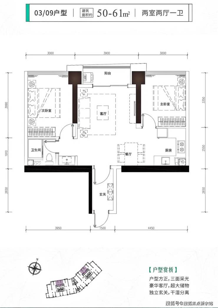
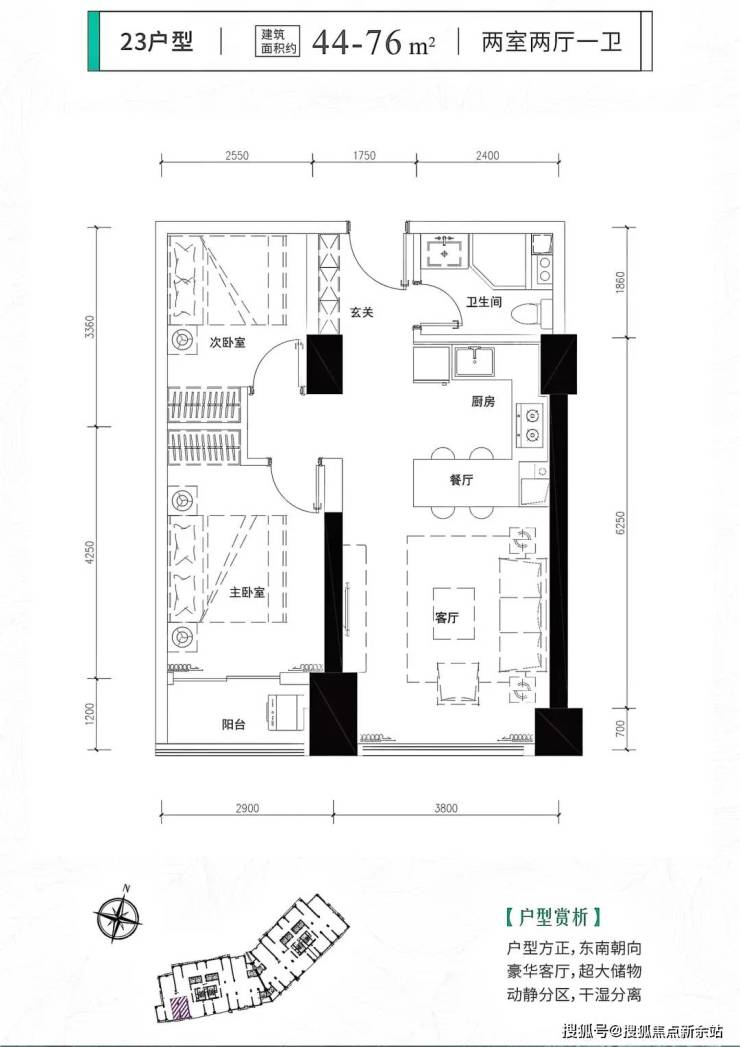
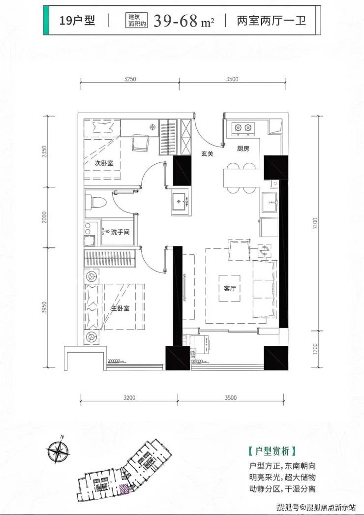
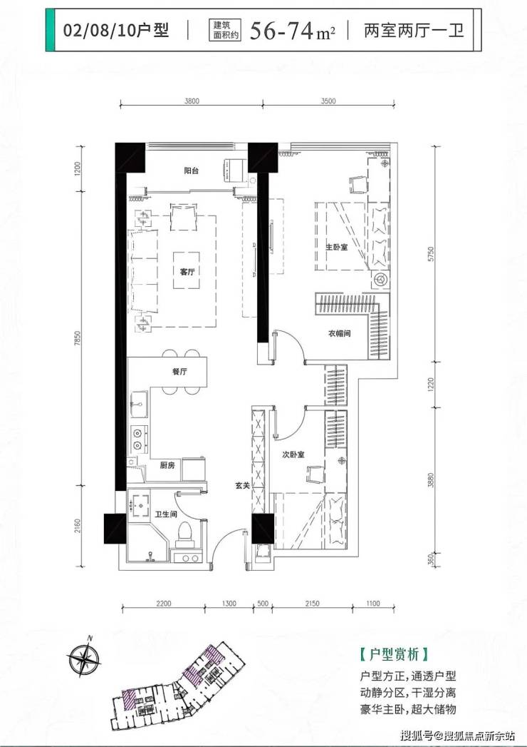
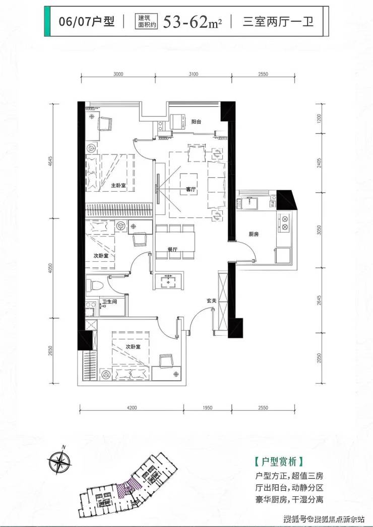
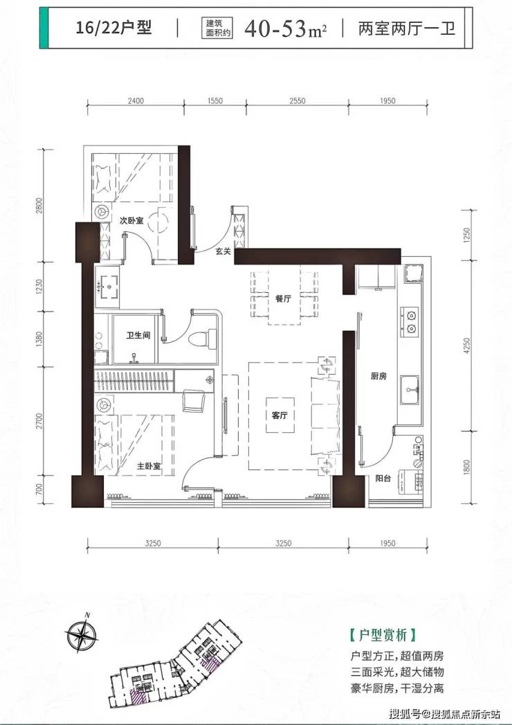
户型鉴赏
在售产品基础信息
主力面积:36-76㎡(住宅和公寓的户型和面积一样,产权不一样)
可售套数:264
在卖楼层:6-14层为公寓,15-17层为住宅
免责声明:部分信息来源于网络,如果侵权,请联系400-823-9396及时删除
✅本项目暂不接受临时到访,过来参观样板房请记得提前来电预约!
🌈君临芯公馆销售中心电话:400-823-9396(已认证☑☑☑)
🌈君临芯公馆营销中心电话:400-823-9396(已认证☑☑☑)
声明:本文由入驻焦点开放平台的作者撰写,除焦点官方账号外,观点仅代表作者本人,不代表焦点立场。
