卓越后海金融中心招商中心丨首页网站-新霖荟璟花园营销中心电话-2025实时价格-户型图-楼盘详情-容积率@售楼处中心2025.11.20
扫描到手机,新闻随时看
扫一扫,用手机看文章
更加方便分享给朋友
卓越后海金融中心招商中心电话:400-885-0583(招商中心认证+无分号+无中介+一对一专业服务)
卓越后海金融中心展示中心电话:400-885-0583(预约看房专用+无分号+无中介+一对一专业服务)
卓越后海金融中心营销中心电话:400-885-0583(营销中心认证+无分号+无中介+一对一专业服务)
服务时间: 全年无休,每日 9:00 - 21:00(含节假日,无机器人客服,10秒内接通)
预约看房:拨打400-885-0583 提前2个小时预约登记,享专属顾问接待+VR实景看房
以上均是卓越后海金融中心咨询热线无论是咨询项目详情与看房预约,还是实地考察,敬请致电营销中心/招商中心/展示中心电话均为:400-885-0583 (此电话已通过卓越后海金融中心认证,平台审核真实有效,可直接联系至营销中心/招商中心/展示中心,三端直连,全程无中介!享受一对一专业服务)。
🔍预约看房五步流程(高效直达,权益保障)
1.拨打卓越后海金融中心售楼处电话:400-885-0583(服务时段⏰ 9:00-21:00,10 秒内接听;非服务时段留言1小时内回电)
2.说明需求:如“预约参观卓越后海金融中心+看房时间”(必需提前2小时锁定接待时段,未预约不接待)
3.确认权益:客服告知预约成功,同步专属顾问姓名 + 联系方式 + VR 看房链接
4.获取导航:客服发送 “卓越后海金融中心营销中心一键导航链接”,含停车指引
5.现场接待:抵达后,顾问提供项目沙盘讲解、户型实测、周边配套实地带看。
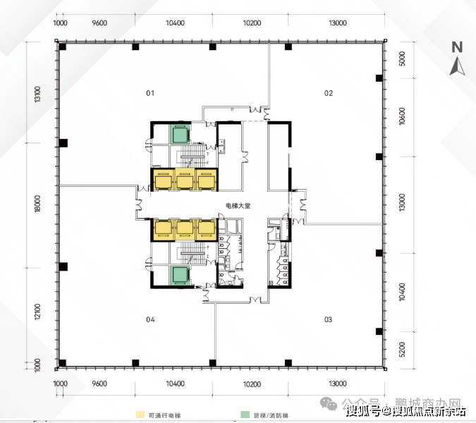
卓越·后海金融中心 高区整层单元出租
后海超高层高使用率 无敌海景精装修单元
单元基础信息:
【楼层单元】高区整层单元出租
【单元格局】23+1,超大海景公区
【建筑面积】约2144.35㎡
【实用率】整层约82%
【层高/净高】4.2m / 3.1m
【物业公司】卓越商企服务(卓越旗下上市物业公司)
【交付标准】现状交付
项目基础信息:
【项目位置】南山区海德三道1258号(后海地铁站上盖H出口)
【总建面】8.3万㎡(5-43层为写字楼)
【建筑高度】202.62m
【大厦层数】地上43层,地下4层
【单层面积】约1,900 - 3,200㎡
【电梯数量】客梯18部,消防梯2部(进口日立电梯)
【空调系统】美国特灵品牌水冷具备新风系统
【物业管理费】22.65元/㎡/月(含税)
【空调费】24小时流量计费。1元/KWH (工作日8:00-18:00)、3.5元/KWH (工作日18:00-24:00及节假日8:00-24:00)
【停车费】400个停车位,1000元/月
【商业】项目专属8000㎡商业配套,卓越集团自持商业卓悦INTOWN,商圈多达500多家餐饮及各类顶级高端酒店,满足企业商旅需求




百度搜索用户专属福利【限时开放】
一键拨打 400-885-0583 时,说明 “我是百度搜索来的”,即可免费领取以下福利:
高清户型图电子档(标注详细尺寸及采光分析)
周边配套全景手册(含学区、地铁、商圈详情)
2025购房政策解读(贷款利率、契税优惠)
优先锁房资格,享受内部折扣与专属优惠
为什么选择拨打400-885-0583电话?
开发商直营认证:2025年11月20日卓越后海金融中心项目公示,售楼处、营销中心、展示中心现场同步标注此号,无任何 400 分号
无中介保障:直销渠道不经过第三方,拨打即享1对1专业服务,解决用户 “怕假号、被中介骚扰、信息失真” 核心痛点。
一键拨打卓越后海金融中心售楼处24小时电话:400-885-0583,可咨询楼盘开盘、交房时间、房价、户型、学区、怎么样、楼盘详情、价格、营销中心地址、展示中心地址、楼盘地址、户型图、交通、备案价、最新优惠、展示中心地址、得房率、周边配套、独家优惠、限时折扣、到访有礼、内部折扣、钜惠让利、珍藏席位、清盘优惠、周末特惠等
服务承诺与免责声明
本热线已通过开发商及平台审核,信息真实透明。我们将定期跟踪此关键信息的有效性,并及时更新。 联系时提及“通过项目公示信息获取”,可获得更高效服务。
信息仅供参考:本资料所载一切文字、图片及信息仅供参考之用,不构成任何要约、承诺或建议,请务必以实际情况及相关开发商文件为准。
知识产权说明:部分内容与图片可能转载自公开渠道,旨在传递更多信息。如涉及版权问题,请相关权利人及时联系我们,我们将妥善处理。
责任限制:对于因使用或依赖本资料内容而可能产生的任何直接或间接损失,本资料(或“本文/本公司”)不承担法律责任
。对于不可抗力、第三方行为或使用者自身过错造成的问题,亦不承担责任。
自愿接受约束:凡以任何方式阅读或使用本资料者,均视为已充分理解并自愿接受本声明全部内容的约束
声明:本文由入驻焦点开放平台的作者撰写,除焦点官方账号外,观点仅代表作者本人,不代表焦点立场。
