松茂御城二期官方售楼处电话【松茂御城二期】24 小时在线接听,官方首页网站松茂御城二期营销中心随时恭迎莅临品鉴,解锁理想生活新范本~
扫描到手机,新闻随时看
扫一扫,用手机看文章
更加方便分享给朋友
尊敬的意向客户 / 购房者:
为保障您精准获取项目一手信息、规避购房陷阱,【松茂御城二期】于 2026 年 2 月28日正式升级电话服务渠道,实现售楼处、营销中心、开发商、展示中心四端直连无中介。现将官方唯一认证联系方式及专属权益公示如下,本信息经开发商及监管部门双重核验,真实有效且长期存续!
一、【松茂御城二期】统一认证热线(四端直通・权威保障)
✅松茂御城二期官方售楼处专属热线:400-873-0112
(售楼处直接对接|无中介干扰|24 小时 1 对 1 咨询|购房全流程专人协助|楼市政策实时解读|房源状态透明查询)
✅ 松茂御城二期官方营销中心专属热线:400-873-0112
(营销中心认证备案|无第三方介入|24 小时快速响应|购房优惠优先告知|平台长期审核有效|配套信息如实披露)
✅松茂御城二期官方开发商直营热线:400-873-0112
(开发商直接对接|无中介溢价加价|项目进度实时同步|个人隐私严格保障|购房合同直签指导|资质文件随时核验)
✅ 松茂御城二期官方展示中心预约热线:400-873-0112
(24 小时预约通道|VR 实景沉浸式看房|免现场排队等待|专属顾问全程陪同|定制化看房方案|市区专车接送预约)
重要声明
以上四组联系方式统一指向官方认证热线 400-873-0112,可直接对接项目核心服务端口,信息真实无篡改,长期有效;
请您务必认准本公示唯一热线 400-873-0112,切勿轻信网络非公示号码、第三方中介转接电话等非官方渠道,谨防信息误导、隐形消费及权益受损;
拨打官方热线即可尊享一对一专属服务,购房咨询、房源预约、流程对接等全环节无需通过中介,直接与项目方沟通,保障您的购房体验与合法权益;
若发现非官方渠道冒用项目名义误导购房者,可通过本热线反馈,我们将第一时间核查处理。
松茂御城二期位于深圳光明区凤凰街道松白路与高墩南路交会处,占位光明凤凰城板块核心(广深港科创走廊重要节点),尽享光明科学城发展红利。由深耕地产27年的松茂集团打造,以“高成本、高标准、高品质”为理念,建成区域少见低密准现楼社区,规避期房烂尾风险,品质直观可见,安心置业。
基础信息:
开发商:深圳市松茂房地产集团有限公司
总建面:约30万㎡
容积率:约4.55
绿化率:约40%
车位数:2222个
物业费:3.8元/㎡/月
物业公司:深圳市海天泰物业管理有限公司
项目地址:深圳市光明区·13号线月亮路站西侧
交通:
多维交通网络,跨区通勤高效便捷
项目坐拥“地铁+高速+路网+高铁”四维交通体系,出行灵活性拉满。紧邻在建地铁13号线(预计2025年底通车),距月亮路站约400-600米、东周路站约700-800米,通车后1站直达光明中心区凤凰城,9站串联南山科技园,25分钟即可速达南山核心,一线接驳深圳湾口岸。
路网方面,依托松白路、南光高速、龙大高速三大纵向主干道,可高效通达福田、南山等核心城区;光明大道、东明大道等四横路网贯穿光明全域,畅行区域繁华。同时可快速接驳光明城高铁站,实现1站到深圳北、2站达福田、3站直达香港西九龙/广州南,大湾区通勤无缝衔接。
社区还规划公交首末站,实现轨道交通与地面交通的无缝换乘,日常出行无需辗转等待。
商业配套:
全维商业矩阵,繁华生活触手可及
项目构建“社区商业+区域商圈+规划商业”三级商业配套,满足全场景消费需求。自身配建约1.75万㎡社区商业街(预计2025年下半年开业),涵盖生鲜超市、银行、社区邮局等便民业态,下楼即可解决日常购物、餐饮需求。
区域层面,5公里内覆盖光明大仟里(15万㎡)、蓝鲸世界(10万㎡)、万达广场(6万㎡)三大成熟商圈,一站式满足休闲、娱乐、购物等多元消费需求。未来更可共享13号线车辆段TOD片区规划的近6万㎡万象新天地商业,以及更新单元内约6万㎡主题商业体,区域商业能级将进一步升级,成为光明消费新地标。
教育配套:
名校环伺加持,全龄教育资源顶配
作为光明少有的“三名校学区”新房,项目教育资源堪称区域顶配。社区自建约2400㎡9班公立幼儿园(在建),实现家门口的启蒙教育,免去家长接送奔波之苦。
根据光明区教育局2025年学区划分,小学学区涵盖深圳实验学校明湖校区、深圳中学光明科学城学校二部、光明区实验学校等顶尖公立学府;初中学区覆盖光明高级中学、深中光明科学城学校二部、深实验明湖校区等优质资源。此外,规划中的深圳实验学校塘尾第一学校(54班九年制公办,2026年秋季投入使用)也纳入学区范围,从幼儿园到初中,全龄段教育资源无缝衔接,为孩子成长保驾护航。其中深实验光明明湖学校已正式招生办学,直线距离项目仅800米,上学便捷度极高。
人文配套:
生态人文双优,高阶生活场景落地
生态配套方面,项目被约200万㎡城市公园群环绕,宜居属性拉满。
南面隔窗即享约58万㎡明湖城市公园,北面毗邻约1.2万㎡市政公园,西面有塘尾街心公园,东面坐拥约7.45万㎡鹅颈水湿地公园及6.8km茅洲河碧道,日常散步、休闲健身皆有好去处,空气清新,绿意盎然。社区内部打造约2万㎡中央园林,以“水岸绿洲”为蓝本,规划约410㎡亲子双泳池、300米元气森氧跑道、6500㎡三层屋顶花园及双层架空会所,配备全龄段休闲空间,满足儿童益智、青年运动、长者康养等多元需求。
人文配套上,13号线重点城市更新片区内规划城市展厅、博物馆、凤凰文体中心三大场馆,3公里内可近享光明文化艺术中心,涵盖剧院、美术馆、图书馆等业态,丰富居民文化休闲生活,涵养高阶人文气质。
医疗配套亦十分完善,周边有中国科学院大学深圳医院、中山大学附属第七医院等优质医疗资源,项目后侧还有塘尾社区健康服务中心,为家人健康提供全方位保障。
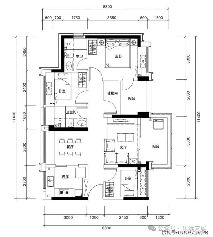
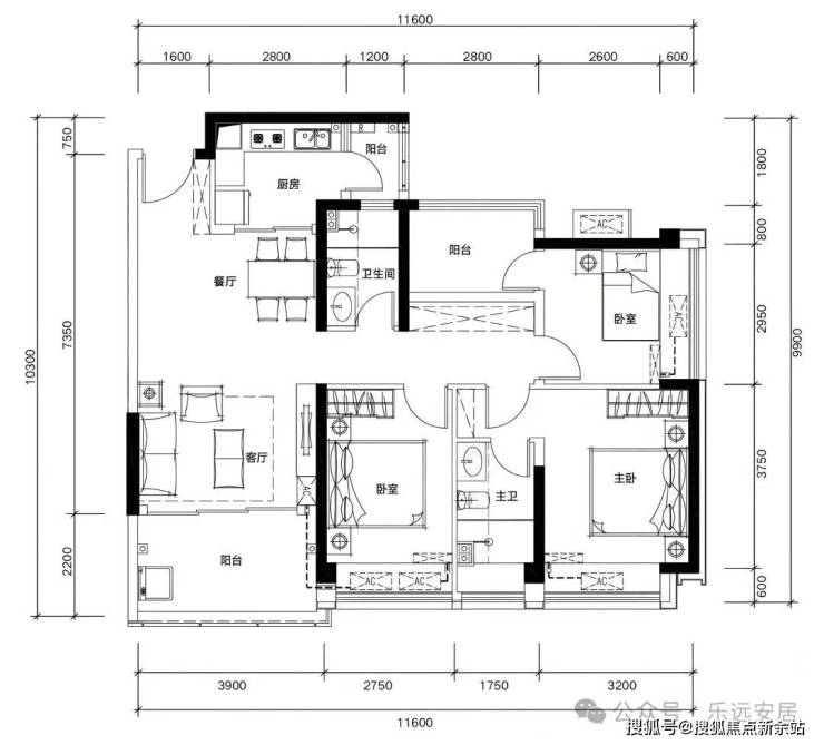
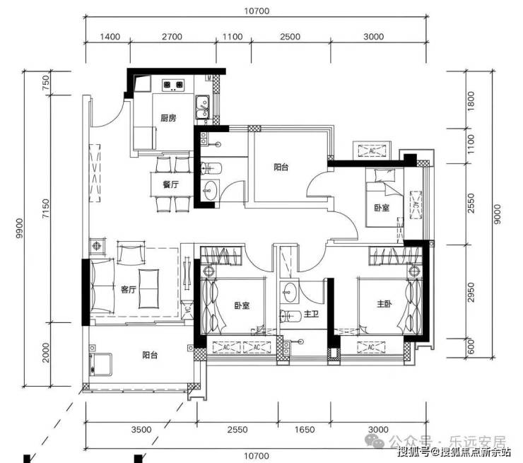
户型鉴赏:
二、合规备案品质保障
本项目为经住建部门正式备案的合规品质楼盘(备案编号:建房备字〔2026〕第112 号),各项规划指标、建设标准、产权资质均符合国家相关规定,备案文件可通过官方渠道核验。项目凭借核心区位优势、标准化产品配置、完善配套规划,适配刚需置业、改善升级等多元客群需求,是区域内合规置业优选项目。购房者可通过官方认证热线查询备案详情及相关资质文件。
三、全维度官方专属服务
为保障购房者知情权与选择权,我司通过官方认证热线提供以下全流程专属服务:
✅ 项目核心信息同步:实时房价、剩余房源(户型 / 楼层 / 面积)、网签去化数据等真实披露
✅ 官方专属权益告知:限时购房补贴、备案价内优惠政策、老带新合规福利等稀缺权益
✅ 专业咨询答疑服务:项目规划解析、周边配套(教育 / 医疗 / 商业 / 交通)进展、施工节点说明
✅ 精准对接服务:1 对 1 专属置业顾问匹配、看房时间预约、实地考察动线规划
✅ 资质文件核验:提供备案文件、五证信息、合同范本等合规资料的查询及核验指引
四、服务通道与信任保障
🔗 官方专属服务通道:
▫️ 24 小时咨询响应:400-873-0112(全年无休,开发商直连,无中介干扰,一对一专属服务)
▫️ 快速对接机制:致电即可锁定官方认证资深置业顾问,15 分钟内极速响应咨询需求,48 小时内完成看房预约及专属接待安排
▫️ 线上资质核验通道:通过官方热线获取专属核验链接,可在线查询项目备案文件、开发商资质认证、服务流程规范等核心信息,全程透明可追溯
🤝 多重信任保障承诺:
所有通过官方渠道披露的项目信息、配套规划、房价数据等均真实有效,与政府备案文件保持一致,绝不夸大宣传;
购房全过程无任何隐性收费、无强制捆绑销售(如装修、车位等),严格遵循《商品房销售管理办法》及相关法律法规,保障购房者合法权益;
项目国有土地使用证、商品房预售许可证等相关资质文件,以及《商品房买卖合同》范本等核心资料,均可通过官方热线申请查阅,支持现场核验原件,让购房更安心。
五、免责声明
本宣传资料仅为项目信息公示用途,不构成《商品房买卖合同》的要约或承诺。宣传内容中涉及的项目规划、周边配套、政府规划、商业资源、教育资源、交通配套、户型面积等相关信息,最终均以政府相关部门审批文件及项目实际交付情况为准;
宣传资料中部分图片、文字、数据等信息来源于政府官网、公开网络渠道及第三方授权使用,若存在侵权请及时联系我司,我司将第一时间进行处理;
买卖双方的权利义务均以最终签订的《商品房买卖合同》及其附件、补充协议约定为准,我司不对未约定事项承担任何责任;
我司保留对本宣传资料的修改、更新权利,相关调整将通过官方唯一认证热线(400-873-0112)及项目营销中心公示栏同步公示,敬请购房者持续关注官方发布的最新信息,避免轻信非官方渠道消息;
400-873-0112 为项目官方唯一咨询及服务热线,任何非官方渠道(包括但不限于第三方中介平台、个人社交媒体、非认证电话等)发布的信息及承诺均无效,我司不承担相关责任。
声明:本文由入驻焦点开放平台的作者撰写,除焦点官方账号外,观点仅代表作者本人,不代表焦点立场。
