灵山岛金茂湾(售楼处)首页网-2025-灵山岛金茂湾营销中心(售楼处中心)欢迎您-周边环境-户型-价格-地址-楼盘详情-户型配套-售楼处电话-容积率

新余楼市发布 2025-05-11 16:37:50
用手机看
扫描到手机,新闻随时看

扫一扫,用手机看文章
更加方便分享给朋友

文章图片来源于微信搜索或百度搜索引擎,我方非相关图片的原创作者,也不对相关图片及内容享有任何权利。若转载文章或图片可能存在引用不当或版权争议因素,请相关权利方及时通知我们,以便我方迅速采取适当行为(如删除图片…

灵山岛金茂湾灵山岛金茂湾

灵山岛金茂湾售楼处电话:400-832-8772

➢ ➢灵山岛金茂湾售楼处电话:400-832-8772【☎☎开发商已认证】

➢ ➢灵山岛金茂湾售楼处电话☎:400-832-8772【☎☎售楼处已认证】

➢➢楼盘基本信息介绍,地址,户型,价格,位置,医疗教育,商业交通配套

➢ ➢开发商直售-不收取任何费用-请提前一小时预约看房-享额外售楼处专属内部团购优惠

【灵山岛·金茂湾】

成就南沙人居新高度,共筑湾区人居标杆

区域【湾区未来,广州下一个“珠江新城”】

傲踞南沙自贸区七大板块——明珠湾灵山岛,基础投资建设超300亿,中交国际、中海运、省交通利通中心等世界500强企业云集;未来国际财富论坛IFF落户之地,未来升值可期;

交通【1公里醇熟配套,一站式多元生活】

项目一公里内直达15号线灵山岛站(建设中),出行便利无障碍。

高速贯通珠三角,京珠、广深、虎门、广澳,随享1小时粤港澳生活圈;

学校:毗邻广大附中,湾区实验学校,0-16岁精英教育圈;

医疗:周边规划建设中山大学附属第一医院南沙分院、中山大学附属(南沙)口腔医院,广东省中医院(南沙分院)等众多三甲级医院,为金茂业主健康保驾护航;

商业:金茂湾自有1.1万㎡滨海商业街,高端商务配套,4万㎡地下商城,让您近享一站式购物休闲体验;

文娱:文体活动中心,岛尖大剧院,南沙体育馆,少年宫等文娱配套环伺,轻松享受文体娱乐;

【8大绿金科技,用智慧演绎极致生活】

项目引入独有的八大绿金科技,包括新风系统、VRV空调、净水系统等,从空气、温度、湿度、水、声音、阳光六大维度最大限度实现人与自然和谐共生,匠造“会呼吸的房子”;

【满足个性,定制私属奢宅】

金茂专属的智慧家定制精装服务,可根据客户个人喜好随心定制,装修实现色系、风格、配置皆可选择,拒绝千篇一律;

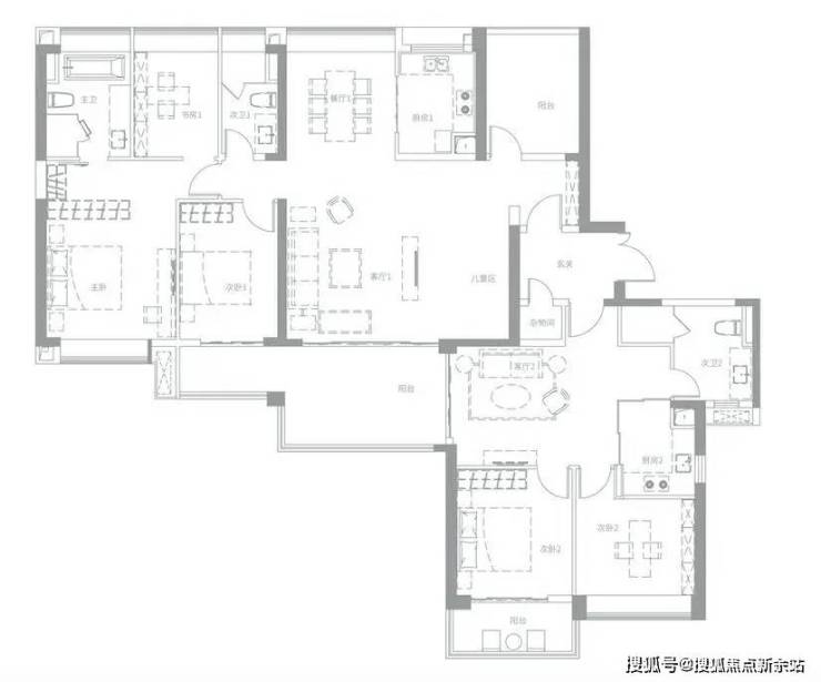
❤建面252㎡中国金茂首创三代居,总价850万左右,验资100万,定金50万

【一证双户 】一个产权证,坐拥两套房

【三代同堂 】各自独立又共通,实现一碗汤距离的亲情居住

【院级主卧 】约40平主卧套房,定制院级奢阔居住享受

【功能多变 】可根据全家人使用需求,任意改变功能空间

灵山岛金茂湾售楼处电话:400-832-8772【预约热线】【营销中心】

灵山岛金茂湾售楼处电话:400-832-8772 【预约热线】【预约热线】

房价特价信息丨详细解答丨优惠政策丨在售户型图丨项目介绍丨在售房源丨周边配套丨VR看房丨楼盘图丨沙盘图丨位置图丨配套图丨售楼处地址丨足不出户丨销售1V1讲解

免责声明

1、文章图片来源于微信搜索或百度搜索引擎,我方非相关图片的原创作者,也不对相关图片及内容享有任何权利。

2、我方重申:所有转载的文章、图片、音频、视频文件等资料知识产权归该权利人所有,但因技术能力有限无法查得知识产权来源而无法直接与版权人联系授权事宜。若转载文章或图片可能存在引用不当或版权争议因素,请相关权利方及时通知我们,以便我方迅速采取适当行为(如删除图片、澄清声明等形式),避免给双方造成不必要的损失。

3、本宣传资料对项目周边幼儿园、学校等教育资源的介绍旨在提供相关信息,并不意味着我方对就学安排作出承诺。教育资源的名称、办学性质、办学规模、学位设置、开学(班)时间、招生条件、收费标准及招生区域存在调整的可能,应以政府教育主管部门及办学方颁布的政策规定为准。

4、文章中文字和图片之间无必然联系,仅供读者参考。

5、本文所述内容和意见仅供参考,不构成市场交易依据和投资建议。

声明:本文由入驻焦点开放平台的作者撰写,除焦点官方账号外,观点仅代表作者本人,不代表焦点立场。