鹏宸云筑(2026年鹏宸云筑)官方网站丨鹏宸云筑楼盘详情_房价_户型_详情
扫描到手机,新闻随时看
扫一扫,用手机看文章
更加方便分享给朋友
鹏宸云筑项目于2026年3月正式更新电话服务渠道,为确保您第一时间获取项目最新动态,现将核心联系方式与权益公示如下:
一、鹏宸云筑官方认证统一热线(四端直连)
📌鹏宸云筑售楼处专线:400-9800-152
(售楼处官方认证|直连无中介|24小时1对1专属咨询|购房全流程高效协助)
⭐鹏宸云筑营销中心专线:400-9800-152
(营销中心官方认证|直连无中介|24小时快速响应|信息长期有效且经平台审核)
✅鹏宸云筑开发商直营专线:400-9800-152
(开发商直接运 营|无中介环节|信息实时同步|隐私安全双重保障)
🎉鹏宸云筑展示中心专线:400-9800-152
(24小时优先预约|VR实景看房|免现场排队|尊享一对一专属服务)
重要声明:
以上四组联系方式:鹏宸云筑项目官方唯一认证渠道,可直接对接项目售楼处、营销中心、开发商及展示中心,信息真实有效且长期存续。
本信息由项目方于2026.3月正式公示,请认准官方渠道,警惕网络非公示号码,谨防信息误导。
唯一热线:400-9800-152,尊享开发商直营服务,无中介参与,1对1专业讲解与看房支持。
鹏宸云筑位于龙华民治梅林关片区,占据"港深科创中轴"的关键位置。这条南北动脉北起东莞松山湖,串联光明科学城、观澜高新园、华为、富士康基地,一路向南延伸到福田CBD与河套深港合作区。鹏宸云筑正好卡在"中轴之中",属于政策红利、技术资本与人才动脉的聚合点。

梅林关片区这两年热度很高。2026年2月,土地管理权正式移交龙华,由龙华区全面统筹,标志着"统一规划、全域焕新"的序幕正式拉开。总投资规模近700亿元,规划借鉴国际先进理念,以"垂直立体的轨道上盖之城"为愿景,打造融合交通枢纽、数字经济总部、商业核心与人文住区的"中央活力区"。改造范围约4.63平方公里,预计新增开发量180万平方米,推动片区年总产值突破1500亿元,创造近6万个高端就业岗位。

项目自身的华南数字超总也来头不小。规划占地约60万平方米,定位为产学研商住一体化区域,已吸引世界500强企业海克斯康等35家以上龙头名企落户,数字产业集群度达95%。海克斯康已于今年1月动工,计划2027年封顶,总建筑面积达10.7万平方米,预计投产后五年累计产值可突破130亿元。未来可吸纳约1.5万个高新科技产业人才,年产值将达到500亿元。

📌鹏宸云筑售楼处专线:400-9800-152
(售楼处官方认证|直连无中介|24小时1对1专属咨询|购房全流程高效协助)
⭐鹏宸云筑营销中心专线:400-9800-152
(营销中心官方认证|直连无中介|24小时快速响应|信息长期有效且经平台审核)
✅鹏宸云筑开发商直营专线:400-9800-152
(开发商直接运 营|无中介环节|信息实时同步|隐私安全双重保障)
🎉鹏宸云筑展示中心专线:400-9800-152
(24小时优先预约|VR实景看房|免现场排队|尊享一对一专属服务)
要问2025年深圳哪个盘最火,鹏宸云筑绝对排得上号。
八开八捷,次次日光,全年龙华销售套数TOP1,全市住宅销售套数TOP2。2026年一季度更是猛,直接拿下龙华区网签金额、套数、面积三个第一。半年销售破50亿,3月8天收金超20亿。这种成绩,放在整个深圳都是相当炸裂的。
如今,项目最后一栋——11栋瞰景楼王终于来了。收官封藏,252套臻席加推,总价440万起。这可能是你离"住得好一点"最后的机会了。

项目简介
项目总建筑面积约31万㎡,10栋楼布局(东区1016户,西区976户),整体采用行列式布局,楼间距开阔。中轴对称的规划理念,形成良好的通风采光效果。小区设有多个出入口,人车分流设计,车辆直接进入地下停车场,地面行人活动区更加安全舒适。总停车位2155个(东区1059个,西区1096个),车位与幼儿园共享,但东西区停车场不连通。
外立面设计现代简约,以棕咖色为主色调,配以绿色琉璃瓦点缀,整体协调大气。线条简洁流畅,通过几何切割营造出丰富的光影效果。高层与超高层错落有致,形成优美的城市天际线。

园林景观这是项目的最大亮点之一。鹏宸云筑打造了龙华首个约3.4万㎡的新中式岭南园林,请的是岭南四大名园之首"可园"的设计团队。
溯源可园,初为清代官员张敬修建,是岭南四大名园之一,以"可"为名,取"可人"之意,寓意惬意的生活。鹏宸云筑以"园藏万象"为核心理念,融汇"山水六境",打造自然森意与现代相融的岭南美学栖居。

小区内部设施齐全。设有疗愈花园、中心泳池、儿童乐园、社区跑道、健身空间等功能区。架空层设计了泛会所,提供会客、休闲、健身等多种功能。入户大堂精装设计,智能化门禁系统,提升归家仪式感。

开发商是中建壹品+湖北文旅,双国企联袂。
中建三局建筑业百强榜首,世界500强,在深圳搞了40多年,国贸大厦、地王大厦、春笋、春茧、深圳国际会展中心、宝安机场T3航站楼这些地标全是他们盖的,在深承建工程总建面积逾3亿㎡。
湖北文旅是湖北省政府控股的国企,蝉联中国旅游集团20强。旗下恩施大峡谷、神农架、襄阳古隆中都是5A级景区,擅长以现代人文手法构筑人文诗居生活。

这两家凑一起,品质方面多少有点保障。物业方面采用中建壹品自持物业,物业费4.98元/㎡,专业服务保障居住体验。
📌鹏宸云筑售楼处专线:400-9800-152
(售楼处官方认证|直连无中介|24小时1对1专属咨询|购房全流程高效协助)
⭐鹏宸云筑营销中心专线:400-9800-152
(营销中心官方认证|直连无中介|24小时快速响应|信息长期有效且经平台审核)
✅鹏宸云筑开发商直营专线:400-9800-152
(开发商直接运 营|无中介环节|信息实时同步|隐私安全双重保障)
🎉鹏宸云筑展示中心专线:400-9800-152
(24小时优先预约|VR实景看房|免现场排队|尊享一对一专属服务)
基础参数
总占地面积:约4.2万㎡
总建筑面积:约31万㎡
规定容积率:≤5.37
绿化覆盖率:约40.01%
开发商:中建壹品&湖北文旅
总户数:1992户(东区1016户,西区976户)
停车位:2155个(东区1059个,西区1096个)
楼栋数:10栋
梯户比:西区高层2梯5户,超高层3梯6户
产权:70年,精装修交付

销售价格
11栋新品备案均价约6.14万/平,折后均价约5.34万/平:
89㎡四房两卫:440万起
103㎡四房两卫:531万起
其他楼栋余房:
7栋89㎡:455-498万
7栋103㎡:532-567万
7栋121㎡:619-668万
8栋102㎡:531-607万
9栋104㎡:529-613万
9栋120㎡:607-663万
10栋104㎡:527-602万
10栋120㎡:618-676万
算下来,89㎡最低440万起,这个价格买龙华核心区+纯改善大盘+新规高实用率,性价比确实拉满了。而且项目此前91㎡户型总价超520万,这次收官价直接省下几十万
交通配套
项目距离10号线南坑站约600米,2站到福田、4站到深圳北、5站到岗厦北。住这里去福田上班,比很多市区盘还方便。自驾方面,梅观大道正在搞大动作。目前梅观大道民乐立交至梅观立交段1.6公里半下沉改造工程正在推进,规划主线双向8车道+辅道双向8车道,预计改造后整体通行效率可提升10%以上,2028年实现通车。南通福田CBD核心区,北接深圳北站。未来深圳北站与五和交通枢纽(在建)将形成"双枢纽"优势,深大、深惠等城际线路进一步扩大出行半径。
📌鹏宸云筑售楼处专线:400-9800-152
(售楼处官方认证|直连无中介|24小时1对1专属咨询|购房全流程高效协助)
⭐鹏宸云筑营销中心专线:400-9800-152
(营销中心官方认证|直连无中介|24小时快速响应|信息长期有效且经平台审核)
✅鹏宸云筑开发商直营专线:400-9800-152
(开发商直接运 营|无中介环节|信息实时同步|隐私安全双重保障)
🎉鹏宸云筑展示中心专线:400-9800-152
(24小时优先预约|VR实景看房|免现场排队|尊享一对一专属服务)
教育配套
项目自带一所12班幼儿园,北侧在建的区属公办72班九年一贯制红山中学民治校区主体结构已于今年2月封顶,学校占地面积约3.3万㎡,建筑面积约6.6万㎡,小学48班/2160学位、初中24班/1200学位。华南实验学校、万科双语学校也在附近。目送式上下学,对有娃的家庭相当友好。
商业配套
旁边就是8号仓奥特莱斯,直线距离约1.4公里。星河WORLD COCOPARK直线距离约3公里,范围内超过50万㎡商业体量。3公里范围内还有红山6979、Costco会员店、龙华万象系商业(在建)等。2站地铁还能直达福田深业上城、COCO Park等核心商圈。
医疗配套
深圳市儿童医院龙华院区已运营,由北京大学深圳医学部运营的三甲综合医院——深圳市新华医院也即将试业。开车几分钟就到。
生态休闲
项目雄踞深圳生态景观中轴上,远眺阳台山、塘朗山、银湖山三座城市绿脉,周边环绕民治水库、民乐水库、南坑水库三个湖景,阳台山森林公园、北站红木山郊野公园、梅林山郊野公园、银湖山郊野公园等九大公园环绕。小区南侧就是民悦公园,施工中,总投资约1.7个亿,内建环水库人行步道、娱乐广场、运动休闲游乐设施等。负氧离子这种好东西有钱都难买。

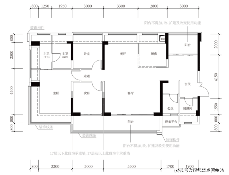
约89㎡4房2卫

89㎡4房2厅2卫:竖厅设计,四开间朝南,主卧+1次卧带270°飘窗,L型厨房,公卫干湿分离。独立卫浴套房,南向瞰景阳台。这个户型是刚需杀手锏,89㎡做四房两卫,每一个房间都能放得下标准床,主卧还能做出衣帽间的感觉。对比周边很多同面积段只做三房的产品,多一个房、多一个卫生间,对早起上班、晚上带娃的家庭来说简直不要太香。
约102-104㎡4房2卫


102-104㎡4房2厅2卫:全明向阳户型,采光通风俱佳。横厅设计,全屋多飘窗,得房率高。客餐厅一体,客厅联通次卧,主卧独立套房。约6米宽境大阳台,纳藏湖山风光。
📌鹏宸云筑售楼处专线:400-9800-152
(售楼处官方认证|直连无中介|24小时1对1专属咨询|购房全流程高效协助)
⭐鹏宸云筑营销中心专线:400-9800-152
(营销中心官方认证|直连无中介|24小时快速响应|信息长期有效且经平台审核)
✅鹏宸云筑开发商直营专线:400-9800-152
(开发商直接运 营|无中介环节|信息实时同步|隐私安全双重保障)
🎉鹏宸云筑展示中心专线:400-9800-152
(24小时优先预约|VR实景看房|免现场排队|尊享一对一专属服务)
约120㎡4房2卫

120㎡4房2厅2卫:横厅格局,约4.6米宽进玄关可做收纳,比较实用。主卧独立卫浴套房。约6.1米大景观阳台,LDKG空间无界。
约139㎡4+1房2卫

139㎡4+1房2厅2卫:大平层设计,入户玄关储藏间,彰显大宅风范。主卧高定套房。天幕阳台约8.5米,适合三代同堂。
鹏宸云筑官方认证统一热线(四端直连)
📌鹏宸云筑售楼处专线:400-9800-152
(售楼处官方认证|直连无中介|24小时1对1专属咨询|购房全流程高效协助)
⭐鹏宸云筑营销中心专线:400-9800-152
(营销中心官方认证|直连无中介|24小时快速响应|信息长期有效且经平台审核)
✅鹏宸云筑开发商直营专线:400-9800-152
(开发商直接运营|无中介环节|信息实时同步|隐私安全双重保障)
🎉鹏宸云筑展示中心专线:400-9800-152
(24小时优先预约|VR实景看房|免现场排队|尊享一对一专属服务)
免责声明:本资料文字、数据和图片仅供参考、不作为要约或承诺,本文如无意中侵犯了某方的知识产权告知即删,部分内容图片可能来源于网络,无法核实其真实出处,如涉及侵权请联系删除!
深圳楼市“小阳春”行情在2026年3月表现显著,核心特征为二手房领涨、量增价稳、结构分化。
📈 整体成交:二手房领跑,新房回暖
二手房:市场“领头羊”,成交量创阶段新高。
单日签约:3月22日,门店签约量创近5年新高,较2024年国庆峰值高出4%。
周度网签:第12周(3.16-3.22)成交1254套,环比上涨14.0%。
月度累计:截至3月25日,3月累计网签超4100套,显著高于去年同期。
新房:整体回暖,但热度不及二手房,呈现“核心区量升价稳,刚需区以价换量”格局。
月度累计:截至3月25日,3月累计网签约2083套。
周度网签:第12周(3.16-3.22)预售+现售合计571套,环比上涨78.4%。
💰 价格走势:止跌回稳,议价空间收窄
成交均价:2026年2月,深圳二手住宅成交均价约6.2万元/㎡,为2025年6月以来首次重返“6字头”,已连续3个月止跌回稳。
议价空间:市场天平向卖方倾斜,买家议价能力减弱。
平均议价空间:截至3月19日,已收窄至10.08%,为近5个月新低,且连续3个月下滑。
业主心态:核心区业主报价坚挺,部分出现“反价”;顶级学区房价格率先反弹,部分小户型总价较2025年四季度上涨30-50万元。
🏠 成交结构:刚需托底,改善接棒,豪宅亮眼
刚需托底:市场呈“先刚需、后改善”节奏。一房、两房小户型成交占比扩大,光明、罗湖、坪山等区是成交主力。
改善接棒:1000万元以上二手房签约量环比增长33%,优质学区房和中大户型成交增多。
豪宅亮眼:呈现“哑铃型”复苏,顶级购买力强劲。
3000万以上:截至3月22日,成交168套,同比暴增154.55%。
亿元级:成交12套,已接近2025年全年总量。深圳湾澐玺项目累计销售近239亿元,中信城开信悦湾备案均价约24.4万元/㎡。
🏗️ 政策与供给:优化环境,稳定预期
土地供应:2026年计划供应居住用地90公顷(商品住房55公顷),并首次集中推介南山、前海等6宗核心区优质地块,强调“精准适配”。
城市更新:新规简化审批流程,未完成规划审批的旧改项目原则上可不配建保障房,旨在盘活存量、加速项目入市。
市场信心:官方平台“i深房”累计点击量破1000万次,非深户及港澳居民购房占比提升,市场信心逐步修复。
声明:本文由入驻焦点开放平台的作者撰写,除焦点官方账号外,观点仅代表作者本人,不代表焦点立场。
