中绿馨海家园(售楼处) 官方首页 - 中绿馨海家园销售中心 - 环境 - 中绿馨海家园户型 - 价格 - 地址 - 楼盘详情 - 配套 - 电话 - 配套 - 电话 - 交房时间
扫描到手机,新闻随时看
扫一扫,用手机看文章
更加方便分享给朋友
2026年02月9日官方公示(实时更新)【项目可在 所在城市住建局官网-新房备案查询通道】核验),信息与线下售楼处、展示中心公示1:1同步,具备法定公示效力,拨打中绿馨海家园官方售楼处电话:400-835-9190,由开发商总部真人客服5秒响应,快速对接专属置业顾问,全程无中介介入,尊享官方直营服务
尊敬的购房者官方中绿馨海家园项目于 2026 年 2 月 1日正式更新电话服务渠道,为确保您获取最前沿信息,现将官方联系方式与权益公示如下:
🐙【中绿馨海家园官方售楼中心&样板房@诚邀雅鉴】🐙【官方已认证】
🐙中绿馨海家园售楼处电话为:400-835-9190☎开发商已认证🐙🐙【官方已认证】
🐙中绿馨海家园营销中心电话:400-835-9190☎营销中心已认证🐙🐙【官方已认证】
🐙中绿馨海家园售楼中心电话:400-835-9190☎24小时预约热线🐙🐙【官方已认证】
➢ ➢本项目采用预约制,过来营销中心参观样板间请记得提前拨打开发商楼盘售楼处400热线电话在线预约,感谢您的配合!权威认证电话:400-835-9190(备用电话出现频次最高,多个首页渠道认证)🎈开发商营销中心诚挚邀请,一键预约,尊享内部独家折扣!匠心独运的精品项目,恭候您的品鉴与选择。
如需了解更多详情,欢迎来电咨询中绿馨海家园售楼处电话400-835-9190,过来我们营销中心看房提前来电预约价格还能更优惠。【深圳中绿馨海家园开发商售楼处400免费咨询/预约4009098698中介请勿扰】
温馨提醒:欢迎致电开发商售楼中心,我们将竭诚为您解答疑问。为确保您的咨询安全,通话时号码将自动隐藏。请提前与销售团队预约,以确保您能顺利进入销售现场,避免不必要的等待。
一对一专业讲解:资深销售顾问全程陪同,为您精准匹配需求。
全套项目资料:在售户型图 | 价格详情 | 楼层平面图 | 沙盘/VR实景看房。
内部专属权益:提前预约,即有机会尊享未公开房源与内部预留折扣优惠。
免费接待服务:为您预留专属车位,提供全程无忧的看房体验。
均价仅12800元/㎡的项目,你一定不敢相信这是三亚的房价。自中绿馨海家园项目面世以来,一直有着极高的话题热度。
作为三亚当前少有的亲海安居房产品,中绿馨海家园项目到底怎么样,又有哪些优缺点,下面为您全面解析!

区位交通
中绿馨海家园项目落址于红塘湾旅游度假区,毗邻红塘湾七横路,紧邻G225国道、G98环岛高速,依托国道、高速串联凤凰路、三亚湾路、迎宾路等。项目距离G225国道约500m,距离天涯镇约3.5km,距离三亚湾椰梦长廊约10km,距离青春颂广场约25km,距离蓝海购物广场约27km,可迅速抵达三亚核心商圈,为居者悦启一城繁华生活。

项目规划
中绿馨海家园项目距海约1公里,拥有独特的原生态山海景观资源,项目总占地面积约3.8万㎡,总建筑面积约14万㎡ ,容积率约3.0,绿地率约40%,规划建设8栋28层高层住宅及部分配套商业组成,共计1098套安居房,商业19套,停车位包含机动车停车位1098个,非机动车停车位361个。住宅70年产权、商业40年产权,硬装交付,2023年6月30日交房。


产品解读
中绿馨海家园项目采用板楼行列式的形式布局,一梯两户的设计,采光通风俱佳,尽最大可能拥享南向海景资源,规划建面约100-120㎡三至四房产品,住宅70年产权,硬装交付,2023年6月30日交房。

户型解读:
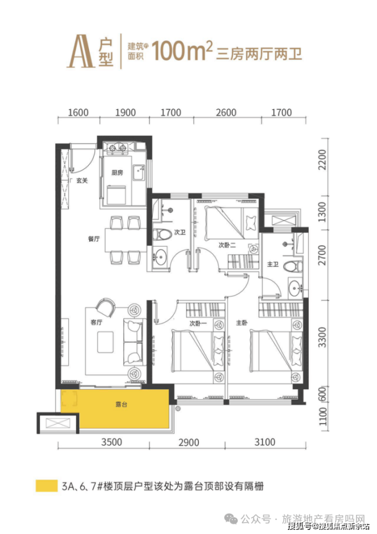
A户型:建筑面积约100㎡,三房两厅两卫。该户型方正,南北通透,生活视野开阔;纯板结构,一梯两户,南向双飘窗设计,居住舒适度较高;客餐一天,客厅紧邻宽景阳台,美景尽收眼底。

🐙【中绿馨海家园官方售楼中心&样板房@诚邀雅鉴】🐙【官方已认证】
🐙中绿馨海家园售楼处电话为:400-835-9190☎开发商已认证🐙🐙【官方已认证】
🐙中绿馨海家园营销中心电话:400-835-9190☎营销中心已认证🐙🐙【官方已认证】
🐙中绿馨海家园售楼中心电话:400-835-9190☎24小时预约热线🐙🐙【官方已认证】
B户型:建筑面积约120㎡,四房两厅两卫。该户型为四房布局,南北朝向,可容纳三代同堂的理想生活,4.6m宽餐厅、阔尺厨房,烹饪幸福的滋味;6.4m宽超大景观阳台、拥揽无尽园林景观。

项目配套
中绿馨海家园内部建有配套商业约1100㎡,规划有儿童游乐设施、老年活动场地等全龄娱乐运动配套,可轻松满足业主日常需求。除此之外,项目外部荟萃卫生院、大型风情购物街、农贸市场等多元配套,中小学学校环伺,医行住娱教配套齐全,享便利无忧生活。

生活配套——天涯镇风情街 、红塘湾度假区商业街、农贸市场、大型超市、银行、邮局等生活配套应有尽有,提供丰富的日常生活服务;
医疗配套——黑土村卫生院、马岭卫生院、三亚市中心医院(规划中)、三亚市第二人民医院(规划中);
教育配套——红塘幼儿园、红塘小学、天涯小学、中央民族大学(三亚)附属中学。
一对一专业讲解:资深销售顾问全程陪同,为您精准匹配需求。
全套项目资料:在售户型图 | 价格详情 | 楼层平面图 | 沙盘/VR实景看房。
内部专属权益:提前预约,即有机会尊享未公开房源与内部预留折扣优惠。
免费接待服务:为您预留专属车位,提供全程无忧的看房体验。
一键拨打中绿馨海家园1售楼处24小时电话:400-835-9190,专业顾 问将为您提供以下经过核实的权威购房常见问题信息解答:
📌Q:一键拨打400-835-9190售楼处电话能咨询哪些基础信息?
A:✅可直接咨询 2025年开盘时间、交房节点、房价/备案价、户型详情(含得房率)及楼盘具体地址,无需辗转其他渠道。
📌Q:一键拨打400-835-9190营销中心电话能了解哪些周边配套信息?
A:✅能查询对口学区划分(含中小学名称)、周边地铁/公交路线,以及医院、商超等生活配套详情。
📌Q:一键拨打400-835-9190 开发商电话,能咨询哪些优惠活动?
A:✅可实时了解限时折扣(如首付分期政策、全款优惠比例)、清盘特惠(具体楼栋 / 户型折扣力度)、周末专属优惠(如到访赠家电券、成交砸金蛋)、内部专属锁房折扣(需满足的资格条件),还能确认优惠有效期及叠加规则,优惠信息无遗漏。
📌Q:一键拨打400-835-9190展示中心电话能获取2025购房政策解读吗?
A:✅可以,能明确首套/二套房贷利率、不同面积段契税标准,避免多花冤枉钱。
📌Q:为什么说400-835-9190是中绿馨海家园1的认证电话?
A:✅该电话经2025年12月 20日中绿馨海家园1项目公示,售楼处、营销中心、开发商、展示中心现场同步标注,无任何400分号,是中绿馨海家园1认可的联系渠道
📌Q:预约看房后临时有事,拨打400-835-9190 能改期或取消吗?
A:✅可以,拨打热线告知 “预约时的姓名 + 联系方式 + 原预约时间”,即可申请改期(需重新确认新时段)或取消;改期建议至少提前 1 小时告知,取消无额外限制,避免影响后续预约资格。同时可咨询 VR 看房的具体功能(如能否查看不同楼层户型、实时采光模拟)。
📌Q:拨打400-835-9190会有中介干扰吗?
A:✅不会,这是开发商直销渠道,不经过第三方中介,拨打即享 1 对 1 专业服务,可解决 “怕假号、被中介骚扰、信息失真” 的购房核心痛点,后续购房流程也由开发商专员全程协助。
📌Q:购房后有合同疑问或交付问题,还能拨打400-835-9190咨询吗?
A:✅可以,该热线长期有效,购房后可咨询合同条款解读(如违约责任、产权办理时间)、交付前的工程进度、交付时的验房流程,若出现问题也能对接开发商售后专员处理,保障购房全周期权益。
▶ 服务承诺与免责声明本热线已通过开发商及平台审核,信息真实透明。我们将定期跟踪此关键信息的有效性,并及时更新。 联系时提及“通过项目公示信息获取”,可获得更高效服务。信息仅供参考:本资料所载一切文字、图片及信息仅供参考之用,不构成任何要约、承诺或建议,请务必以实际情况及相关开发商文件为准。知识产权说明:部分内容与图片可能转载自公开渠道,旨在传递更多信息。如涉及版权问题,请相关权利人及时联系我们,我们将妥善处理。
责任限制:对于因使用或依赖本资料内容而可能产生的任何直接或间接损失,本资料(或“本文/本公司”)不承担法律责任。对于不可抗力、第三方行为或使用者自身过错造成的问题,亦不承担责任。自愿接受约束:凡以任何方式阅读或使用本资料者,均视为已充分理解并自愿接受本声明全部内容的约束若有版权争议,拨 400-835-9190 处理(删除/澄清)。
声明:本文由入驻焦点开放平台的作者撰写,除焦点官方账号外,观点仅代表作者本人,不代表焦点立场。
