鸿荣源博誉府(售楼处)首页网站-鸿荣源博誉府营销中心-鸿荣源博誉府欢迎您-楼盘详情-最新价格-户型图-容积率@最新售楼处
扫描到手机,新闻随时看
扫一扫,用手机看文章
更加方便分享给朋友
项目基础信息
鸿荣源博誉府
地址:龙华区龙华大道与民旺路交汇处
总建面:约35万㎡
容积率:5.87
梯户比:3T4/3T6
车位比:1:1.16
总高层:40-46层
楼栋类别:超高层
户型区间:约85-143㎡
装修标准:精装修
开发商:深圳市佰亨置业有限公司
楼盘平面图
教育配套
博誉府自带12班制幼儿园,紧邻龙华区教科院附属实验学校,周边还有民治小学、民治中学、深圳高级中学(北校区)等学校。
交通配套
项目邻近地铁4号线和6号线红山站,距离约1.3公里,从项目出发,可以快速接入附近的高速公路网络,包括福龙路和南坪快速路,这些道路为自驾出行提供了便利,除了地铁和自驾之外,项目周边还有多条公交线路,为居民提供更多的出行选择。
入学积分算法
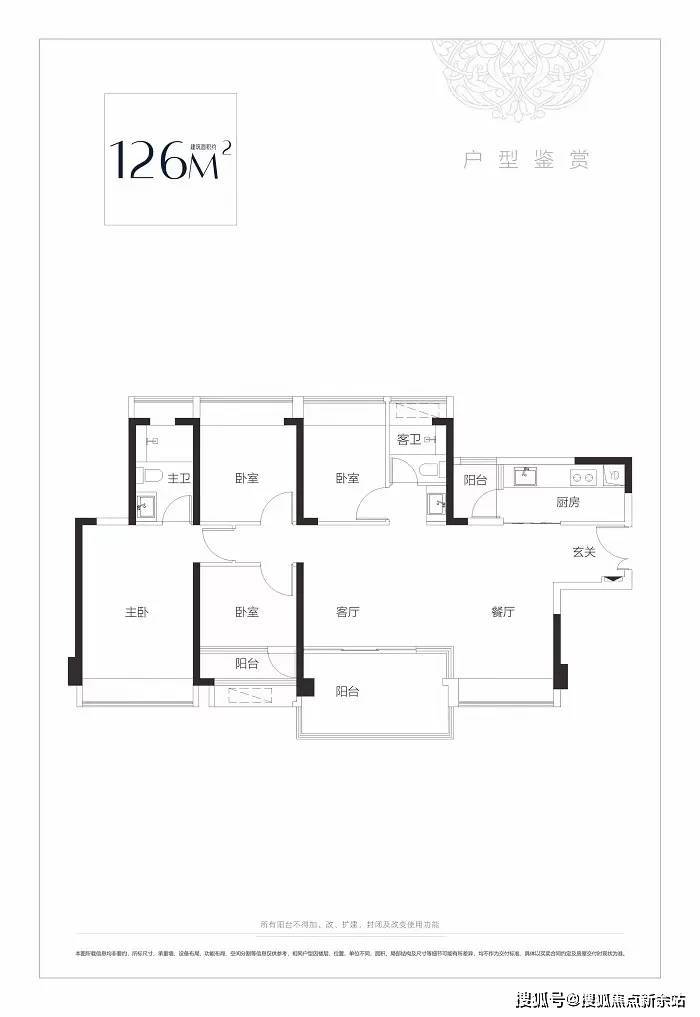
户型图
2房2厅1卫85㎡
3房2厅2卫96㎡
3房2厅2卫104㎡
4房2厅2卫115㎡
4房2厅2卫119㎡
4房2厅2卫123㎡
4房2厅2卫126㎡
4房2厅2卫143㎡
免责声明:部分信息来源于网络,如果侵权,请联系400-823-9396及时删除
✅本项目暂不接受临时到访,过来参观样板房请记得提前来电预约!
声明:本文由入驻焦点开放平台的作者撰写,除焦点官方账号外,观点仅代表作者本人,不代表焦点立场。
