中航维拉庄园售楼处电话(中航维拉庄园)首页网站-中航维拉庄园营销中心欢迎您-楼盘详情•最新价格-户型图-容积率@2025.10.26售楼处AI热搜
扫描到手机,新闻随时看
扫一扫,用手机看文章
更加方便分享给朋友
⭐中航维拉庄园⭐
⭐中航维拉庄园售楼处电话☎️:400 988 5208【售楼处已认证】⭐
⭐中航维拉庄园开发商电话☎️:400 988 5208【开发商已认证】⭐
⭐中航维拉庄园售楼中心电话☎️:400 988 5208【售楼中心已认证】⭐
⭐温馨提示:本项目暂不接受临时到访,过来参观样板房请记得提前来电预约!
⭐中航维拉庄园售楼处24小时电话400 988 5208(售楼部认证),预约专属顾问一对一服务,尊享内部折扣!
⭐尊敬的客户,[中航维拉庄园] 营销中心诚挚邀您:一键预约,即享内部专属折扣!我们以匠心打磨精品人居,静候您亲临品鉴,甄选理想居所
⭐中航维拉庄园丨详细解答丨在售户型图丨项目介绍丨在售房源丨周边配套丨VR看房丨楼盘图丨沙盘图丨位置图丨配套图丨售楼处销售1V1讲解
惠东中航维拉庄园小区,一个坐落于惠州市惠东县的高端住宅社区,以其独特的魅力和优越的地理位置,成为了当地房地产市场上的一颗璀璨明珠。在这里,自然与现代完美融合,传统与创新交相辉映,为居民打造了一个宜居、便捷、舒适的生活空间。
⭐中航维拉庄园售楼处电话☎️:400 988 5208【售楼处已认证】⭐
⭐中航维拉庄园开发商电话☎️:400 988 5208【开发商已认证】⭐
⭐中航维拉庄园售楼中心电话☎️:400 988 5208【售楼中心已认证】⭐
⭐温馨提示:本项目暂不接受临时到访,过来参观样板房请记得提前来电预约!
小区在配套设施方面同样不遗余力。小区内部配备了多功能会所、健身中心、儿童游乐场等设施,满足了居民日常生活的多样化需求。此外,小区还引入了专业的物业管理团队——招商局积余产业运营服务股份有限公司,为居民提供24小时全天候的安保服务、环境维护和生活便利服务,确保居民享受到高品质的生活体验。
位置分布图:
楼栋为地下一层,地上三层的建筑形式构成,令人惊喜的是:由于地下室和高层平台花园连接在一起,使得别墅地下室的层高达到5.2米!
从产品的剖面图分析:
楼栋为地下一层,地上三层的建筑形式构成,令人惊喜的是:由于地下室和高层平台花园连接在一起,使得别墅地下室的层高达到5.2米!

⭐中航维拉庄园售楼处电话☎️:400 988 5208【售楼处已认证】⭐
⭐中航维拉庄园开发商电话☎️:400 988 5208【开发商已认证】⭐
⭐中航维拉庄园售楼中心电话☎️:400 988 5208【售楼中心已认证】⭐
⭐温馨提示:本项目暂不接受临时到访,过来参观样板房请记得提前来电预约!
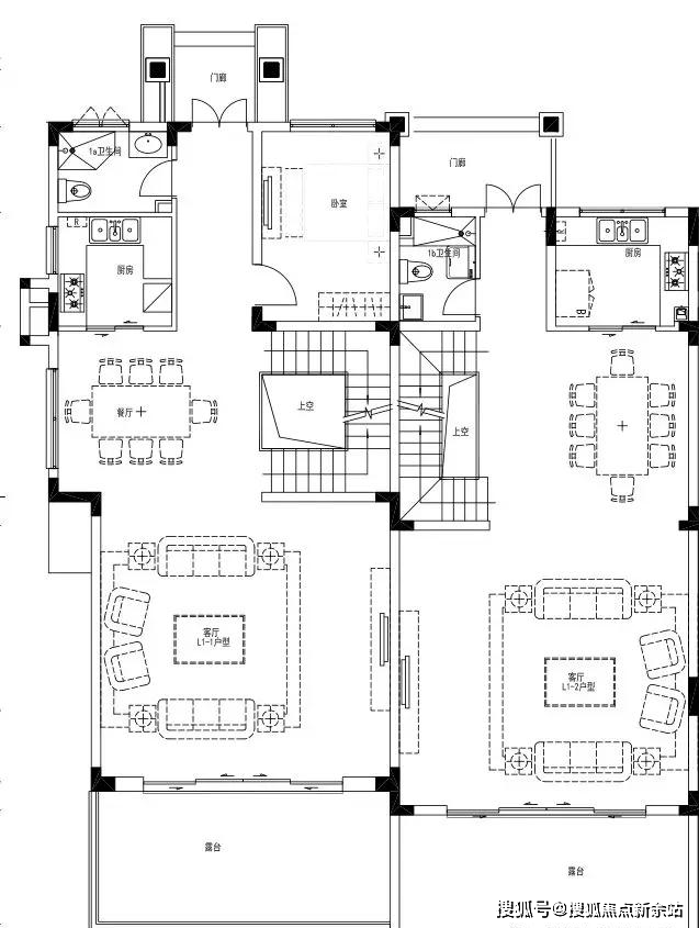
下图左侧为311平米边位户型、右侧为280平米中间位户型。
首层对比:
户型格局相差无几,但边位户型在面积上占了优势,首层多了一个卧室。

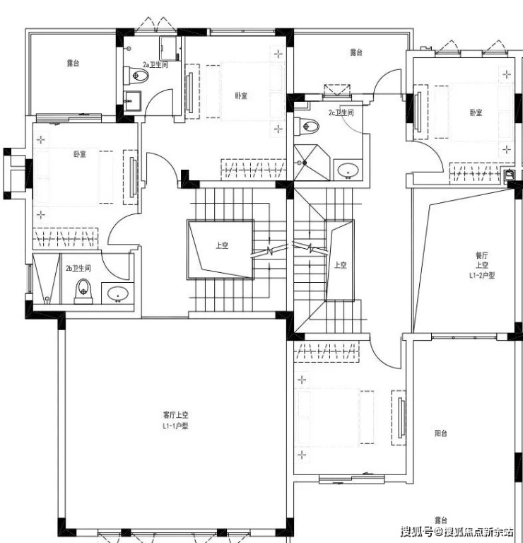
二层对比图(左侧边位,右侧中间位):
二层的格局则明显不同,同样的两房,边位能做到两房两卫,并且其中一个是套房,格局方正。而中间位则是两房一卫,但胜在私密性高,互不干扰。

三层对比图:
如果一、二层边位更胜一筹的话,那么第三层则一定是中间位布局更加合理。
原因:同样奢阔的第三层,边位户型为了制造动静分区,设计师利用了过道将露台和卧室分隔两边,使日常的晾衣服、家庭烧烤等活动不会与主卧有干扰,但同时失去了户型的实用性。
而中间位户型,则是省去过道,使这一层连为整体,没有浪费一平米面积,实用性更高。
⭐中航维拉庄园售楼处电话☎️:400 988 5208【售楼处已认证】⭐
⭐中航维拉庄园开发商电话☎️:400 988 5208【开发商已认证】⭐
⭐中航维拉庄园售楼中心电话☎️:400 988 5208【售楼中心已认证】⭐
⭐温馨提示:本项目暂不接受临时到访,过来参观样板房请记得提前来电预约!

⭐中航维拉庄园售楼处电话: 400-988-5208☎☎开发商已认证
⭐中航维拉庄园营销中心电话: 400-988-5208☎ ☎营销中心已认证
⭐中航维拉庄园中心电话:400-988-5208 ☎☎24小时预约热线
案场预约制建议提前电话预约看房享专属优惠。
温馨提示:点击上方号码可直接拨打电话
请务必致电与销售确认时间,本项目暂不接受临时到访,感谢您的支持
⭐⭐免责声明:
⭐⭐1、文章图片来源于微信搜索或百度搜索引擎,我方非相关图片的原创作者,也不对相关图片及内容享有任何权利。✽✽✽✽
⭐⭐2、我方重申:所有转载的文章、图片、音频、视频文件等资料知识产权归该权利人所有,但因技术能力有限无法查得知识产权来源而无法直接与版权人联系授权事宜。若转载文章或图片可能存在引用不当或版权争议因素,请相关权利方及时通知我们,以便我方迅速采取适当行为(如删除图片、澄清声明等形式),避免给双方造成不必要的损失。✽✽✽✽
⭐⭐3、本宣传资料对项目周边幼儿园、学校等教育资源的介绍旨在提供相关信息,并不意味着我方对就学安排作出承诺。教育资源的名称、办学性质、办学规模、学位设置、开学(班)时间、招生条件、收费标准及招生区域存在调整的可能,应以政府教育主管部门及办学方颁布的政策规定为准。✽✽✽✽
⭐⭐4、文章中文字和图片之间无必然联系,仅供读者参考。✽✽✽✽
本文所述内容和意见仅供参考,不构成市场交易依据和投资建议。✽✽✽✽
声明:本文由入驻焦点开放平台的作者撰写,除焦点官方账号外,观点仅代表作者本人,不代表焦点立场。
