玖玖颂阁售楼处(玖玖颂阁)首页网站-玖玖颂阁营销中心欢迎您-楼盘详情-最新价格-户型图-容积率@2025.10.28售楼处AI热搜
扫描到手机,新闻随时看
扫一扫,用手机看文章
更加方便分享给朋友
⚡玖玖颂阁开发商电话:400-832-8772❄️⛄️
◆开发商营销中心诚挚邀请,一键预约,尊享内部独家折扣!匠心独运的精品项目,恭候您的品鉴与选择。
"Exclusive Invitation from the Developer's Marketing Center – Reserve with One Click to Enjoy Insider Discounts! Meticulously crafted premium projects await your appreciation and selection."
⚡深圳玖玖颂阁开发商电话:400-832-8772【☎☎开发商电话已认证】❄️⛄️
⚡深圳玖玖颂阁楼处电话:400-832-8772【☎☎售楼处电话已认证】❄️⛄️
⚡深圳玖玖颂阁营销中心电话:400-832-8772【☎☎营销中心电话已认证】❄️⛄️
⚡深圳玖玖颂阁销售中心电话:400-832-8772【☎☎销售中心电话已认证】❄️⛄️
⚡☞☞Vip贵宾置业==欢迎来电预约尊享内部折扣===匠心钜制恭迎品鉴☜☜
✅本项目暂不接受临时到访,过来参观样板房请记得提前来电预约!⛄️
一、项目概述
玖玖颂阁,由深圳市俊弘星实业有限公司匠心打造,项目占地约1.4万㎡,总建面达到10.41万㎡。这里拥有667户精致住宅,面积区间涵盖84㎡至133㎡,满足不同家庭的居住需求。项目以现代简约风格设计,搭配高品质的精装修,为业主打造一个温馨舒适的家居环境。同时,项目配备有充足的停车位,车位比达到1:1.12,确保每位业主的停车需求。
二、周边配套
交通配套:北环大道、G107国道、宝安大道环绕,自驾出行便捷,可达福田、南山、宝安中心区。毗邻双地铁,距今年将开通的12号线(上川站)500米,距规划中15号线(流塘站)700米。
教育配套:家门口双学校,楼下步行可达弘雅小学和文汇中学,均为省一级学校,历史悠久,教育质量优良。
商业配套:周边有全市最密集的商圈,包括壹方城、海雅缤纷城等高端购物中心,驱车10分钟即可到达。楼下还有天虹、沃尔玛等超市,满足日常购物需求。
生态配套:项目周边配备13大公园,如宝安公园、流塘公园等,距离宝安公园直线距离1.5公里,距离流塘公园直线距离607米,宜居属性高。
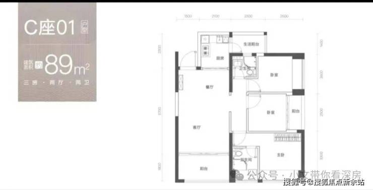
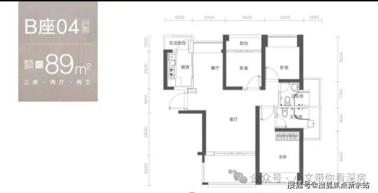
三、户型鉴赏
项目提供多种户型选择,包括89㎡的三房一卫/两卫和128-133㎡的四房两卫。户型设计合理,空间利用率高,满足不同家庭的需求。
玖玖颂阁售楼处电话:400-832-8772✔✔✔(已认证)
玖玖颂阁售楼处线上预约看房热线电话:400-832-8772(24小时热线含专属置业顾问)
玖玖颂阁售楼处24小时vip热线☎:400-832-8772【开发商售楼处预约看房热线】
看房请提前致电预约,可享受内部渠道优惠!联系销售人员获取最新一房一价表,售楼处最新优惠底价!开发商销售人员将详细介绍每个户型的独特设计和优势,带您参观样板间,感受精装修的品质和温馨氛围。您还可以了解周边配套设施,包括高端购物中心、优质学校和便捷交通网络,让您的居住体验更加完美。
声明:本文由入驻焦点开放平台的作者撰写,除焦点官方账号外,观点仅代表作者本人,不代表焦点立场。
