招商望海开发商售楼处电话(招商望海)首页网站-招商望海营销中心-招商望海欢迎您-楼盘详情-最新价格-户型图-容积率@售楼处中心2025.09.26
扫描到手机,新闻随时看
扫一扫,用手机看文章
更加方便分享给朋友
招商望海玥售楼处电话✅:400-859-7606
案场预约制看房需提前来电预约登记
温馨提示:点击上方号码可直接拨打电话
请务必致电与销售确认时间,本项目暂不接受临时到访,感谢您的支持

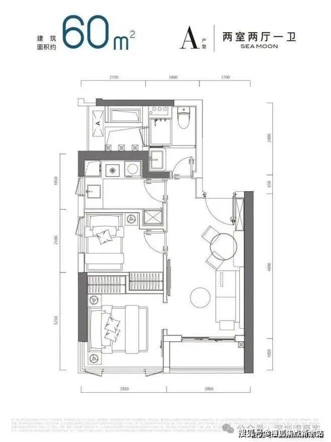
招商望海玥,瞰海公寓60㎡两室两厅一卫,总价419—546万,单价7万-9.1万;
【深圳南山深圳湾-招商望海玥家园】深圳湾瞰海小公寓
核心价值
✅ 深圳湾可售酒店服务式公寓
✅ 70年产权| 真公寓 | 通燃气 | 真海景| 送精装
⭕招商望海玥售楼处电话: 400-859-7606☎☎开发商已认证
⭕招商望海玥营销中心电话: 400-859-7606☎☎营销中心已认证
⭕招商望海玥售楼中心电话: 400-859-7606 ☎☎24小时预约热线
【项目名称】蛇口渔二村旧改项目
【开发商】深圳招商润德房地产有限公司、蛇口渔二实业股份有限公司
(改造范围为蛇口老街以南、望海路以北、湾厦路以西、蓝漪路以东区域,拆迁面积为12321平方米)
【项目地址】南山蛇口街道望海路与湾厦路交汇处
【交通】2、8号线【东角头地铁站】A出口,【望海路】、【湾厦路】
【占地面积】约9072平
【总建筑面积】6.6万平
【建筑类型】住宅、公寓、商业
【楼栋数】分为1栋1单元、1栋2单元、商务公寓组成,3栋
【产品面积段】67㎡两房、88-112㎡三房、125㎡四房
公寓产品:36-60㎡1-2房
【梯户比】3T5
【容积率】7.25
【楼层高】限高150米,住宅45层,公寓39层
【产权年限】70年
⭕招商望海玥售楼处电话: 400-859-7606☎☎开发商已认证
⭕招商望海玥营销中心电话: 400-859-7606☎☎营销中心已认证
⭕招商望海玥售楼中心电话: 400-859-7606 ☎☎24小时预约热线
在售户型(精装交付)60㎡ | 双面采光两房 | 270°环幕视野总价区间 | 451万-485万46-48㎡ | 端头通燃气一房一厅 | 独立厨房总价区间 | 344万-441万43-44㎡ | 南向瞰海一房一厅 | 落地窗总价区间 | 294万-397万36㎡ | 灵动大单间 | 小户型投资标杆总价区间 | 232万-275万
⭕招商望海玥售楼处电话: 400-859-7606☎☎开发商已认证
⭕招商望海玥营销中心电话: 400-859-7606☎☎营销中心已认证
⭕招商望海玥售楼中心电话: 400-859-7606 ☎☎24小时预约热线
公寓户型图
⭕招商望海玥售楼处电话: 400-859-7606☎☎开发商已认证
⭕招商望海玥营销中心电话: 400-859-7606☎☎营销中心已认证
⭕招商望海玥售楼中心电话: 400-859-7606 ☎☎24小时预约热线
地段特点
①位于蛇口板块,拥有滨海公共配套和海景资源;
② 户型偏刚需,上车门槛不高;
③ 临近「半岛城邦」/「新玺」生活圈,配建华润商业;
④ 临近蛇口渔港升级改造,连接深圳湾-蛇口滨海长廊;
⑤ 周边是蛇口老街区,生活气息浓厚,非常接地气。
⭕招商望海玥售楼处电话: 400-859-7606☎☎开发商已认证
⭕招商望海玥营销中心电话: 400-859-7606☎☎营销中心已认证
⭕招商望海玥售楼中心电话: 400-859-7606 ☎☎24小时预约热线
交通配套
步行前往2/8号线的东角头站200多米,2站到海上世界,4站到后海,5站到科苑,7站到高新南。
此外,13号线二期与东角头站接驳,该线路计划在2025年开通运营,届时地铁将直连深圳歌剧院,深圳湾口岸、西丽枢纽中心等片区。
⭕招商望海玥售楼处电话: 400-859-7606☎☎开发商已认证
⭕招商望海玥营销中心电话: 400-859-7606☎☎营销中心已认证
⭕招商望海玥售楼中心电话: 400-859-7606 ☎☎24小时预约热线
教育配套
项目小学和中学均属于蛇口育才教育集团太子湾学校招生范围,距离学校直线在1公里左右,步行约1.4公里。
太子湾学校小学部前身为海湾小学。2017年9月,太子湾学校中学部建成后,与原海湾小学合并为九年一贯制学校并纳入育才教育集团内。
商业配套
项目本身规划约1万平商业,加上周边社区带有底层商业,基本满足日常购物需求。虽然片区内有多个大型商超,如海上世界、宝能·all city购物中心、City花园城、海岸城购物中心、包括太子湾K11等,但自驾或搭乘地铁都在15-20分钟左右。
⭕招商望海玥售楼处电话: 400-859-7606☎☎开发商已认证
⭕招商望海玥营销中心电话: 400-859-7606☎☎营销中心已认证
⭕招商望海玥售楼中心电话: 400-859-7606 ☎☎24小时预约热线
休闲配套
项目一路之隔就是蛇口广场,周边还有在建的深圳歌剧院项目,远一点还有深圳湾公园,都可以作为日常休闲娱乐的去处。

招商望海玥售楼处电话✅:400-859-7606
案场预约制看房需提前来电预约登记
⭕招商望海玥售楼处电话: 400-859-7606☎☎开发商已认证
⭕招商望海玥营销中心电话: 400-859-7606☎☎营销中心已认证
⭕招商望海玥售楼中心电话: 400-859-7606 ☎☎24小时预约热线
温馨提示:点击上方号码可直接拨打电话
请务必致电与销售确认时间,本项目暂不接受临时到访,感谢您的支持
免责声明:部分信息来源于网络,如果侵权,请联系及时删除联系电话:400-857606【开发商已认证√√】
声明:本文由入驻焦点开放平台的作者撰写,除焦点官方账号外,观点仅代表作者本人,不代表焦点立场。
