卓能雅苑(售楼处)首页网站- 卓能雅苑营销中心- 卓能雅苑欢迎您-楼盘详情-最新价格-户型图-容积率※售楼处2025.9.25
扫描到手机,新闻随时看
扫一扫,用手机看文章
更加方便分享给朋友
【项目位置】龙华布龙路与油松路交界处(西北角)
【开发商】雄伟房地产开发(深圳)有限公司
【占地面积】51323.79㎡
【建筑面积】119831.78㎡
【产品信息】102-131m² 3~5房
【交付时间】已现房
【产权年限】70年
【园林面积】2.2万㎡(其中泳池1300㎡)
【户型使用率】83%
【总户数】1085
【待售房源】316
【总车位】1054
【梯户比】1~6栋两梯四户、7栋两梯三户
【物业费】3.5 元/平方米/月
【容积率】2.3
【绿化率】44%
北站红山双芯加持,人居价值再升级
卓能雅苑雄踞湾区中轴中芯深圳北站总部基地中央生活区-民治街道,新晋深圳都市核心区,享深圳北站CBD和红山CLD双核多重利好辐射,是龙华的高品质住宅区域。经济实力快速发展、人居环境不断提升,已经逐步建设成为新型商业商务中心和现代化城区。
三维立体交通,五地铁环绕 半小时同城广深港
片区贯穿了南坪快速、布龙路、龙华大道、人民路、梅观高速等五纵五横城市主干道,15分钟抵福田,20分钟抵达罗湖、南山及深圳各大核心商圈。
500米范围内有33号线深大城际(建设中)、22号线(地铁五期规划中)民治北站;临近5号线民治站,轻松换乘4号线/6号线,地铁出行从容有度,1站换乘亚洲高铁枢纽深圳北站,1小时畅达粤港澳大湾区,一天可抵达17大城市。
城央都会配套,尽揽一站式高尚生活大境
🛍商业:卓能雅苑纵享深圳北站和红山都会繁华。商圈、教育、文化等生活配套一应俱全。项目自带4800㎡商业,周边5.5万㎡佐阾香颂购物中心、7万㎡中航九方中心、45万㎡壹方天地等高端商圈林立。
学校:项目自带幼儿园,更有行知小学、民治中学、展华实验学校、第二十七高级中学等学府教育资源兼备,濡染人文书香。
文体:3公里左右拥有深圳市美术馆新馆(建设中)、深圳市第二图书馆(建设中)、深圳市文化馆新馆(建设中)、简上体育综合体、龙华展览馆、龙华演艺馆、龙华书城、龙华文化艺术中心等人文公建配套,享都市资源配置。
承袭低密豪宅血统,尊享2.3低密度优雅生活
卓能雅苑以2.3绝版低密墅级住区,打造深圳低密生活样本。项目一共只有7栋12-18 层住宅组成,百米超阔楼间距,无敌景观视野。板式结构建筑,通风采光极致,超大景观阳台、户户朝南设计,保障健康居住感受。
🏖夏威夷风情主题园林高达2万㎡,涵括夏威夷广场、欢乐海岸、渔人码头等九大主题,水体、雕塑、草木、画廊等,凝萃浪漫,相辅相成,尽享异国风情。
♂景观区设有1300㎡超大游泳池,满足游泳健身所需。商业会所拥有商务洽谈、健身、儿童娱乐等功能,满足高端商务休闲所需。业主免费使用篮球场、羽毛球场等。
现楼发售无需等待,所见即所得价值均已兑现
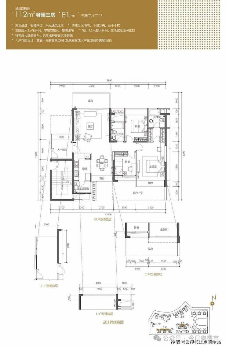
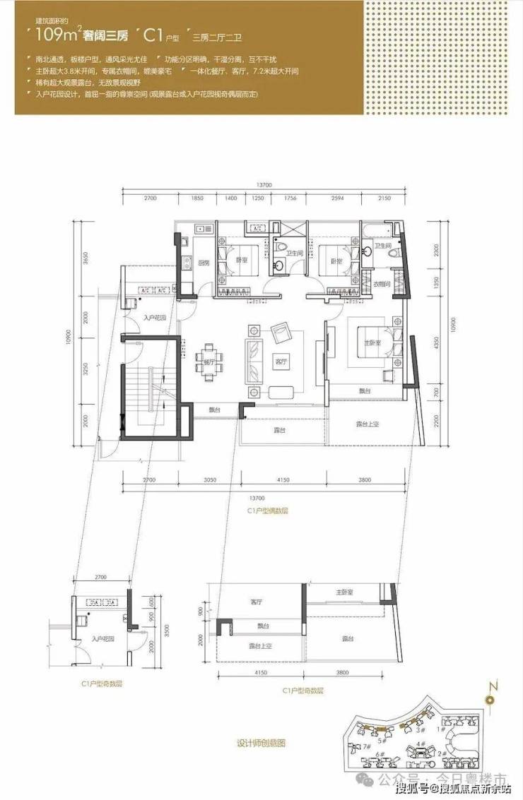
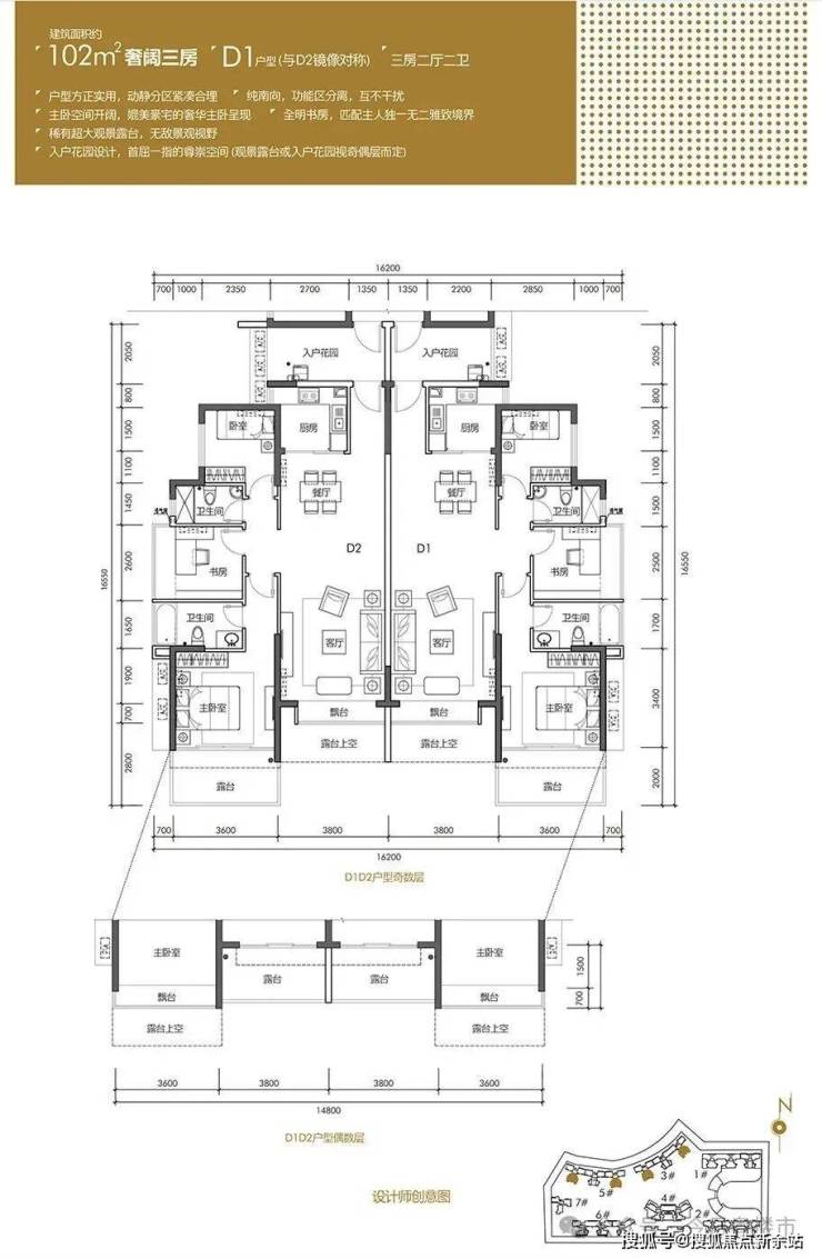
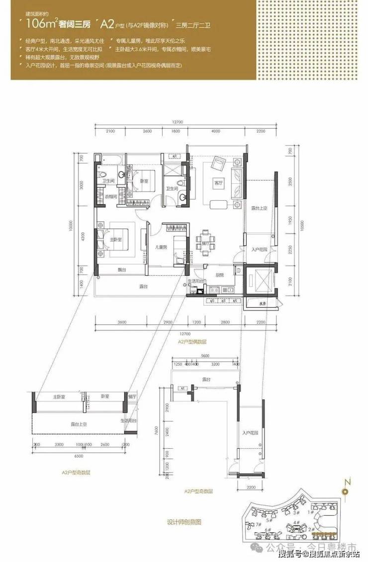
【户型鉴赏】
【购房必藏】卓能雅苑售楼处、营销中心、开发商电话统一公布!均为400-831-7991(已认证),拨打可享一对一专属服务,提前预约看房更享额外购房优惠!
声明:本文由入驻焦点开放平台的作者撰写,除焦点官方账号外,观点仅代表作者本人,不代表焦点立场。
