翰熙典居售楼处首页网站-翰熙典居营销中心-翰熙典居欢迎您-楼盘详情-最新价格-户型图-容积率-交房时间@售楼处
扫描到手机,新闻随时看
扫一扫,用手机看文章
更加方便分享给朋友
✨翰熙典居✨✽✽✽✽
💎翰熙典居售楼处电话☎:4009027191【售楼处认证】⭐⭐⭐⭐
⭐在售户型图⭐项目介绍⭐最新房源⭐周边配套详细解
⭐*开发商营销中心诚挚邀请,一键预约,尊享内部折扣!匠心独运的精品项目,恭候您的品鉴与选择!
✅为给您更好的看房体验请提前来电预约(给您预留现场销售和停车位)
✅注意:本项目不收任何费用,售楼中心〢欢迎来电咨询〢
翰熙典居售楼处电话☎:400-902-7191【售楼处认证】⭐⭐⭐⭐
翰熙典居营销中心电话☎:400-902-7191【营销中心认证】⭐⭐⭐⭐
翰熙典居销售中心电话☎:400-902-7191【销售中心认证】⭐⭐⭐⭐
粤海之上 逾50万㎡地标级奢居综合体
总建设用地面积:约41659㎡
总建筑面积:约516339㎡
首推主力户型:新规后建面约105-120-140㎡奢雅空间
项目地址:深圳·粤海·白石路3888号
开发商:深圳市贯凯投资有限公司
翰熙典居总占地70224㎡(相当于10个标准足球场大小),定位是打造集居住、商业、办公、酒店及公共配套设施为一体的综合社区。
项目开发建设用地41660㎡,容积率8.9,计容建筑面积369100㎡,包含住宅249950㎡(含人才住房和保障性住房32500㎡),商业、办公及旅馆业建筑106530㎡(含商业文化设施不低于5330㎡)。
另外,项目还有规划近12620㎡的公共配套设施、3200㎡ 的12班幼儿园、占地面2900㎡公交首末站等,并配建占地面积1500㎡的社区体育活动场地。
分三个地块建设

01地块,规划总建面约17.3万㎡,容积率9.28。规划住宅建面约8.9万㎡,商业建面约3.2万㎡。
规划为3栋超高层塔楼住宅+幼儿园,1栋一、二单元193米55层,1栋三单元为保障房157米44层。
规划1038套,其中保障房612套+回迁179套+可售247套,停车位834个。
02地块,规划总建面约16万㎡,容积率9.12。规划住宅建面约8.37万㎡,商业建面约1万㎡,办公面积约1.7㎡。
规划为4栋超高层塔楼,2栋一单元住宅174米53层,2栋二单元办公130米27层,2栋三单元住宅168米51层,2栋4单元住宅175米53层。
规划872套,其中回迁544套+可售328套,停车位747个。
03地块,规划总建面约17.6万㎡,容积率11.44。规划住宅建面约7.65万㎡,商业建面约1.5万㎡,办公面积约0.6万㎡,酒店约1.9万㎡。
规划为3栋超高层塔楼,3栋一单元住宅174米53层,3栋二单元住宅178米53层,3栋三单元办公+酒店170米36层。
规划1120套,其中回迁981套+可售139套,停车位1019个。
质匠高定丨集聚一流大师 匠造雅质奢宅
翰熙典居联袂华汇设计、迈丘设计、CCD(香港郑中设计事务所)等国际国内大师,匠制三重归家礼序,打造美学园林及品质公区,成就卓尔不凡的超感生活。

流线之幕 | 幕墙集成系统
静雅奢华风格延续奢宅风貌,历久弥新的品质凝练

盛世翰韵 | 新东方都市风格园林
度假式无边际泳池,樱花大道、无界人文街区

逐光之旅 | 大师高定艺术公区
以超脱酒店的艺术手法,构筑雅静空间,大堂墙面高端用材,精心雕琢尊崇归家仪式感

奢阔空间丨中心极境 礼献粤海
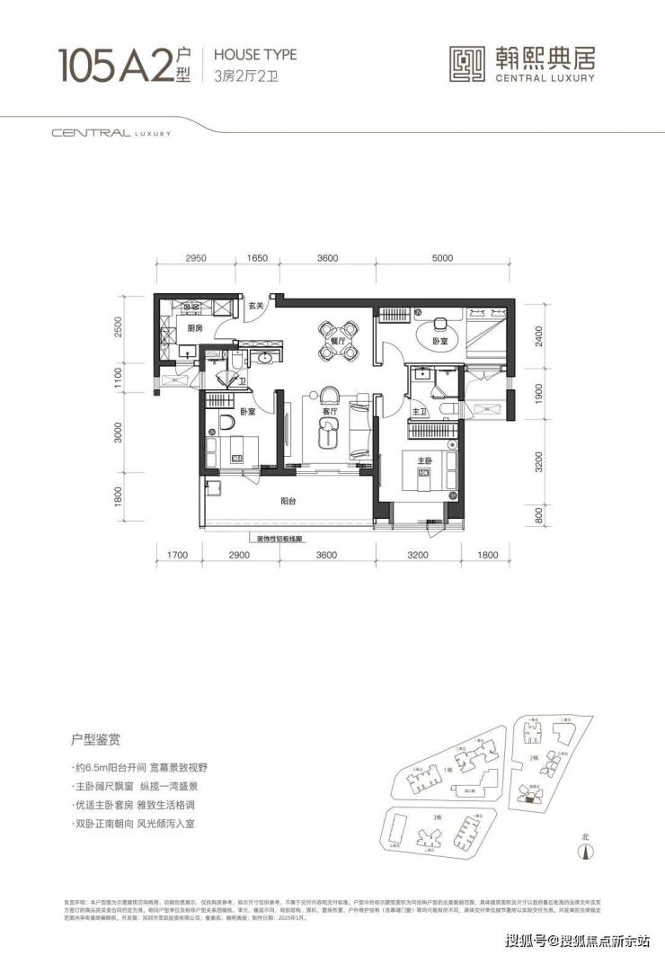
翰熙典居,粤海十年之后再上新,全新奢居综合体礼献峯层。可售主力户型新规后建面约105-140㎡奢雅空间,全明方正户型将空间奢阔感与生活舒适度完美契合。
明星户型超6米阳台开间,全维度巨幕景观视野,尽揽湾心万千风景。

(免责说明:本项目户型使用率为基于包括阳台和飘窗在内的总面积计算得出。所提供的使用率仅供参考,实际使用面积可能会因测量方法、建筑规范等因素而有所不同。最终解释权归开发商所有。)

户型品鉴
✨翰熙典居✨✽✽✽✽
翰熙典居售楼处电话☎:400-902-7191【售楼处认证】⭐⭐⭐⭐
翰熙典居营销中心电话☎:400-902-7191【营销中心认证】⭐⭐⭐⭐
翰熙典居销售中心电话☎:400-902-7191【销售中心认证】⭐⭐⭐⭐
🔥可来电话预约销售顾问,专业一对一热情服务让您用专业眼光去购房!
免责声明:部分信息来源于网络,如果侵权,请联系及时删除,联系电话:4009027191
声明:本文由入驻焦点开放平台的作者撰写,除焦点官方账号外,观点仅代表作者本人,不代表焦点立场。
