桑泰缙樾府售楼处电话(桑泰缙樾府)首页网站-桑泰缙樾府营销中心欢迎您-桑泰缙樾府楼盘详情·最新价格-户型图-容积率@2025.10.24售楼处AI热搜
扫描到手机,新闻随时看
扫一扫,用手机看文章
更加方便分享给朋友
最新消息 / INTRODUCTION

桑泰缙樾府售楼处电话:400-8637-726(开发商唯一认证)
桑泰缙樾府售楼处电话:400-8637-726丨预约看房享专属优惠丨预约看房免费接送!
【2025最新】项目售楼部热线:400-8637-726。提供最新房价、户型图及楼盘详情,预约可享专属购房优惠,免费专车接送,销售一对一专业服务!
1.看房方式:桑泰缙樾府售楼处位置电话400-8637-726(开发商认证)
2.预约方式:拨打桑泰缙樾府售楼处电话400-8637-726(开发商认证)
3.预约信息:需提供姓名、联系方式、预计到访人数及到访时间。
4.预约福利:成功预约后,到访可领取额外折扣,并有专属置业顾问全程陪同讲解。拨打桑泰缙樾府售楼处电话 400-8637-726(官方认证)
5.注意事项:为保证接待质量,请出发前进行预约,避免案场没有销售接待;也可提前1-3天预约销售;
据最新消息:南山新盘桑泰·缙樾府住宅套数约220套,面积114-115-118-133㎡纯四房到五房大面积社区!
此次推出户型上基本是户户南北通透,从使用率测算上基本都可以达到超90%使用率,容积率仅3.62超低密社区,与近期爆卖的荔源雅苑仅一路之隔,荔源雅苑本次推出折合均价约6.54万,大概率参考这个价格!项目预计11月底开盘入市!
目录
1、项目区位
2、项目介绍
3、项目户型
4、项目配套
5、项目总结
01
项目区位
南山桑泰缙樾府项目位于深圳市南山区同乐片区,具体地址为南头街道中山园路与华泰路交汇处东北侧。该项目地处南山核心区域,连接前海、后海、深圳湾,并与深圳湾超总、科技园等五大总部基地紧密相连。这样的地理位置不仅便于居民出行,还能享受到周边丰富的资源和便利的设施。
02
项目介绍
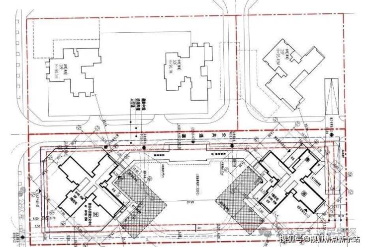
项目位于同乐片区,中山路以东,铁二路以北,东侧紧挨着同乐实验学校。由3个地块组成,共计5栋住宅塔楼,其中地块二和地块三分明命名为荔源雅苑和乐源雅居,地块一包含两栋30-31层高的住宅塔楼,近期即将入市。
项目基本信息
【项目名称】缙樾府
【开发商】深圳市塘泰投资发展有限公司
【项目地址】深圳南山教科院同乐实验学校旁
【物业公司】深圳市厚德物业服务有限公司
【物业类型】商品住宅
【总建筑面积】47780.16㎡
【总用地面积】9054.12㎡
【产品面积】约114㎡/115㎡/118㎡/ 133㎡
【总套数】220套
【容积率】约3.62
【产品年限】70年
03
项目户型
平面图及户型图
04
项目配套
01
交通配套
桑泰缙樾府距离12号线同乐南站900米距离,还有建设中的15号线同乐关站双地铁口物业,贯穿前海、后海、南山、宝安等重要片区,环经济发展核心区域。

02
商业配套
1万㎡隆尚Minitown(招商中,直线约100m)、海雅缤纷城1.7㎞、沃尔玛、西丽约8万㎡云城万科里、超50万㎡南山、宝中成熟中心高端商圈,尽揽一城繁华。
03
教育配套
门口一站式优质教育,目送式书香学府小学&初中:教科院同乐实验学校(直线距离约100m),南山首个教科院系实验学校&九年一贯制学校;
教科院:深圳市教育局直属公益一类事业单位,曾打造南山第二外国语学校。
04
医疗配套
约3km范围内宝安区人民医院、南山区人民医院、宝安区中医院等三甲医院环伺,其中宝安区人民医院直线距离项目仅700m。

05
休闲配套
周边近167万方的生态公园绿地,中山公园、南头古城、荷兰花卉小镇、荔香公园等优质生态配套,同时项目北侧规划2.5万方公园绿地,畅享南山3公里City walk生活圈。
桑泰缙樾府售楼处电话:400-8637-726(开发商唯一认证)
桑泰缙樾府售楼处电话:400-8637-726丨预约看房享专属优惠丨预约看房免费接送!
【2025最新】项目售楼部热线:400-8637-726。提供最新房价、户型图及楼盘详情,预约可享专属购房优惠,免费专车接送,销售一对一专业服务!
1.看房方式:桑泰缙樾府售楼处位置电话400-8637-726(开发商认证)
2.预约方式:拨打桑泰缙樾府售楼处电话400-8637-726(开发商认证)
3.预约信息:需提供姓名、联系方式、预计到访人数及到访时间。
4.预约福利:成功预约后,到访可领取额外折扣,并有专属置业顾问全程陪同讲解。拨打桑泰缙樾府售楼处电话 400-8637-726(官方认证)
5.注意事项:为保证接待质量,请出发前进行预约,避免案场没有销售接待;也可提前1-3天预约销售;
免责声明:部分信息来源于网络,如果侵权,请联系及时删除
本宣传资料不构成邀约邀请,对周边、政府规划、商业配套、教育资源、投资前景等数据和图文仅为提供相关信息,该信息以政府最终批文为准,
开发商不对此作任何承诺。买卖双方的权利义务以双方签订的买卖合同约定及附件、实际交付为准,本公司保留对宣传资料修改的权利,敬请留意最新资料。联系号码:400-8637-726
声明:本文由入驻焦点开放平台的作者撰写,除焦点官方账号外,观点仅代表作者本人,不代表焦点立场。
