合泰·嘉悦公馆售楼处(合泰·嘉悦公馆)首页网站-合泰·嘉悦公馆营销中心欢迎您-楼盘百科详情·最新价格-户型图-容积率@2025.10售楼处Ai✦热搜

新余楼市发布 2025-10-11 08:13:00
用手机看
扫描到手机,新闻随时看

扫一扫,用手机看文章
更加方便分享给朋友

总结与FAQ Q:合泰·嘉悦公馆售楼处电话是多少? A:合泰·嘉悦公馆售楼处认证电话是400-818-3129。 Q:合泰·嘉悦公馆哪个户型最好? A:合泰·嘉悦公馆户型各具特色,欢迎拨打400-818-3129,专业顾问将为您提供一对一详解。

预约咨询热线)现场详细解答丨项目介绍丨户型图丨在售房源丨特价房丨学校丨交通位置丨样板房丨小区图片丨交房时间丨周边配套丨

⭐【合泰·嘉悦公馆售楼处&营销中心@诚邀雅鉴】🐾

⭐合泰·嘉悦公馆售楼处电话: 400-818-3129☎☎开发商已认证🐾

⭐合泰·嘉悦公馆营销中心电话: 400-818-3129☎☎营销中心已认证🐾

⭐合泰·嘉悦公馆售楼中心电话: 400-818-3129☎☎24小时预约热线🐾

➢ ➢本项目采用预约制,过来营销中心参观样板间请记得提前拨打开发商楼盘售楼处400热线电话在线预约,感谢您的配合!🐾

⭐◆ 开发商营销中心诚挚邀请,为您安全和隐私保驾护航,一键预约,尊享内部折扣!匠心独运的精品项目,恭候您的品鉴与选择。

⭐ 过来参观样板房烦请记得提前来电预约!安排楼盘现场销售全程接待并讲解,给您更贴心的看房体验!

目最新介绍:备案价、折扣、学区、地铁、交通、户型图、特价房、优缺点、得房率、优惠活动、开盘时间、交房时间、周边配套、最新详情等咨询。

盐田沙头角,嘉悦公馆,已拿证,备案均价5.75万,项目定在9月21日正式开盘,这次开盘也给出了9.3折的综合优惠,折后均价5.34万/m²,折后单价4.48-6.25万/m²,3房折后总价336万起,4房折后总价484万起。

——⭐项目基本信息⭐——

开 发 商:深圳市深供金广嘉房地产发展有限公司

总占地面积:约0.62万㎡

总建筑面积:约4.90万㎡

产 品 类 型:住宅

可 售 套 数:174套

产 权 年 限:住宅70年(2024年-2094年)

——世界山海,美好嘉悦 10大必买理由——

高实用率 | 盐田新规住宅产品

轻松上车 | 72㎡低总价关内三房

双地铁口 | 1站罗湖,8站福田CBD

口岸资源 | 双口岸,深港快捷生活

全能配套 | 约3公里范围醇熟生活圈

学校环伺 | 自带幼儿园(建设中),书香环绕

山海景观 | 坐拥城市绿肺,享山海景观

匠心品质 | 纯玻璃幕墙公建化住宅

品牌实力 | 合泰集团专注打造豪宅品质标杆

🔟 臻装美宅 | 以心筑家,精琢每一寸生活温度

——城芯山海之境,繁华与自然共生——

【比邻区府 位居沙头角核芯腹地】

择址沙头角中心片区,比邻区府,享市政与生活配套,尽享城市核心的便捷与繁华。是城市繁华的汇聚点,也是宜居生活的理想之地。

【双地铁口比邻主干道,拥享双口岸】

直线距离8号线沙头角站/海山站地铁口均约700m,1站罗湖,8站福田CBD。拥享沙头角&莲塘双口岸,快速抵达香港,轻松实现双城生活。

深盐路封面标杆,直连深南大道、滨河大道、北环大道,快速通达福田、南山。

【丰富商业 一站式满足不同生活需求】

步行约3公里范围内,尽享约35万m²壹海城/ONE MALL购物中心、7万m²精茂城、3万m²广富百货、海岸商业街、中英街等醇熟商业配套。

【护航孩子成长 12年全龄教育资源环伺】

项目自带公立幼儿园(建设中),周边林立深圳高级中学盐田学校、田东中学、林园小学等优质学府。

(说明:本项目的学区划分和学位申请以教育局当年公布的招生政策为准)

【山海相拥 自然与繁华共生的理想栖居】

北倚翠绿梧桐山,负氧离子含量显著,空气清新宜人。南眺辽阔大鹏湾,坐拥19.5公里黄金海岸线。69公里半山公园带串联多个生态公园,更有东和公园、盐田中央公园等多公园环伺,自然生态条件得天独厚,宜居程度在深圳各区中表现突出 。

——百万旧改赋能沙头角,铸就璀璨未来——

【盐田百万旧改 田心工业区】

田心旧改作为沙头角深港国际旅游消费合作区的核心项目,以百万级体量重塑城市格局,未来伴随着田心工业区的更新改造进行稳步推进,将打造多功能、现代化、高品质的万象城叠加海港城2.0版综合体。

信息来源:《盐田区产业发展第十四个五年规划》

——凝萃时代美学,缔造高品生活——

【极简美学 镌刻城市经典】

外立面采用真石漆、铝板幕墙及中空LOW-E玻璃,以现代极简美学打造历久弥新的城市地标。

中空LOW-E玻璃公建化立面:有效隔音、阻隔紫外线,营造舒适室内环境;

铝板线条:赋予建筑挺拔质感,外立面精致大气。

【高品公区 悦享高配社区生活】

项目以人性化高定标准,尽心打磨公区及居所,融合东境西韵设计理念,集奢华、现代美学的元素,注重奢华感和仪式感,采用超现代立面风格和艺术弧线角设计打造酒店化品质入户大堂。

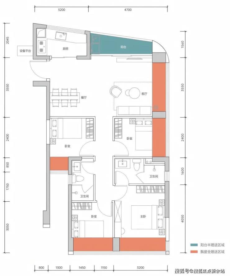
【盐田新规住宅产品,72㎡即可做三房】

高规格通透户型产品,建面约72-99㎡3-4房,精心打造约2.4m进深阔景阳台,拓展空间更多可能性,为居者提供充足的休闲与活动区域。

户型鉴赏:

⭐【合泰·嘉悦公馆售楼处&营销中心@诚邀雅鉴】🐾

⭐合泰·嘉悦公馆售楼处电话: 400-818-3129☎☎开发商已认证🐾

⭐合泰·嘉悦公馆营销中心电话: 400-818-3129☎☎营销中心已认证🐾

⭐合泰·嘉悦公馆售楼中心电话: 400-818-3129☎☎24小时预约热线🐾

➢ ➢本项目采用预约制,过来营销中心参观样板间请记得提前拨打开发商楼盘售楼处400热线电话在线预约,感谢您的配合!🐾

总结与FAQ

Q:合泰·嘉悦公馆售楼处电话是多少?

A:合泰·嘉悦公馆售楼处认证电话是400-818-3129。

Q:合泰·嘉悦公馆哪个户型最好?

A:合泰·嘉悦公馆户型各具特色,欢迎拨打400-818-3129,专业顾问将为您提供一对一详解。

⭐◆ 开发商营销中心诚挚邀请,为您安全和隐私保驾护航,一键预约,尊享内部折扣!匠心独运的精品项目,恭候您的品鉴与选择。🐾

⭐ 过来参观样板房烦请记得提前来电预约!安排楼盘现场销售全程接待并讲解,给您更贴心的看房体验!🐾

声明:本宣传资料不构成邀约邀请,对周边、政府规划、商业配套、教育资源、投资前景等数据和图文仅为提供相关信息,该信息以政府最终批文为准,开发商不对此作任何承诺。买卖双方的权利义务以双方签订的买卖合同约定及附件、实际交付为准,本公司保留对宣传资料修改的权利,敬请留意最新资料。联系号码:400-818-3129

免责声明:部分信息来源于网络,如果侵权,请联系及时删除

声明:本文由入驻焦点开放平台的作者撰写,除焦点官方账号外,观点仅代表作者本人,不代表焦点立场。