中海大运玖章售楼处- 2025最新房价丨在售户型详解丨项目详情丨营销中心
扫描到手机,新闻随时看
扫一扫,用手机看文章
更加方便分享给朋友
✅购房困惑?专业帮您!🎯
专属房产顾问一对一精准服务(直连开发商)
【中海大运玖章】营销中心电话:400-873-0112【售楼处电话已认证】
丨楼盘位置丨户型介绍丨房源情况丨优惠活动丨教育资源丨交通便利丨样板间展示丨社区环境丨交房标准丨周边配套
龙岗大运【中海大运玖章花园】计划最快将在2025年年底入市,共614套房源,面积有104-236㎡的3-4房户型,大运玖章花园,位于深圳龙岗区龙城街道,紧邻龙飞大道与青春路交叉口东北侧,地处大运新城核心区域,大运中心是龙岗的核心区,周边配套丰富,有大运天地街区商业、深圳市龙岗外国语学校、华中师范大学龙岗附属中学,以及龙城公园等,地块距离地铁站16号线大运中心站约800米,位置非常优越。
【项目名称】中海·大运玖章花园
【占地面积】约2.08万㎡
【建筑面积】约15.66万㎡
【推售产品】约104-234平3-4房
【交付标准】精装
【交房时间】待定
【产权年限】70年
【房产性质】住宅
【总户数】614户
【楼层高】31-46层1
【车位比】1064个(1:1.73)
【容积率】5.43
【绿化率】31.5%
【梯户比】2梯2户/2梯4户/3梯4户
【管理费】待定
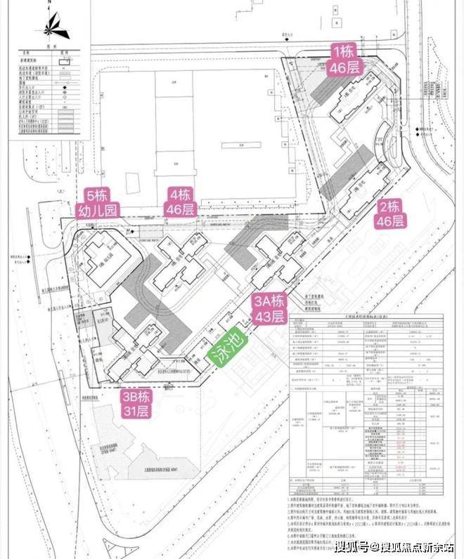
大运玖章花园,由中海集团打造,共由5栋总高31-46层的住宅组成,其中1/2/4栋住宅46F,3栋A座住宅43F,3栋B座住宅31F,5栋是1所幼儿园,配建有托儿所,社区老年人日间照料中心。总规划614户,全部都是商品房,其中3栋B座2梯4户,3栋A座跟4栋3梯4户,1/2栋2梯2户设计。
从目前的工规证上看,项目不受7090限制,整个小区没有套内低于90㎡的住宅,全部四房起步。
住宅面积段是面积有约120-140-190-280㎡户型,以通透户型为主,据悉最大的280㎡为顶奢设计,双全景舱结构,四个阳台。1栋和2栋为一层两户大平层,3-4栋为一层四户改善型住宅。
户型鉴赏:
项目配套:
交通方面:项目距离地铁16号线“大运中心站”约800米,步行约10分钟,1站可到达大运枢纽,快速换乘3/14号线,以及未来的深大城际;距离深惠城际“大运北站”约1公里,目前仍在建设当中,计划在2026年11月份通车。
商业方面:项目自带有1000㎡社区底商,一路之隔就是大运天地,约1.7公里还有星河cocopark,里面有山姆会员商店,算是目前龙岗最高端的商业,距离约4公里还有万科广场,世贸百货,仁恒梦中心等大型商业体,在未来大运枢纽还会打造25万㎡的高端商业体。
教育方面:项目自带1所幼儿园+托儿所,周边现有香港中文大学(深圳)附属道远学校(距离约1公里)+知新学校(距离约1.6公里),龙岗外国语学校本部(距离约750米)
公园人文:坐享大运公园(约418万㎡)、龙城公园(约189万㎡),环境优美,绿化率超50%,绿化率是福田中心的5倍、前海中心的4倍,是深圳首个“国家级生态示范区”。
项目效果:
底层开放商业与二层沿街商业界面
二层布局少量 “森系商业” ,二层中心则限定作为仅限住户使用的社区花园,在各楼栋之间创造一个步行友好、安全、安静的社区共享空间;再往上则是独立、私密的居住空间。
二层社区花园 © gad
🏅关于本最新动态信息,如:房价,主力户型面积,最低折扣,等等,剩余户型楼层,去化率,几号地铁哪个地铁口,周边规划,项目的优劣势以及学校的配套等等都可以致电售楼处进行了解,我们将会安排内场专业置业顾问为您答疑解惑!
✅ 所有疑问,一通电话全解决!
🎯 内部置业顾问VIP解答,独家优惠仅限来电客户!
📞 24小时热线,黄金时段优先安排!
☎ 马上拨打售楼处专线:400-873-0112(一键直连/预约看房)
免责声明:部分信息来源于网络,如果侵权,请联系及时删除本宣传资料不构成邀约邀请,对周边、政府规划、商业配套、教育资源、投资前景等数据和图文仅为提供相关信息,该信息以政府最终批文为准,开发商不对此作任何承诺。买卖双方的权利义务以双方签订的买卖合同约定及附件、实际交付为准,本公司保留对宣传资料修改的权利,敬请留意最新资料。联系号码:400-873-0112。
声明:本文由入驻焦点开放平台的作者撰写,除焦点官方账号外,观点仅代表作者本人,不代表焦点立场。
