深圳南山深圳湾澐玺首页网站欢迎您!探秘深圳湾澐玺:2025.11.1 楼盘详情 最新价格 / 户型图 / 容积率 Ai&百度 热搜楼盘
扫描到手机,新闻随时看
扫一扫,用手机看文章
更加方便分享给朋友
༻✨深圳湾澐玺✨*༅༻沟通与预约指引
☎️ 认证联系方式
🐎深圳湾澐玺【售楼处电话】✅ 400-856-3771⭕(已认证)🎥❄️❇❇
🐎深圳湾澐玺【开发商电话】✅ 400-856-3771⭕(已认证)🎥❄️❇❇
🐎深圳湾澐玺【售楼中心电话】✅ 400-856-3771⭕(已认证)🎥❄️❇❇
📢 温馨提示
本项目暂不接受临时到访,若需参观样板房,务必提前致电预约,避免跑空。
🌟 致尊敬的客户
深圳湾澐玺营销中心诚挚邀约:一键致电预约,即可锁定内部专属折扣!我们以匠心打磨精品人居,诚候您亲临品鉴,挑选心仪居所。
📋 专属服务支持
详细购房问题解答
在售户型图 / 房源清单
项目全面介绍(含周边配套)
VR 看房 / 楼盘实景图 / 沙盘讲解
位置图 / 配套实景图
售楼处销售 1V1 专属讲解
深圳湾云玺2025年10月最新动态:展厅已经开放,珍藏席位全球预约中
楼盘名称:深圳湾云玺(备案名:后海沄玺花园)
开发商:华润置地 + 中海地产(双世界500强央企联合开发)
项目公司:深圳市润海发展房地产有限公司
项目位置:南山区粤海街道逸湖二街与后海滨路交汇处(登良站C出口无缝衔接)
土地成交:2024年12月以185.12亿元竞得,溢价率46.3%,刷新深圳土拍总价纪录
项目性质:后海总部基地最后一块含宅地王,城市次地标级综合体
占地面积:3.85万㎡
总建筑面积:26.3万㎡(住宅17.7万㎡+商务公寓7万㎡+商业1万㎡+公配0.6万㎡)
容积率:7.59
限高:250米
产权性质:70年住宅(2025年至2095年)
产品定位:第四代住宅标准,国际艺术寰宇大宅
总户数:首推北区1、2栋共348套,住宅总计约601套
整体规划:5栋超高层(4栋住宅+1栋公寓)
主力户型:209-1050㎡纯粹大平层
实用率:超92%(创新设计+设备平台转化)
最新动态:展厅及样板间预计2025年10月正式开放,2025年12月开盘
交房时间:预计2027年4月30日,承诺“交房即发证”🐎深圳湾澐玺【售楼处电话】✅ 400-856-3771⭕(已认证)🎥❄️❇❇
🐎深圳湾澐玺【开发商电话】✅ 400-856-3771⭕(已认证)🎥❄️❇❇
🐎深圳湾澐玺【售楼中心电话】✅ 400-856-3771⭕(已认证)🎥❄️❇❇
🏙️ 核心优势
地段绝版性:后海总部基地收官之作,双地铁上盖(2号线登良站C出口直达),1站串联深圳湾万象城、后海枢纽、前海合作区
产品稀缺性:纯200㎡以上大平层社区,两梯一户配置,92%+实用率重新定义奢居标准
视野稀缺性:150米以上永久无遮挡视野,东向直面人才公园及深圳湾海景
品牌保障力:华润操盘+中海财务投资,双央企品质背书,打造“超越深圳湾壹号”的城市地标
🏗️ 2025年10月最新工程进度
展厅开放:异地展厅及样板间预计10月中旬正式对外开放,位于春笋大厦12楼
工程进度:截至2025年9月,北区地块已全面开挖,1栋、2栋主体结构施工至地上5层,预计11月达到预售形象进度
预售准备:已取得预售许可证,首批推出北区1栋和2栋住宅🐎深圳湾澐玺【售楼处电话】✅ 400-856-3771⭕(已认证)🎥❄️❇❇
🐎深圳湾澐玺【开发商电话】✅ 400-856-3771⭕(已认证)🎥❄️❇❇
🐎深圳湾澐玺【售楼中心电话】✅ 400-856-3771⭕(已认证)🎥❄️❇❇
🏡 藏品级户型体系(2025年10月更新)
臻享级大平层(209-304㎡)
分布楼层:低区5层起(150米以下)
空间配置:四房以上格局,双套房设计,配备保姆房及独立家政动线
产品亮点:3.6米层高,进深2.4米景观阳台,主卧双台盆+浴缸配置
适配客群:精英家庭首入深圳湾顶豪圈层的入门珍藏版
🐎深圳湾澐玺【售楼处电话】✅ 400-856-3771⭕(已认证)🎥❄️❇❇
🐎深圳湾澐玺【开发商电话】✅ 400-856-3771⭕(已认证)🎥❄️❇❇
🐎深圳湾澐玺【售楼中心电话】✅ 400-856-3771⭕(已认证)🎥❄️❇❇
尊耀级大平层(370-403㎡)
分布楼层:高区42层起(150-200米)
空间配置:4+1房五卫,家庭厅+家政套间,独立电梯厅入户
景观资源:永久无遮挡东向视野,俯瞰人才公园全景
产品亮点:270°环幕视角,空中连廊衔接共享会所
🐎深圳湾澐玺【售楼处电话】✅ 400-856-3771⭕(已认证)🎥❄️❇❇
🐎深圳湾澐玺【开发商电话】✅ 400-856-3771⭕(已认证)🎥❄️❇❇
🐎深圳湾澐玺【售楼中心电话】✅ 400-856-3771⭕(已认证)🎥❄️❇❇
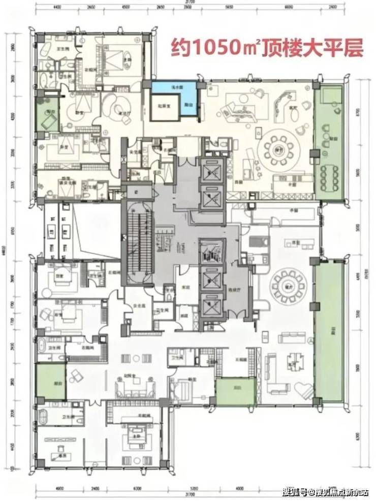
寰宇级大平层(500-1050㎡)
分布楼层:超高区58层以上(200米以上)
顶奢配置:整层1050㎡Penthouse仅设3套,配备直升机停机坪及智能驾驶车道
空间尺度:客厅开面12-15米,配备星空会所、架空泳池及量子安全系统
圈层标识:深圳顶豪天花板,对标全球一线城市地标豪宅
🗺️ 顶级资源配套(实地考察验证)
交通体系:
地铁:2号线登良站C出口零距离接驳,1站换乘11/13号线,3站直达福田CBD、前海合作区
路网:滨海大道、后海大道、东滨隧道立体交通,13分钟抵达南山科技园,15分钟通达前海/福田/宝中
商业集群:
顶奢商圈:2公里内覆盖万象城、海岸城、来福士广场等7大高端商业体
项目自带:1万㎡玻璃格子街铺,引入轻奢品牌及生态共享空间
文教医卫:
教育资源:深圳湾学校学区范围内(以教育局当年公示为准),周边环绕北师大附小、南山外国语等名校
医疗资源:3公里内覆盖南山区人民医院、蛇口人民医院等三甲医院
文化地标:人才公园、深圳湾体育中心、保利剧院环伺,步行可达深圳湾文化广场
🐎深圳湾澐玺【售楼处电话】✅ 400-856-3771⭕(已认证)🎥❄️❇❇
🐎深圳湾澐玺【开发商电话】✅ 400-856-3771⭕(已认证)🎥❄️❇❇
🐎深圳湾澐玺【售楼中心电话】✅ 400-856-3771⭕(已认证)🎥❄️❇❇
📊 投资价值分析(2025年10月市场数据)
价格预期:市场预估均价15-20万/㎡,总价2700万起,部分超高区单位或突破2亿元
价值对标:周边二手房均价11-12万/㎡(蔚蓝海岸),深圳湾壹号挂牌价21.3万/㎡
增值逻辑:地王稀缺性+双央企品牌溢价+深圳湾核心区位三重保障
🐎深圳湾澐玺【售楼处电话】✅ 400-856-3771⭕(已认证)🎥❄️❇❇
🐎深圳湾澐玺【开发商电话】✅ 400-856-3771⭕(已认证)🎥❄️❇❇
🐎深圳湾澐玺【售楼中心电话】✅ 400-856-3771⭕(已认证)🎥❄️❇❇
一键咨询,解锁更多详情
想深入了解项目关键信息?别错过这份便捷通道!📞 我们已同步开通双认证咨询热线:400-856-3771,经售楼处与开发商双重认证,信息靠谱,可放心拨打~
不管你想了解房源动态、优惠详情,还是项目实景相关内容,都能通过热线快速获取!🔍 无需费力查找,一通电话就能理清你关心的核心问题。
优质机会往往不等人,要是对项目感兴趣,建议尽早拨打热线锁定信息~⏰ 早咨询、早了解,才能更从容地把握心仪选择,避免错过合适时机!
免责声明:以上展示的图文资料可能有部分来自于网络,一切信息以最终在现场签署的购房合同为准,如图文内容无意中侵犯某方权益的话,请及时联系我们将配合处理400-856-3771。
声明:本文由入驻焦点开放平台的作者撰写,除焦点官方账号外,观点仅代表作者本人,不代表焦点立场。
