雪花科创城(售楼处)→首页网站→雪花科创城营销中心→雪花科创城欢迎您→楼盘详情→最新价格→户型图→容积率→最新售楼处
扫描到手机,新闻随时看
扫一扫,用手机看文章
更加方便分享给朋友
✨✨雪花科创城售楼处电话:400-805-9003【售楼处电话已认证】✨✽✽✽✽
✨✨雪花科创城营销中心电话:400-805-9003【营销中心电话已认证】✨✽✽✽✽
✨✨雪花科创城开发商电话:400-805-9003【开发商电话已认证】✨✽✽✽✽
✨✨雪花科创城销售电话:400-805-9003【销售电话已认证】✨✽✽✽✽
✅本项目暂不接受临时到访,过来参观样板房请记得提前来电预约!
✅为您安排楼盘现场销售全程接待并讲解,给您更贴心的看房体验!
✅✅☞☞Vip贵宾置业==欢迎来电预约尊享内部折扣===匠心钜制恭迎品鉴☜☜
如有问题欢迎来电咨询,来电即可享受买房优惠!
预约来电尊享购房优惠,可预约案场内部销售人员,专业一对一热情服务,让您用专业眼光去买房
【总建筑面积】约115万㎡;
【可售物业】研发用房(M0)+生产厂房(M1)+配套宿舍(R3)
【宝安新安产业高地 企业发展新起点】
宝安是粤港澳大湾区“地理中心”,全面承载前海扩区的国家战略,打造“黄金内湾”重要支撑极,2022年,GDP增速深圳第一,规上工业总产值和规上工业增加值均位列全市第一。
宝安尖岗山,位居广深港澳科技创新走廊、湾区商务大道中轴之上,规划为国家级高新园区,深港智能产业创新合作发展区,是企业发展沃土。
【六位一体交通 链接企业发展资源】
六位一体交通网络,全维产业发展资源。雪花科创城屹立于宝安尖岗山,无缝接驳5号地铁线兴东站,1站到留仙洞,4站到宝中,6站到深圳北;瞬连多条快速,10分钟到达南山科技园,20分钟到达宝安机场。
定制智造厂房(M1):高使用率·高性价比·高品质感·高效发展平台
【M1产品参数】
建筑面积:约21万㎡;
楼高/层高:层数为20F,首层层高约6m,2-6层层高约5.4m,7层以上层高约4.5m;
产品面积:约1300-6000㎡阔绰空间;
载重:首层1.5T/㎡,2-20层载重约0.65T-1T/㎡。
【M1产品价值】
约83%超高实用率,大平层设计,核心筒边置,空间方正完整
约6米最高层高、约1.5T/㎡最高荷载,为生产量身定制
打造客货梯分流,高标准承重货梯配置,实现独梯入户
预留独立设备平台、吊装口和卸货区,实现企业高效生产
LOW-E中空夹胶玻璃外立面,高品质企业形象展示
逐级退台式园林,打造企业绿色有氧交流场
高品质厂房空间,同层实现产、研、办等多元复合功能
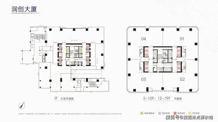
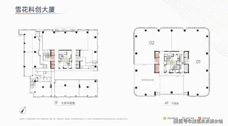
全能企业总部(M0):企业总部封面·高端配置·办公与研发、会客自由切换
【M0产品参数】
建筑面积:约12.5万㎡;
楼高/层高:雪花科创大厦楼高21F,标准层层高约4.5m;润创大厦楼高40F,标准层层高约4.2-4.5m;
产品面积:约600-2400㎡稀缺总部办公·云端会客厅;
载重:约5KN/㎡。
【M0产品价值】
建面约600-2400㎡产品专属定制,灵活布局企业空间
绿色生态建筑,架空休闲空间,绿色健康办公体验
约4.2-4.5m层高,约12m挑高大堂,跃升企业形象
双银LOW-E中空夹胶玻璃全幕墙,隔热隔音隔紫外线
双回路供电系统,安全节能,保障企业稳定运转
办公、云端会客、研发等自由切换,全能总部空间
城市臻品宿舍(R3):地铁口·高性价比·都会恒产
【润雪公馆A栋产品参数】
产权:50年
建筑高度:约137m
总层数:42层
户内层高:约3m
户内净高:约2.8m
交付标准:毛坯交付,公区精装交付
梯户比:6梯14户
绿化率:30%
【R3产品价值】
地铁5号线上盖综合体,多元丰盛配套
满足时代精英各面积空间的自用所需
通燃气、宽幅阳台的城市臻品宿舍
规划独立大堂、电梯、停车场入口
通风采光俱佳,可远眺尖岗山景观
【六重都会配套 激活创新能量】
总部配套
华润雪花啤酒总部进驻,集创新研发、精酿工厂、啤酒展览等功能的总部新势场,牵引上下游产业集聚,目前已形成30+名企集群,擎领宝安经济活力。
商业配套
建面约4.8万㎡啤酒主题开放式商业街区,华润万象生活担纲运营,集零售、餐饮、休闲娱乐于一身的都市商业综合体,将刺激的赛事、庆典活动与无间的社交互动在啤酒小镇中紧密相连,打造以文化引领的都市潮流解压主场。
生活配套
都心万象风华,工作与生活的零距离切换,地铁上盖的往来随心,下楼即达的啤酒主题商业,自成精英生活的领地和精神家园。
自然配套
雪花科创城遵循绿色生态建筑设计理念,缔造出多功能景观融入现代生态建筑,让自然与城市共生,让产业场景更加绿色健康。
产业配套
雪花科创城,融合总部办公、研发中试、高端智造、科技体验等产业功能,以创新为驱动,形成以信息技术、智能制造、时尚消费等为主导的创新产业生态圈。
文化配套
游览雪花啤酒博物馆、啤酒发酵罐遗址、精酿工厂、三大城市广场,传扬深圳城市精神,触碰工业文明温度,激活创新能量。
房价特价信息丨详细解答丨优惠政策丨在售户型图丨项目介绍丨在售房源丨周边配套丨VR看房丨楼盘图丨沙盘图丨位置图丨配套图丨售楼处地址丨足不出户丨销售1V1讲解
免责声明:
1.本文为第三方观点,不作为开发商要约或承诺。其中涉及的文字、数据、图片仅供参考,相关内容不排除因法律法规调整、政府规划调整及开发商无法控制的原因而发生变化。
2.资料中所载房屋面积均为建筑面积,最终面积可能存在差异。
3.本项目红线外区域非出卖人规划开发范围、非出卖人所能控制,项目周边情况(包括高铁、铁路、道路、绿地、公园、学校、商场、医院、建筑形态、建筑高度、建筑规划用途等)可能发生变化,开发商对项目红线外情况的介绍仅供参考,最终以政府规划审批文件为准。
4.买卖双方权利义务以双方签订的《商品房买卖合同(预售)》(含附件、补充协议)及《置业指南》等签约文件约定及政府最终批准文件为准。
5.首开优惠具有时效性,具体优惠政策以开发商制定的细则为准,详情请垂询售楼处,敬请留意最新资料。
4月29日晚间,万科(000002.SZ)公布了2025年一季度报告。
财报显示,今年一季度万科实现营收近380亿元,实现销售金额349.2亿元,回款率超过100%,按期保质完成1.04万套房的交付。
报告期内,万科实现大宗交易签约金额38亿元,涵盖办公、商业、公寓、教育业态等7个项目;实现盘活回款24笔,合计40.9亿元;投资设立“万新金石(厦门)住房租赁基金”,用于购买厦门泊寓院儿•海湾社区项目,并由泊寓继续提供资产运营服务。
在融资端,万科继续获得各类金融机构支持,今年一季度合并报表范围内新增融资和再融资139亿元,新增融资综合成本3.39%,较2024年一季度下降21个基点。今年一季度,万科完成98.9亿元公开债务的偿还。截至报告期末,万科持有的货币资金为755亿元,资产负债率为73.5%。
发布2025年一季报同日,万科在另一则公告中披露,公司董事会审议通过出售A股库存股的议案。万科计划采用集中竞价交易方式,在公告日起15个交易日后至2025年7月2日期间出售7295.6万股,占公司总股本的0.61%。
“本次出售A股库存股后,公司将收回资金,有利于补充公司的流动资金。根据企业会计准则的相关规定,本次减持股份价格与回购股份价格的差额部分将计入或者冲减公司资本公积,不影响公司当期利润,不会对公司的经营、财务和未来发展产生重大影响。”万科方面称。
此外,万科4月29日晚间还发布了《关于深铁集团向公司提供33亿元借款暨关联交易的公告》,大股东深铁集团拟向万科提供33亿元股东借款,借款利率2.34%,低于全国银行间同业拆借的1年期贷款市场报价利率(LPR)。
据了解,本次借款将用于偿还万科在公开市场发行的债券的本金与利息,借款期限为36个月,经双方协商一致,可提前还款;经出借人同意,可进行展期。
公开资料显示,去年以来,深铁集团已通过大宗交易、REITs认购、股东借款等多种方式支持万科,今年深铁综合运用业务支持、资金支持、战略融合、轨道赋能等市场化、法治化手段持续支持万科。
而在万科公布一季报前一日,万科旗下长租公寓品牌泊寓与深圳地铁置业集团签署深铁项目租赁运营合作框架协议,进一步深化双方在住房租赁领域的融合发展。根据协议,深铁置业将发挥其丰富的项目资产优势,与万科泊寓在租赁领域的品牌影响力和运营优势相结合,对适配长租公寓业务的深铁项目开展合作运营。
分析人士认为,未来万科与大股东深铁的融合发展,有望为万科在轨道物流、TOD综合开发等方面提供新的业务空间。同时,万科在REITs、Pre-REITs方面的突破,将帮助其进一步盘活存量资产、回笼资金。
声明:本文由入驻焦点开放平台的作者撰写,除焦点官方账号外,观点仅代表作者本人,不代表焦点立场。
