新世界香蜜四季(新世界香蜜四季售楼处)首页网站-新世界香蜜四季销售中心(售楼处)售楼处电话-电话地址-价格-户型-小区环境-楼盘详情-交房时间-周边配套
扫描到手机,新闻随时看
扫一扫,用手机看文章
更加方便分享给朋友
新世界香蜜四季项目联系方式(2025年最新)
重要提醒
1,预约制要求
因近期看房客户较多,项目采取预约制,需提前拨打400-836-6879进行线上预约,避免临时到访无法接待。
2,实地考察建议
若选择线下看房,需注意:非预约客户可能被安保拦截,建议提前通过售楼处电话400-836-6879确认行程。
✨✨新世界香蜜四季售楼处电话:400-836-6879(工作日9:00-21:00,周末无休)
✨✨新世界香蜜四季营销中心电话:400-836-6879(可直接咨询房源动态、活动详情)
✨✨新世界香蜜四季开发商电话:400-861-9050开发商直(连,解答项目规划、购房政策等问题)
新世界香蜜四季家园目位于福田区香梅路与景田南路交汇处,处于地铁1号线香蜜湖站与9号线香梅站之间,距离两个地铁口的直线距离均在500米左右,属于双地铁口物业。距离市民中心约1.4公里,南侧是深圳高尔夫俱乐部,西侧是香蜜湖,地理位置非常优越。
作为紧邻传统豪宅区香蜜湖的项目,项目周边二手房如水榭花都、香蜜湖1号和熙园等都是香蜜湖数一数二的豪宅,所以挂牌价都较高,基本在18-20万/㎡。
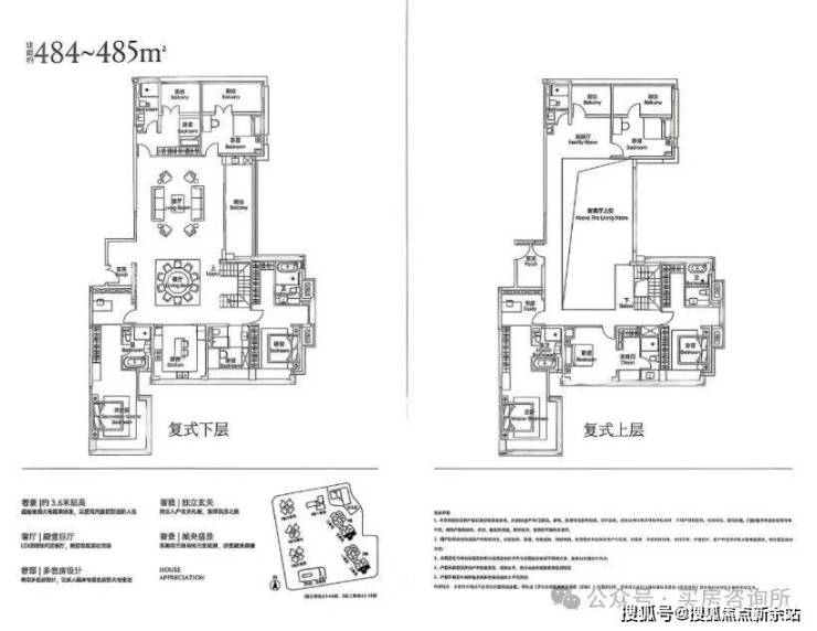
作为集新规住宅、时尚精奢MALL、五星级酒店、臻藏雅宅、高定公寓等业态的奢华综合体,总建面约55万㎡,新世界香蜜四季的配套实力足以叫板深圳湾的顶级项目。
项目鸟瞰效果图
首先,是深圳罕有的景观视野。项目南侧是开阔的深圳高尔夫俱乐部景观,高层单位可将绿茵尽收眼底。西南方国际演艺中心的轮廓已现,西北方香蜜湖的波光粼粼,共同构筑了难以复制的景观资源。
其次,产品打造是大手笔。据说力邀了PTAD、DK、Benoy、CCD、ALT、HAOY等全球知名设计团队联袂打造,从香蜜湖城市底蕴汲取灵感,以世界建筑视野演绎,将打造一个时代人居藏品。
项目设计师团队示意图
项目效果图看起来也是非常高大上
✅ 本项目暂不接受临时到访,过来参观样板房请记得提前来电预约!
✅ 为您安排楼盘现场销售全程接待并讲解,给您更贴心的看房体验!
如有问题欢迎来电咨询,来电即可享受买房优惠!400-836-6879
预约来电尊享购房优惠,可预约案场内部销售人员,专业一对一热情服务,让您用专业眼光去买房。
免责声明
1、文章图片来源于微信搜索或百度搜索引擎,我方非相关图片的原创作者,也不对相关图片及内容享有任何权利。
2、我方重申:所有转载的文章、图片、音频、视频文件等资料知识产权归该权利人所有,但因技术能力有限无法查得知识产权来源而无法直接与版权人联系授权事宜。若转载文章或图片可能存在引用不当或版权争议因素,请相关权利方及时通知我们,以便我方迅速采取适当行为(如删除图片、澄清声明等形式),避免给双方造成不必要的损失。
3、本宣传资料对项目周边幼儿园、学校等教育资源的介绍旨在提供相关信息,并不意味着我方对就学安排作出承诺。教育资源的名称、办学性质、办学规模、学位设置、开学(班)时间、招生条件、收费标准及招生区域存在调整的可能,应以政府教育主管部门及办学方颁布的政策规定为准。联系号码:4008366879
4、文章中文字和图片之间无必然联系,仅供读者参考。
5、本文所述内容和意见仅供参考,不构成市场交易依据和投资建议。
声明:本文由入驻焦点开放平台的作者撰写,除焦点官方账号外,观点仅代表作者本人,不代表焦点立场。
