琅玥湾佳园(2025年琅玥湾佳园)首页网站|_最新房价_小区规划_户型图_配套_地址
扫描到手机,新闻随时看
扫一扫,用手机看文章
更加方便分享给朋友
🏠购房困惑?专业帮您!✅
专属房产顾问一对一精准服务(直连开发商)✅
🔍琅玥湾佳园项目热线:400-823-9396【售楼处电话已认证】
🔍琅玥湾佳园开发商直通:400-823-9396【开发商电话已认证】
🔍琅玥湾佳园☎立即拨打:400-823-9396(直接对接案场|免费咨询/预约看房)丨楼盘位置丨户型介绍丨房源情况丨优惠活动丨教育资源丨交通便利丨样板间展示丨社区环境丨交房标准丨周边配套丨
琅玥湾佳园计划推380套房源,面积段约113-124-139-167㎡3-5房;2栋塔楼,低区5梯5户,高区4梯4户,全部一梯一户配置,户户拥有独立电梯厅。外立面铝板安装已完工,准现楼状态,预计2025年10月精装交楼;小区非常纯粹,无保障房、无商业,一线无遮挡海景;
【开发商】深圳市海越锦实业发展有限公司
【项目地址】南山区招商街道赤湾三路与赤湾六路交汇处
【占地面积】约1.1万㎡
【总建筑面积】约7.5万㎡
【建筑类型】2栋住宅
【可售套数】约380套
【产品面积段】建面约113-124-129-167㎡2-5房及少量顶复
【梯户比】5T5/4T4
【容积率】4.77
【使用率】约80%
【车位】330个,1:0.87
【楼层高】共两栋,48F/25F
【交楼时间】25年10月精装交付
【产权年限】70年
大面采用灰色铝板和三层超白LOW-E玻璃类幕墙,提高建筑的安全性,腐蚀性和耐久性,确保建筑形体的美观,公建化先锋立面,品质历久弥新。
1:1的豪华梯户比,31层以下5梯5户,31楼以上4梯4户,私密性更强,居住更舒适,出入从容有序。
三重尊奢归家,主入口前设置迎宾广场,拾级而上,入社区后景致相依,酒店式的归家奢华大堂,营造归家尊崇仪式感。
🔍琅玥湾佳园项目热线:400-823-9396【售楼处电话已认证】
🔍琅玥湾佳园开发商直通:400-823-9396【开发商电话已认证】
约4300㎡社区园林,以“海岛花园”为主题,营造多个岛状特色空间组团,皇家园林移步移景的设计打造手法,独一无二的滨海花园体验。
社区内配备了阳光双泳池(儿童&成人)、阳光草坪、全龄儿童活动区、四大主题多功能泛会所等社区活动场所,满足业主休闲生活所需。
车库双大堂设计,大面积采用天然浅色石材,并于天然奢石加以点缀,光厅顶面采用金属构件,结合灯带,增加层次感,彰显项目高定品质。
【113㎡的3房2厅2卫】竖厅格局,电梯入户送独立公区,动静分区,三开间朝南,客厅连接次卧超大观景阳台,主卧大套间设计,二字型厨房带1个小生活阳台,卫生间干湿分离,得房率:72.07%(不含赠送),西南朝向;
🔍琅玥湾佳园项目热线:400-823-9396【售楼处电话已认证】
🔍琅玥湾佳园开发商直通:400-823-9396【开发商电话已认证】
【124㎡的3+1房2厅2卫】1栋02/2栋04户型,电梯入户送独立公区,设计的是竖厅格局,动静分区,主卧套间设计,还有一个多功能间可以做书房,U型厨房,公卫三段式分离,得房率:72.07%(不含赠送)西南朝向;
【124㎡的4房2厅2卫】1栋01/2栋05户型,电梯入户送独立公区,横厅南北通透格局,客餐厅6.1米开间,五开间朝南,主卧大套间设计,6.1米长观景大阳台,U型厨房,得房率:72.07%(不含赠送)西北或东南朝向;
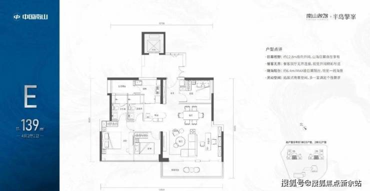
【139㎡的4房2厅2卫】1栋03/2栋02高区户型,电梯入户送独立公区,竖厅类双龙抱珠格局,四开间朝南,主卧大套间设计,有1个多功能间可以做书房,6.4米长观景大阳台,L型厨房带1个生活阳台,卫生间干湿分离,得房率:72.07%(不含赠送),西南朝向;
【167㎡的5房2厅3卫】1栋02/2栋03高区户型,电梯入户送独立公区,竖厅双龙抱珠格局,四开间朝南,主卧大套间设计,U型厨房,得房率:72.07%(不含赠送)西南朝向;
项目周边配套
交通配套:山海丹华府距离2/8号地铁线“赤湾站”距离约300米,步行约5分钟即可,2站到海上世界,前海妈湾,另外附近有小南山隧道在建,待开通后可直达前海核心区,还有妈湾跨海通道在建,待开通后可直达腾讯科技岛,无缝对接中山通道。
学校配套:项目200米处有南二外赤湾学校,该校有41个班,其中小学26班,初中15班,是1所九年制公办学校;南山中英文学校,该校是1所12年制的国际学校,涵盖小学,初中,高中,于2023年9月份已经正式开学,并且开办了协同港籍学生班,是一所获得深圳教育局和香港教育局统一批准的港籍子弟班。这也就意味着学校办学稳定,学生可无缝衔接香港的学校。
商业配套:项目约200米有约4.6万㎡赤湾汇商业(待营业),约1.9公里有约46万㎡的太子湾高端商业(在建,建成后将会是整个深圳最大体量最高端的商业体,内有K11ECOAST,兰桂坊太子湾等),约2.2公里有海上世界,2站可以抵达前海印里,前海世贸中心等商业综合体。
K11ECOAST是K11在内地的首个旗舰项目,计划在2024年底开业运营,总建筑面积约22.85万㎡,延续了K11品牌 “艺术·人文·自然”三大核心元素,涵盖K11购物艺术中心、K11 HACC多用途艺术展览空间、K11 ATELIER办公楼及Promenade海滨长廊等。
K11 ECOAST致力打造中国有影响力的海滨文化艺术区,开业后将成为深圳最大的购物中心之一,也是粤港澳大湾区的商业新标杆与名片。
🔍琅玥湾佳园项目热线:400-823-9396【售楼处电话已认证】
🔍琅玥湾佳园开发商直通:400-823-9396【开发商电话已认证】
免责声明:部分信息来源于网络,如果侵权,请联系400-823-9396及时删除
✅本项目暂不接受临时到访,过来参观样板房请记得提前来电预约!
声明:本文由入驻焦点开放平台的作者撰写,除焦点官方账号外,观点仅代表作者本人,不代表焦点立场。
