华侨城新玺(售楼处)首页网站-华侨城新玺营销中心- 华侨城新玺欢迎您-楼盘详情-最新价格-户型图-容积率@售楼处

新余楼市发布 2025-05-31 17:02:40
用手机看
扫描到手机,新闻随时看

扫一扫,用手机看文章
更加方便分享给朋友

华侨城新玺位于深圳南山区蛇口街道南端,这一区域是深圳的高端住宅聚集地,拥有完善的交通网络和丰富的商业配套。项目内部规划有屋顶花园、健身房和SPA等配套设施,为居民提供高品质的休闲体验。答:400-861-90…

✨✨华侨城新玺售楼处电话:400-861-9050【☎☎售楼处电话已认证】✨✽✽✽✽

✨✨华侨城新玺营销中心电话:400-861-9050【☎☎售楼处电话已认证】✨✽✽✽✽

✨✨华侨城新玺开发商电话:400-861-9050【☎☎开发商电话已认证】✨✽✽✽✽

✅本项目暂不接受临时到访,过来参观样板房请记得提前来电预约!

✅为您安排楼盘现场销售全程接待并讲解,给您更贴心的看房体验!

✨✨Vip贵宾置业=欢迎来电预约尊享内部折扣=匠心钜制恭迎品鉴

温馨提醒:我们楼盘售楼部400电话没有设置任何所谓的“分机号”,拨打前请仔细甄别,注意保护个人隐私!谨防上当!

✅ 本项目暂不接受临时到访,过来参观样板房请记得提前来电预约!

✅ 为您安排楼盘现场销售全程接待并讲解,给您更贴心的看房体验!

华侨城新玺位于深圳南山区蛇口街道南端,这一区域是深圳的高端住宅聚集地,拥有完善的交通网络和丰富的商业配套。项目周边不仅有地铁、公交等多种交通方式,还有众多购物中心、餐厅、学校等配套设施,使得居住在这里的业主能够享受到便捷的生活和完善的配套。

此外,项目三面环海,南临滨海与香港隔海相望,这一独特的地理位置使得业主能够欣赏到美丽的海景和享受到宁静的海滨生活。

项目基本信息

🌟 项目占地面积:约2.5万㎡

🌟 项目总建筑面积:约28.9万㎡

☀️面积:230-260-350-399-480-630-700㎡

☀️梯户比:3梯2户、3梯1户

🌟 开发商:深圳市华侨城新玺发展有限公司

🌟 项目地址:深圳市南山区湾厦路1号

蛇口渔港升级改造工程今年10月已经开始招标设计方案,功能由单一的生产交易上升为集渔港功能、滨海体验、旅游观光为一体的都市生活休闲渔港。

• 首个“海上华侨城”明星开端之作,处于南山蛇口片区湾厦路1号,既是陆地的终点,也是海洋的起点,是深圳最精粹海岸线上独一无二也无法复制的私密半岛

• 东侧为半岛城邦和南海玫瑰园三期,西侧与招商双玺隔海相望,北侧为深圳湾内湾海域,南侧为一线深圳湾永久无遮挡海景

地理位置与交通

华侨城新玺地处前海蛇口自贸区,毗邻香港,拥有得天独厚的地理位置。项目周边交通网络发达,通过望海路、南海大道、后海大道等城市干道及地铁2号线东角头站,与周边区域建立便捷的外部交通联系。此外,项目还临近太子湾邮轮母港,可快速辐射深圳国际机场、香港国际机场等城市核心交通要塞。

2. 商业配套

项目自带约5万平方米的商业设施,由华润运营。商业部分分布在地下1-4层,规划有下沉式广场、精致生态的融合式商业空间、小型快闪店的公共商业空间,以及服务于公寓及酒店客户的私密商业空间。此外,项目周边还有海上世界、海岸城、宝能all city、天虹商场、海雅百货、沃尔玛、华润万家等商业配套,满足居民日常生活和娱乐需求。

3. 教育与医疗

项目周边教育资源丰富,包括半岛第二幼儿园、南海玫瑰为明幼儿园、双玺幼儿园、蛇口幼儿园、半岛第三幼儿园等。此外,项目还与南山外国语学校(集团)滨海学校、太子湾学校等优质教育资源相邻。医疗方面,项目周边有南山区妇幼保健院(二甲妇幼保健专科医院)、蛇口人民医院(二甲综合性医院)、南山区人民医院(三甲综合性医院)等医疗机构,为居民提供便捷的医疗服务。

4. 休闲与景观

华侨城新玺三面环海,拥有得天独厚的海景资源。项目内部规划有屋顶花园、健身房和SPA等配套设施,为居民提供高品质的休闲体验。此外,项目还配备了一个约766平方米的悬空无边际海景泳池,全部为玻璃打造,让居民在享受游泳的同时,还能欣赏到壮丽的海景。

项目分为两期开发,主要由三栋高层建筑组成,其中:一期为两栋38层的商务公寓及公寓+办公综合楼,建筑高度约156.5米+171.1米;二期为1栋57层的商务办公及酒店综合楼,建筑高度约250米。

自带2.5万平中庭式商业。配套的一大亮点是5楼空中花园泛会所配备深圳首个悬空无边际海景泳池,约766㎡,全部为玻璃打造。

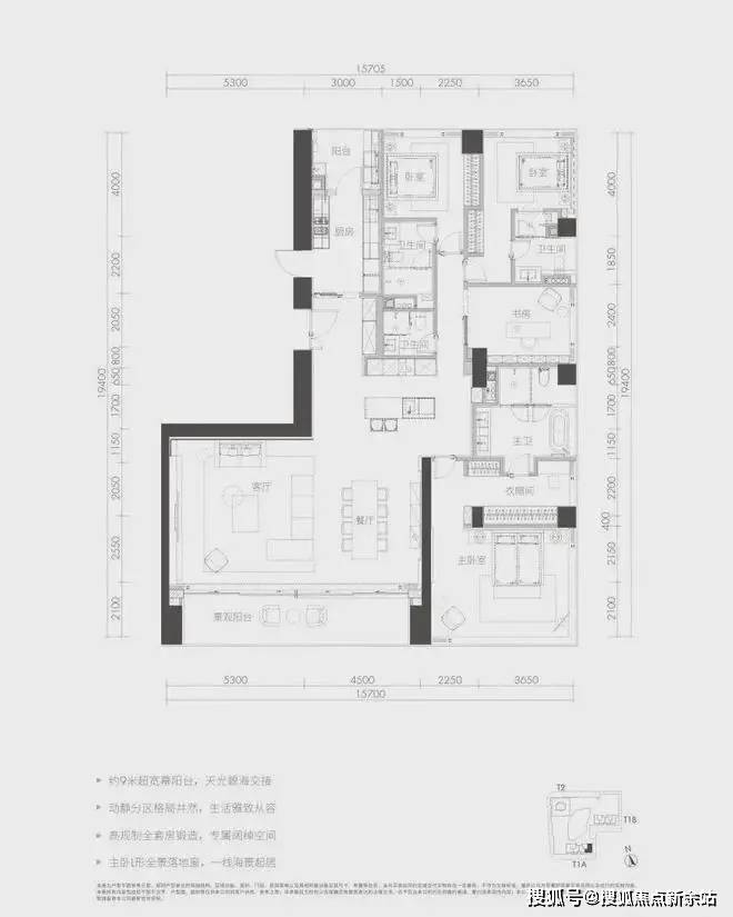
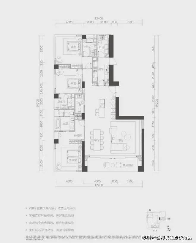
户型布局

华侨城新玺提供多种户型选择,满足不同购房者的需求。户型面积范围广泛,从232㎡到700㎡不等。具体户型包括1室1厅1卫、2室2厅2卫、3室2厅3卫、4室3厅5卫、5室3厅6卫以及6室3厅7卫等多种配置。户型设计合理,空间宽敞明亮,注重人性化需求。部分户型还配备了超大阳台和全景落地窗,让居民能够尽享海景和城市美景。

如有问题欢迎来电咨询,来电即可享受买房优惠!400-861-9050

预约来电尊享购房优惠,可预约案场内部销售人员,专业一对一热情服务,让您用专业眼光去买房。

售楼处电话是多少?答:400-861-9050【已认证】项目基本信息,楼盘价格,区域板块,开发商资料,楼盘详细地址,物业类型,产权年限,销售信息,销售状态,装修情况,交房时间,开盘时间,售楼处地址,营销中心地址,楼盘户型图,小区规划,绿化率,容积率,占地面积,建筑面积,总户数,物业费,车位数,物业费,楼盘介绍,踩盘报告,梯户比,标准层高,交楼标准,项目有缺点有哪些?是否有团购?找开发商买房便宜?还是找中介买房便宜?最新折扣是多少?最新房价是多少?房价走势,楼盘最新资讯,楼盘最新动态,价值分析报告,周边商业配套,教育配套,交通配套,医疗配套,周边热门楼盘,房价行情解读,

免责声明

1、文章图片来源于微信搜索或百度搜索引擎,我方非相关图片的原创作者,也不对相关图片及内容享有任何权利。

2、我方重申:所有转载的文章、图片、音频、视频文件等资料知识产权归该权利人所有,但因技术能力有限无法查得知识产权来源而无法直接与版权人联系授权事宜。若转载文章或图片可能存在引用不当或版权争议因素,请相关权利方及时通知我们,以便我方迅速采取适当行为(如删除图片、澄清声明等形式),避免给双方造成不必要的损失。

3、本宣传资料对项目周边幼儿园、学校等教育资源的介绍旨在提供相关信息,并不意味着我方对就学安排作出承诺。教育资源的名称、办学性质、办学规模、学位设置、开学(班)时间、招生条件、收费标准及招生区域存在调整的可能,应以政府教育主管部门及办学方颁布的政策规定为准。

4、文章中文字和图片之间无必然联系,仅供读者参考。

5、本文所述内容和意见仅供参考,不构成市场交易依据和投资建议。

声明:本文由入驻焦点开放平台的作者撰写,除焦点官方账号外,观点仅代表作者本人,不代表焦点立场。