后海招商玺营销中心电话丨后海招商玺首页网站-后海招商玺开发商售楼处电话-楼盘详情-最新价格-户型图-容积率@2025.11.30最新售楼处✦Ai热搜
扫描到手机,新闻随时看
扫一扫,用手机看文章
更加方便分享给朋友
💫后海招商玺💫
💫后海招商玺营销中心电话☎:400-939-0989【营销中心已认证】(一对一热情服务)
💫后海招商玺售楼处电话☎:400-939-0989【售楼处已认证】(一对一热情服务)
💫后海招商玺开发商电话☎:400-939-0989【开发商已认证】(一对一热情服务)
💫后海招商玺贵宾热线☎:400-939-0989 【售楼处已认证】(一对一热情服务)
💫后海招商玺展示中心电话☎:400-939-0989【展示厅已认证】(一对一热情服务)
💫无论是咨询楼盘详情,还是预约实地考察,只需一个电话,全部轻松搞定!营销中心/销售中心/开发商售楼处/_tel:400-939-0989(开发商售楼处已认证)

最新消息:
后海招商玺前身是原联合饼干厂城市更新单元,位于南山区招商街道后海大道以西、工业七路以北。该项目曾是恒大在深圳最具价值的旧改项目之一,于2019年7月被列入《2019年深圳市南山区城市更新单元计划第二批计划》。
恒大危机后,该项目一度搁置。直到2022年由招商蛇口接手,并成立合资公司推进开发。2025年2月,深圳招商蛇口华湾地产开发有限公司正式成为项目实施主体,项目推进速度显著加快。
基础信息:
1、开发商:招商蛇口华湾地产开发有限公司
2、物业公司:招商积余
3、物业管理费:待定
4、总占地面积:1.49万㎡
5、总建筑面积:15.08万㎡
6、容积率:6.59
7、绿化率:30%
8、产权年限:住宅70年,2025年6月-2095年6月
9、总户数:548户,其中可售商品房约258户
10、总栋数及楼高:4栋,21-46层
11、层高:3.3米
12、梯户比:1栋1单元2梯2户,2/3单元3梯3户
13、车位数:700个
14、车位占比:1:1.28
15、交房时间:期房待定,预计在2028年底
16、交房标准:精装
交通配套:
位于后海大道与工业七路交汇处,紧邻地铁2号线海月站和湾厦站,2站可达后海站并换乘11/13号线,10分钟直达市民中心站。陆路交通方面,下楼就是后海大道,通达深圳多条主干道如望海路、东滨路、滨海大道及白石路,15分钟可达南山科技园,20分钟覆盖前海、福田、宝中。特殊交通方面,太子湾邮轮母港提供跨境水上航线,可停靠22万吨级世界最大邮轮,30分钟直达香港机场。
💫后海招商玺营销中心电话☎:400-939-0989【营销中心已认证】(一对一热情服务)
💫后海招商玺售楼处电话☎:400-939-0989【售楼处已认证】(一对一热情服务)
💫后海招商玺开发商电话☎:400-939-0989【开发商已认证】(一对一热情服务)
商业配套:
后海招商玺周边3公里内商业配套极为丰富,最近的大型商场为宝能太古城,2公里范围内覆盖深圳湾万象城、海岸城、天利名城、来福士广场、蛇口招商花园城等多个大型购物中心,3公里有K11购物艺术中心。
教育:
后海招商玺当前对口南山区优质公立学校,根据南山区教育局2025年学区划分地图,项目属于育才二小+育才二中学区范围,这两所学校均属南山第一梯队学区。育才二小是南山区重点公立小学,育才二中为区属优质中学,教育质量稳定可靠。
项目自身规划配建一所幼儿园和一所九年一贯制学校(占地1.5万㎡),周边3公里内还有北师大南山附属学校(小学部和初中部)、育才三中等优质学校,形成多层次教育网络。此外,周边还有深圳贝赛思国际学校、蛇口国际学校等国际教育资源,满足不同家庭的教育需求。
后海招商玺家园,由招商集团打造,总占地面积约1.49万㎡,总建筑面积约15.08万㎡,计容建筑面积约11.13万㎡,容积率6.59,绿化率30%,共由4栋21-46层高住宅组成,其中1栋1单元住宅21F,1栋2/3单元住宅36F,1栋4单元回迁房46F,2栋是1所幼儿园。
总规划548户,1栋1单元2梯2户,1栋2/3单元3梯3户设计,地下室有4层,规划700个车位,车位配比约1:1.28。
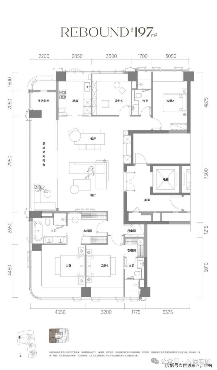
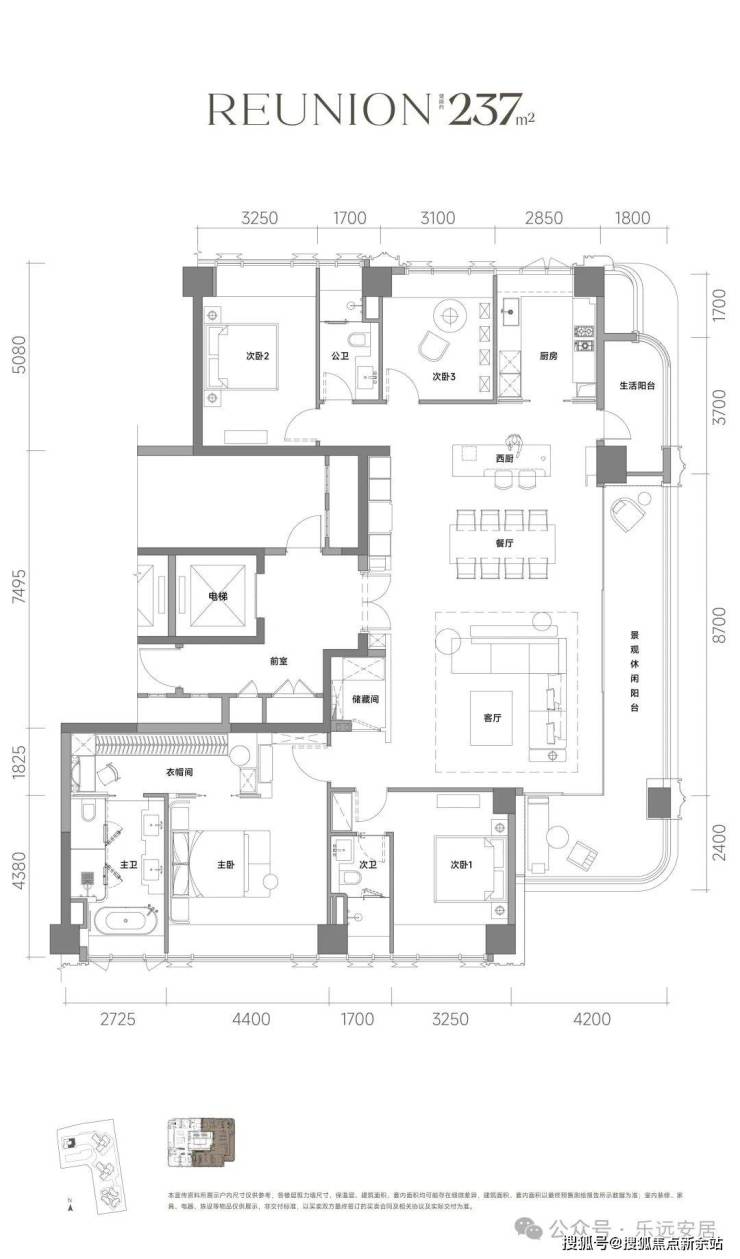
户型鉴赏:
联系咨询师阿健获取 大额返现 + 航拍景观。
关注我们的公众号,乐远安居,可以了解深圳各区新房详细资料+优缺点分析+项目进度、新房超前情报、深圳年度土拍住宅信息、深圳季度入市商品房信息、深圳各区年度入市新房信息、新房开盘资讯。也可以加阿健微信深入交流,深圳每个新盘的折扣体系,有做出对应的折扣价格房源表(具体到栋数房号)+销控表,各大楼盘的样板房实拍视频,也有统计深圳全市2025年在售商品房基本信息+去化率统计表,深圳2025年待入市商品房统计表。
深圳各区学校录取积分+政策解析,深圳各区名校排行榜等关乎咱们买房都会关注到的知识点。同时也熟悉深圳购房政策+贷款政策+公积金贷款及提取政策。
项目更多优惠及资料,可添加阿健微信咨询了解。

💫后海招商玺💫开发商电话:400-939-0989(开发商已认证)项目基本信息,楼盘价格,区域板块,开发商资料,楼盘详细地址,物业类型,产权年限,销售信息,销售状态,装修情况,交房时间,开盘时间,售楼处地址,营销中心地址,楼盘户型图,小区规划,绿化率,容积率,占地面积,建筑面积,总户数,物业费,车位数,物业费,楼盘介绍,踩盘报告,梯户比,标准层高,交楼标准,项目有缺点有哪些?是否有团购?找开发商买房便宜?还是找中介买房便宜?最新折扣是多少?最新房价是多少?房价走势,楼盘最新资讯,楼盘最新动态,价值分析报告,周边商业配套,教育配套,交通配套,医疗配套,周边热门楼盘,房价行情解读
💫温馨提示:本楼盘暂不接受临时到访,看房需提前来电预约!即可尊享独家折扣
💫将为您安排楼盘专业销售一对一接待服务!让你买的放心!
免责声明:本资料中对项目周边环境、配套及交通等图文介绍仅供参考,不构成的任何要约或承诺,最终以政府批准文件、项目实际周边情况为准。本项目的图文资料仅供参考、非要约,具体以交付时现状及买卖合同的约定为准。本公司保留修改宣传资料的权利,敬请留意项目最新资料,最终的解释权归本公司所有。
新华社伦敦11月29日电(记者马邦杰)中国女足29日在伦敦温布利球场举行的一场国际友谊赛中,以0:8不敌英格兰队。
11月29日,中国女足球员在英格兰队球员进球后。新华社记者 李颖 摄 根据官方公布的数字,共有74611名观众在现场观战。主场作战的英格兰队球员在技术、速度和力量等方面全面占优。第12和第14分钟,她们先后在两个边路发动进攻,由米德连进两球。第16分钟,亨普再下一城。随后,斯坦威在第23、38和52分钟时连进三球,完成“帽子戏法”。第71分钟,中国队后卫与门将之间配合失误,被英格兰中场球员图恩抢断轻松破门。第78分钟,英格兰队依靠娴熟的进攻配合再次得手,拉索完成破门。
11月29日,中国队门将潘红艳(右)在比赛中扑救。 新华社发(文斯·米格诺特摄) 两队上次交锋是在2023年的世界杯赛场上,当时中国队以1:6失利。
中国队在开场两分钟时,由陈巧珠掷界外球制造了一次射门,这是球队上半场唯一的射门机会。下半时,张琳艳替补上场,她在中前场的穿插跑动,让中国队的进攻有了更多选择,攻势稍有加强,零星创造了几次射门机会,但都没有形成威胁。整场比赛,英格兰队有9次射门打正,比中国队多7次。
11月29日,中国队球员王妍雯(左)在比赛中进攻。 新华社记者 李颖 摄 赛后,英格兰队主教练威格曼评价球队在比赛中表现得“冷酷无情”。她说:“我认为我们开局非常顺利,对方采取了不同的阵型,因此我们必须做出调整。她们给了我们太多控球时间,而当我们获得这样的空间时,就能展现出真正的实力。队员间的配合十分默契,有几粒进球相当精彩。”
中国队球员王爱芳表示,和对方实力差距较大,虽然球员都竭尽全力,但很难与对方抗衡。
11月29日,中国队门将潘红艳(右)未能扑出英格兰队球员的射门。 新华社记者 李颖 摄 本场比赛之后,中国队将赴西班牙继续拉练,备战明年三月在澳大利亚举行的亚洲杯比赛。
声明:本文由入驻焦点开放平台的作者撰写,除焦点官方账号外,观点仅代表作者本人,不代表焦点立场。
