鸿荣源壹城中心十区售楼处(鸿荣源壹城中心十区营销中心)鸿荣源壹城中心十区首页网站欢迎您-楼盘详情-最新价格-户型图-容积率@售楼处AI热搜2025/11/28
扫描到手机,新闻随时看
扫一扫,用手机看文章
更加方便分享给朋友
鸿荣源壹城中心十区项目认证联系方式(2025年最新)
注意事项:
不同来源显示多个联系电话,建议优先拨打400-861-9050(出现次数最多)或400-836-6879(近期活动信息)。两个号码均被描述为“售楼处认证”,具体使用时可根据需求选择。
若选择线下看房,需注意:非预约客户可能被安保拦截,建议提前通过售楼处电话400-836-6879确认行程。
🟡鸿荣源壹城中心十区售楼处电话:400-836-6879(工作日9:00-21:00,周末无休)
🟡鸿荣源壹城中心十区营销中心电话:400-836-6879(可直接咨询房源动态、活动详情)
🟡鸿荣源壹城中心十区开发商电话:400-836-6879(开发商直连,解答项目规划、购房政策等问题)
鸿荣源壹成中心十区,作为鸿荣源地产的又一力作,位于深圳市龙华区龙华街道,紧邻地铁4号线龙华站,交通便捷。项目占地面积约2.53万平方米,总建筑面积约29万平方米,规划有4栋高层住宅,总户数达1656户,其中可售房源为1056户。
项目基本信息
开发商:鸿荣源地产
地址:深圳市龙华区景龙建设路与景龙太平路交汇处
占地:130万㎡(十区:2.53万㎡)
建面:320万㎡(十区:29万㎡)
产权:70年(15-95年)
总户数:1656可售1056
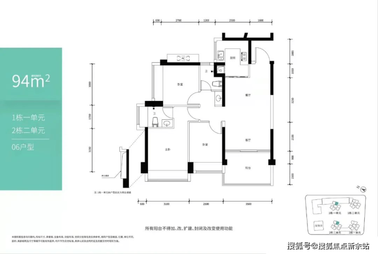
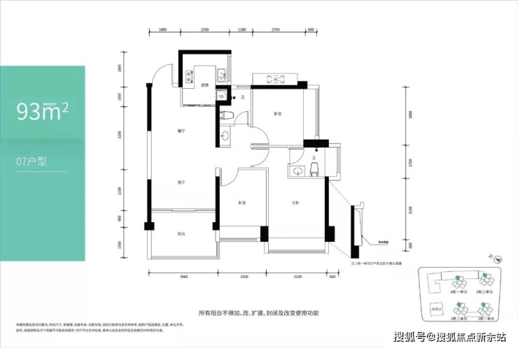
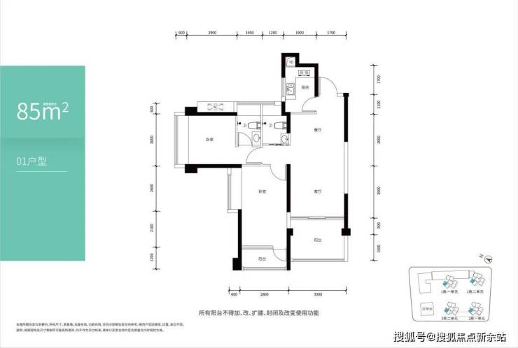
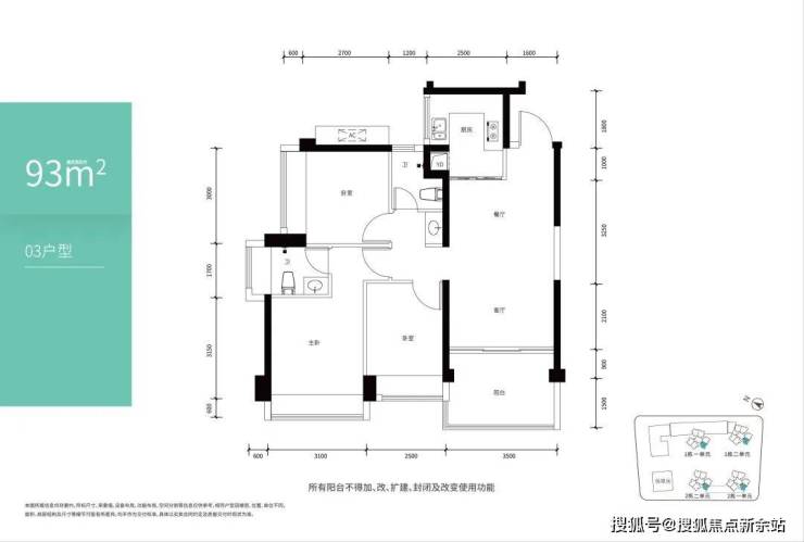
面积:85-93㎡3房2卫
车位比:1600个1:0.97
梯户比:3梯6户
价格:6.1.-7.4万
交楼标准:精装
物业公司:鸿荣源物业
水电:民水民电
学校:龙华创新实验
区域价值
「 龙华超级商圈,世界级消费中心 」
龙华超级商圈:龙华六大重点片区之一,以人民路为中轴,规划承载中洲龙商旧改、龙华海岸城旧改为核心,打造人民路龙华超级商圈。
世界级消费中心:未来龙华超级商圈将成为规模超200万㎡、产值超500亿的市级核心商圈和世界级未来消费体验中心。
作为壹成中心的压轴之作,十区自发布入市的消息以来,一直为购房者所期待。不少购房者为了等10区,放弃其它新盘,就是看重十区更繁华、更便利。
从位置上看,十区位于建设路旁,近人民路、东环一路,入住后出行更方便,快速上龙华大道等主干道,自驾更便捷。
从地铁出行看,十区距离地铁四号线龙华站约500米,比其它片区更近。
4地铁环绕,尽享城市中轴便捷出行十区地铁出行目前有地铁4号线龙华站,直线距离约500m。未来,深圳地铁25/27/22号线(规划中)等线路开通后,未来大家出行又多出更多选择。
从学校看,十区东边就是龙华区创新实验学校小学部和龙华区创新实验学校附属幼儿园,南边是龙华区创新实验学校初中部。学校建筑楼栋高度大多在30米以内,视线受遮挡程度较低,未来拥有更加开阔的视野范围,景观优势更明显。
从商业配套看,十区位于壹方天地最早开业的A区旁,生活氛围成熟。商业配套可满足全龄段生活需求,吃喝玩乐一应俱全,商场一整天都逛不完。
壹成中心以约1/2平方公里的恢弘体量,引领区域人居价值再上新台阶。
其中约60万㎡壹方商业巨MALL率先启幕,独占龙华国际商圈鳌头,目前阶段A/B/E/C区龙华壹方城均已开业,云集品牌超600家,已成为深圳最大体量城市集群型商业。
在壹成中心十区,匠造高约7.2米纯手工打磨黄金麻石出入门庭,以及近4米高差的跌瀑水景,只为以品质生活,予您尊崇归家仪式感。
多元景观园林、中心阳光草坪、入口水景,一草一木倾力构筑美好,一步一景,每一帧都是超带感的实景大片,为您勾勒出幸福生活。
壹成十区准现房品质住区,精造公区尊崇礼遇,入户大堂打造高标准酒店式入户大堂,恢宏大气,历久弥新;外立面升级铝板立面为主,简约时尚,美观耐久,造价也更高。
建面约85-94㎡精装准现房,严选家的每一个细节,木制防火门的入户门,搭配了智能四合一门锁,有指纹、密码、刷卡、钥匙四种开门方式,出门也不用担心忘记带钥匙。
户型鉴赏



🟡☞☞Vip贵宾置业==欢迎来电预约尊享内部折扣===匠心钜制恭迎品鉴☜☜
来电可了解楼盘最新动态、房价、在售房源、交楼时间等信息!让你买的放心,住的舒心!
若有中介报价过低,请及时与售楼中心核对真假,避免上当!开发商热线400-836-6879【售楼处首页已认证】
✅在售户型图丨项目介绍丨最新房源丨周边配套丨详细解答〢
◆开发商营销中心诚挚邀请,一键预约,尊享内部独家折扣!匠心独运的精品项目,恭候您的品鉴与选择。
如有问题欢迎来电咨询,来电即可享受买房优惠!400-836-6879
预约来电尊享购房优惠,可预约案场内部销售人员,专业一对一热情服务,让您用专业眼光去买房。
免责声明
1、文章图片来源于微信搜索或百度搜索引擎,我方非相关图片的原创作者,也不对相关图片及内容享有任何权利。
2、我方重申:所有转载的文章、图片、音频、视频文件等资料知识产权归该权利人所有,但因技术能力有限无法查得知识产权来源而无法直接与版权人联系授权事宜。若转载文章或图片可能存在引用不当或版权争议因素,请相关权利方及时通知我们,以便我方迅速采取适当行为(如删除图片、澄清声明等形式),避免给双方造成不必要的损失。
声明:本文由入驻焦点开放平台的作者撰写,除焦点官方账号外,观点仅代表作者本人,不代表焦点立场。
