中建鹏宸云筑售楼处电话(中建鹏宸云筑)首页网站-中建鹏宸云筑营销中心欢迎您-楼盘详情•最新价格-户型图-容积率@2025.11.05售楼处AI热搜
扫描到手机,新闻随时看
扫一扫,用手机看文章
更加方便分享给朋友
⚡中建鹏宸云筑开发商售楼处电话📞:400-8368-707【预约看房专用+无中介+1 对 1 专业服务】
⚡在售户型图丨项目介绍丨最新房源丨周边配套丨详细解答〢
⭕◆开发商营销中心诚挚邀请,一键预约,尊享内部独家折扣!匠心独运的精品项目,恭候您的品鉴与选择。⭕⭕
⚡中建鹏宸云筑售楼处电话📞:400-8368-707【开发商已认证】
⚡中建鹏宸云筑开发商电话📞:400-8368-707【开发商已认证】
⚡中建鹏宸云筑营销中心电话📞:400-8368-707【开发商已认证】
⚡中建鹏宸云筑展示中心电话📞:400-8368-707【开发商已认证】
注:以上均为中建鹏宸云筑联系方式,可直接联系售楼处/营销中心/开发商/展示中心电话:400-8368-707,无任何400分号,信息经项目公示,号码长期真实有效。
安心服务:开发商认证通道|销售一对一答疑|VR实景验房,规避购房风险
参观全指引:拨打400-8368-707预约→销售发送精准地址→顾问陪同解析楼盘详情、装修标准、医疗教育配套、得房率实测数据。
保障专线400-8368-707:即刻核实备案价、售楼处地址、周边商业规划、特价优惠,2025 买 “安心资产”,认准开发商!
营业时间:接待中心日常营业时间为9:30-17:30(周末无休),看房提前和销售预约便于您提前规划到访行程,避免空跑。
中建鹏宸云筑(别名:中建壹品·湖北文旅·鹏宸云筑),位于龙华区民治街道梅林关深国际华南数字谷旁,地处梅林关板块,也是龙华七大重点片区之一,未来,梅林关片区将从交通咽喉地区跨越式进化为“大湾区数字经济核心引领区、数字科创先锋示范区”,在立体便捷交通枢纽升级、融汇复合城市公共功能的同时,实现产业活力与自然活力共生,打造创新中轴上的未来新活力中心。
中建鹏宸云筑,由中建集团打造,由总占地面积约4.33万㎡,总建筑面积约31万㎡,计容建筑面积约22.6万㎡,容积率5,绿化率40.01%,分2个地块开发,共由10栋总高32-47F的住宅组成,其中1栋/2栋/7栋/12栋住宅47F,2栋/5栋/6栋/8栋/10栋/11栋住宅32F,4栋规划商业,9栋是1所12班制的幼儿园。
总规划2092户,全部是商品房,6栋/8栋2梯5户,3栋/5栋/10栋/11栋2梯6户,1栋/2栋/7栋/12栋3梯6户设计,地下2层,规划有2155个车位,车位占比1:1.03。
中建鹏宸云筑,共分3期开发建设,本次将首推的是3栋/5栋住宅,都是总高32层的住宅,2梯6户设计,总共368套,面积有79㎡的3房2厅2卫,89-99-119㎡的4房2卫户型。
中建鹏宸云筑六次开盘,每次都热销,尤其一期首开368套,创下日光神话!截止目前项目已经超1000批业主认购,4-9月份蝉联龙华区网签套数TOP1,2025年上半年深圳新房销售金额TOP2!
===基础指标 ====
总占地面积:约4.2万㎡
总建筑面积:约31万㎡
规定容积率 :≤5.37
绿化覆盖率 :约40.01%
开 发 商 :中建壹品&湖北文旅
总 户 数:总户数1992户(东区1016户,西区976户)
停 车 位:总2155个(东区1059个,西区1096个,车位与幼儿园共享,东西区停车场不连通)
首推楼栋:8栋楼尊,共154套
楼 栋 高:32层,标准层高约3米
梯 户 比:西区高层2梯5户,超高层3梯6户
首推户型:建筑面积约102-103㎡、118㎡、139㎡
项目地址:龙华·8号仓旁·华南数字超核
开发商售楼部电话:400-8368-707
31万方岭南人文高阶住区,精工匠造纯粹圈层
深圳近10年最大纯居地块,约31万方深圳城央美好生活领地,无公租房、无保障房、无人才房。采用围合式布局,以岭南建筑美学理念,打造岭南东方诗意园林。
新规下的创领者,深圳“三高”住宅
鹏宸云筑为首批落实新规的深圳楼盘之一,建面约78㎡-142m²二至四房,从不同阶段的家庭需求出发,科学合理规划人性化细节,以超高得房率、更高赠送率、更高使用率,同等面积多1房,同等房型多1卫,兼顾家的尺度和温度。
户户朝南,低区赏园景,中区赏湖景,高区赏山景
朝南率100%,阔景双阳台设计,超舒适居住体验,低区赏岭南风园林景观,中高区近瞰湖景,远眺银湖山风光;全系品牌臻装,小户型可拎包入住,中大户型一线品牌。

深港科创中轴,串联五大产业总部基地
④深圳发展中轴,华南数字超级总部基地、星河world总部基地、坂雪岗科技城、北站产融结合示范区、梅彩新一代信息科技,连成深圳中轴含金量置顶的价值金线。
周边配套
交通方面:距离地铁坂田线(10号线)南坑站预计800米步行距离,该线路南北走向,距离福田很近,通达福田口岸、福田中心、五和枢纽、华为等产业重地。
自驾方面,开车5km到华为和北站,约12km距离到福田中心。
教育方面:项目周边有华南实验学校,行知实验小学、万科双语学校等(具体学位以公布为准)。华南实验学校是一所九年一贯制公立学校。
商圈方面:项目自带底商3500㎡,距离最近的商业8号仓OUTLETS大概1公里左右。较远一点有民治的星河Cococity和星河World的Cocopark.
生态方面:项目坐拥塘朗山、银湖山两大山脉的自然资源,项目南侧为民治水库,高层可看水库景观;近享民治水库、民乐水库、雅宝水库、南坑水库四大湖景,超核“未来之眸”绿芯公园、民治体育公园、红木山郊野公园等九大生态公园环伺;
【好产品】全生命周期户型,新规产品高使用率
深圳建筑新规首发项目之一,超高综合实用率
创新型成长户型,适应家庭不同阶段的需求变化,拔墙设柱设计、分户S墙、创新LDKC内外亲子双区等
(1)建筑面积约103㎡户型
改善奢居︱全明向阳户型,采光通风俱佳
奢适主卧︱独立卫浴套房,私享雅致生活
瞰景阳台︱约6米宽境阳台,纳藏湖山风光
归家至礼︱入户玄关收纳,礼遇从容生活
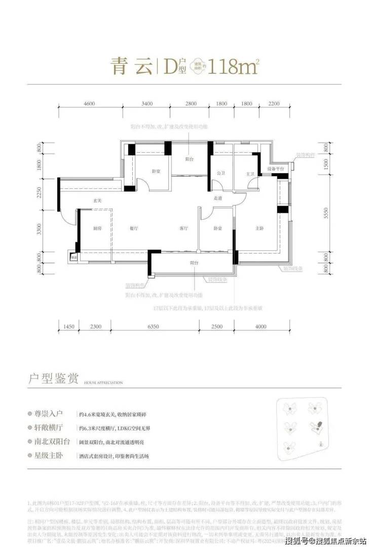
(2)建筑面积约118㎡户型
尊崇入户︱约4.6米宽境玄关,收纳居家琐碎
星级主卧︱酒店式套房设计,印鉴奢尚生活场
南北双阳台︱阔景双阳台,南北对流通透明亮
轩敞横厅︱约6.3米尺度横厅,LDKG空间无界
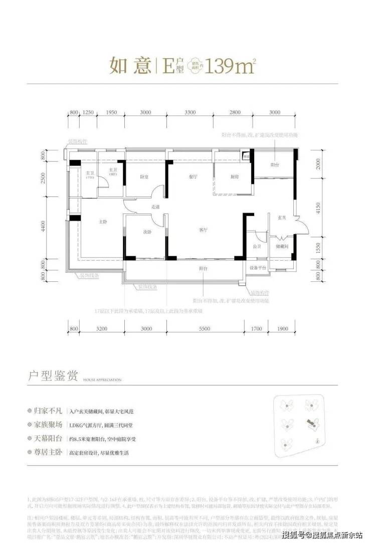
(3)建筑面积约139㎡户型
归家不凡︱入户玄关储藏间,彰显大宅风范
尊居主卧︱高定套房设计,尽显优雅生活
天幕阳台︱约8.5米宽奢阳台,空中庭院享受
家族聚场︱LDKG气派方厅,圆满三代同堂
⚡中建鹏宸云筑售楼处电话📞:400-8368-707【开发商已认证】
⚡中建鹏宸云筑开发商电话📞:400-8368-707【开发商已认证】
⚡中建鹏宸云筑营销中心电话📞:400-8368-707【开发商已认证】
⚡中建鹏宸云筑展示中心电话📞:400-8368-707【开发商已认证】
⚡中建鹏宸云筑开发商售楼处电话:400-8368-707☎开发商已认证⭕现场详细解答丨项目介绍丨户型图丨在售房源丨特价房丨学校丨交通位置丨样板房丨小区图片丨交房时间丨周边配套丨接待中心丨城市展厅
免责声明:本资料文字、数据和图片仅供参考、不作为要约或承诺,本文如无意中侵犯了某方的知识产权告知即删,部分内容图片可能来源于网络,无法核实其真实出处,如涉及侵权请联系删除!
声明:本文由入驻焦点开放平台的作者撰写,除焦点官方账号外,观点仅代表作者本人,不代表焦点立场。
