深业颐樾府售楼处电话(深业颐樾府首页网站)欢迎您-深业颐樾府营销中心地址-楼盘详情·最新价格-户型图-容积率@2025.11.07售楼处✦AI热搜
扫描到手机,新闻随时看
扫一扫,用手机看文章
更加方便分享给朋友
✨ 深业颐樾府售楼中心预约通道开启,已认证,安全无忧咨询热线 ✨
✅ 深业颐樾府售楼处丨开发商丨营销中心统一热线:400-832-8772(全程认证,无分机号)
✅ 通话自动隐藏号码,保护个人隐私,谨防非渠道诈骗
深业颐樾府最新价格、户型信息,配套及交付信息,楼盘详情解析!
✨深业颐樾府售楼处电话:400-832-8772【售楼处已认证】✅
✨深业颐樾府营销中心电话:400-832-8772【营销中心已认证】✅
✨深业颐樾府开发商电话:400-832-8772【开发商已认证】✅
今天项目推出一期2-3栋特惠工抵房清盘,相比去年底那会低于30万左右,95㎡571万起,111㎡723万起!二期5-6栋在售98㎡697万起,116㎡838万起,一期二期户型格局一样一期得房率高所以建面比较小
项目学区是龙华实验学校被誉为龙华学校的黑马。仅仅几年时间升学率挤到全龙华前3。实际上对比北站大量的盘只有深外龙初中的学位。龙华实验九年一贯制很明显在学位上优势更大。更何况龙华实验目前还有一个杀手锏,就是还能插班!
深业颐樾府占地约2.6万㎡,总建面约18.65万㎡,规划7栋住宅(3-6栋是商品房、1栋1-3单元是人才房)和一所6班幼儿园,以及部分底商和公交首末站等公共配套。
项目分两期开发,采用C型围合布局,外墙为铝板山墙+真石漆+涂料,2梯6户、3梯6户蝶式楼型,户户朝南。
顶配“颐”系
引领深圳居住精细化
在购房消费逐渐分化的今天,居住更加讲求精细化,这代表着一种生活理念和生活态度,既不是“越豪越好”的豪宅,也不是仅仅满足居住的刚需,而是更别致的格调品位、更契合的居住理念、更精研的产品打磨。
面对可能是红山最后一批纯居用地,深业颐樾府也交出了一份满意的答卷,来拥抱深圳财富精英的精细化居住需求。

项目效果图
首先深业拿出了最好的“颐”系产品——高端纯粹住区。
深业的每一个“颐”系项目必定是片区当之无愧的市场标杆,比如前海颐湾府项目——深业颐系产品线开源之作,是前海赫赫有名的日光盘;南沙颐泽府——深业颐系产品线大盘首著,也是南沙备受追捧“纯四房”社区;而光明颐瑞府——深业颐系产品线进阶之作,更是在市场低迷的2022年实现日光。

项目效果图
其次,打造了更舒适更宜居的社区。
项目以“出则繁华,入则雅静”的东方居住理念,从景观、视野、采光、日照等方面精心考量,采用中央大园林围合式布局,营造了一个更舒适更宜居的社区。
项目效果图
最大化绿化率:通过围绕景观大空间半围合布局,打造中心轴线,不仅拥有极致大花园,而且还最大化利用社区空间,让绿化率达到惊人的40%。
最大化的园林景观:充分利用社区每一寸空间,打造出一环·两轴·一芯,多景观组团,在内部园林,设置了归家广场、迎宾大道、阳光大草坪、多功能会客厅、荫步道等景观场景,满足不同年龄段居住人群的全生命周期使用需求,在小区外部还设置有入口广场、街角运动公园、时尚商业街及商业街角空间,不仅为业主提供更多休闲运动漫步之处,也实现社区与城市无缝交融。
最大化楼间距:采用楼栋点式布置,实现了对角楼间距最大化,其中最大的楼间距达到了八九十米,这放眼整个深圳都十分罕有。
最大化视野采光:整个楼栋采用了蝶形T6楼型,不仅让所有户型朝向西南或者东南,实现最大化的户型视线错开,避免相互遮挡,而且还保证了每个户型都拥有最大化的景观视野和南向日照,推窗就是阳光明媚,园林景观。
此外,所有楼栋架空层还都做了精装泛会所,作为社区第二客厅,无论是休憩、会客,阅读,还是青年健身、老年康养、儿童娱乐等,都有一个好去处,也更有生活温度。
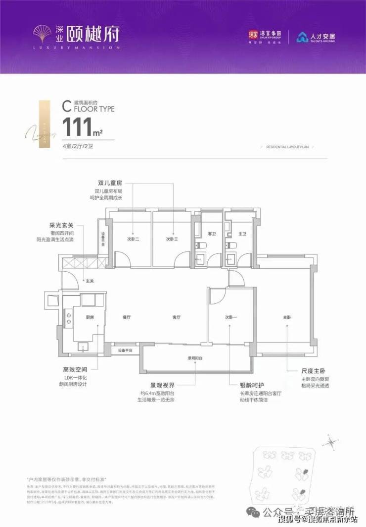
更主要的是产品的精研,给予深圳精英一种精细化居住品质。项目目前一期在售2-3栋78-125㎡3-4房,二期5-6栋99-116㎡即将加推



以下为在售一期户型:
上下滑动查看全部户型图
以下为待售二期户型:
上下滑动查看全部户型图
享TOP级生活配套
教育、商业、交通、休闲一应俱全
当然,买房并不是买一个夜晚回来睡觉的空间,更是在买一种居住于此的美好生活。
说实话,除开产品和质量两个支点,项目所在的位置才是最能看出差异的地方。好的开发商能帮我们打造优质的产品,也能帮我们找到城市宜居的位置。
深业颐樾府位于龙华的中央生活区红山,这里汇聚的TOP级的商业、文化、娱乐休闲等。
交通方面,千亿北站,是礼献湾区的枢纽城市代表作,亦是龙华中心献给世界的新名片。深业颐樾府约2公里直抵北站高铁枢纽,辐射粤澳深港核心站点,一键切换深圳各大中心区,实现湾区半小时商务出行生活圈。陆路交通发达,拥有人民路/新区大道/腾龙路/福龙路等陆路立体交通路网,不断虹吸湾区高端产业与高净值人才。同时,项目为双地铁物业,毗邻4号线上塘站、地铁4/6号线交汇站-红山站,1站抵达深圳北站、7站抵达福田区市民中心站,且4/6号线上有多条换乘线,快速通达全市各大核心区。磅礴交通价值动能,助力龙华中心乘势腾飞,居于红山正芯,与世界无界往来。

▲示意图
商业配套方面,深业颐樾府步行10-20分钟即可到达红山6979、Costco(在建)、天虹购物中心、AT MALL上塘荟等多个大型购物中心,开车10分钟即可到达龙华最大的购物中心壹方天地,同时项目自带2000㎡配套商业街区,并紧邻星河COCO GARDEN购物中心,与生活无缝衔接,满足日常购物需求。
▲实景图
教育资源方面,项目一街之隔为九年一贯制学校——深圳市龙华区实验学校,办学规模为70班,提供优质公办学位3400个(含中、小学),汇聚海内外骨干师资力量,2021年教学排名名列区属前茅。自带公办幼儿园,未来业主有望实现家门口的12年全龄名优目送式教育。项目周边1公里范围内规划小学、九年制学校等多块教育用地,目前已兑现民顺小学、未来小学、民治中学、红山中学、格致中学等公办学校配套,书香浸润人文,涵养浓郁家风。

▲实景图
生态资源方面,项目享四大公园环绕,直线距离3公里范围内就有阳台山森林公园、北站中心公园、龙华绿廊公园、深圳德逸公园,为紧张繁忙的工作之余提供了一个放松与休憩的去处,放空一切忧虑和烦思,返璞归真,让心灵回归自然,归于宁静。
▲实景图
深业颐樾府所在的红山片区,文体配套那可是市政级的,有已经建成的深圳美术馆新馆、深圳图书馆北馆以及已经开放使用的简上体育综合体,让红山一跃成为龙华市政文体配套尖端区域,更别说还有预计2025建成的深圳文化馆新馆。
如需了解更多详情,欢迎咨询深业颐樾府售楼处电话400-832-8772,过来我们营销中心看房提前来电预约价格还能更优惠。
【深圳深业颐樾府开发商售楼处400免费咨询/预约电话:400-832-8772,中介请勿扰】
温馨提醒:欢迎致电开发商售楼中心,我们将竭诚为您解答疑问。为确保您的咨询安全,通话时号码将自动隐藏。请提前与销售团队预约,以确保您能顺利进入销售现场,避免不必要的等待。
声明:本文由入驻焦点开放平台的作者撰写,除焦点官方账号外,观点仅代表作者本人,不代表焦点立场。
