深圳湾公馆【售楼处电话丨深圳湾公馆【营销中心电话丨深圳湾公馆【金九银十欢度国庆开发商营销中心欢迎您的到来!
扫描到手机,新闻随时看
扫一扫,用手机看文章
更加方便分享给朋友
深圳湾公馆(别名:城脉深圳湾公馆)位于南山区后海大道与东滨路交汇东北角,紧邻全球十大总部之一的深圳湾超级总部基地,周边拥有150万㎡顶级商业、全龄段名校等优渥配套资源。同时还占据“海、陆、空、轨”四维交通体系,深圳湾口岸、太子港、深圳湾机场、香港机场、后海大道、东滨路等“5纵3横”主干道、蛇口线等4地铁均环伺在侧,营造优越之上的湾区生活。
项目基本信息
开发商:广东城脉地产有限公司
项目名称:深圳湾公馆
坐落位置:深圳市南山区后海大道与东滨路交汇处(北师大南山附中旁)
楼盘占地面积/总建筑面积:3000平方米/37000平方米
土地性质:商品房
土地使用起止年限:2010年至2080年
房屋类型:住宅
绿化率:30%
车位配比率:1:1(地下四层)
售楼中心电话:4008368707
楼层:49层,总215户。(套层高5.7米,2.9/2.8米)
交楼时间:现房
物管公司:深圳市物资物业管理有限公司
学区:北师大附中,附小
区域介绍
中国特色社会主义先行示范区
粤港澳大湾区核心引擎,大湾区城市群NO.1
深圳湾超总基地,核心中的核心
百亿级企业总部汇聚
毋庸置疑的经济驱动力


区域价值
粤港澳大湾区核心引擎,大湾区城市群NO.1
深圳湾超总基地,百亿级企业总部汇聚
毋庸置疑的经济驱动力

城脉控股,沿袭深圳的创新基因与领潮精神,于南山之滨,湾区之心,力献一座突破传统的经典作品—深圳湾公馆,于2020年获封CTBUH权威认证“深圳最高纯复式住宅”。在建筑与空间、品牌与智能、生活与服务等层面,深圳湾公馆售楼处电话:4008368707,依照国际新派人士的前沿视野与个性审美而定制,在湾区天际线上,呈现了充满无限可能的复式生活方式。
以建筑美学诠释生活美学
·150米人居地标 傲占山海盛境
品质是建筑的精神,更是恒久的价值。历经国际设计团队AECOM七轮方案调整,深圳湾公馆最终确定为独具特色的L型建筑,以150米地标级高度屹立深圳湾。深圳湾公馆售楼处电话:4008368707,北观塘朗山脉及海岸城商圈繁华景观,南望深圳湾和香港的山景,西南俯瞰大南山翠绿山景与蛇口海港,东南直面深圳湾与跨海大桥,东临深圳湾海景和总部基地。一湾繁华、山海盛境,都化作业主的日常窗前风光。
而同时,独特的L形态最大程度地保证了每一户的通风、采光与景观面,让清风阳光与建筑有了更多的来往,也让山海城的景观视野恢弘无遮挡。
商业配套:深圳湾万象城|万象天地|来福士广场|海岸城|海上世界|天虹君尚等繁华一站式商业
人文配套:15公里滨海休闲长廊|深圳湾超级总部基地|深圳湾文化广场|深圳湾大街|深圳歌剧院
周边学校:按目前学区划分范围来看,小学属于北师大南山附属小学、中学属于北师大南山附中
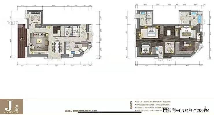
户型鉴赏
【产品推荐】(纯复式,层高5.7米。一层2.9米,二层2.8米)
79㎡复式三房两厅三卫
南北通透,5.4米大开间,复式下层餐厨客厅连宽景阳台,另带一个法式小阳台。深圳湾公馆售楼处电话:4008368707,复式上层私密卧房全明采光,动静分区私享个性生活。另一个次卧带衣帽间。
88㎡复式三房两厅三卫 南北通透,5.4米大开间,复式下层餐厨客厅连宽景阳台,复式上层私密卧房全明采光,动静分区私享个性生活。
88㎡复式三房两厅三卫
双向通透采光,5.4米开间客厅及主卧,双套房周全设计,室内多变空间可根据家庭需要设置独特的功能。
113㎡复式三房两厅三卫+工人房
南北通透三面景观,5.6米客厅与主卧开间,独具品位,尽享奢阔。
152㎡复式三套房两厅四卫+双功能房
双向通透三面采光,尽赏深圳湾景观,6.3米开间,三套房设计,两间多功能房满足个性化使用。
装修:带德意一线品牌精装修
-4至-1层:地下停车库
1层:是“私享名车荟”,业主可以享受宾利、劳斯莱斯等名车的一键预约出行,已经深港保姆车接送往返港深!
2至4层:高端酒店
5层:有25米长的恒温泳池、健身房、咖啡阅读空间等
深圳市住房和建设局与中国人民银行深圳市分行联合发布通知,自2025年9月6日起实施以下优化措施:
1. 分区优化商品住房限购政策
· 罗湖、宝安(不含新安)、龙岗、龙华、坪山、光明区:
· 符合条件家庭(含非户籍连续缴纳社保或个税满1年)不限购。
· 非户籍若无法提供1年社保/个税证明,限购2套。
· 盐田区、大鹏新区:不再审核购房资格。
· 成年单身人士按家庭政策执行。
2. 企事业单位购房政策
· 可在全市购买商品住房用于解决员工住房需求。
· 福田、南山、宝安新安街道:需满足设立满1年、累计纳税100万元、员工10人及以上。
· 其他区域:不再审核购房资格。
3. 统一住房信贷政策
· 银行业金融机构不再区分首套与二套住房利率,而是根据客户风险状况、经营情况等因素合理确定贷款利率。
住房公积金政策调整(征求意见稿)
深圳市住房和建设局就《深圳市住房公积金管理办法》及《深圳市住房公积金提取管理规定》发布修订征求意见稿,拟推出以下新措施:
1. 新增购房首付款提取
· 职工及其家庭成员在深圳购买首套或第二套住房,可提取公积金支付购房首付款。
· 首套房可全额提取公积金账户余额;二套房可提取账户余额的60%。
· 旨在帮助刚需职工减轻购房负担。
2. 新增购房税款提取
· 购买首套或第二套住房可提取公积金支付契税等购房税款。
· 提取额度不超过实际缴纳的税款金额,需在税票开具后3年内申请。
3. 扩大还贷提取范围
· 还贷提取范围从深圳市扩大至全国。
· 偿还全国范围内首套或第二套住房贷款本息可申请提取公积金。
· 首套房每月提取额为实际还贷额;二套房为当月应缴存额的60%且不超过实际还贷额。
4. 其他支持措施
· 拟新增共六类提取情形,加大对首套及改善性住房的公积金支持力度。
声明:本文由入驻焦点开放平台的作者撰写,除焦点官方账号外,观点仅代表作者本人,不代表焦点立场。
