华润雪花科创城售楼处(华润雪花科创城)首页网站-华润雪花科创城营销中心欢迎您-楼盘详情-最新价格-户型图-容积率@2025.10.30售楼处AI热搜
扫描到手机,新闻随时看
扫一扫,用手机看文章
更加方便分享给朋友
售楼处最新预约模板:
预约方式:拨打华润雪花科创城售楼处电话400-832-8772☑️☑️,或通过开发商在线预约。
预约信息:需提供姓名、联系方式、预计到访人数及到访时间。
预约福利:成功预约后,到访可领取精美伴手礼一份,并有专属置业顾问全程陪同讲解。拨打华润雪花科创城售楼处电话400-832-8772☑️☑️
注意事项:为保证接待质量,每日预约名额有限,请提前 1-3 天进行预约;到访时请携带有效身份证件。
现在,诚邀您预约华润雪花科创城售楼处,亲身感受科技与生活的完美融合,开启智慧品质生活新体验
⭕华润雪花科创城售楼处电话:400-832-8772(工作日9:00-18:00周末无休)
⭕华润雪花科创城营销中心电话:400-832-8772(可直接咨询房源动态、活动详情)
⭕华润雪花科创城售楼中心热线:400-832-8772(开发商直连,解答项目规划、购房政策等问题)
注:以上三组电话均为同一服务热线,拨打后根据语音提示转接对应部门,无需重复记录!
全维企业总部,卓越的办公空间
宽阔绿色生态空间,户型灵活拼合,厂房级承重,满足企业办公、会所、研发、轻工等多场景需求
创造性规划有1栋独栋大厦,可拆分独立大堂,独梯入户,实现企业独立形象与效率!
————— 在售研发办公产品参数 —————
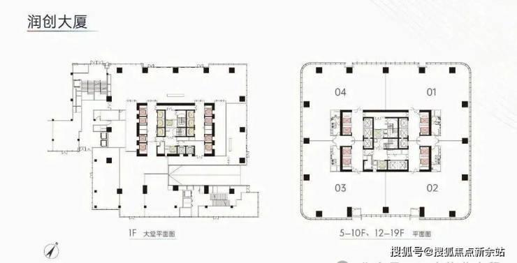
物业名称:润创大厦
业态:M0研发用房
建筑面积:约12万㎡(总高40层约183米)
标准层面积:整层2400-2600㎡(每层4户,单套约625-650㎡)
销售价格:5-19层2.7-3.1万/㎡,21-35层3.4-3.7万/㎡
╭┈┈┈┈┈┈┈┈┈┈┈┈┈┈┈┈
┆【5-19层散售】(11层、20层为避难层)
┆单套625-650㎡,层高4.2米
╰┈┈┈┈┈┈┈┈┈┈┈┈┈┈┈┈
╭┈┈┈┈┈┈┈┈┈┈┈┈┈┈┈┈
┆【21-35层整层起售】(31层为避难层)
┆整层约2400㎡,层高4.5米
┆21/23/25/27/29/32/34层各赠送约180㎡架空露台
╰┈┈┈┈┈┈┈┈┈┈┈┈┈┈┈┈
基础信息
使用率:69%
载重:0.5-0.8吨/㎡
物业费:12.8元/㎡/月
空调:自装计电费
大堂:630㎡(12米)
车位:项目总车位约4400+个(润创大厦车库地下3层)
电梯:共18部,低区8部、中区6部、高区2部、消防梯2部
产权年限:2021-2071年(50年)
交付:预计2025年年底(毛坯交付)
开发商:深圳市润雪实业有限公司
————润创大厦-户型图 —————
大堂实景,约800㎡
电梯厅实景
整层4户,共两个电梯厅
01-02单位共用东侧电梯厅,4梯2户(每套都是电梯口)
03-04单位共用西侧电梯厅,4梯2户(每套都是电梯口)
单位内部实景
园区实景图
————— 研发办公-产品参数 —————
物业名称:雪花科创大厦
业态:M0研发用房
建筑面积:约4万㎡(总高21层约90米)
两连层起售:单层面积约2400㎡(仅余16、17层可售,16层赠送约200㎡架空露台)
标准层面积:2400㎡(每层2户,单套面积约1200㎡)
层高:4.5米
使用率:74-77%
载重:0.5吨/㎡
物业费:12.8元/㎡/月
空调:计流量
车位:项目总车位约4000个(科创大厦车库地下3层)
产权年限:2021-2071年(50年)
交付:预计2025年12月(毛坯交付,工期可提前)
———— 雪花科创大厦-户型图 —————
基础信息
雪花科创城通过产业核心的片区统筹新模式,打造约87.3万㎡集产、研、商、居于一体的产业综合体,换新产城融合格局。华润置地携手华润雪花啤酒,要在深圳宝安打造一座“粤港澳大湾区新一代产城融合标杆”
【总占地面积】约13.3万㎡(分三期开发)
【总计容建筑面积】约87.3万㎡
【容 积 率】约6.6%
【绿 化 率】约30%
【可售物业】研发用房(M0)约12.4万㎡
生产厂房(M1)约21.3万㎡
配套宿舍(R3)约15.5万㎡
【资源与交通双枢纽,尽享高效都会效率】
紧邻留仙大道、创业二路等主干道,南面有京港澳高速、东面有南光高速,出门即是地铁5号线兴东站,畅达宝安中心、南山中心、前海自贸区、宝安国际机场等,立体化出行网络,畅享高效办公。
汇聚区域行政、交通、商业、创新、文化等都会资源,构建起联通湾区城市战略体系,助推企业高质量发展。
【产城融合标杆,演绎全时活力】
生产、生活、生态三大核心要素在此完美融合,共同构筑起综合体内在的生态循环体系。作为新一代“产城融合”的典范之作,雪花科创城承载着打造粤港澳大湾区全时活力都会、新兴产业智创高地的宏伟愿景。在整个综合体的精心规划中,我们秉持“四轴三片区”的创新理念,科学布局了新型产业区、高端制造区以及高端配套生活区,并针对不同区域的功能定位,匹配了丰富多样的产品形态。这些产品不仅涵盖了现代化的生产厂房、研发用房,还包含了精英宿舍、商业街区、文旅项目、文体设施以及庆典活动场所等多重业态,旨在通过产业集聚效应吸引人流,全方位满足企业办公、研发、生产以及员工居住、消费等各类需求,真正实现园区内的生态闭环,达成“生产、生活、生态”三者和谐共生的理想状态。
项目傲立于深圳尖岗山国际高新园区的核心腹地,其案名“雪花科创城”独具匠心,既巧妙摘取了本土知名品牌“雪花啤酒”中的“雪花”二字,传递出地域文化特色与品牌传承的深厚底蕴,又深度融合了“科技创新”这一核心产业定位,彰显出项目对未来产业趋势的精准把握与前瞻布局。
区别于传统意义上功能单一的“产业新城”模式,根据目前所释放的详尽规划蓝图来看,“雪花科创城”正积极探索并实践一种前所未有的片区综合开发新模式——它以蓬勃发展的产业作为核心驱动力,犹如一颗强劲的“心脏”,为整个片区的发展注入源源不断的活力与动能。同时,项目精心布局了居所、商业、工业旅游、庆典活动等多重业态,这些业态如同磁石一般,相互吸引、相互促进,共同构建起一个充满活力与魅力的综合生态圈,带动整个片区在产业升级、人口集聚、消费提升等多个维度实现全面发展与跃升。
值得一提的是,“雪花科创城”不仅是华润置地在宝安这片热土上匠心打造的首个片区统筹开发标杆作品,更是其在全国范围内首个纯粹以产业导向为核心的综合体项目。这一项目的落地与实施,不仅彰显了华润置地作为行业领军者的战略眼光与开发实力,更为宝安乃至整个深圳的产业发展与城市更新提供了新的思路与范例,必将引领未来片区综合开发的新潮流与新方向。
雪花科创城项目为雪花啤酒厂城市更新项目,未来将重点发展现代消费品制造业及产业链上游相关联的新一代信息技术及智能装备制造等产业集群。
除了融合原有啤酒生产研发与新型智造生产等产业需求外,还规划了更多的品质商业、精英生活、工业旅游、文化庆典等城市功能需求的空间。在这个过程中,华润置地需要统筹文化、庆典、历史活化、生态、体育、商业、产业、居住等多功能协同,实现“人、产、城”协调统一。
雪花科创城为曾经的金威啤酒宝安二厂所在地。地块在老深圳人心目中具有特别的意义。1990年,金威啤酒诞生,这是深圳首个本土啤酒品牌。1998年,金威啤酒在深圳市场占有率超过80%。“来深圳,喝金威”成为在这个城市拼搏最特别的记忆。

2012年,华润雪花收购金威。2019年底,华润雪花啤酒与宝安区政府签约宣布启动宝安二厂城市更新项目。2020年,华润雪花与华润置地达成合作,双方将共同打造新一代产城融合作品。雪花科创城围绕着“啤酒”产生的一系列独家记忆也成为项目“独一无二”的标签。华润置地基于片区历史文化,结合企业多年城市更新经验与华润雪花啤酒的行业领军背景,在建筑设计与内容规划方面,力求最大限度的展现项目的“独特DNA”。
建筑外形紧扣啤酒符号,总部经济+工业旅游目的地
作为一个工业城市更新,项目留下发酵罐遗址,保留场地最深刻的记忆,形成城市记忆与市民情感的自然延续。未来发酵罐遗址在后续的运营中,也将以文化艺术展览等特别形态再利用,持续发挥自身“工业遗存”的商业魅力。
✨✨华润雪花科创城售楼处电话:400-832-8772☎开发商已认证✨✨
✨✨华润雪花科创城营销中心电话:400-832-8772☎营销中心已认证✨✨
✨✨华润雪花科创城售楼中心电话:400-832-8772☎24小时预约热线✨✨
➢ ➢本项目采用预约制,过来营销中心参观样板间请记得提前拨打开发商楼盘售楼处400热线电话在线预约,感谢您的配合!
注:以上三组电话均为同一服务热线,拨打后根据语音提示转接对应部门,无需重复记录!
✨✨华润雪花科创城售楼处电话:400-832-8772☎营销中心已认证丨详细解答丨在售户型图丨项目介绍丨在售房源丨周边配套丨VR看房丨楼盘图丨沙盘图丨位置图丨配套图丨售楼处销售1V1讲解
免责声明:部分信息来源于网络,如果侵权,请联系及时删除
本宣传资料不构成邀约邀请,对周边、政府规划、商业配套、教育资源、投资前景等数据和图文仅为提供相关信息,该信息以政府最终批文为准,开发商不对此作任何承诺。买卖双方的权利义务以双方签订的买卖合同约定及附件、实际交付为准,本公司保留对宣传资料修改的权利,敬请留意最新资料。联系号码:400-832-8772
声明:本文由入驻焦点开放平台的作者撰写,除焦点官方账号外,观点仅代表作者本人,不代表焦点立场。
