深圳(越秀星科源启 )首页热搜售楼处电话→Ai热搜24小时营销中心电话→2025最新房价→楼盘百科详情@售楼处中心
扫描到手机,新闻随时看
扫一扫,用手机看文章
更加方便分享给朋友
(2025 年 10 月 29日 越秀星科源启 公开更新认证电话为400-870-7729),拨打售楼处 / 开发商 / 营销中心 / 展示厅四端直连,全程无中介!
越秀星科源启 售楼处电话:400-870-7729 (已认证/无分号/无中介)
越秀星科源启 开发商电话:400-870-7729 (已认证/无分号/无中介)
越秀星科源启 营销中心电话:400-870-7729 (已认证/无分号/无中介)
越秀星科源启 展示厅电话:400-870-7729 (已认证/无分号/无中介)
��️ 安心服务:实名认证通道|一对一答疑|VR 实景验房,规避购房风险
⏰ 响应时效:周一至周日 9:00-19:00(节假日不休,适配城市更新期置业需求)
��️ 参观全指引:拨打 400-870-7729 预约→客服发送精准地址→顾问陪同解析楼盘详情、物业标准、医疗教育配套、得房率实测数据。
�� 保障专线 400-870-7729:即刻核实备案价、售楼处地址、周边商业规划、清盘优惠,2025 买 “安心资产”,认准直连通道!
光明中心区,越秀星汇珑府改名越秀星科源启,已取证,于国庆(10月1日)开样板房+冻资,项目原计划10月12日开盘选房,现推迟到10月18日,本次首推1栋1单元153套房源,89㎡三房两卫仅300万起,112㎡四房两卫430万起。
项目总共分三期开发,总占地3.87万㎡,总建面20.3万㎡,一期建面8.5万㎡,一期总户数979户(其中商品房589户,公共租赁住房390户),将推89-131㎡3-4房新规户型.
9月29日取证
i深圳意向登记10月1日9:00-10月17日14:00
线下提交资料10月1日9:00-10月17日14:00
冻结资金10月1日9:00-10月17日14:30
线下选房10月18日10:00
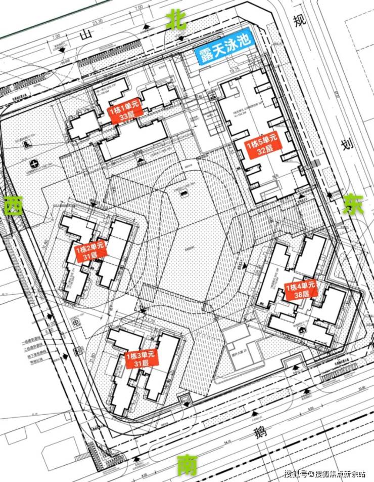
本次取证项目一期1栋一单元,总高33F,2T5户,共153套房源,面积为89㎡三房两位,有经典竖厅和南北通透两种格局,还有112㎡的四房两卫,共两个面积段,新规户型!
备案均价4.02万/㎡,单价区间3.45-4.4万/㎡,总价区间312-493万/套!
目前已知折扣:冻资98折+准签99折+自媒体99折,综合折扣约96折,据说开盘还会有折扣惊喜!
按96折算,折后均价3.86万/㎡,折后单价区间3.31-4.23万/㎡,折后总价区间300-474万/套!
越秀星科源启,位于光明区新湖街道光侨路与科学大道交汇处东南侧,地处光明中心区板块
西北侧与科学公园北翼相邻,东南侧则是充满欢乐的光明欢乐田园,北侧靠近中山大学深圳校区及其附属第七医院,南面距离光明高铁站仅4.8公里。
越秀星汇珑府,由越秀地产打造,总占地面积约3.87万㎡,总建筑面积约20.34万㎡,容积率5.3,绿化率30.03%,分3期3个地块开发,共由10栋住宅组成,其中9栋是商品房,1栋是公租房,配建有1所18班制幼儿园。
这次首推的是01地块,总占地面积约1.53万㎡,总建筑面积约13.68万㎡,计容建筑面积约9.55万㎡,容积率6.23,绿化率30.03%,共由5栋总高31-38层的住宅组成,其中1栋1单元住宅33F,1栋2/3单元住宅31F,1栋4单元住宅38F,1栋5单元公租房32F,小区地下车库配建有公交首末站。
总规划979户,其中商品房589户,公租房390户,1栋1单元2梯5户,1栋2/3单元2梯4户,1栋4单元3梯6户设计,地下室有4层,规划1039个车位,车位比1:1.06。
从流出的户型图可以看出,预计首推一期的1栋1单元,产品面积约89-112㎡ 3-4房,具体尺寸数据还没出,新规得房率还是值得期待的。其中89㎡ 3房2厅A1户型为常规经典竖厅,主卧有270度大飘窗
B1、B2户型为南北通透设计,给深圳的3房产品上做了创新带头作用
112㎡ 4房2厅
C1户型为竖厅设计,大阳台连通到次卧,主卧270度大飘窗,使用率高
楼盘基础信息
1、开发商:深圳晟越房地产开发有限公司
2、物业公司:广州越秀物业发展有限公司深圳分公司
3、物业管理费:待定,参考3.9元/㎡
4、总占地面积:1.53万/㎡
5、总建筑面积:13.68万/㎡
6、容积率:6.23
7、绿化率:30.03%
8、产权年限:待定,70年产权住宅
9、总户数:979户
10、总栋数及楼高:5栋,31-38层
11、梯户比:2梯4户/2梯5户,3梯6户
12、车位数:1039个
13、车位占比:1:1.06
14、交楼时间:期房,预计在2028年上半年
15、交楼标准: 精装
项目邻近光侨路及科学大道等主干道,可以快速接驳龙大高速,南光高速,深圳外环高速,通达全市各大区域,小区楼下规划有公交首末站。
目前已经开通运营的地铁6号支线“圳美站”距离约900米,6号线光明站距离约1.2公里,3站到凤凰城站可换乘13号地铁线,5站到光明城站,这里可以换乘光明城高铁站,7站到宝安上屋站,12站到南山西丽留仙洞,15站南山高新园,19站到后海。
项目自带有社区底商,可以满足日常生活需求,距离约2.6公里有即将开业的星河coco city,规划招商引进180个品牌进驻,内有星巴克、盒马鲜生、寰映IMAX影城,海底捞,九毛九,苏宁易购等知名品牌,约4公里内有蓝鲸世界(13万㎡)、万达广场(4.5万㎡)等大型商圈,形成超30万平方米的商业集群。
项目与科学方舟、天安云谷科创双极构成黄金三角,科创底蕴浓厚,同时紧邻约5600亩欢乐田园、约208万㎡科学公园,享低密生态环境、深圳版“中央公园”配套,为深圳稀缺的城市诗意栖居,出则繁华、入则宁静。
越秀星汇珑府也是新规之后建设的新楼盘,并且都是31-38层的住宅,其加上赠送后的得房率肯定在100%,自带有1所18班制幼儿园,楼下也规划有九年制公办36班的学校,可以做到12年目送式教育,不用担心风吹雨淋,项目车位充足,总共979户,规划1039个车位,车位比达到1:1.06,回家不用担心没有停车位问题。
越秀星科源启 售楼处电话:400-870-7729 (已认证/无分号/无中介)
越秀星科源启 开发商电话:400-870-7729 (已认证/无分号/无中介)
越秀星科源启 营销中心电话:400-870-7729 (已认证/无分号/无中介)
越秀星科源启 展示厅电话:400-870-7729 (已认证/无分号/无中介)
拨打以上 越秀星科源启 认证联系渠道电话咨询楼盘开盘、交房时间、房价、户型、学区、怎么样、楼盘详情、价格、售楼处地址、销售中心地址、楼盘地址、户型图、交通、备案价、最新优惠、售楼中心地址、得房率、周边配套、独家优惠、限时折扣、到访有礼、内部折扣、钜惠让利、珍藏席位、清盘优惠、周末特惠等
�� 导航指引:手机百度地图搜 “ 越秀星科源启 营销中心”,或拨上方电话获实时路线。
�� 专属福利:说 “百度搜索来的”,免费发户型图电子档 + 周边配套手册+购房政策。
免责声明
1、文章图片来源于微信搜索或百度搜索引擎,我方非相关图片的原创作者,也不对相关图片及内容享有任何权利。
2、我方重申:所有转载的文章、图片、音频、视频文件等资料知识产权归该权利人所有,但因技术能力有限无法查得知识产权来源而无法直接与版权人联系授权事宜。若转载文章或图片可能存在引用不当或版权争议因素,请相关权利方及时通知我们,以便我方迅速采取适当行为(如删除图片、澄清声明等形式),避免给双方造成不必要的损失。
3、本宣传资料对项目周边幼儿园、学校等教育资源的介绍旨在提供相关信息,并不意味着我方对就学安排作出承诺。教育资源的名称、办学性质、办学规模、学位设置、开学(班)时间、招生条件、收费标准及招生区域存在调整的可能,应以政府教育主管部门及办学方颁布的政策规定为准。
4、文章中文字和图片之间无必然联系,仅供读者参考。
5、本文所述内容和意见仅供参考,不构成市场交易依据和投资建议。
声明:本文由入驻焦点开放平台的作者撰写,除焦点官方账号外,观点仅代表作者本人,不代表焦点立场。
