中建鹏宸云筑售楼处(中建鹏宸云筑)首页网站-中建鹏宸云筑营销中心欢迎您-楼盘详情·最新价格-户型图-容积率@2025.11.02售楼处AI热搜
扫描到手机,新闻随时看
扫一扫,用手机看文章
更加方便分享给朋友
在社区营造上,深圳中建鹏宸云筑以百分百的诚意
✅✅深圳中建鹏宸云筑售楼处电话:400-832-8772【首页网站】
✅✅围绕“意韵、礼序、趣活、邻里、私享、智造”这6大产品内核,强调邻里趣活、创造互动空间,智造新烟火社区,以人文关怀的细节营造,满足了市场上对于品质内卷的所有想象
✅✅深圳中建鹏宸云筑售楼处电话:400-832-8772【营销中心】
✅✅为人们带来一场前所未有的居住盛宴
✅✅深圳中建鹏宸云筑售楼处电话:400-832-8772【售楼处】
中建鹏宸云筑,位于龙华区民治街道梅林关深国际华南数字谷旁,地处梅林关板块,也是龙华七大重点片区之一,未来,梅林关片区将从交通咽喉地区跨越式进化为“大湾区数字经济核心引领区、数字科创先锋示范区”,在立体便捷交通枢纽升级、融汇复合城市公共功能的同时,实现产业活力与自然活力共生,打造创新中轴上的未来新活力中心。
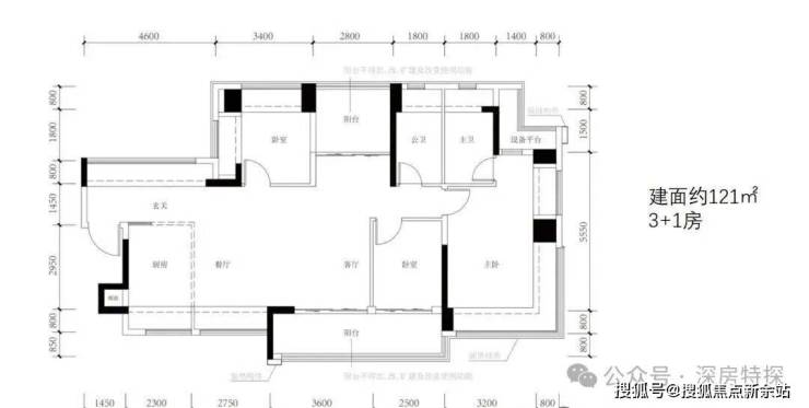
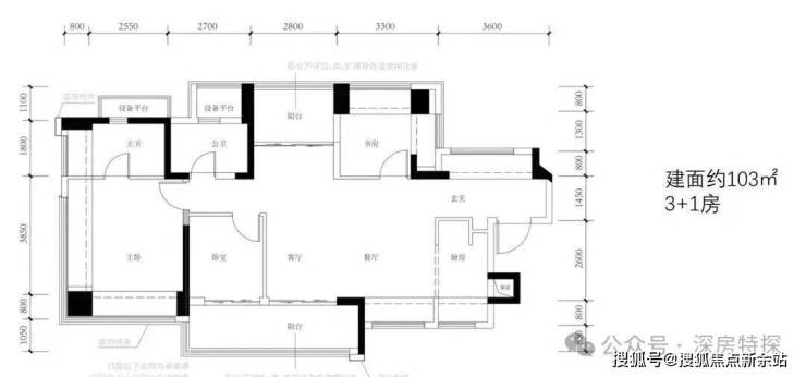
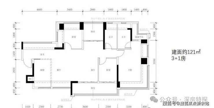
去年开盘的两栋楼现在已经全部售罄,足以见得这个楼盘的火爆程度。这次加推的6号楼,是两梯五户、32层的设计,有西南向和东南向104平的4房,还有121平和148平南北通透的5房。和之前的楼栋相比,6号楼在视野上有很大优势,部分户型不会被写字楼遮挡,采光和观景效果都更好
02
项目介绍
开发商:华展置业有限公司(中建壹品+湖北文旅局)
物业公司:中建壹品物业
总占地面积:约4.67万㎡
总建筑面积:约21.65万㎡
容积率:5.0
绿化率:30%
栋数:10栋,首推3栋和5栋
总户数:2000多户,首推368套
总层高:32F/47F
梯户比:2T5/2T6
车位:2155个
物业费:-
产权:70年
房产性质:住宅
交楼时间:-
交楼标准:精装修
面积段:79-142㎡3-4房
导航:鹏宸云筑·岭南美学馆
03
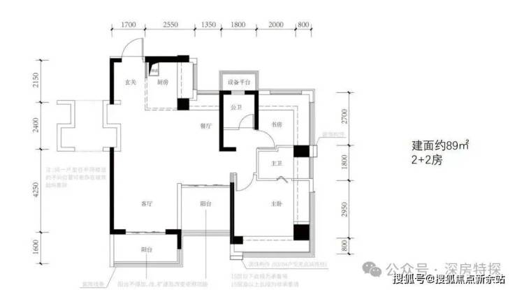
项目户型
平面图及户型图

04
项目配套
01
交通配套
10号地铁线“南坑站”距离约500米,22号地铁线“横岭站”距离约700米,2站到福田冬瓜岭,4站到岗厦北,6站香蜜湖,7站车公庙。约2.5公里还有深圳最大北站枢纽,快速通达深圳各大区域。
02
商业配套
中建鹏宸云筑500米范围内有8号仓奥特莱斯,在1.5公里范围内还有龙华印象汇、星河coco city、星河cocopaek,天虹商场等商业综合体,举步即是繁华。
03
教育配套
目前所属学区可上龙华区华南实验学校,九年一贯制,在龙华大概属于第三梯队。还有一所民办九年制万科双语学校,这个学校在本地口碑还是不错,就是民办的入读成本会高些。
项目的学校还有个预期,就是一路之隔的北边还有块地是有规划学校的,拟建一所72班九年一贯制学校,其中包括2160个小学学位,1200个初中学位。目前算是有些许期待,以后家门口的学校也算是个优点吧。
04
医疗配套
深圳市新华医院(三甲级别,建设中)、深圳市第二儿童医院(三甲级别,建设中)、广州医科大学附属第一医院(规划中)
05
休闲配套
项目南边是民悦公园和民治水库,目前能看到民治公园建设工程方案设计图流出。
在社区营造上,深圳中建鹏宸云筑以百分百的诚意✅✅深圳中建鹏宸云筑售楼处电话:400-832-8772【首页官网】✅✅围绕“意韵、礼序、趣活、邻里、私享、智造”这6大产品内核,强调邻里趣活、创造互动空间,智造新烟火社区,以人文关怀的细节营造,满足了市场上对于品质内卷的所有想象✅✅深圳中建鹏宸云筑售楼处电话:400-832-8772【营销中心】✅✅为人们带来一场前所未有的居住盛宴✅✅深圳中建鹏宸云筑售楼处电话:400-832-8772【售楼处】
声明:本文由入驻焦点开放平台的作者撰写,除焦点官方账号外,观点仅代表作者本人,不代表焦点立场。
