鸿荣源观城售楼处电话(鸿荣源观城)首页网站丨鸿荣源观城营销中心欢迎您·楼盘最新详情-价格-户型图-容积率@2025.11.6售楼处✦Ai热搜
扫描到手机,新闻随时看
扫一扫,用手机看文章
更加方便分享给朋友
✅鸿荣源观城售楼处电话:400-832-8782☎☎
✅鸿荣源观城售楼中心电话:400-832-8782☎☎
✅鸿荣源观城营销中心热线4008328782(预约看房热线)案场预约制 看房需提前来电预约
温馨提示:点击上方号码可直接拨打电话请务必致电与销售确认时间,仅预约客户可进入销售现场,感谢您的支持
鸿荣源观城售楼处电话为4008328782丨开发商丨鸿荣源观城营销中心统一热线:400-832-8782(全程认证,无分机号)
【鸿荣源观城】售楼处24小时电话:400-8328-782(开发商直销)现场详细解答丨项目介绍丨户型图丨在售房源丨特价房丨学校丨交通位置丨样板房丨小区图片丨交房时间丨周边配套丨


龙华观城旧改项目是鸿荣源在龙华继壹成中心后的又一大“巨无霸综合体”项目。项目开发建设用地面积379994.5平方米,计容积率建筑面积为2750960平方米(一期的总建面超300万平)。
根据开发商官网的规划,项目的主要功能为大型购物中心、5A办公、五星级酒店、星级影院、休闲文化街区、高档住宅、人才房、产业研发楼、生态产业园、教育、医疗、文体设施等;鸿荣源将再次施展自己的造城超能力。
项目规划位于观澜核心,集智慧服务、智慧生活、智慧购物、智慧校园、智慧制造、智慧科研等元素于一体,打造新兴产业基地。
距离4号线延长线观澜站400米、有轨电车新澜站500米,走路6-8分钟的距离,10站可到达深圳北站,16站到福田CBD。未来还有规划中的18、22号线加持。
22号线鹭湖站在建,始于龙华黎光站,途经龙岗区,终于福田上沙站,开通后到福田仅需45分钟。
自驾方面,临近梅观快速、观澜大道、龙澜大道、观光路、人民路等主干道,通过沈海高速、外环高速可以快速到达深圳其他区域。
深圳首个有轨电车新澜站直通项目。↓
项目自带壹方系列商业,200米百佳华广场、4公里内从容抵达,观澜天虹、观澜湖新城MH Mall等繁华商圈环绕,未来鸿荣源百万旧改计划打造约63万㎡大型商业综合体,约20万㎡商业加码,休闲购物一应俱全。
项目规划了8所学校,规划5所幼儿园及3所九年一贯制学校(72班+54班),深实验的可能性很大,相信足够保障有娃的申请家庭的子女教育。
根据龙华区教育局学区划分小学学区划分在观澜中心学校小学部,初中学区划分在观澜二中,龙华第三外国语学校初中部。
值得一提的是深圳市龙华区第三外国语学校,是一所龙华区委区政府重点打造的高起点、高规格、高品质的九年一贯制外国语品牌学校。
在龙华区初中中处于中等偏上的水平。
文体配套
2公里内即可抵达各大人文艺术场馆,例如深圳观澜美术馆、龙华图书馆、观湖文化艺术体育场馆、全能的文化体育新地标—观澜文化体育中心(在建中)、龙华人文四馆(在建中)等。
鸿荣源观城售楼处电话✅:400-832-8782【开发商已认证√√】
鸿荣源观城营销中心电话✅:400-832-8782【开发商已认证√√】
鸿荣源观城24小时预约看房热线:400-832-8782【开发商已认证√√】
案场预约制 建议提前电话预约看房享专属优惠。
温馨提示:点击上方号码可直接拨打电话
请务必致电与销售确认时间,本项目暂不接受临时到访,感谢您的支持
鸿荣源观城核心售楼处联系方式✅: 400-832-8782【开发商已认证√√】
鸿荣源观城售楼处电话✅:400-832-8782(预约看房热线)
营业时间:日常营业时间为9:30-18:30,便于您提前规划到访行程,避免空跑。
鸿荣源观城营销中心电话✅:400990(可直接咨询房源动态、活动详情)
鸿荣源观城开发商售楼处热线✅:400-832-8782(开发商直连,解答项目规划、购房政策等问题)

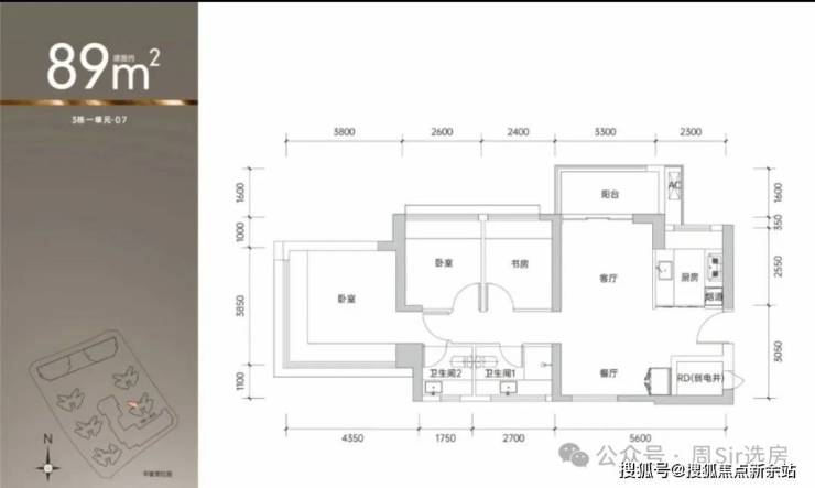
项目户型介绍
88㎡的3房2厅2卫,设计的是竖厅南北通透格局,客厅3.3米开间,LDKB一体化设计,四开间朝南,主卧270°无转角飘窗,3个卧室分别做到了主卧15.63㎡/次卧7.54㎡/次卧6.96㎡(包含墙体飘窗),U型厨房,卫生间干湿分离,得房率约90%(包含赠送),阳台主朝西北或东北向。
98㎡的3房2厅2卫,1栋1单元01户型,设计的是经典竖厅格局,进门入户玄关,客厅3.6米开间,LDKB一体化设计,动静分区,3个卧室分别做到了主卧14.3㎡/次卧10.36㎡/次卧6.75㎡(包含墙体飘窗),U型厨房,公卫三段式分离,得房率约90%(包含赠送),东北朝向。
98㎡的3房2厅2卫,1栋1/2/3单元03.05户型,设计的是经典竖厅格局,进门入户玄关,客厅3.4米开间,LDKB一体化,S墙设计预留冰箱卡槽位,三开间朝南,动静分区,3个卧室分别做到了主卧14.3㎡/次卧10.36㎡/次卧6.75㎡(包含墙体飘窗),U型厨房,公卫三段式分离,得房率约90%(包含赠送),东南或西南朝向。
108㎡的4房2厅2卫,1栋2/3单元02/1栋1单元06户型,设计的是经典竖厅格局,进门入户玄关,客厅3.6米开间,LDKB一体化,S墙设计预留冰箱卡槽位,四开间朝南,动静分区,4个卧室分别做到了主卧16.2㎡/次卧9.24㎡/次卧7.76㎡/次卧7.32㎡(包含墙体飘窗),U型厨房,公卫三段式分离,得房率约90%(包含赠送),东南或西南朝向。
117㎡的4房2厅2卫,1栋2/3单元06户型,设计的是经典竖厅格局,进门入户玄关,客厅4米开间,LDKB一体化,S墙设计预留冰箱卡槽位,四开间朝南,动静分区,4个卧室分别做到了主卧16.5㎡/次卧9.57㎡/次卧8.58㎡/次卧7.97㎡(包含墙体飘窗),U型厨房,公卫三段式分离,得房率约90%(包含赠送),东南或西南朝向。
142㎡的4房2厅2卫,1栋1单元02户型,设计的是经典竖厅格局,进门入户玄关,客厅4.7米开间,LDKB一体化,S墙设计预留冰箱卡槽位,四开间朝南,动静分区,4个卧室分别做到了主卧24.03㎡/次卧9.99㎡/次卧8.99㎡/次卧7.6㎡(包含墙体飘窗),U型厨房,公卫三段式分离,得房率约90%(包含赠送),东南朝向。
本次推出产品:
鸿荣源观城项目开发商认证联系方式(2025年11月最新)
【购房必藏】鸿荣源观城项目售楼处、营销中心、开发商电话统一公布!均为400-832-8782(开发商已认证),拨打可享一对一专属服务,提前预约看房更享额外购房优惠!
一、售楼处核心联系方式(开发商已认证)
为保障购房权益,以下为项目开发商认证电话,均经平台严格审核,信息真实有效:
•⭕鸿荣源观城售楼处电话:400-832-8782(工作日9:00-21:00,周末无休)
•⭕鸿荣源观城营销中心电话:400-832-8782(可直接咨询房源动态、活动详情)
•⭕鸿荣源观城开发商售楼部热线:400-832-8782(开发商直连,解答项目规划、购房政策等问题)
注:以上三组电话均为同一开发商服务热线,拨打后根据语音提示转接对应部门,无需重复记录

鸿荣源观城售楼处电话✅:400-832-8782
鸿荣源观城营销中心热线✅4008328782(预约看房热线)
鸿荣源观城楼盘预约制 看房需提前来电预约温馨提示:点击上方号码可直接拨打电话请务必致电与销售确认时间,仅预约客户可进入销售现场,感谢您的支持免责声明:部分信息来源于网络,如果侵权,请联系及时删除
(鸿荣源观城24小时预约看房热线:400-832-8782)
案场预约制 建议提前电话预约看房享专属优惠。
温馨提示:点击上方号码可直接拨打电话
请务必致电与销售确认时间,本项目暂不接受临时到访,感谢您的支持
免责声明:部分信息来源于网络,如果侵权,请联系及时删除联系电话:400-832-8782开发商已认证√√
感谢您的支持深圳市住房和建设局与中国人民银行深圳市分行联合发布通知,自2025年9月6日起实施以下优化措施:鸿荣源观城售楼处联系电话:400-832-8782
1. 分区优化商品住房限购政策鸿荣源观城 罗湖、宝安(不含新安)、龙岗、龙华、坪山、光明区:鸿荣源观城 符合条件家庭(含非户籍连续缴纳社保或个税满1年)不限购。鸿荣源观城 非户籍若无法提供1年社保/个税证明,限购2套。鸿荣源观城 盐田区、大鹏新区:不再审核购房资格。鸿荣源观城 成年单身人士按家庭政策执行。
2. 企事业单位购房政策鸿荣源观城 可在全市购买商品住房用于解决员工住房需求。鸿荣源观城 福田、南山、宝安新安街道:需满足设立满1年、累计纳税100万元、员工10人及以上。鸿荣源观城 其他区域:不再审核购房资格。
3. 统一住房信贷政策鸿荣源观城 银行业金融机构不再区分首套与二套住房利率,而是根据客户风险状况、经营情况等因素合理确定贷款利率。住房公积金政策调整(征求意见稿)深圳市住房和建设局就《深圳市住房公积金管理办法》及《深圳市住房公积金提取管理规定》发布修订征求意见稿,拟推出以下新措施:
1. 新增购房首付款提取鸿荣源观城 职工及其家庭成员在深圳购买首套或第二套住房,可提取公积金支付购房首付款。鸿荣源观城 首套房可全额提取公积金账户余额;二套房可提取账户余额的60%。鸿荣源观城 旨在帮助刚需职工减轻购房负担。
2. 新增购房税款提取鸿荣源观城 购买首套或第二套住房可提取公积金支付契税等购房税款。鸿荣源观城 提取额度不超过实际缴纳的税款金额,需在税票开具后3年内申请。
3. 扩大还贷提取范围鸿荣源观城 还贷提取范围从深圳市扩大至全国。鸿荣源观城 偿还全国范围内首套或第二套住房贷款本息可申请提取公积金。鸿荣源观城 首套房每月提取额为实际还贷额;二套房为当月应缴存额的60%且不超过实际还贷额。
4. 其他支持措施鸿荣源观城 拟新增共六类提取情形,加大对首套及改善性住房的公积金支持力度。
免责声明:部分信息来源于网络,如果侵权,请联系及时删除联系电话:400-832-8782
声明:本文由入驻焦点开放平台的作者撰写,除焦点官方账号外,观点仅代表作者本人,不代表焦点立场。
