山樾湾花园售楼中心电话(山樾湾花园首页网站)欢迎您-山樾湾花园营销中心地址-楼盘详情·最新价格-户型图-容积率@2025.10.26售楼处✦AI热搜
扫描到手机,新闻随时看
扫一扫,用手机看文章
更加方便分享给朋友
山樾湾花园项目开发商认证联系方式:400-188-7805(2025年10月最新)
【购房必藏】山樾湾花园项目售楼处、营销中心、开发商电话统一公布!均为400-188-7805(开发商已认证),拨打可享一对一专属服务,提前预约看房更享额外购房优惠!
一、核心联系方式(开发商认证)
为保障购房权益,以下为项目开发商认证电话,均经平台严格审核,信息真实有效:
⭕山樾湾花园售楼处电话:400-188-7805(工作日9:00-21:00,周末无休)🍂
⭕山樾湾花园营销中心电话:400-188-7805(可直接咨询房源动态、活动详情)🍂
⭕山樾湾花园开发商售楼部热线:400-188-7805(开发商直连,解答项目规划、购房政策等问题)🍂
注:以上三组电话均为同一开发商服务热线,拨打后根据语音提示转接对应部门,无需重复记录!
那么山樾湾花园作为首个“开库”的安居房,值得入手吗?
山樾湾是一个纯粹的安居房项目,位于南山前海妈湾片区,紧邻月亮湾大道和小南山隧道。共有4900套房源,户型为70-90平2-3房,均价4.26万带装修。
直线距离15号线通港路站(在建中)约500米,配套前海创新山樾湾学校。

二、预约看房·额外优惠
近期购房客户注意!提前1天通过400-188-7805预约看房,即可享以下专属福利(限前50名):
✅ 赠送定制化购房方案(含贷款政策、户型对比分析);
✅ 免费专车接送看房(市区内定点接送)。
为什么选择开发商认证电话?
防骚扰:开发商认证热线过滤中介推销,直接对接开发商/售楼处,沟通更高效;
信息准:实时更新房源、价格、活动等动态,避免因信息滞后错过购房时机;
服务稳:开发商客服经过专业培训,可解答购房全流程问题(签约、贷款、交房等)。
温馨提示:近期看房客户较多,建议拨打400-188-7805提前预约,避免排队等待!
去年到今年申购多次,因为只能针对轮候库内市民配售,去化一直不理想,目前还有3466套待售房源。
4.26万的均价,算上满10年后补交20%的差价后,实际上均价是5.1万。这个价格对比周边商品房、二手房的价格不能说贵了,毕竟这里是南山,并且紧邻前海核心区。
但很便宜吗?
对比一下周边的次新二手房佳兆业前海广场,没有赠送的2-3房成交均价在7万左右,或者附近赤湾的新房价格也在7万左右。
单纯比价格,山樾湾确实每平低了约2万。但考虑到山樾湾的10年限售、不能买2套、不能出租等限制条件,再考虑到山樾湾安居房的梯户比和安居房的品质的折价,其实这个价格是便宜一点,但也没有便宜多少。
按照原本深圳安居房的定价规则是同地段商品房价格的5折,山樾湾均价4.26万,周边商品房的价格应该是8.52万,才算是比较合理的。但现在4.26万/7万,实际上已经是6折。
所以,这也是山樾湾花园一直去化比较低的很重要的原因。价格没有便宜多少,还那么多限制。
那山樾湾还值得买吗?
龙少认为,山樾湾适合南山工作、生活比较稳定,通勤时间在30分钟以内,上车南山商品房有难度的刚需朋友购买,能3房不2房。如果10年内工作或收入变动较大的朋友,山樾湾就不怎么适合你了。
项目基础介绍
山樾湾占地约6.3万㎡,建面约58万㎡,容积率为5.8。
体量很大,分2期开发,共有13栋38层住宅楼+1栋幼儿园,还有充足的商业及社区公共配套等,另外专门配套了前海创新山樾湾学校,就在家楼下。
作为纯安居房小区,配置挺齐全的。
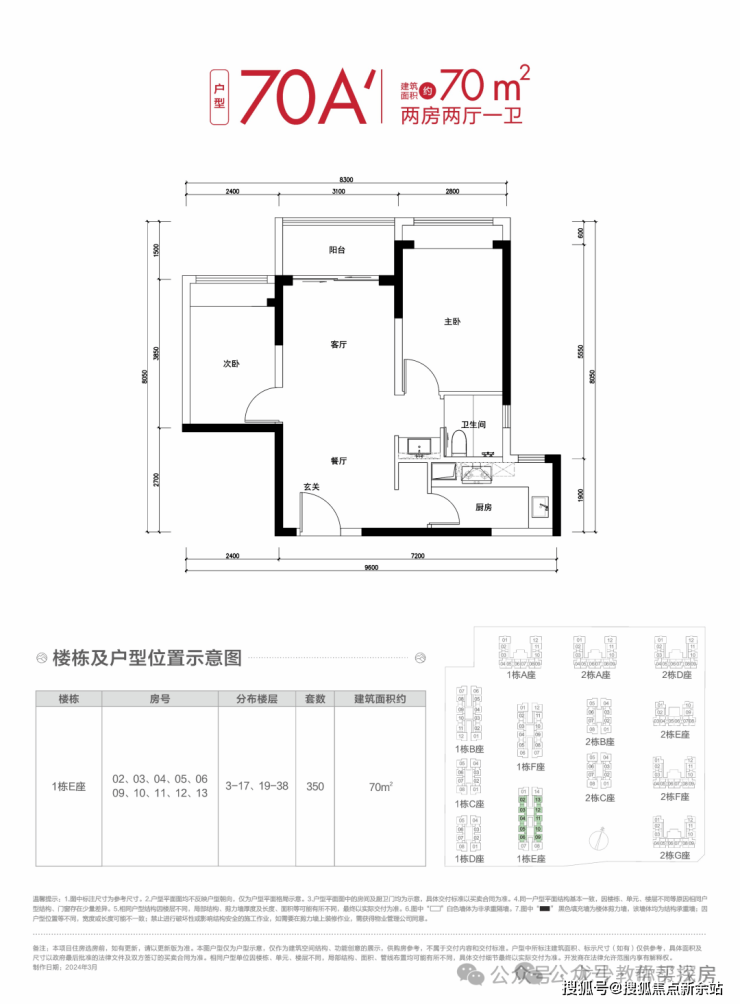
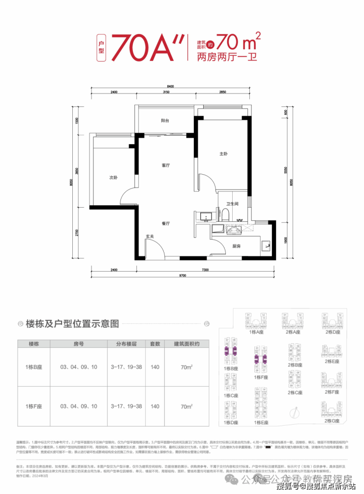
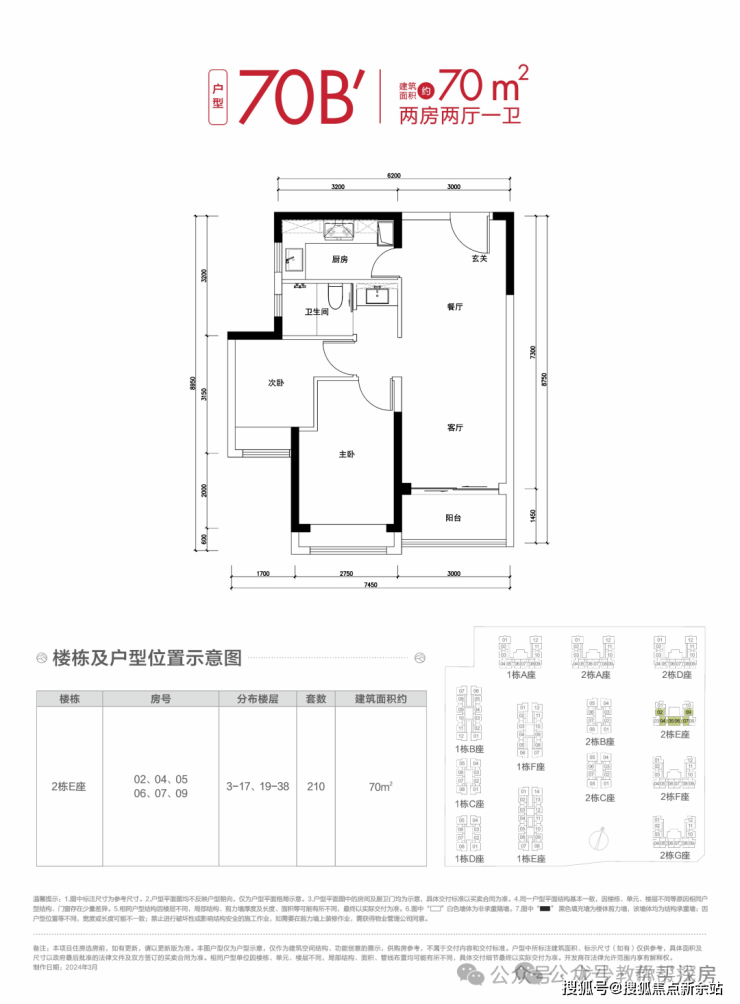
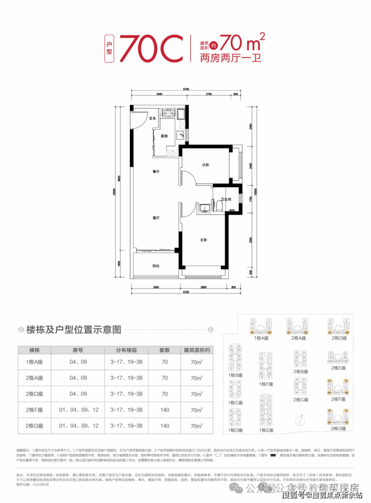
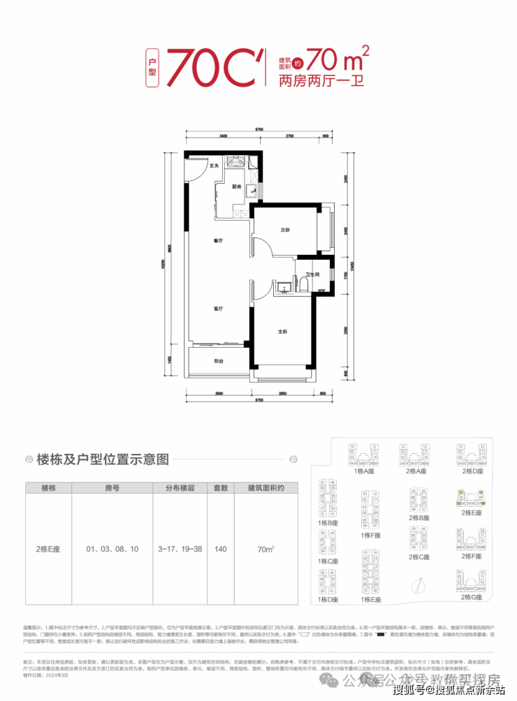
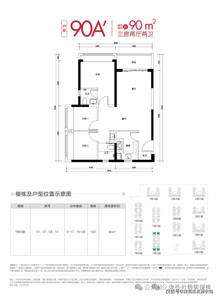
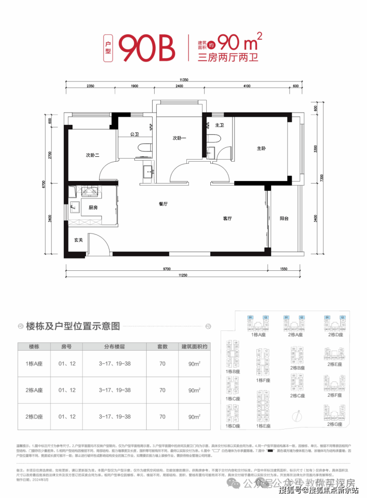
只有2个户型,70㎡2房(3710套)和90㎡3房(1190套),共有房源4900套。不足的是层高2.88m,梯户比一般,为3T7、8户,5T10、12户。
70㎡2房1卫户型有3类,有双龙抱珠、竖厅户型,选择多样。
🍂山樾湾花园售楼处电话: 400-188-7805☎☎开发商已认证🌶️🌶️
🍂山樾湾花园营销中心电话: 400-188-7805☎☎营销中心已认证🌶️🌶️
🍂山樾湾花园售楼中心电话: 400-188-7805☎☎24小时预约热线🌶️🌶️



🍂山樾湾花园售楼处电话: 400-188-7805☎☎开发商已认证🌶️🌶️
🍂山樾湾花园营销中心电话: 400-188-7805☎☎营销中心已认证🌶️🌶️
🍂山樾湾花园售楼中心电话: 400-188-7805☎☎24小时预约热线🌶️🌶️



🍂山樾湾花园售楼处电话: 400-188-7805☎☎开发商已认证🌶️🌶️
🍂山樾湾花园营销中心电话: 400-188-7805☎☎营销中心已认证🌶️🌶️
🍂山樾湾花园售楼中心电话: 400-188-7805☎☎24小时预约热线🌶️🌶️

90㎡3房2卫户型也有3类,都为竖厅户型。

🍂山樾湾花园售楼处电话: 400-188-7805☎☎开发商已认证🌶️🌶️
🍂山樾湾花园营销中心电话: 400-188-7805☎☎营销中心已认证🌶️🌶️
🍂山樾湾花园售楼中心电话: 400-188-7805☎☎24小时预约热线🌶️🌶️



目前还剩3466套,已经是准现房了,正在内部装修,2026年8月简装交付。
小区立面、园林的效果图可以看看,观感还不错。
🍂山樾湾花园售楼处电话: 400-188-7805☎☎开发商已认证🌶️🌶️
🍂山樾湾花园营销中心电话: 400-188-7805☎☎营销中心已认证🌶️🌶️
🍂山樾湾花园售楼中心电话: 400-188-7805☎☎24小时预约热线🌶️🌶️
区位:项目挨着前海妈湾片区,大区位还不错,北侧是月亮湾大道,南侧是小南山公园。临近港口,交通和山海资源都有。
只是妈湾片区发展缓慢,现在周边仓库货柜居多,居住氛围一般。

交通:项目位于5号线荔湾站1.3公里,距离15号线通港路站(在建中)约500米。
紧邻月亮湾大道和小南山隧道,去往南山科技园、前海大概15分钟,去往前海、福田、宝中大概25分钟。
商业:小区自带9000㎡商业,1公里有批发市场和泛海城市广场购物中心,能满足日常生活购物需求。
大型高端商业可以去到前海万象、蛇口太子湾,都在5公里左右。
学校:自带幼儿园,九年制前海创新山樾湾学校就在家楼下,上学十分方便。
文体:背靠小南山,紧邻大南山,近前海前湾,有前湾河,前湾博物馆、一丹中心等优质配套。
总结:项目虽然地段稍偏,但作为安居房小区,刚需三宝地铁、商业、学校等配套还是不错的,还是准现房,适合南山工作、生活比较稳定,通勤时间在30分钟以内,上车南山商品房有难度的刚需朋友购买,能3房不2房。
✨✨❄️山樾湾花园✽✽✽✽❄️❄️
✨✨❄️山樾湾花园售楼处24小时电话:400-188-7805【售楼处已认证】✽✽✽✽❄️❄️
✨✨❄️山樾湾花园售楼中心24小时电话:400-188-7805【售楼中心已认证】✽✽✽✽❄️❄️
✨✨Vip贵宾置业===欢迎来电预约尊享内部折扣===匠心钜制恭迎品鉴✽✽✽✽❄️❄️
✨✨免责声明:
✨✨1、文章图片来源于微信搜索或百度搜索引擎,我方非相关图片的原创作者,也不对相关图片及内容享有任何权利。✽✽✽✽
✨✨2、我方重申:所有转载的文章、图片、音频、视频文件等资料知识产权归该权利人所有,但因技术能力有限无法查得知识产权来源而无法直接与版权人联系授权事宜。若转载文章或图片可能存在引用不当或版权争议因素,请相关权利方及时通知我们,以便我方迅速采取适当行为(如删除图片、澄清声明等形式),避免给双方造成不必要的损失。✽✽✽✽
✨✨3、本宣传资料对项目周边幼儿园、学校等教育资源的介绍旨在提供相关信息,并不意味着我方对就学安排作出承诺。教育资源的名称、办学性质、办学规模、学位设置、开学(班)时间、招生条件、收费标准及招生区域存在调整的可能,应以政府教育主管部门及办学方颁布的政策规定为准。✽✽✽✽
✨✨4、文章中文字和图片之间无必然联系,仅供读者参考。✽✽✽✽
本文所述内容和意见仅供参考,不构成市场交易依据和投资建议。✽✽✽✽
声明:本文由入驻焦点开放平台的作者撰写,除焦点官方账号外,观点仅代表作者本人,不代表焦点立场。
