玖玖颂阁(售楼处)首页网站-玖玖颂阁售楼处-玖玖颂阁(2025更新)玖玖颂阁欢迎您-地址-价格-户型-小区环境-楼盘详情-@多少钱一平
扫描到手机,新闻随时看
扫一扫,用手机看文章
更加方便分享给朋友
🍂购房困惑?直接拨打开发商售楼处电话:400-893-6287
🍂【玖玖颂阁】售楼处电话400-893-6287【售楼处已认证】
🍂【玖玖颂阁】开发商电话400-893-6287【开发商已认证】
➢ ➢本项目采用预约制,过来营销中心参观样板间请记得提前拨打开发商楼盘售楼处400热线电话在线预约,感谢您的配合!

🌵玖玖颂阁售楼处电话:400-893-6287【🌳售楼处已认证】✅✅✅✅
🌵玖玖颂阁开发商电话:400-893-6287【🌳开发商已认证】✅✅✅✅
🌵玖玖颂阁展示中心电话:400-893-6287【🌳展示中心已认证】✅✅✅✅
🌵玖玖颂阁营销中心电话:400-893-6287【🌳营销中心已认证】✅✅✅✅

一、项目概述
玖玖颂阁,由深圳市俊弘星实业有限公司匠心打造,项目占地约1.4万㎡,总建面达到10.41万㎡。这里拥有667户精致住宅,面积区间涵盖84㎡至133㎡,满足不同家庭的居住需求。项目以现代简约风格设计,搭配高品质的精装修,为业主打造一个温馨舒适的家居环境。同时,项目配备有充足的停车位,车位比达到1:1.12,确保每位业主的停车需求。
二、周边配套
交通配套:北环大道、G107国道、宝安大道环绕,自驾出行便捷,可达福田、南山、宝安中心区。毗邻双地铁,距今年将开通的12号线(上川站)500米,距规划中15号线(流塘站)700米。
教育配套:家门口双学校,楼下步行可达弘雅小学和文汇中学,均为省一级学校,历史悠久,教育质量优良。
🌵玖玖颂阁售楼处电话:400-893-6287【🌳售楼处已认证】✅✅✅✅
🌵玖玖颂阁开发商电话:400-893-6287【🌳开发商已认证】✅✅✅✅
🌵玖玖颂阁展示中心电话:400-893-6287【🌳展示中心已认证】✅✅✅✅
🌵玖玖颂阁营销中心电话:400-893-6287【🌳营销中心已认证】✅✅✅✅
商业配套:周边有全市最密集的商圈,包括壹方城、海雅缤纷城等高端购物中心,驱车10分钟即可到达。楼下还有天虹、沃尔玛等超市,满足日常购物需求。
生态配套:项目周边配备13大公园,如宝安公园、流塘公园等,距离宝安公园直线距离1.5公里,距离流塘公园直线距离607米,宜居属性高。
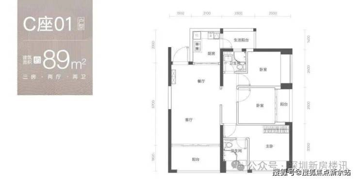
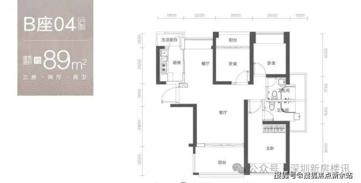
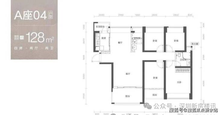
三、户型鉴赏
项目提供多种户型选择,包括89㎡的三房一卫/两卫和128-133㎡的四房两卫。户型设计合理,空间利用率高,满足不同家庭的需求。
🌵玖玖颂阁售楼处电话:400-893-6287【🌳售楼处已认证】✅✅✅✅
🌵玖玖颂阁开发商电话:400-893-6287【🌳开发商已认证】✅✅✅✅
🌵玖玖颂阁展示中心电话:400-893-6287【🌳展示中心已认证】✅✅✅✅
🌵玖玖颂阁营销中心电话:400-893-6287【🌳营销中心已认证】✅✅✅✅
四、优劣势分析
优势:
地理位置优越,交通便利;
教育资源丰富,为孩子提供优质的教育环境;
商业配套齐全,满足日常购物需求;
生态环境优美,提供丰富的休闲和娱乐选择;
劣势
容积率较高:可能在一定程度上影响居住舒适度。
交通噪音影响:可能存在交通噪音对居住环境的影响。
五、总结
玖玖颂阁以其卓越的地理位置、丰富的教育资源、齐全的商业配套、优美的生态环境以及合理的户型设计,成为了都市生活中的一道亮丽风景线。在这里,你可以享受到都市的繁华与便利,同时也能感受到家的温馨与舒适。如果你正在寻找一个既能满足居住需求,又能提升生活品质的居所,那么玖玖颂阁无疑是一个值得考虑的选择。
🌵玖玖颂阁售楼处电话:400-893-6287【🌳售楼处已认证】✅✅✅✅
🌵玖玖颂阁开发商电话:400-893-6287【🌳开发商已认证】✅✅✅✅
🌵玖玖颂阁展示中心电话:400-893-6287【🌳展示中心已认证】✅✅✅✅
🌵玖玖颂阁营销中心电话:400-893-6287【🌳营销中心已认证】✅✅✅✅
现场详细解答项目介绍户型图在售房源特价房学校交通位置样板房小区图片交房时间周边配套
1.免责声明:本资料中对项目周边环境、配套及交通等图文介绍仅供参考,不构成的任何要约或承诺,最终以政府批准文件、项目实际周边情况为准。本项目的图文资料仅供参考、玖玖颂阁售楼处电话:400-893-6287
2、我方重申:所有转载的文章、图片、音频、视频文件等资料知识产权归该权利人所有,但因技术能力有限无法查得知识产权来源而无法直接与版权人联系授权事宜。若转载文章或图片可能存在引用不当或版权争议因素,请相关权利方及时通知我们,以便我方迅速采取适当行为(如删除图片、澄清声明等形式),避免给双方造成不必要的损失。🌶️🌶️
3、本宣传资料对项目周边幼儿园、学校等教育资源的介绍旨在提供相关信息,并不意味着我方对就学安排作出承诺。教育资源的名称、办学性质、办学规模、学位设置、开学(班)时间、招生条件、收费标准及招生区域存在调整的可能,应以政府教育主管部门及办学方颁布的政策规定为准。🌶️🌶️
4、文章中文字和图片之间无必然联系,仅供读者参考。🌶️🌶️
5、本文所述内容和意见仅供参考,不构成市场交易依据和投资建议。🌶️🌶️
声明:本文由入驻焦点开放平台的作者撰写,除焦点官方账号外,观点仅代表作者本人,不代表焦点立场。
